NEU - Traumwohnung | Traumterrassen | Traumlage

Wohnung zum Kauf in 1110 Wien - Kaufpreis: 399.000 € / Objektnummer: 6619
Ausstattung: Barrierefrei Boden Fahrstuhl Wohnküche / offene Küche Bad Tiefgarage Parkplatz Fernwärme Balkon Loggia Terrasse

Preisinformationen

Kaufpreis:
399.000 €
Betriebskosten netto:
164,62 € / Monat
Vermittlungsprovision:
Ja
Provision:
3% des Kaufpreises zzgl. 20% USt.

Fakten

Objektnummer:
6619
Objekttyp:
Wohnung
Balkon:
1
Terrasse:
1
Loggia:
1
Balkonfläche:
7,15 m²
Loggia Fläche:
10,58 m²
Nutzfläche:
88 m²
Zimmer:
3
Badezimmer:
1
Toilette:
1
Stockwerk:
3
Baujahr:
2014
Neubau:
Ja
Zustand:
Gepflegt
Verfügbarkeit:
Verfügbar

Beschreibung

Diese Wohnung ist vor allem für Paare und Familien zur Eigennutzung geeignet und verfügt über ausgezeichnete Anbindung, Nahversorgung und Freizeitwert. Das Highlight stellen die sehr großzügigen Freiflächen dar.

 

3D TOUR:

Verschaffen Sie sich einen perfekten Ersteindruck von den Räumlichkeiten mit unserer virtuellen Tour:

 

Klicken Sie bitte hier zu unserer 3D-Tour [https://my.matterport.com/show/?m=1o2uXfHVnLk]

 

LAGE

Zentralste Lage und hoher Freizeitwert - Die Wohnung befindet sich in einem der attraktivsten Grätzl von Simmering mit hervorragender öffentlicher Anbindung (U-Bahn, Straßenbahn und Bus direkt vor der Türe). Einerseits nahe zum Bezirkszentrum mit perfekter Nahversorgung und Infrastruktur sowie andererseits hoher Freizeitwert durch Nähe zu den Simmeringer Erholungsgebieten und dem Wiener Prater.

 

OBJEKTBESCHREIBUNG:

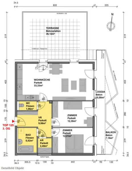
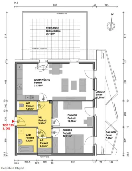
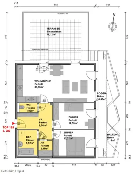
Perfekte Raumnutzung und traumhafte, großzügige Freiflächen - Hier haben Paare und Familien genügend Platz auf effizient genutztem Raum. Der Grundriss ist perfekt. Insgesamt 3 Zimmer, davon 2 Schlafzimmer und ein großes Wohnzimmer mit räumlich abgeteilter offener Küche mit allen elektrischen Geräten, Bad mit Wanne und Waschmaschine, separate Toilette mit Handwaschbecken, praktischer Abstellraum und als Highlight insgesamt 54m2 Freiflächen aufgeteilt auf eine riesige Terrasse, Loggia und Balkon. Alle Räume sind zentral über das Vorzimmer begehbar. Ein Kellerabteil, Fahrrad- sowie Kinderwagen-Abstellraum sind im sehr gepflegten Haus vorhanden.

 

AUSSTATTUNG:

Ausgezeichnet erhaltene Wohnung - Die Wohnung wurde bisher ausschließlich von der Eigentümerfamilie selbst genutzt, die sehr sorgsam mit der Wohnung umgegangen ist. Die Wohnung kann deshalb bezogen werden wie sie ist. Sie ist mit Parkettböden in den Wohnräumen und Fliesen in den Nassräumen ausgestattet und wird mit Fernwärme beheizt. Die Wohnraumbelüftung erzeugt angenehmes Wohnklima. Insgesamt verfügt die Wohnung über ausgezeichnete Energieeffizienz. Die Wohnung wird mit Küche ansonsten unmöbliert übergeben.

 

SONSTIGES:

Wohnkomfort - Insgesamt bieten die Entwicklung des Grätzls, die überzeugende Anbindung, der hohe Freizeitwert, der effiziente Grundriss der Wohnung und die traumhaften Freiflächen hohe Lebensqualität und Wohnkomfort zu einem vernünftigen Preis-Leistungsverhältnis.

Es kann optional ein schöner Kfz-Stellplatz in der Tiefgarage der Wohnhausanlage um € 24.000,- zusätzlich erworben werden.

 

Nähere Details, sowie eine virtuelle 3D Tour, erhalten Sie in Ihrem persönlichen Expose auf Anfrage!

Es wird auf ein persönliches / wirtschaftliches Naheverhältnis zum Eigentümer hingewiesen.

Wir weisen darauf hin, dass zwischen dem Vermittler und dem zu vermittelnden Dritten ein familiäres oder wirtschaftliches Naheverhältnis besteht.

Der Vermittler ist als Doppelmakler tätig.

Herr Mag. Norbert Brigelhuber_, Mobil: _+43 664 9122958_, Mail: _n.brigelhuber@advanta.at_, steht für ein persönliches Gespräch sowie für einen Besichtigungstermin gerne zur Verfügung._

Infrastruktur / Entfernungen

Gesundheit
Arzt <500m
Apotheke <500m
Klinik <1.500m
Krankenhaus <3.000m

Kinder & Schulen
Schule <500m
Kindergarten <500m
Universität <2.000m
Höhere Schule <2.000m

Nahversorgung
Supermarkt <500m
Bäckerei <500m
Einkaufszentrum <500m

Sonstige
Geldautomat <500m
Bank <500m
Post <500m
Polizei <500m

Verkehr
Bus <500m
U-Bahn <500m
Straßenbahn <500m
Bahnhof <500m
Autobahnanschluss <1.500m

Angaben Entfernung Luftlinie / Quelle: OpenStreetMap
Beschreibung weiterlesen

Energieeffizienz

HWB:
21,1 kWh/(m²*a)
HWB Klasse:
A
fGEE:
0,79
fGEE Klasse:
A
Energieausweisart:
Energiebedarfs-ausweis
Gültig bis:
07.01.2035

Grundriss

Lageplan

1110 Wien | Wien 11., Simmering

Lade...
Norbert Brigelhuber

Norbert Brigelhuber

ADVANTA – Immobilienvermittlungs GmbH

Virtuelle Tour

Lade...

Fotomix

Bild 1 Bild 2 Bild 3 Bild 4 Bild 5 Bild 6 Bild 7 Bild 8 Bild 9 Bild 10 Bild 11 Bild 12 Bild 13 Bild 14 Bild 15 Bild 16 Bild 17 Bild 18 Bild 19 Bild 20 Bild 21