NEU - U3 STUBENTOR, PARKRING, 131 m2 Altbaubüro oder Kanzlei, 6 Zimmer, Küche, 4. Liftstock, Stadtpark-Nähe

Immobilie zur Miete in 1010 Wien / Objektnummer: 2398
Ausstattung: Boden Fahrstuhl Kabel/Satelliten-TV Etagenheizung

Preisinformationen

Gesamtmiete (exkl. USt.):
2.054,69 € / Monat
Betriebskosten netto:
284,90 € / Monat
Umsatzsteuer:
410,94 €
Preisinfos:
Anpassung der Betriebs- und Aufzugskosten per April 2026!
Kaution:
7.400,00 €
Vermittlungsprovision:
Ja
Provision:
3 Bruttomonatsmieten zzgl. 20% USt.

Fakten

Objektnummer:
2398
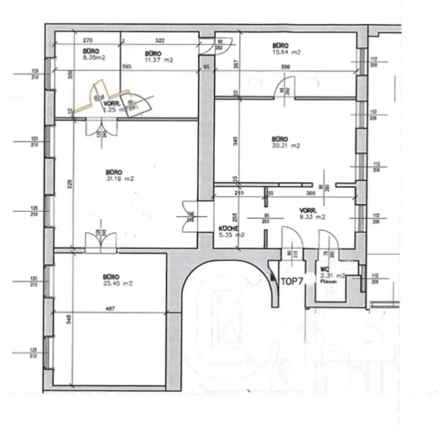
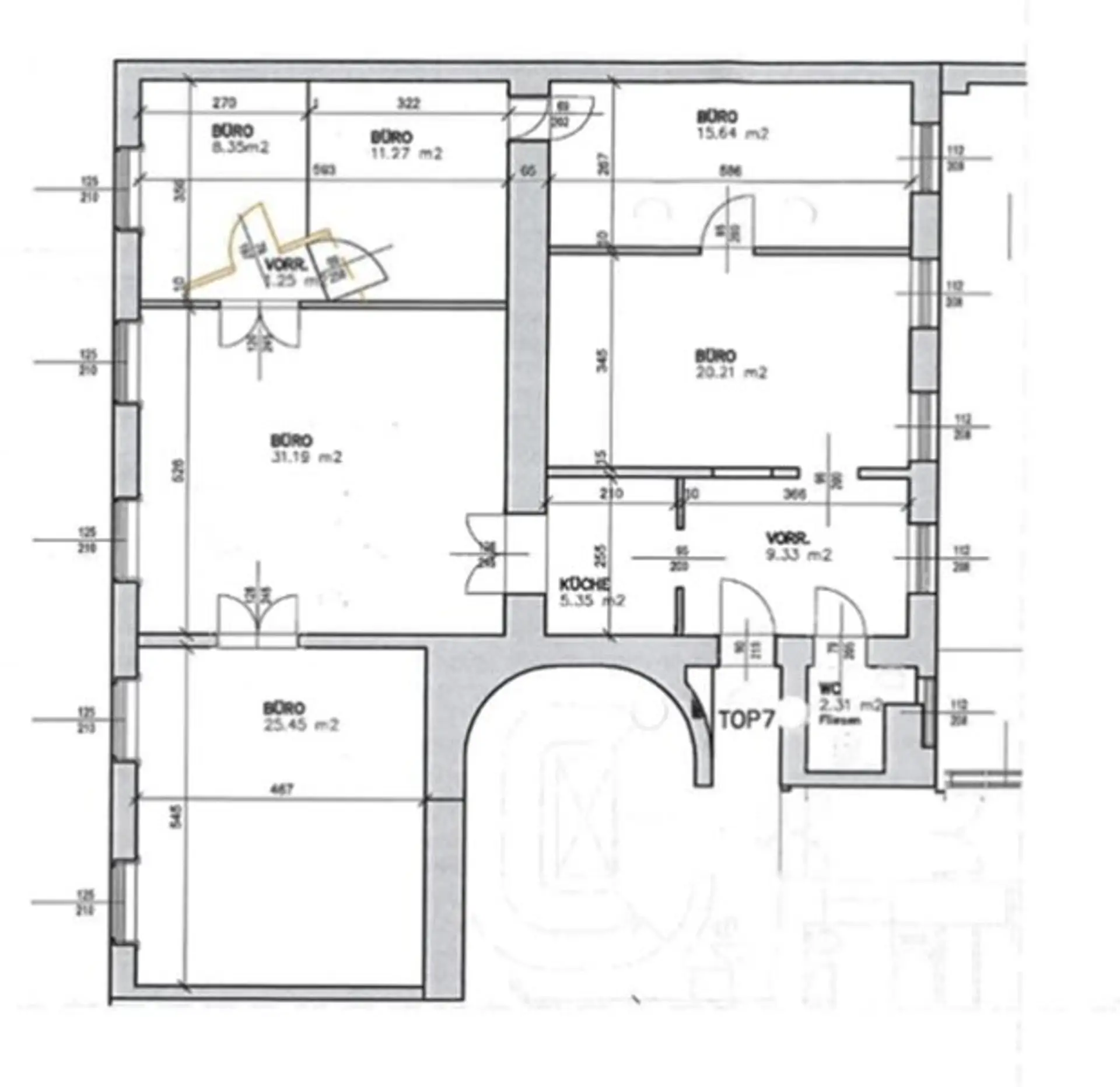
Nutzfläche:
130,89 m²
Zimmer:
6
Toilette:
1
Stockwerk:
4
Altbau:
Ja
Verfügbarkeit:
Verfügbar

Beschreibung

AM PARKRING IN DER NÄHE DES STADTPARKS GELANGT DIESES KLIMATISIERTE 130,89 M2 ALTBAUBÜRO ODER KANZLEI - PRAXIS IM 4. LIFTGESCHOSS ZUR BEFRISTETEN VERMIETUNG!

VORZIMMER, 5 BÜROS, KÜCHE, WC

KEINE VERMIETUNG AN UNECHT VON DER UMSATZSTEUER BEFREITE UNTERNEHMEN MÖGLICH.

AUSSTATTUNG:

+ TEILWEISE KLIMAANLAGE
+ KÜCHE MIT EINBAUGERÄTE
+ WC MIT WASCHGELEGENHEIT
+ TEPPICHBÖDEN, FLIESEN IN DEN NASSBEREICHEN
+ HOLZTÜREN, TEILWEISE FLÜGELTÜREN
+ EDV-VERKABELUNGEN, KABELKANÄLE OBERPUTZ
+ TELEKABELFERNSEHANSCHLUSS, GEGENSPRECHANLAGE
+ GASETAGENHEIZUNG
+ HWB 92,80 KWH/M2A

LAGE

PARKRING BEIM STADTPARK MIT BESTER INFRASTRUKTUR DES 1. BEZIRKS (U3 STUBENTOR, PARKRING, WOLLZEILE, STADTPARK, ZEDLITZGASSE, COBDENGASSE, STUBENRING, WIEN-MITTE-LANDSTRASSE) UND SEHR GUTEN VERKEHRSVERBINDUNGEN WIE DIE U3-STATION STUBENTOR, U3/U4-STATIONEN WIEN-MITTE-LANDSTRASSE SOWIE DIE LINIEN O, 1, 2, 3A, 74A SIND IN UNMITTELBARER NÄHE. DER BAHNHOF WIEN-MITTE-LANDSTRASSE MIT SÄMTLICHEN S-BAHNEN UND REGIONALSZÜGEN IST EBENSO IN WENIGEN MINUTEN ERREICHBAR.

SONSTIGES

GESAMTMIETE: € 2.465,63 INKL. BETRIEBSKOSTEN, AUFZUG, 20 % MWST.
HEIZUNG UND STROM WERDEN SEPARAT VOM JEWEILIGEN ANBIETER VORGESCHRIEBEN.
 
KAUTION: € 7.400,00 PER ÜBERWEISUNG
3 BMM VERMITTLUNGSPROVISION: € 7.396,88 INKL. 20 % MWST.
VERGEBÜHRUNG BEIM FINANZAMT, VERTRAGSERRICHTUNGSGEBÜHR BEI DER ZUSTÄNDIGEN HAUSVERWALTUNG
AUF 10 JAHRE BEFRISTETE HAUPTMIETE, ABLÖSEFREI, BEZUG NACH VEREINBARUNG!

1 JAHR KÜNDIGUNGSVERZICHT, 3 MONATE KÜNDIGUNGSFRIST

ANBINDUNG ÖFFENTLICHER VERKEHR

U3-STATION STUBENTOR, U3/U4-STATIONEN WIEN-MITTE-LANDSTRASSE SOWIE DIE LINIEN O, 1, 2, 3A, 74A SIND IN UNMITTELBARER NÄHE

ANSPRECHPARTNER: ALEXANDER ROS
MOBIL-TEL.: +43-664-466 52 02 [tel:+436644665202]
E-MAIL: ALEXANDER.ROS@ROS-REAL.AT 

Infrastruktur / Entfernungen

Gesundheit
Arzt <500m
Apotheke <500m
Klinik <500m
Krankenhaus <750m

Kinder & Schulen
Schule <250m
Kindergarten <500m
Universität <250m
Höhere Schule <750m

Nahversorgung
Supermarkt <250m
Bäckerei <250m
Einkaufszentrum <500m

Sonstige
Geldautomat <500m
Bank <500m
Post <250m
Polizei <500m

Verkehr
Bus <250m
U-Bahn <250m
Straßenbahn <250m
Bahnhof <250m
Autobahnanschluss <3.000m

Angaben Entfernung Luftlinie / Quelle: OpenStreetMap
Beschreibung weiterlesen

Lage und Verkehrsanbindung

PARKRING BEIM STADTPARK mit bester Infrastruktur des 1. Bezirks (U3 Stubentor, Parkring, Wollzeile, Stadtpark, Zedlitzgasse, Cobdengasse, Stubenring, Wien-Mitte-Landstraße) und sehr guten Verkehrsverbindungen wie die U3-Station Stubentor, U3/U4-Stationen Wien-Mitte-Landstraße sowie die Linien O, 1, 2, 3A, 74A sind in unmittelbarer Nähe. Der Bahnhof Wien-Mitte-Landstraße mit sämtlichen S-Bahnen und Regionalszügen ist ebenso in wenigen Minuten erreichbar.

U3 Stubentor, Parkring, Wollzeile, Stadtpark, Zedlitzgasse, Cobdengasse, Stubenring, Wien-Mitte-Landstraße

Energieeffizienz

HWB:
92,8 kWh/(m²*a)
HWB Klasse:
D
fGEE:
2,63
fGEE Klasse:
E
Energieausweisart:
Energiebedarfs-ausweis

Grundriss

Lageplan

1010 Wien | Wien 1., Innere Stadt

Lade...
Alexander Ros

Alexander Ros
Immobilienberater

ROS REALITÄTEN OG

Lade...

Fotomix

Bild 1 Bild 2 Bild 3 Bild 4 Bild 5 Bild 6 Bild 7 Bild 8 Bild 9 Bild 10 Bild 11 Bild 12 Bild 13 Bild 14 Bild 15 Bild 16 Bild 17 Bild 18 Bild 19 Bild 20 Bild 21 Bild 22 Bild 23 Bild 24 Bild 25