NEU - UMS ECK 51 – ANLAGEOBJEKT | vermietete 1,5 Zimmer-Wohnung

Wohnung zum Kauf in 1230 Wien - Kaufpreis: 211.000 € / Objektnummer: 26993
Ausstattung: Balkon

Preisinformationen

Kaufpreis:
211.000 €
Vermittlungsprovision:
Ja
Provision:
3% des Kaufpreises zzgl. 20% USt.

Fakten

Objektnummer:
26993
Objekttyp:
Wohnung
Balkon:
1
Balkonfläche:
5,81 m²
Wohnfläche:
33,05 m²
Zimmer:
1,5
Stockwerk:
2
Baujahr:
2024
Neubau:
Ja
Zustand:
Erstbezug
Verfügbarkeit:
Verfügbar

Beschreibung

Highlights

*
Erstbezugswohnungen mit optimal genutzten Raumkonzepten und sofortiger Verfügbarkeit

*
1- bis 3-Zimmer-Wohnungen, viele davon mit privaten Außenflächen wie Balkon, Terrasse oder Garten

*
Energieeffiziente Bauweise durch Luftwärmepumpe und Photovoltaiksystem kombiniert mit angenehmer Fußbodenheizung

*
Komfortabler Zutritt über ein modernes Smart-Home-System

*
Attraktive Vorsorgewohnungen mit stabiler Nachfrage und guten Renditechancen

Im südlichen Teil Wiens präsentiert sich UMS ECK 51 als ein bereits realisiertes Wohnprojekt, das moderne Architektur, nachhaltige Energielösungen und eine hochwertige Ausstattung eindrucksvoll vereint. Das Projekt umfasst insgesamt 44 Eigentumswohnungen, deren Wohnflächen zwischen ca. 32 m² und 91 m² liegen. Die klar strukturierten Grundrisse ermöglichen eine optimale Nutzung der Räume, während Balkone, Terrassen oder Eigengärten zusätzlichen Wohnkomfort bieten.

Die Ausstattung orientiert sich an aktuellen Wohnstandards: moderne Bäder, schöne Parkettböden und eine angenehme Fußbodenheizung schaffen ein harmonisches Wohngefühl. Die Energieversorgung erfolgt über eine effiziente Luftwärmepumpe in Kombination mit einer Photovoltaikanlage (Leistung rund 3,46 kWp), wodurch Betriebskosten reduziert und Ressourcen geschont werden.

Ein digitales Zutrittssystem ermöglicht das Öffnen der Haustüren per Smartphone sowie den Abruf relevanter Gebäudedaten. In der hauseigenen Tiefgarage stehen 21 Stellplätze bereit; die Nachrüstung von E‑Ladestationen ist möglich. Jede Wohnung verfügt über ein eigenes Kellerabteil. Zusätzlich bietet das Gebäude einen Fahrrad‑ und Kinderwagenraum sowie einen Lift. Ein gemeinschaftlich nutzbarer Gartenbereich und ein Spielplatz schaffen zusätzlichen Freiraum im Grünen.

Die Umgebung verbindet Natur und urbanen Alltag: Die Nähe zur Perchtoldsdorfer Heide, zum Liesingbach und zum Einkaufszentrum Riverside sorgt für eine ausgewogene Mischung aus Erholung, Infrastruktur und Lebensqualität. Dank der guten Lage und der funktionalen Wohnungsgrößen eignen sich die Einheiten sowohl für Eigennutzer als auch für Anleger.

Wohnungsbesichtigungen sind jederzeit möglich. Wir freuen uns auf Ihren Besuch!

Disclaimer

Die in diesem Exposé enthaltenen Bilder dienen der Veranschaulichung und können teilweise computergenerierte Visualisierungen (Renderings) beinhalten. Diese Darstellungen sollen einen Eindruck von der möglichen Gestaltung der Immobilie vermitteln, stellen jedoch keine verbindliche Beschaffenheitsangabe dar. Die abgebildeten Möbel und Einrichtungsgegenstände dienen ausschließlich der Illustration und sind nicht Bestandteil des Kauf- oder Mietgegenstandes.

Die Wohnung

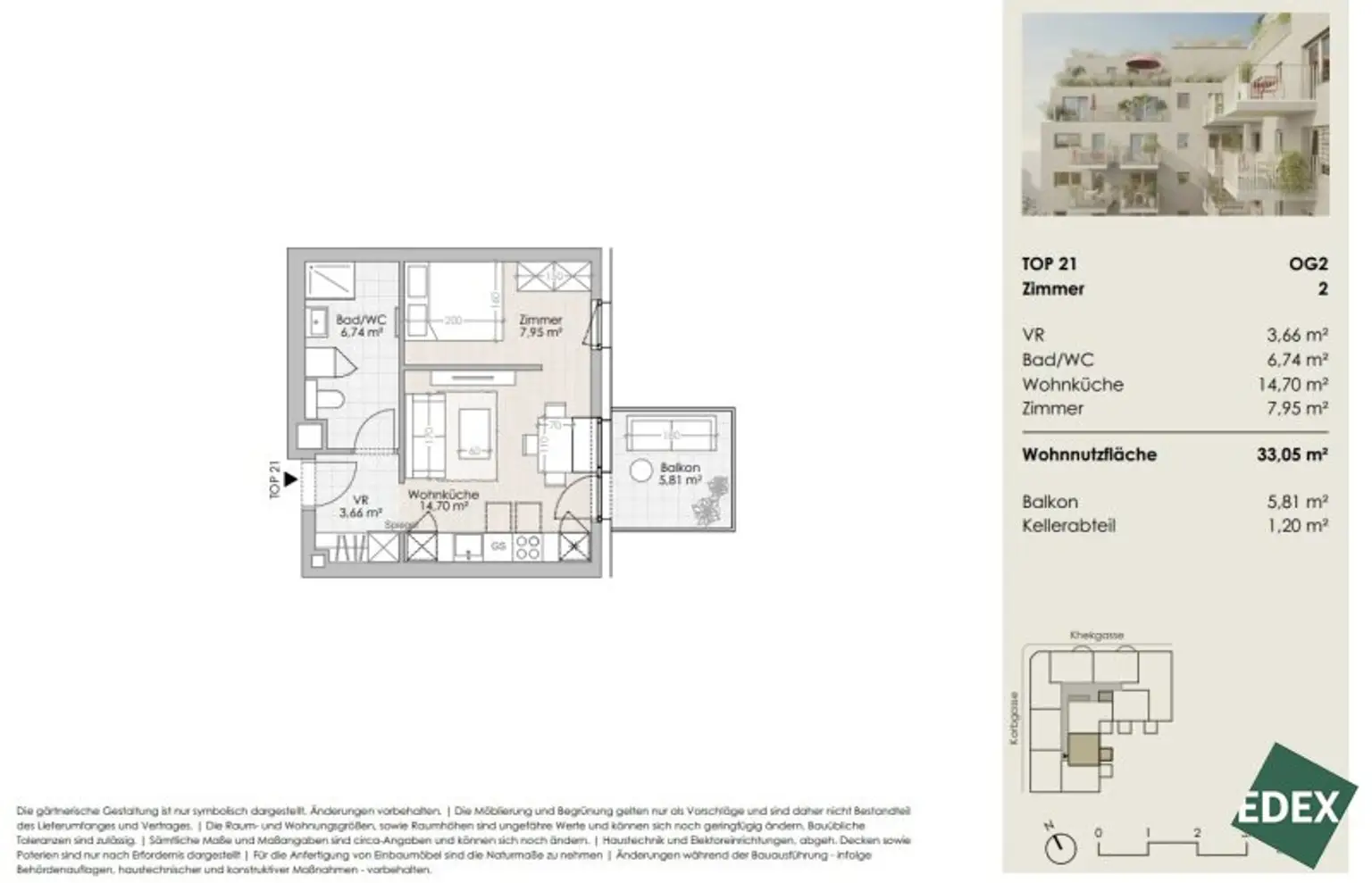
Diese 1,5 Zimmer-Wohnung im 2. Stock mit ca. 33,05 m² verfügt über einen Wohnraum mit Anschlüssen für eine Wohnküche und mit anschließendem ca. 5,81 m² großen Balkon, einem räumlich abgetrennten Schlafbereich, ein Bad mit Dusche, WC und Waschmaschinenanschluss sowie einen Vorraum. 

Die Wohnräume präsentieren sich mit schönem Parkett, während das Badezimmer mit zeitlos elegantem Feinsteinzeug ausgestattet ist. Die Beheizung erfolgt durch eine effiziente Zentralheizung in Verbindung mit einer Fußbodenheizung. Dreifach verglaste Fenster sorgen für optimale Isolierung. Ein zusätzliches Kellerabteil bietet praktischen Stauraum, im Haus befindet sich ein Abstellraum für Kinderwagen und Fahrräder.

Die Wohnung ist bis 30.04.2031 vermietet, die jährlichen Mieteinnahmen betragen derzeit EUR 7.262,88.

Die Fotos sind von einer ähnlichen Wohnung im Haus.
 

Bauart und Ausstattung

* Niedrigenergiehaus, HWB 24,30 kWh/m².a; fGEE = 0,73
* Beheizung über Luftwärmepumpe in Kombination mit Photovoltaik-Anlage ( mindestens 3,46 kWp)
* Fußbodenheizung 
* Smart-Home-System
* Hochwertige Echtholz-Parkettfußböden mit Schweizerleiste
* Feinsteinzeugfliesen
* außenliegender Sonnenschutz
* RC-3-Eingangstüren
* Weiße Innentüren mit Stahlzargen
* Handwaschbecken in Toiletten
* SAT-Anlage
* Glasfaserinternet 
* Einlagerungsräume im Keller
* Fahrrad- und Kinderwagenabstellraum

 

Verkehrsanbindung und Infrastruktur

Die Liegenschaft befindet sich Ecke Khekgasse und Korbgasse im 23. Wiener Gemeindebezirk. Diese idyllische Lage an dem angrenzenden Erholungsgebiet an Liesing verbindet optimal Ruhe und Natur gepaart mit einer sehr guten Infrastruktur. Der Liesinger Platz mit Anbindung an die Linien S1, S2, S3 und S4 sowie diverse Regionalzüge und Busse und das Einkaufzentrum Riverside liegt in unmittelbarer Nähe. Er ist sowohl zu Fuß (ca. 13 Minuten) als auch mit dem Bus oder mit dem Auto in 5 bis 10 Minuten erreichbar. Mit dem PKW ist man in 10 Minuten an der A 21 Brunn am Gebirge und in Folge auf der A2, der A23 und der S1.

Die Haltestelle der Buslinie 60A, 253 und 359 und die Linie 60 befinden sich in fußläufiger Entfernung der Liegenschaft. Zahlreiche Wander- und Radwege (zB. Radweg an der Liesing) in der nahen Umgebung sowie weitere Freizeitangebote runden die Möglichkeiten für Sport und Erholung ab. Aufgrund ihrer Nähe zu dem Naherholungsgebiet Maurer Wald und der Perchtoldsdorfer Haide, sowie einer optimalen Infrastruktur und Verkehrsanbindung bietet die Liegenschaft besten Wohnkomfort.

 

Wohnungen zum Verkauf in der Liegenschaft

In dem Haus stehen noch folgende Wohnungen zum Verkauf (Exposés auf Anfrage): Der Kaufpreis als Anlegerwohnung zwecks Vermietung versteht sich zuzüglich 20 % Ust. 

Erdgeschoß/1 OG:

* TOP 3: ca. 58,62 m² 2,5-Zimmer-Maisonette-Wohnung mit 17,08 m² Garten
Preis Anleger netto: EUR 275.000,-
Preis Eigennutzer: EUR 299.500,-
 
* TOP 10: ca. 59,43 m² 3-Zimmer-Maisonette-Wohnung mit 36,46 m² Garten
Preis Anleger netto: EUR 358.00,-
Preis Eigennutzer: EUR 390.000,-
 
* TOP 4: ca. 72,74 m² 3-Zimmer-Wohnung mit 5,81 m² Balkon
Preis Anleger netto: EUR 393.900,-
Preis Eigennutzer: EUR 429.500,-
 
* TOP 6: ca. 42,16 m² 2-Zimmer-Wohnung
Preis Anleger netto: EUR 216.000,-
Preis Eigennutzer: EUR 235.000,-
 
* TOP 7: ca. 46,24 m² 2-Zimmer-Wohnung: reserviert
 
* TOP 8: ca. 42,16 m² 2-Zimmer-Wohnung (derzeit vermietet)
Preis Anleger netto: EUR 220.000,-
Preis Eigennutzer: EUR 2239.900,-
 
* TOP 9: ca. 42,18 m² 2-Zimmer-Wohnung
Preis Anleger netto: EUR 216.000,-
Preis Eigennutzer: EUR 235.000,-

2. Obergeschoss:

* TOP 14: ca. 72,74 m² 3-Zimmer-Wohnung mit 5,81 m² Balkon
Preis Anleger netto: EUR 404.000,-
Preis Eigennutzer: EUR 439.500,-
 
* TOP 20: ca. ca. 34,41 m² 1,5-Zimmer-Wohnung mit 5,81 m² Balkon
Preis Anleger netto: EUR 207.000,-
Preis Eigennutzer: EUR 225.000,-
 
* TOP 21: ca. ca. 33.05 m² 1,5-Zimmer-Wohnung mit 5,81 m² Balkon (derzeit vermietet)
Preis Anleger netto: EUR 211.000,-
Preis Eigennutzer: EUR 230.000-

3. Obergeschoss:

* TOP 24: ca. 72,74 m² 3-Zimmer-Wohnung mit 5,81 m² Balkon
Preis Anleger netto: EUR 412.000,-
Preis Eigennutzer: EUR 449.500,-

4. Obergeschoss:

* TOP 34: ca. 72,74 m² 3-Zimmer-Wohnung mit 5,81 m² Balkon
Preis Anleger netto: EUR 422.000,-
Preis Eigennutzer: EUR 459.500,-
 
* TOP 36: ca. 39,52 m² 2-Zimmer-Wohnung mit 16,73 m² Terrasse
Preis Anleger netto: EUR 294.000,-
Preis Eigennutzer: EUR 319.900,-
 
* TOP 37: ca. 37,94 m² 2-Zimmer-Wohnung mit 13,51 m² Terrasse
Preis Anleger netto: EUR 274.000,-
Preis Eigennutzer: EUR 299.000,-
 
* TOP 38: ca. 43,75 m² 2-Zimmer-Wohnung mit 12,93 m² Terrasse
Preis Anleger netto: EUR 311.000,-
Preis Eigennutzer: EUR 339.000,-
 
* TOP 39: ca. 56,06 m² 3-Zimmer-Wohnung mit 9,52 m² Balkon
Preis Anleger netto: EUR 344.000-
Preis Eigennutzer: EUR 375.000,-

5. Obergeschoss / 1. Dachgeschoß:

* TOP 41: ca. 61,45 m² 3-Zimmer-Wohnung mit 11,56 m² Terrasse
Preis Anleger netto: EUR 367.000,-
Preis Eigennutzer: EUR 399.500,-
 
* TOP 42: ca. 73,36 m² 3-Zimmer-Wohnung mit 15,27 m² Terrasse
Preis Anleger netto: EUR 476.000,-
Preis Eigennutzer: EUR 519.000-
 
* TOP 43: ca. 51,88 m² 2-Zimmer-Wohnung mit 18,05 m² Terrasse
Preis Anleger netto: EUR 348.000,-
Preis Eigennutzer: EUR 379.500,-
 
* TOP 44: ca. 81,84 m² 3-Zimmer-Wohnung mit 39,15 m² Terrasse
Preis Anleger netto: EUR 568.000,-
Preis Eigennutzer: EUR 619.500,-

Die übrigen Wohnungen wurden bereits verkauft.

Der Vermittler ist als Doppelmakler tätig.

Infrastruktur / Entfernungen

Gesundheit
Arzt <500m
Apotheke <500m
Klinik <500m
Krankenhaus <2.000m

Kinder & Schulen
Schule <500m
Kindergarten <500m
Universität <6.000m
Höhere Schule <6.500m

Nahversorgung
Supermarkt <500m
Bäckerei <1.000m
Einkaufszentrum <500m

Sonstige
Geldautomat <500m
Bank <500m
Post <1.000m
Polizei <1.000m

Verkehr
Bus <500m
U-Bahn <3.000m
Straßenbahn <1.000m
Bahnhof <1.000m
Autobahnanschluss <2.500m

Angaben Entfernung Luftlinie / Quelle: OpenStreetMap
Beschreibung weiterlesen

Lage und Verkehrsanbindung

UMS ECK 51 bietet im 23. Bezirk von Wien moderne Neubau‑Eigentumswohnungen mit effizienten Grundrissen, hochwertiger Ausstattung und energieeffizienter Bauweise. Die sofort beziehbaren 1- bis 3-Zimmer-Wohnungen eignen sich ideal für Eigennutzer und Anleger, viele davon mit Balkon, Terrasse oder Eigengarten. Die Lage nahe Perchtoldsdorfer Heide, Liesingbach und dem EKZ Riverside verbindet Natur, Infrastruktur und hohe Wohnqualität.

Liesinger Platz

Energieeffizienz

HWB:
27,26 kWh/(m²*a)
HWB Klasse:
B
fGEE:
0,7
fGEE Klasse:
A
Energieausweisart:
Energiebedarfs-ausweis
Gültig bis:
05.07.2032

Grundriss

Lageplan

1230 Wien | Wien 23., Liesing

Lade...
Michaela Sauer

Michaela Sauer
Beraterin

EDEX Immobilien GmbH

Lade...

Fotomix

Bild 1 Bild 2 Bild 3 Bild 4 Bild 5 Bild 6 Bild 7 Bild 8 Bild 9 Bild 10 Bild 11 Bild 12 Bild 13 Bild 14 Bild 15 Bild 16 Bild 17 Bild 18 Bild 19