NEU - UNBEFRISTET! Geräumige Genossenschaftswohnung mit Loggia mit Hofblick!

Wohnung zur Miete in 3100 St. Pölten - Gesamtmiete: 701,03 € / Objektnummer: 1400611
Ausstattung: Boden Bad Loggia WG geeignet
Außenansicht
Außenansicht
Parkfläche
Außenansicht

Preisinformationen

Gesamtmiete:
701,03 € / Monat
Betriebskosten netto:
266,42 € / Monat
Umsatzsteuer:
63,73 €
Provision:
Gemäß Erstauftraggeberprinzip bezahlt der Abgeber die Provision.

Fakten

Objektnummer:
1400611
Objekttyp:
Wohnung
Loggia:
1
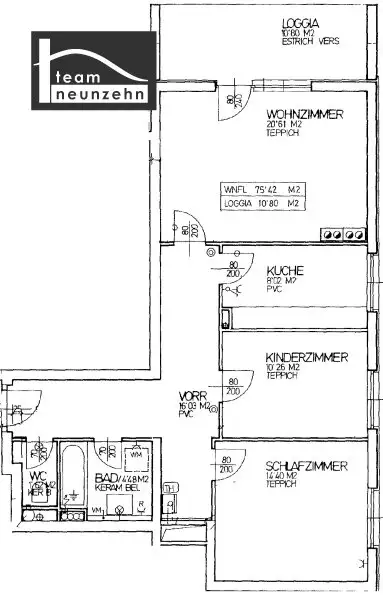
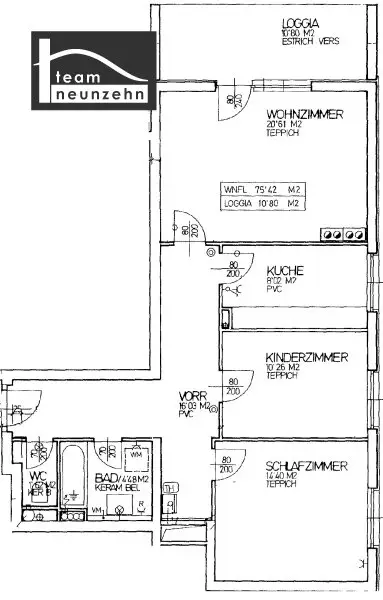
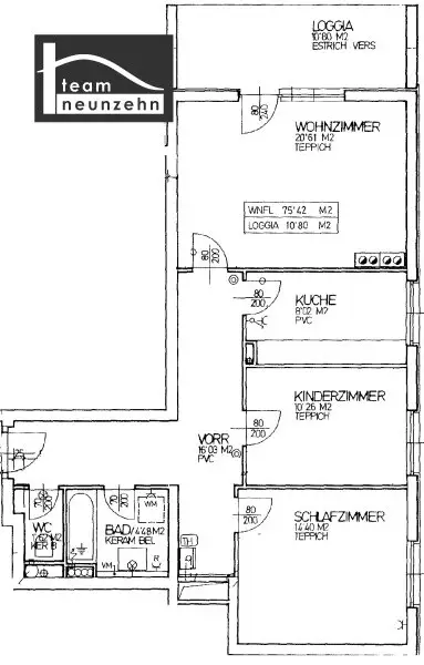
Wohnfläche:
75,45 m²
Loggia Fläche:
10,81 m²
Nutzfläche:
86,34 m²
Gesamtfläche:
86,34 m²
Zimmer:
3
Badezimmer:
1
Toilette:
1
Stockwerk:
3
Zustand:
Gepflegt
Verfügbarkeit:
Verfügbar

Beschreibung

Haus 31 Top 19

In der ruhig gelegenen Liegenschaft mit toller Verkehrsanbindung gelangt diese charmante Genossenschaftswohnung zur Vermietung. Das Objekt verfügt über 3 Zimmer aufgeteilt auf knapp 75m² sowie einer ca. 11m² Loggia, welche in Richtung Innenhof ausgerichtet ist. 

Die Wohnung ist ab sofort beziehbar und wird für unbefristete Dauer vermietet. Somit wird ein freundliches Wohnambiente gewährleistet.

Besonders punkten kann die Wohnung durch die ruhige Lage mit vielen Grünflächen in unmittelbarer Nähe und idealer Verkehrsanbindung sowie das unbefristete Mietverhältnis. Auf Grund der Lage im obersten Geschoss (3. Obergeschoss ohne Lift) hat man noch mehr Ruhe und Tageslicht!

 

Mietkosten im Rahmen der Anmietung:

Monatliche Mietkosten: € 701,03 (inklusive Betriebskosten und Umsatzsteuer)

Kaution: keine

Finanzierungsbeitrag: € 5.560,30

Provisionsfrei

 

Bei dem angeführten Mietpreis handelt es sich um eine Kaltmiete, somit sind sämtliche Energiekosten wie Warmwasser-, Heiz- und Stromkosten nicht inkludiert.

 

Lage und Infrastruktur

Die Lage bietet nicht nur eine gute Verkehrsanbindung auf Grund der Nähe zur Mariazeller Straße, sondern auch eine Vielzahl an Geschäften, Lokalen und Freizeitangeboten sowie Grünflächen in unmittelbarer Nähe.

LUP Bushaltestellen

* Linie 1 "Lagergasse" fast direkt vor der Haustür ca. 1 Minute Fußweg
* Linie 8 und Linie 1 "Spratzern Kirche" ca. 6 Minuten Fußweg

Lediglich etwa 10 Minuten Fußweg (2 Minuten Radweg) von der Wohnung entfernt, befinden sich ein EUROSPAR, ein LIDL und ein dm drogerie markt. Lediglich ein paar Meter weiter ist auch ein HOFER. Sogar nur 7 Minuten Fußweg entfernt, liegt die Rosen Apotheke und Vital Zentrum. Ebenfalls in einem Umkreis von weniger als einem Kilometer befinden sich auch ein Kindergarten, eine Volksschule sowie der Hiesbergerpark (Spielplatz). Es befindet sich jedoch auch eine großzügige Grünfläche inklusive Hartplatz und Spielgeräten im Innenhof des Wohnbaukomplexes. Dort können jung und alt die Natur genießen. Wer es noch ruhiger mag, wird die nahegelegenen Feldwege und die Traisen genießen.

 

Energieausweis:

Der Heizwärmebedarf 55,5 kWh/m²a entspricht der Klasse B

 

 

Für Fragen bzw. Besichtigungen steht Ihnen Frau Katharina Kurek sehr gerne unter 0676 852 243 512 oder via E-Mail unter Kurek@teamneunzehn.at zur Verfügung.

 

Wir weisen darauf hin, dass zwischen dem Vermittler und dem zu vermittelnden Dritten ein familiäres oder wirtschaftliches Naheverhältnis besteht.

Der Immobilienmakler erklärt, dass er – entgegen dem in der Immobilienwirtschaft üblichen Geschäftsgebrauch des Doppelmaklers – einseitig nur für den Vermieter tätig ist.

"Leben braucht Raum" * T19-RE Real Estate GmbH & Co KG * www.teamneunzehn.at [https://www.teamneunzehn.at]

Doppelmakler

Wir werden als Immobilienmakler kraft bestehenden Geschäftsgebrauchs als Doppelmakler tätig und haben sohin beide Seiten des Vertrages (Verkäufer-Käufer, Vermieter-Mieter) zu unterstützen.

Wirtschaftliches Naheverhältnis

Es wird bekannt gegeben, dass folgendes wirtschaftliches Naheverhältnis zwischen der teamneunzehn-Gruppe und dem Verkäufer/der vermietenden Partei besteht: ständige und dauerhafte Beauftragung mit der Vermittlung des bestehenden Immobilienportfolios

Haftungserklärung zum Inserat

Irrtum und Änderungen vorbehalten! Sofern es sich bei Bildern um Visualisierungen handelt, können Abänderungen zur tatsächlichen Ausführung resultieren. Wir weisen ausdrücklich darauf hin, dass das auf Fotos oder Visualisierungen ersichtliche Mobiliar bzw. Inventar nicht Bestandteil des inserierten Preises ist.

 

 

Infrastruktur / Entfernungen

Gesundheit
Arzt 300m
Apotheke 375m
Klinik 1.575m
Krankenhaus 5.200m

Kinder & Schulen
Schule 1.850m
Kindergarten 575m
Universität 5.100m
Höhere Schule 2.125m

Nahversorgung
Supermarkt 375m
Bäckerei 1.400m
Einkaufszentrum 3.800m

Sonstige
Bank 1.525m
Geldautomat 1.525m
Post 500m
Polizei 1.350m

Verkehr
Bus 125m
Bahnhof 1.700m
Autobahnanschluss 1.050m
Flughafen 2.625m

Angaben Entfernung Luftlinie / Quelle: OpenStreetMap
Beschreibung weiterlesen

Lage und Verkehrsanbindung

Spratzern, Mariazeller Straße, EUROSPAR, dm, LIDL, HOFER, NÖ Landeskindergarten, Hiesbergpark, Rosen Apotheke und Vital Zentrum, Volksheim Spratzern, Traisen, Auwald, VAZ

Nahe VAZ, Mariazellerstraße, Traisen und Auwald, Gemeindezentrum Volksheim Spratzern, Spielplatz Hiesbergerpark

Energieeffizienz

HWB:
55,5 kWh/(m²*a)
HWB Klasse:
C
fGEE:
1,27
fGEE Klasse:
C
Energieausweisart:
Energiebedarfs-ausweis

Grundriss

Lageplan

3100 St. Pölten | Sankt Pölten (Stadt)

Lade...
Katharina Kurek

Katharina Kurek
Immobilienvermittlung

teamneunzehn-Gruppe

Anrufen
Lade...

Fotomix

Bild 1 Bild 2 Bild 3 Bild 4 Bild 5 Bild 6 Bild 7 Bild 8 Bild 9 Bild 10 Bild 11 Bild 12 Außenansicht Bild 14 Außenansicht Bild 16 Bild 17 Bild 18 Parkfläche Außenansicht