NEU - Unbefristete 2-Zimmer-Wohnung in Zentrumnähe! – Jetzt die Gelegenheit nutzen!

Wohnung zur Miete in 8600 Bruck an der Mur - Gesamtmiete: 503,15 € / Objektnummer: 1755361
Ausstattung: Fahrstuhl Bad Abstellraum Loggia

Preisinformationen

Gesamtmiete:
503,15 € / Monat
Betriebskosten netto:
154,37 € / Monat
Umsatzsteuer:
45,74 €
Kaution:
1.207,58 €
Provision:
Gemäß Erstauftraggeberprinzip bezahlt der Abgeber die Provision.

Fakten

Objektnummer:
1755361
Objekttyp:
Wohnung
Loggia:
1
Wohnfläche:
69,16 m²
Nutzfläche:
69,16 m²
Gesamtfläche:
69,16 m²
Zimmer:
2
Badezimmer:
1
Toilette:
1
Baujahr:
1982
Altbau:
Ja
Verfügbarkeit:
Verfügbar

Beschreibung

Wohneinheiten zur Miete – Jetzt die Gelegenheit nutzen!

Bergstraße 26, 8600 Bruck an der Mur

 

In der Bergstraße 26, nur wenige Gehminuten vom Stadtzentrum Bruck an der Mur entfernt, stehen attraktive und preiswerte Mietwohnungen zur Verfügung.

Ab sofort haben Sie die Chance, diese einladenden Wohnungen provisionsfrei und auf unbefristete Zeit zu mieten – eine großartige Möglichkeit, sich in einer beliebten und gut angebundenen Lage langfristig ein Zuhause aufzubauen. Die Wohnungen bieten Ihnen nicht nur ein gemütliches Zuhause, sondern auch die Freiheit, Ihre Wohnräume nach Ihren eigenen Vorstellungen zu gestalten, ohne Maklergebühren zu zahlen.

Beachten Sie bitte, dass die Küchen nicht in der Miete enthalten sind und vom Mieter selbst beschafft werden müssen. So haben Sie jedoch die Möglichkeit, Ihre Traumküche ganz nach Ihren Vorstellungen und Bedürfnissen zu realisieren.

Nutzen Sie diese einmalige Gelegenheit und sichern Sie sich ein flexibles, langfristiges Mietverhältnis in einer attraktiven und zentral gelegenen Umgebung!

 

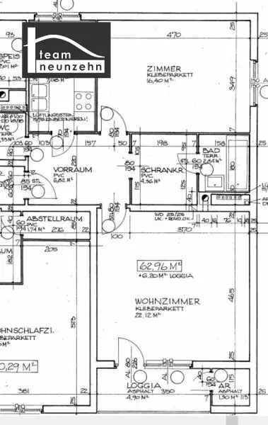
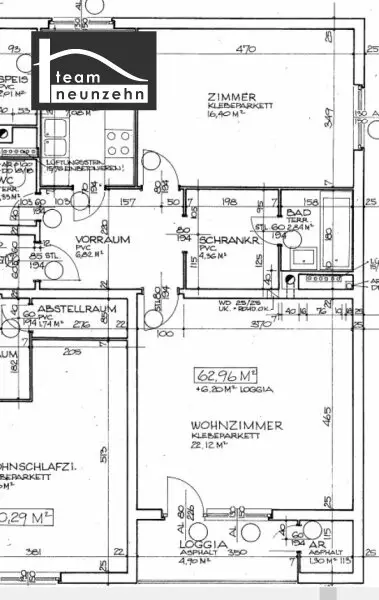
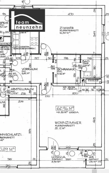
Wohnung Top 07

Zur Vermietung gelangt eine 2-Zimmer-Wohnung mit ca. 69,16 m² Wohnfläche in unmittelbarer Nähe zum Stadtzentrum.

* Vorraum
* Wohnzimmer
* Küche
* Zimmer
* Schrankraum
* Badezimmer

 

Kosten:
monatliche Miete: 503,15 Euro (inkl. Betriebskosten, Liftkosten und Umsatzsteuer)

Kaution: 1.207,58 €

Zusätzlich fallen folgende Kosten an:

Heizkostenakonto: 97,46 Euro (inkl. Umsatzsteuer)

Finanzierungsbeitrag: 1.194,90 €

 

 

Infrastruktur:

Die Bergstraße 26 in Bruck an der Mur zeichnet sich durch eine ausgezeichnete Infrastruktur aus, die höchsten Wohnkomfort garantiert. Die Lage bietet eine ideale Anbindung an den öffentlichen Nahverkehr, sodass Sie das Stadtzentrum sowie wichtige Verkehrsknotenpunkte schnell und bequem erreichen können. Zudem sorgt die grüne Umgebung für eine angenehme Wohnatmosphäre und ein hohes Maß an Lebensqualität.

 

Einkaufsmöglichkeiten:

* Billa: 400 m – 6 min
* Penny: 500 m – 7 min
* Spar: 750 m – 11 min
* Eurospar: 1,2 km 
* Lidl: 1,2 km
* Hofer: 1,5 km

 

Gesundheitswesen: 

* Apotheke: 200 m – 3 min
* Arzt: 400 m – 5 min
* Fitnessstudio: 950 m – 13 min
* Krankenhaus: 1,4 km

 

Bildungseinrichtungen: 

* Gymnasium: 300 m – 4 min
* Kindergarten: 450 m – 6 min
* Volksschule: 500 m – 6 min
* Mittelschule: 550 m – 7 min
* Höhere Bundeslehranstalt für Forstwirtschaft: 700 m – 9 min

 

Verkehrsanbindungen: 

* Bushaltestelle: 130 m – 2 min
* Bahnhof Mürzzuschlag: 1,5 km

 

Weitere Attraktionen die sich in der Nähe befinden:

* Spielplatz: 450 m – 6 min
* Stadtpark: 550 m – 7 min
* Hauptplatz: 650 m – 9 min
* Stadtsaal: 700 m – 9 min
* Murinsel Stadion: 1,1 km
* Schlossberg/ Uhrturm: 1,1 km
* Städtisches Freibad: 1,6 km

 

Entdecken Sie das perfekte Gleichgewicht zwischen Stadt- und Landleben in Bruck an der Mur! In unmittelbarer Nähe von Bergstraße 26 erwarten Sie historische Sehenswürdigkeiten, kulturelle Vielfalt, zahlreiche Natur- und Erholungsräume, ohne auf die Annehmlichkeiten der Stadt verzichten zu müssen, den in unmittelbarer Nähe finden Sie alles was Ihren Alltag erleichtert. 

 

Energieausweis:

Der Heizwärmebedarf beträgt 135,90 kWh/m²a, welcher jeweils der Klasse D entspricht.

 

Für Fragen bzw. Besichtigungen steht Ihnen Frau Gloria Berger unter berger@teamneunzehn.at sowie unter 0676 852 243 610 sehr gerne zur Verfügung.

Wir weisen darauf hin, dass zwischen dem Vermittler und dem zu vermittelnden Dritten ein familiäres oder wirtschaftliches Naheverhältnis besteht.

Der Immobilienmakler erklärt, dass er – entgegen dem in der Immobilienwirtschaft üblichen Geschäftsgebrauch des Doppelmaklers – einseitig nur für den Vermieter tätig ist.

"Leben braucht Raum" * T19-RE Real Estate GmbH & Co KG * www.teamneunzehn.at [https://www.teamneunzehn.at]

Doppelmakler

Wir werden als Immobilienmakler kraft bestehenden Geschäftsgebrauchs als Doppelmakler tätig und haben sohin beide Seiten des Vertrages (Verkäufer-Käufer, Vermieter-Mieter) zu unterstützen.

Wirtschaftliches Naheverhältnis

Es wird bekannt gegeben, dass folgendes wirtschaftliches Naheverhältnis zwischen der teamneunzehn-Gruppe und dem Verkäufer/der vermietenden Partei besteht: ständige und dauerhafte Beauftragung mit der Vermittlung des bestehenden Immobilienportfolios

Haftungserklärung zum Inserat

Irrtum und Änderungen vorbehalten! Sofern es sich bei Bildern um Visualisierungen handelt, können Abänderungen zur tatsächlichen Ausführung resultieren. Wir weisen ausdrücklich darauf hin, dass das auf Fotos oder Visualisierungen ersichtliche Mobiliar bzw. Inventar nicht Bestandteil des inserierten Preises ist.

 

 

Infrastruktur / Entfernungen

Gesundheit
Arzt 175m
Apotheke 150m
Krankenhaus 1.450m

Kinder & Schulen
Schule 325m
Kindergarten 375m
Universität 4.075m

Nahversorgung
Supermarkt 400m
Bäckerei 100m
Einkaufszentrum 625m

Sonstige
Bank 325m
Geldautomat 425m
Post 525m
Polizei 3.825m

Verkehr
Bus 100m
Autobahnanschluss 1.250m
Bahnhof 1.300m
Flughafen 7.375m

Angaben Entfernung Luftlinie / Quelle: OpenStreetMap
Beschreibung weiterlesen

Lage und Verkehrsanbindung

Murinsel, Naturschutzzentrum, Murinsel Stadion

Energieeffizienz

HWB:
135,9 kWh/(m²*a)
HWB Klasse:
D
fGEE:
2,12
fGEE Klasse:
D
Energieausweisart:
Energiebedarfs-ausweis

Grundriss

Lageplan

8600 Bruck an der Mur | Bruck-Mürzzuschlag

Lade...
BWSG Berger

BWSG Berger

teamneunzehn-Gruppe

Anrufen
Lade...

Fotomix

Bild 1 Bild 2 Bild 3