NEU - Unbefristete Genossenschaftswohnung zwischen Stadt und Natur. - WOHNTRAUM

Wohnung zur Miete in 3100 St. Pölten - Gesamtmiete: 928,54 € / Objektnummer: 1746595
Ausstattung: Boden Bad Abstellraum Loggia

Preisinformationen

Gesamtmiete:
928,54 € / Monat
Betriebskosten netto:
226,94 € / Monat
Heizkosten netto:
138,04 €
Umsatzsteuer:
69,35 €

Fakten

Objektnummer:
1746595
Objekttyp:
Wohnung
Loggia:
1
Wohnfläche:
79,51 m²
Loggia Fläche:
7,32 m²
Nutzfläche:
87,43 m²
Gesamtfläche:
87,08 m²
Zimmer:
3
Badezimmer:
1
Toilette:
1
Baujahr:
1998
Verfügbarkeit:
Verfügbar

Beschreibung

Genossenschaftswohnung in ruhiger Lage! Unbefristet!

Diese einzigartige Immobilie bietet Ihnen nicht nur ein stilvolles Zuhause, sondern auch eine wundervolle Lage.

Die Liegenschaft befindet sich in einer ruhigen Lage in St. Pölten, nur wenige Minuten vom Stadtzentrum entfernt. Durch die Nähe zu den öffentlichen Verkehrsmitteln, wie Bus und Bahnhof, sind Sie jederzeit flexibel und mobil unterwegs. Egal ob für den täglichen Weg zur Arbeit, einen Ausflug in die umliegenden Städte oder einen entspannten Einkaufsbummel - hier sind Sie bestens angebunden.

Die Wohnung bieten genügend Platz für Ihre Familie und Ihre individuellen Bedürfnisse.

Hier können Sie Ihren persönlichen Wohntraum umsetzen, denn die Wohnung ist sanierungsbedürftig. Ideal für kreative Selbermacher! Gegen Selbstsanierung erhalten Sie eine Mietfreistellung!

Das Objekt wird wie es liegt und steht übergeben. Die Vermietung erfolgt auf unbefristete Zeit.

 

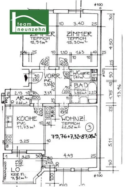
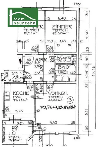
Stiege 4 Top 03:

Diese 3,5-Zimmer-Wohnung gliedert sich in folgende Raumaufteilung: 

* Vorraum: ca. 9,32 m²
* Wohnzimmer: ca. 22,52 m²
* Küche: ca. 11,73 m²
* Zimmer 1: ca. 12,91 m²
* Zimmer 2: ca. 15,30 m²
* Abstellraum: ca. 2,66 m²
* Bad: ca. 3,85 m²
* WC: ca. 1,47 m²

 

Kosten:

Gesamtbelastung Miete inklusive Betriebs-, Heizkosten und Warmwasser: 928,50 €

Finanzierungsbeitrag: 13.901,37 €

 

Lage & Infrastruktur:

Diese Liegenschaft ist in ruhiger Lage etwas außerhalb des Zentrums gelegen. Hier kann man die Natur genießen, ohne auf die Vorteile der Stadt verzichten zu müssen. Nur wenige Meter von der Eingangstür entfernt, befindet sich die Bushaltestelle Gutenbergstraße, an der die LUP Busse der Linie 9 sowie die Buslinie 491 hält. Den Alpenbahnhof erreicht man zu Fuß in rund 10 Minuten.

Dank der nahegelegenen Linzer Straße gelangt man ebenso mit dem Auto in kürzester Zeit an sein Ziel. In der Nähe befinden sich zahlreiche Einkaufsmöglichkeiten, Schulen und Kindergärten. Ebenso befinden sich auch Restaurants, Cafés und Freizeitmöglichkeiten in der Nähe.

Speziell der Kaiserwald (weniger als 10min zu Fuß und etwa 3min mit dem Rad entfernt) aber auch der Nadelbach und die umliegenden Wege laden zum Entspannen in der Natur ein. )

 

Energieausweis:

Der Heizwärmebedarf beträgt 68,00 kWh/m²a

 

Für Fragen bzw. Besichtigungen steht Ihnen Frau Katharina Kurek sehr gerne unter 0676 852 243 512 zur Verfügung.

Wir weisen darauf hin, dass zwischen dem Vermittler und dem zu vermittelnden Dritten ein familiäres oder wirtschaftliches Naheverhältnis besteht.

Der Immobilienmakler erklärt, dass er – entgegen dem in der Immobilienwirtschaft üblichen Geschäftsgebrauch des Doppelmaklers – einseitig nur für den Vermieter tätig ist.

"Leben braucht Raum" * T19-RE Real Estate GmbH & Co KG * www.teamneunzehn.at [https://www.teamneunzehn.at]

Doppelmakler

Wir werden als Immobilienmakler kraft bestehenden Geschäftsgebrauchs als Doppelmakler tätig und haben sohin beide Seiten des Vertrages (Verkäufer-Käufer, Vermieter-Mieter) zu unterstützen.

Wirtschaftliches Naheverhältnis

Es wird bekannt gegeben, dass folgendes wirtschaftliches Naheverhältnis zwischen der teamneunzehn-Gruppe und dem Verkäufer/der vermietenden Partei besteht: ständige und dauerhafte Beauftragung mit der Vermittlung des bestehenden Immobilienportfolios

Haftungserklärung zum Inserat

Irrtum und Änderungen vorbehalten! Sofern es sich bei Bildern um Visualisierungen handelt, können Abänderungen zur tatsächlichen Ausführung resultieren. Wir weisen ausdrücklich darauf hin, dass das auf Fotos oder Visualisierungen ersichtliche Mobiliar bzw. Inventar nicht Bestandteil des inserierten Preises ist.

 

 

Finanzierungsservice – Ihre Wunschimmobilie optimal finanziert

Um Ihnen bei der Finanzierung Ihrer neuen Wohnung Zeit und Geld zu sparen, stehen Ihnen unsere Finanzierungsprofis mit Rat und Tat zur Seite. Wir führen für Sie unverbindlich und kostenlos einen unabhängigen Vergleich der unterschiedlichen Kreditkonditionen durch und verhelfen Ihnen zum optimalen Angebot. Wir werden sofort nach Ihrer unverbindlichen Kontaktaufnahme unter finanzierung@teamneunzehn.at aktiv.

Maßgefertigte Tischlerküchen zum fairen Preis

Vollkommen transparent mit Fingerspitzengefühl und individuell sorgen wir für die Verwirklichung der auf Ihre Immobilie und Wünsche zugeschnittenen Maßküchen- und Möbel, welche insbesondere durch attraktive Preise bei höchster Qualität punkten können. Gerne beraten wir auch Sie, bitte wenden Sie sich zur anschließenden Kontaktaufnahme an kueche@teamneunzehn.at

Passender Versicherungsschutz für Ihre Immobilie?

Sie haben eine Immobilie erworben oder angemietet und benötigen nun einen passenden Versicherungsschutz, welcher Sie im Schadensfall vor unerwarteten Kosten schützt? Wir können Ihnen ein unverbindliches und günstiges Angebot von einem unabhängigen Kooperationspartner zukommen lassen. Die Zusendung und Kommunikation erfolgt direkt mit unserem Kooperationspartner, die Unterlagen zu Ihrer Wohnung erhält der Kooperationspartner jedoch im Vorfeld bereits direkt von uns (Ihr Zeitaufwand soll ja schlussendlich möglichst geringgehalten werden). Bei Interesse freuen wir uns auf Ihre Kontaktaufnahme unter versicherung@teamneunzehn.at

Infrastruktur / Entfernungen

Gesundheit
Arzt <1.725m
Apotheke <1.425m
Klinik <2.425m
Krankenhaus <2.650m

Kinder & Schulen
Schule <1.025m
Kindergarten <1.425m
Universität <2.775m
Höhere Schule <1.550m

Nahversorgung
Supermarkt <1.225m
Bäckerei <1.400m
Einkaufszentrum <1.750m

Sonstige
Bank <1.400m
Geldautomat <1.425m
Polizei <600m
Post <1.400m

Verkehr
Bus <150m
Bahnhof <725m
Autobahnanschluss <1.225m
Flughafen <4.250m

Angaben Entfernung Luftlinie / Quelle: OpenStreetMap
Beschreibung weiterlesen

Lage und Verkehrsanbindung

Linzer Straße, Gutenbergstraße, Alpenbahnhof, Kaiserwald, Eisbergpark

Linzer Straße, Gutenbergstraße, Alpenbahnhof, Kaiserwald

Energieeffizienz

HWB:
68 kWh/(m²*a)
HWB Klasse:
C
fGEE:
1,54
fGEE Klasse:
C
Energieausweisart:
Energiebedarfs-ausweis

Grundriss

Lageplan

3100 St. Pölten | Sankt Pölten (Stadt)

Lade...
Katharina Kurek

Katharina Kurek
Immobilienvermittlung

teamneunzehn-Gruppe

Lade...

Fotomix

Bild 1 Bild 2 Bild 3 Bild 4 Bild 5 Bild 6 Bild 7 Bild 8 Bild 9 Bild 10 Bild 11 Bild 12 Bild 13 Bild 14 Bild 15 Bild 16 Bild 17 Bild 18 Bild 19 Bild 20 Bild 21