NEU - UNBEFRISTETES JUWEL - SCHWERTGASSE

Büro zur Miete in 1010 Wien - Gesamtmiete: 2.654,27 € / Objektnummer: 141/78366
Ausstattung: Fahrstuhl Etagenheizung
20231004_100207 (1)
20231004_095946
20231004_100006
20231004_100149
20231004_100032
20231004_100118
20231004_100239
20231004_100310
20231004_100024
20231004_100422
20231004_100530
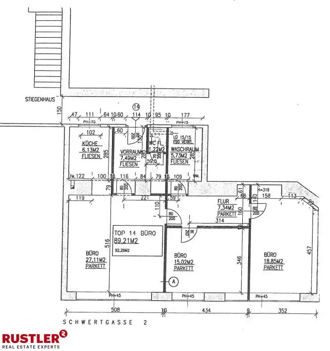
Grundriss

Preisinformationen

Gesamtmiete:
2.654,27 € / Monat
Gesamtmiete (exkl. USt.):
2.211,89 € / Monat
Nettomiete:
1.962,62 € / Monat
Betriebskosten netto:
249,27 € / Monat
Umsatzsteuer:
442,38 €
Miete/m² netto:
22,00 €
Kaution:
7.950,00 €
Vermittlungsprovision:
Ja
Provision:
3 bmm

Fakten

Objektnummer:
141/78366
Objekttyp:
Büro
Nutzfläche:
89,21 m²
Zimmer:
3
Baujahr:
1899
Verfügbarkeit:
Verfügbar

Beschreibung

Dieses Büro in der Schwertgasse 2 bietet nicht nur eine repräsentative Arbeitsumgebung, sondern auch den einzigartigen Charme eines Wiener Altbauhauses. Die großzügige Raumaufteilung, die stilvolle Ausstattung und die erstklassige Lage machen diese Immobilie zu einer herausragenden Option für Ihr Unternehmen.

Beim Betreten des Hauses werden Sie von beeindruckendem Stuck im Stiegenhaus begrüßt, der die Geschichte und Eleganz dieses Ortes unterstreicht.

Die Bürofläche ist mit Fischgrätparkett versehen, die hohen Decken und die großzügigen, fast Bodentiefen Fenster schaffen eine helle und inspirierende Arbeitsumgebung.

Der geräumige Eingangsbereich bietet eine separate Toilette und führt in ein imposantes Zimmer, das als Hauptarbeitsbereich oder ähnliches genutzt werden kann. Eine offene Küche, angrenzend an diesen Raum, ermöglicht eine komfortable Versorgung Ihrer Mitarbeiter und Kunden.
Vom hier aus gelangen Sie über einen Flur zu zwei weiteren Zimmern, die flexibel als Einzelbüros oder Meetingräume genutzt werden können.
Das Badezimmer ist mit einer eleganten Wanne ausgestattet, Handtuchwärmer und Waschbecken ausgestattet.

LAGE:
Die Schwertgasse 2 liegt im Herzen von Wien, im renommierten 1. Bezirk. Diese Lage ist für Unternehmen besonders attraktiv, da sie sich in unmittelbarer Nähe zu wichtigen Regierungsgebäuden, Banken, kulturellen Sehenswürdigkeiten und erstklassigen Restaurants befindet. Die ausgezeichnete Anbindung an den öffentlichen Nahverkehr ermöglicht es Ihren Mitarbeitern und Kunden, die Bürofläche bequem zu erreichen.

Nutzen Sie diese Gelegenheit, um in einem historischen und dennoch modernen Arbeitsumfeld erfolgreich zu sein.

Für weitere Informationen und Besichtigungstermine stehen wir Ihnen gerne zur Verfügung.
Beschreibung weiterlesen

Energieeffizienz

HWB:
104,6 kWh/(m²*a)
HWB Klasse:
D
fGEE:
2,19
fGEE Klasse:
D

Grundriss

Lena Doll

Lena Doll

Rustler Immobilientreuhand

Anrufen
Lade...

Fotomix

20231004_100207 (1) 20231004_095946 20231004_100006 20231004_100149 20231004_100032 20231004_100118 20231004_100239 20231004_100310 20231004_100024 20231004_100422 20231004_100530