NEU - UNGARGASSE – Attraktive Gewerbefläche mit vielfältigen Nutzungsmöglichkeiten

Immobilie zur Miete in 1030 Wien / Objektnummer: 6653/893
Ausstattung: Boden Klimaanlage Etagenheizung

Preisinformationen

Gesamtmiete (exkl. USt.):
1.968,88 € / Monat
Betriebskosten netto:
552,75 € / Monat
Umsatzsteuer:
393,78 €
Kaution:
3 Bruttomonatsmieten
Vermittlungsprovision:
Ja
Provision:
3 Bruttomonatsmieten zzgl. 20% USt.

Fakten

Objektnummer:
6653/893
Nutzfläche:
141,63 m²
Gesamtfläche:
141,63 m²
Zimmer:
5
Toilette:
2
Baujahr:
1954
Neubau:
Ja
Verfügbarkeit:
Verfügbar

Beschreibung

Zur Vermietung gelangt dieses rund 142 m² große Geschäftslokal, Büro oder Praxis in ansprechender Lage in der Ungargasse.
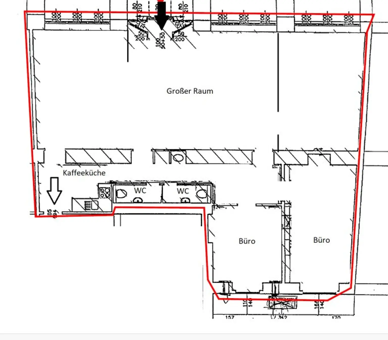
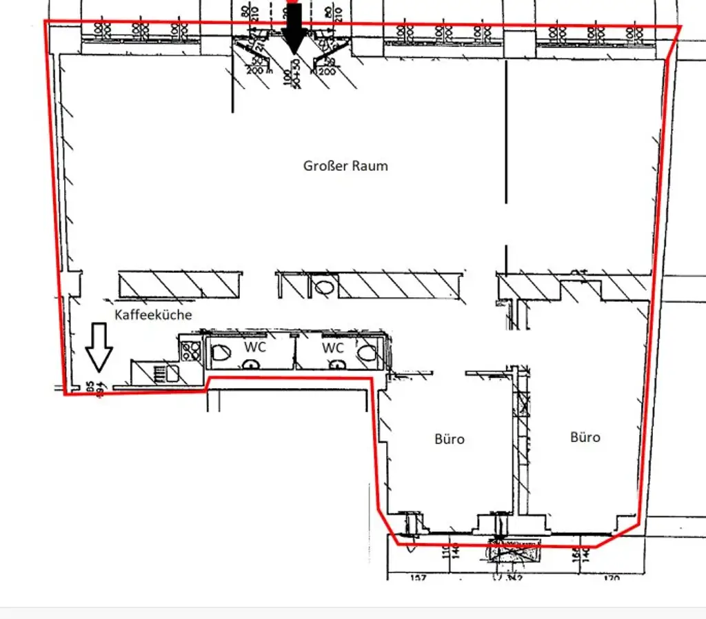
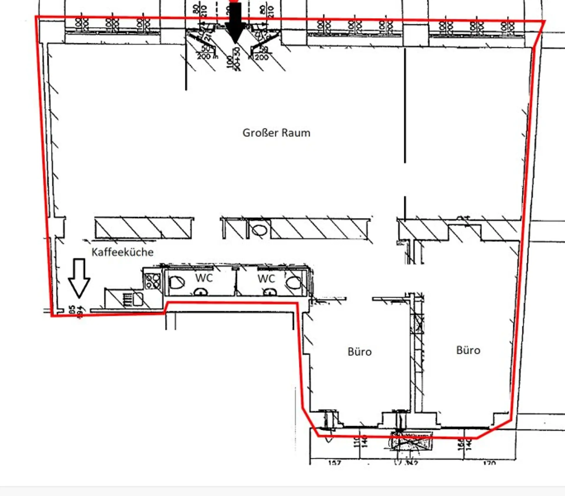
Das Objekt verfügt über einen großzügigen vorderen Bereich mit einer klimatisierten Fläche von etwa 80 m², der durch eine Glaswand bzw. ein weiteres Glasschiebemodul flexibel gestaltet werden kann. Dadurch besteht die Möglichkeit, den Raum bei Bedarf in bis zu drei separate Einheiten zu unterteilen, was eine vielseitige Nutzung ermöglicht.
Im hinteren Bereich befinden sich zwei weitere getrennte Räume sowie 2 separate Toiletten und eine kleine Teeküche. Zusätzlich bietet ein Hinterausgang direkten Zugang zum Innenhof.

Dank der durchdachten Raumaufteilung eignet sich das Objekt ideal für unterschiedliche Nutzungsarten, sei es als Einzelhandelsfläche, Büro oder Praxis, und bietet somit ein hohes Maß an Flexibilität.

Aufteilung:
- Eingangsbereich
- Großer Raum (teilbar in 3 Räumer)
- 2 hofseitige ausgerichtete Räume
- 2 getrennte Toiletten
- Kaffeeküche

Der Vermittler ist als Doppelmakler tätig.

Infrastruktur / Entfernungen

Gesundheit
Arzt <500m
Apotheke <500m
Klinik <500m
Krankenhaus <500m

Kinder & Schulen
Schule <500m
Kindergarten <500m
Universität <500m
Höhere Schule <1.000m

Nahversorgung
Supermarkt <500m
Bäckerei <500m
Einkaufszentrum <500m

Sonstige
Geldautomat <500m
Bank <500m
Post <500m
Polizei <1.000m

Verkehr
Bus <500m
U-Bahn <500m
Straßenbahn <500m
Bahnhof <500m
Autobahnanschluss <2.500m

Angaben Entfernung Luftlinie / Quelle: OpenStreetMap
Beschreibung weiterlesen

Energieeffizienz

HWB:
118 kWh/(m²*a)
HWB Klasse:
D
fGEE:
2,2
fGEE Klasse:
D
Energieausweisart:
Energiebedarfs-ausweis
Gültig bis:
15.04.2033

Grundriss

Lageplan

1030 Wien | Wien 3., Landstraße

Lade...
Laurenz Schnitzer

Laurenz Schnitzer
Geschäftsführender Gesellschafter

CONFIDO Immobilien GmbH

Lade...

Fotomix

Großer Raum Großer Raum Großer Raum Raum 1 Raum 3 Raum 3 Eingangsbereich hofseitiger Raum 1 hofseitiger Raum 1 Flur hofseitiger Raum hofseitiger Raum Flur Flur