NEU - UNI NUR "EINEN SCHRITT" ENTFERNT! Exklusive Stadtwohnung mit neu saniertem Bad!

Wohnung zur Miete in 8010 Graz - Gesamtmiete: 699,09 € / Objektnummer: 296178
Ausstattung: Boden Fahrstuhl Bad Kabel/Satelliten-TV Fernwärme

Preisinformationen

Gesamtmiete:
699,09 € / Monat
Betriebskosten netto:
144,59 € / Monat
Heizkosten netto:
63,37 €
Umsatzsteuer:
14,46 €
Kaution:
2.100,00 €
Provision:
Gemäß Erstauftraggeberprinzip bezahlt der Abgeber die Provision.

Fakten

Objektnummer:
296178
Objekttyp:
Wohnung
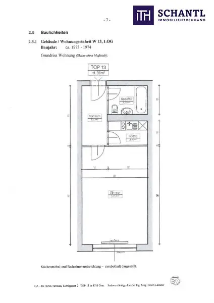
Wohnfläche:
39 m²
Zimmer:
1
Badezimmer:
1
Stockwerk:
1
Neubau:
Ja
Zustand:
Vollsaniert
Verfügbarkeit:
Verfügbar

Beschreibung

UNI NUR "EINEN SCHRITT" ENTFERNT! EXKLUSIVE STADTWOHNUNG MIT NEU SANIERTEM BAD!

Diese Wohnung ist eine seltene Gelegenheit in universitätsnaher Bestlage: ein ruhiger, heller Rückzugsort mit der Leichtigkeit kurzer Wege – ideal, um Studium, Arbeit und Privatleben elegant zu vereinen. Das Raumgefühl ist klar strukturiert, die Materialien wirken wertig, und das kürzlich vollständig sanierte Badezimmer setzt einen modernen, zeitlosen Akzent.
Bezug ab 01.07., Besichtigungen ab sofort – für alle, die ihren nächsten Schritt geplant und stilvoll gehen möchten.

-------------

5 HIGHLIGHTS

*
Sensationelle Universitätsnähe
Wenige Schritte zum Campus – effizient, komfortabel, alltagstauglich.

*
Saniertes Badezimmer in Premium‑Anmutung
Zeitgemäße Ausstattung, klare Linien, angenehme Haptik.

*
Licht & Ruhe
Freundlich geschnittene Wohnung mit natürlichem Tageslicht für Fokus und Erholung.

*
Optionales Möbelpaket (fast neuwertig)
Stilvoll abgestimmt, sofort startklar – ideal für einen entspannten Einzug.

*
Planungssicherheit
Besichtigung sofort, Bezug ab 01.07. – perfekt für Semester‑ oder Jobbeginn.

-------------

10 FAKTEN

* Bezug: 01.07.
* Besichtigungen: ab sofort möglich
* Lage: unmittelbare Nähe zur Universität; Bibliothek, Hörsäle, ÖPNV in kurzer Distanz
* Bad: komplett saniert, modern und pflegeleicht
* Grundriss: klare Zonierung für Wohnen, Lernen/Arbeiten und Ruhe
* Ambiente: hell, ruhig, wertig im Eindruck
* Möbelpaket (optional, € 1.700, fast neuwertig): Waschmaschine; Bett inkl. Lattenrost & Matratze; Tisch + 4 Sessel; Trennwand inkl. 4 Körbe; Ecksofa; Sideboard inkl. 4 Körbe; Lampe
* Einzugskomfort: auf Wunsch direkt nutzbar – ohne zusätzlichen Aufwand
* Umfeld: Nahversorgung, Gastronomie, Freizeit & Grünflächen fußläufig
* Zielgruppe: besonders attraktiv für Studierende & Young Professionals, zugleich passend für alle, die zentral und hochwertig wohnen möchten

WORAUF NOCH WARTEN?

Vereinbaren Sie noch heute eine Besichtigung oder eine persönliche Beratung mit uns!

Sie wollen Ihre Immobilie verkaufen? Dann sind Sie bei uns goldrichtig!
Wir sind gerne für Sie da und unterstützen Sie unverbindlich bei der Bewertung Ihrer Immobilie. Mit viel Sorgfalt stellen wir Ihnen alle wichtigen Informationen und Unterlagen zusammen, damit Sie die besten Entscheidungen treffen können.

In Kooperation mit unserer SFI Vermögenstreuhand begleiten wir Sie bei der Verwirklichung Ihres Traumobjekts und unterstützen Sie beim nachhaltigen Vermögensaufbau. Mit unseren erfahrenen Experten sorgen wir dafür, dass Sie die besten Konditionen erhalten – damit Ihre Träume Wirklichkeit werden!

HTTP://WWW.SCHANTL-ITH.AT [http://www.schantl-ith.at] IN KOOPERATION MIT WWW.SFI-INVEST.COM  [http://sfi-invest.com]

_Die Angaben über das angebotene Objekt erfolgen mit der Sorgfalt eines ordentlichen Immobilienmaklers; für die Richtigkeit solcher Angaben, die auf Informationen der über das Objekt Verfügungsberechtigten beruhen, wird keine Gewähr geleistet!_

Hinweis gemäß Energieausweisvorlagegesetz: Ein Energieausweis wurde vom Eigentümer bzw. Verkäufer, nach unserer Aufklärung über die generell geltende Vorlagepflicht, sowie Aufforderung zu seiner Erstellung noch nicht vorgelegt. Daher gilt zumindest eine dem Alter und der Art des Gebäudes entsprechende Gesamtenergieeffizienz als vereinbart. Wir übernehmen keinerlei Gewähr oder Haftung für die tatsächliche Energieeffizienz der angebotenen Immobilie.

Wir weisen darauf hin, dass zwischen dem Vermittler und dem zu vermittelnden Dritten ein familiäres oder wirtschaftliches Naheverhältnis besteht.

Der Immobilienmakler erklärt, dass er – entgegen dem in der Immobilienwirtschaft üblichen Geschäftsgebrauch des Doppelmaklers – einseitig nur für den Vermieter tätig ist.

Infrastruktur / Entfernungen

Gesundheit
Arzt <250m
Apotheke <750m
Klinik <500m
Krankenhaus <1.000m

Kinder & Schulen
Schule <500m
Kindergarten <500m
Universität <250m
Höhere Schule <1.250m

Nahversorgung
Supermarkt <500m
Bäckerei <250m
Einkaufszentrum <1.500m

Sonstige
Geldautomat <250m
Bank <250m
Post <750m
Polizei <1.000m

Verkehr
Bus <250m
Straßenbahn <500m
Autobahnanschluss <5.500m
Bahnhof <1.500m

Angaben Entfernung Luftlinie / Quelle: OpenStreetMap
Beschreibung weiterlesen

Lage und Verkehrsanbindung

Die Wohnung in der Liebiggasse liegt in einer der gefragtesten Wohnlagen von Graz, nur wenige Schritte von der Universität entfernt und umgeben von einem lebendigen, akademisch geprägten Umfeld. Die Straße selbst bietet eine außergewöhnlich ruhige Atmosphäre, die ideal ist für konzentriertes Lernen und entspanntes Wohnen – trotz ihrer zentralen Position im Herzen der Stadt. Cafés, Bibliothek, Hörsäle und die beliebtesten Treffpunkte des Viertels sind bequem zu Fuß erreichbar und machen den Alltag angenehm unkompliziert. Gleichzeitig sorgen Grünflächen, charmante Nebenstraßen und eine hervorragende Öffi-Anbindung für ein hohes Maß an Lebensqualität. Eine Lage, die durch ihre Mischung aus Urbanität, Komfort und Ruhe jeden Tag aufs Neue begeistert.

TU-Graz, KF-Uni Graz, Innenstadt, Uni-Viertel

Grundrisse

Lageplan

8010 Graz | Graz (Stadt)

Lade...
Nikolaus Kronabitter

Nikolaus Kronabitter
Immobilienvermittlung & Investments

Schantl ITH Immobilientreuhand GmbH

Lade...

Fotomix

Bild 1 Bild 2 Bild 3 Bild 4 Bild 5 Bild 6 Bild 7 Bild 8 Bild 9