NEU - UNIVIERTEL: sonnige 3er-WG-taugliche DG-Wohnung mit Gartenmitbenützung

Wohnung zur Miete in 8010 Graz - Gesamtmiete: 1.012,98 €

Preisinformationen

Gesamtmiete:
1.012,98 € / Monat
Vermittlungsprovision:
Ja

Fakten

Objekttyp:
Wohnung
Nutzfläche:
62 m²
Zimmer:
3
Neubau:
Ja
Verfügbarkeit:
Verfügbar

Beschreibung

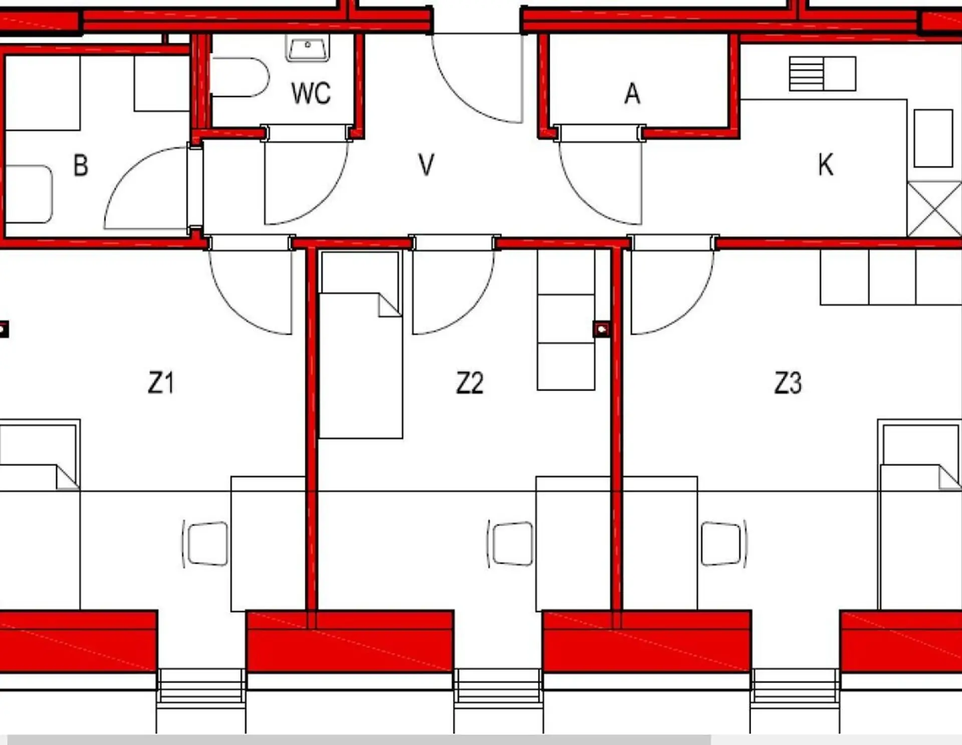
Diese schöne, helle 3-Zimmerwohnung  befindet sich nur wenige Gehminuten von der Karl-Franzens-Universität und dem Stadtpark entfernt im DG (keine Lift) und eignet sich aufgrund der 3 extra begehbaren Zimmer hervorragen…
Beschreibung weiterlesen

Popp Immobilien

Lade...

Fotomix

Bild 1 Bild 2 Bild 3 Bild 4 Bild 5