NEU - Urbaner Wohnkomfort in Parknähe – 2-Zimmer-Neubauwohnung im 3. Liftstock zur Miete inkl. Heizung

Wohnung zur Miete in 1100 Wien - Gesamtmiete: 1.010,02 € / Objektnummer: 01653
Ausstattung: Bad Fernwärme Zentralheizung

Preisinformationen

Gesamtmiete:
1.010,02 € / Monat
Nettomiete:
708,40 € / Monat
Betriebskosten netto:
160,16 € / Monat
Umsatzsteuer:
86,86 €
Kaution:
4.100,00 €

Fakten

Objektnummer:
01653
Objekttyp:
Wohnung
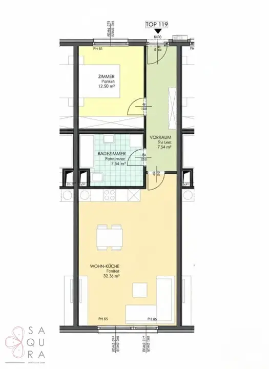
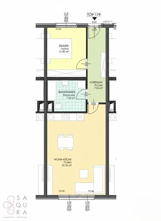
Nutzfläche:
61,6 m²
Zimmer:
2
Schlafzimmer:
1
Badezimmer:
1
Stockwerk:
3
Verfügbarkeit:
Verfügbar

Beschreibung

Urbaner Wohnkomfort in Parknähe – Stilvolle 2-Zimmer-Neubauwohnung im 3. Liftstock zur Miete

Licht, Qualität und perfekte Infrastruktur auf ca. 61,60 m²
Diese moderne 2-Zimmer-Wohnung befindet sich im 3. Liftstock eines gepflegten Neubaus und überzeugt durch hochwertige Ausstattung, eine durchdachte Raumaufteilung sowie eine ausgezeichnete Lage in unmittelbarer Nähe zum beliebten Waldmüllerpark.

Dank der erhöhten Lage genießt die Wohnung besonders angenehmes Tageslicht und eine ruhige Wohnatmosphäre. Zwei barrierefreie Lifte sorgen für komfortablen Zugang. Ideal geeignet für Singles oder Paare, die urbanes Wohnen mit Grünraumnähe verbinden möchten.
____________________

Wohnkomfort & Ausstattung

• Wohnfläche: ca. 61,60 m²
• 2 Zimmer
• 3. Liftstock
• Moderne Einbauküche
• Badezimmer mit Badewanne
• Eiche-Massivparkett in den Wohnräumen
• Feinsteinzeug in Bad & WC
• Kunststofffenster mit 3-fach-Isolierverglasung
• Fernwärme-Zentralheizung (Direktverrechnung über ISTA)
• Telefon- & Telekabelanschluss
• Gegensprechanlage
• Zustand: gepflegt
• Rollstuhlgerecht
• Personenaufzug vorhanden
Energiekennzahl: 24,0 kWh/m²a – sehr gute Energieeffizienz
____________________

Haus & Allgemeinbereiche

• Zwei barrierefreie Lifte
• Zugang über Fernkorngasse und Sonnleithnergasse
• Garage mit 15 Stellplätzen im Erdgeschoss (optional anmietbar, nach Verfügbarkeit)
• Fahrrad- und Kinderwagenräume
• Einlagerungsraum pro Wohnung im Kellergeschoss
____________________

Lage & Verkehr

Die unmittelbare Nähe zum Waldmüllerpark bietet eine ideale Kombination aus urbanem Leben und Erholung im Grünen.
• Geschäfte des täglichen Bedarfs fußläufig erreichbar
• Nähe zum Hauptbahnhof und neuem Einkaufszentrum
• Buslinie 14A direkt vor der Haustür
→ schnelle Verbindung zum Matzleinsdorfer Platz (S1, S2, S60, S80)
• Mit dem Auto in wenigen Minuten auf der A23
____________________

Mietkonditionen

• Hauptmietzins (netto): € 708,40
• Betriebskosten: € 160,16
• Umsatzsteuer: € 91,82
• Gesamtmiete (brutto): € 1.010,02 exklusive Strom- und Heizkosten
• Netto-Mietzins pro m²: € 11,50
• Mietdauer: 5 Jahre
• Kaution: € 4.100,00

Diese Wohnung bietet modernen Wohnkomfort, ausgezeichnete Energieeffizienz und eine hervorragende Infrastruktur – ideal für alle, die langfristig stilvoll und gut angebunden wohnen möchten.

Zusätzlich möchte ich darauf hinweisen, dass für die gegenständliche Wohnung klare Vergabekriterien seitens des Eigentümers gelten. Eine Anmietung ist ausschließlich für Personen möglich, die sich in einem aufrechten Dienstverhältnis befinden und dies durch Vorlage von Lohnzetteln der letzten drei Monate nachweisen können. Darüber hinaus darf die monatliche Miete 40 % des gesamten Haushaltsnettoeinkommens nicht überschreiten. Diese Voraussetzungen wurden im Zuge der Vermittlung entsprechend berücksichtigt.
Beschreibung weiterlesen

Lageplan

1100 Wien | Wien 10., Favoriten

Lade...
SAQURA Team

SAQURA Team

SAQURA Immobilien GmbH

Lade...

Fotomix

Bild 1 Bild 2 Bild 3 Bild 4 Bild 5 Bild 6 Bild 7 Bild 8 Bild 9 Bild 10 Bild 11 Bild 12 Bild 13