NEU - Urbanes Wohnen im beliebten Bezirk Lend - 3-Zimmer-Wohnung mit Balkon!

Wohnung zur Miete in 8020 Graz - Gesamtmiete: 1.199,84 € / Objektnummer: 1761471
Ausstattung: Boden Fahrstuhl Wohnküche / offene Küche Bad Kabel/Satelliten-TV Parkplatz Außenparkplatz Fahrradraum Abstellraum Zentralheizung Balkon

Preisinformationen

Gesamtmiete:
1.199,84 € / Monat
Betriebskosten netto:
212,94 € / Monat
Umsatzsteuer:
109,07 €
Kaution:
3 Bruttomonatsmieten
Provision:
Gemäß Erstauftraggeberprinzip bezahlt der Abgeber die Provision.

Fakten

Objektnummer:
1761471
Objekttyp:
Wohnung
Balkon:
1
Balkonfläche:
11,16 m²
Wohnfläche:
67,8 m²
Nutzfläche:
78,96 m²
Gesamtfläche:
78,96 m²
Zimmer:
3
Badezimmer:
1
Toilette:
1
Stockwerk:
3
Neubau:
Ja
Zustand:
Neuwertig
Verfügbarkeit:
Verfügbar

Beschreibung

Smarte Wohnungen in zentraler Lage im Bezirk Lend – Provisionsfrei Anmieten

In diesem wunderschönen Wohnbauprojekt können Sie sich Ihren Traum einer perfekt aufgeteilten 2-3 Zimmer Wohnung verwirklichen.

Die Wohnungen verfügen über eine großzügige Außenfläche. Trotz der zentralen Citylage genießen Sie auch hier Ihre Ruhe.

Bei Bedarf stehen Ihnen auch Stellplätze zu Verfügung, die Sie in der hauseigenen Garage mieten können.

 

Highlights:

-) Neubauwohnungen mit top Innenausstattung!

-) Fernwärme

-) Provisionsfreie Vermietung!

-) moderner Bau, Massivbauweise, funktionaler Grundriss

-) jede Wohnung verfügt über Freiflächen (= Balkon)

-) sehr gute Infrastruktur – zentrale Lage in Graz, viele Einkaufsmöglichkeiten, ideale Öffi-Anbindung

 

Ausstattungsstandard:

Bei der Realisierung des Neubaus wurde großer Wert auf eine hochwertige Ausstattung sowie langlebige Materialien gelegt:

* Moderne Einbauküche inklusive E-Herd, Backofen, Kühlschrank, Dunstabzug & Spüle
* Hochdämmende Vollwärmeschutzfassade (geringer HWB)
* Lift für barrierefreie Erreichbarkeit
* Fernwärme
* Parkettböden
* Fliesen in Nassräumen
* SAT-Anschluss vorhanden
* Eigenes Kellerabteil, Fahrradabstellplätze inklusive

 

Infrastruktur: 

Die Lage des Projektes ist großartig: Neben dem Grazer Hauptbahnhof haben Sie auch alle Einrichtungen des täglichen Bedarfs ganz in Ihrer Nähe.

Nahversorger, Gesundheitseinrichtungen und Freizeiteinrichtungen, erreichen Sie bequem in nur wenigen Minuten. Auch Schulen und Kinderbetreuungsstätten finden Sie in Ihrer Umgebung.

Verkehrsanbindung:

Die GVB-Straßenbahn-Linie 6 hat eine neue Streckenführung bekommen und fährt von St. Peter direkt bis zur Smart City. Ebenfalls fährt auch die Buslinie 85 welche nur zwei Busstationen von Hauptbahnhof Graz entfernt ist.

Ebenso erreichen Sie die Haltestelle Peter Tuner Gasse in wenigen Gehminuten von wo aus die Buslinie 62 (nach Puntigam bzw. Carnerigasse) fährt. Vom Grazer Hauptbahnhof aus haben Sie Anschluss an Bus- und Straßenbahnlinien in alle Richtungen.

 

Energieausweis:

Der Heizwärmebedarf beträgt ca. 38,16 kWh/m2a und entspricht der Klasse B.

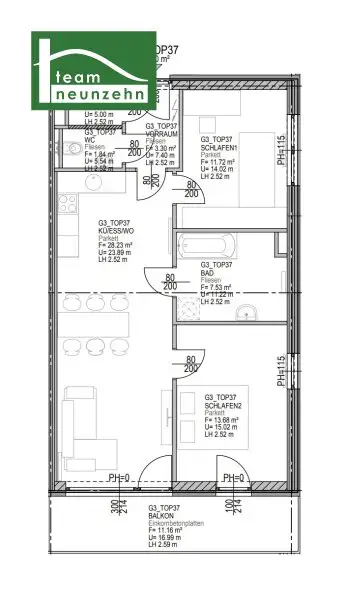
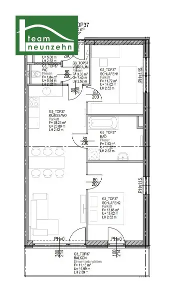
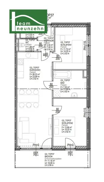
Wohnung Top 37

Die 3-Zimmer Wohnung mit ca. 67,80 m² Wohnfläche zzgl. 11,16 m² Freifläche liegt im 3. Obergeschoss und teilt sich wie folgt auf:

* Vorraum. ca. 3,30 m²
* Wohnküche. ca. 28,23 m²
* 1. Zimmer ca. 11,72 m²
* 2. Zimmer ca. 13,68 m²
* Abstellraum ca. 1,50 m²
* Bad ca. 7,53 m²
* WC ca. 1,84 m²
* Balkon ca. 11,16 m²

 

Wir weisen höflichst darauf hin, dass es sich bei den Fotos anbei um Musterfotos handelt. Die Wohnung wird gleich oder gleichwertig übergeben.

Einige Bilder des Inserats wurden zum Zweck der besseren Visualisierung digital mit KI möbliert. Die Wohnung wird unmöbliert übergeben. 

 

Kosten:

Monatliche Mietkosten € 1.199,85 (inkl. Betriebskosten & Umsatzsteuer)

Die monatlichen Kosten für Heizung, Wasser und Strom richten sich nach dem tatsächlichen Verbrauch und fallen gesondert an.

 

Nebenkosten:

Kaution: 3 Bruttomonatsmieten

Provision: provisionsfrei

Mietvertragserrichtungsgebühr: € 130,00 zzgl. 20% USt.

 

Infrastruktur: 

Die Lage des Projektes ist großartig: Neben dem Grazer Hauptbahnhof haben Sie auch alle Einrichtungen des täglichen Bedarfs ganz in Ihrer Nähe.

Nahversorger, Gesundheitseinrichtungen und Freizeiteinrichtungen, erreichen Sie bequem in nur wenigen Minuten. Auch Schulen und Kinderbetreuungsstätten finden Sie in Ihrer Umgebung.

Verkehrsanbindung:

Die GVB-Straßenbahn-Linie 6 hat eine neue Streckenführung bekommen und fährt von St. Peter direkt bis zur Smart City. Ebenfalls fährt auch die Buslinie 85 welche nur zwei Busstationen von Hauptbahnhof Graz entfernt ist.

Ebenso erreichen Sie die Haltestelle Peter Tuner Gasse in wenigen Gehminuten von wo aus die Buslinie 62 (nach Puntigam bzw. Carnerigasse) fährt. Vom Grazer Hauptbahnhof aus haben Sie Anschluss an Bus- und Straßenbahnlinien in alle Richtungen.

 

Energieausweis:

Der Heizwärmebedarf beträgt ca. 38,16 kWh/m2a und entspricht der Klasse B.

 

Gerne steht Ihnen Herr Peter Tawadrous für einen Besichtigungstermin oder Rückfragen unter 0676 852 243 536  zur Verfügung.

Wir weisen darauf hin, dass zwischen dem Vermittler und dem zu vermittelnden Dritten ein familiäres oder wirtschaftliches Naheverhältnis besteht.

Der Immobilienmakler erklärt, dass er – entgegen dem in der Immobilienwirtschaft üblichen Geschäftsgebrauch des Doppelmaklers – einseitig nur für den Vermieter tätig ist.

"Leben braucht Raum" * T19-RE Real Estate GmbH & Co KG * www.teamneunzehn.at [https://www.teamneunzehn.at]

Doppelmakler

Wir werden als Immobilienmakler kraft bestehenden Geschäftsgebrauchs als Doppelmakler tätig und haben sohin beide Seiten des Vertrages (Verkäufer-Käufer, Vermieter-Mieter) zu unterstützen.

Wirtschaftliches Naheverhältnis

Es wird bekannt gegeben, dass folgendes wirtschaftliches Naheverhältnis zwischen der teamneunzehn-Gruppe und dem Verkäufer/der vermietenden Partei besteht: ständige und dauerhafte Beauftragung mit der Vermittlung des bestehenden Immobilienportfolios

Haftungserklärung zum Inserat

Irrtum und Änderungen vorbehalten! Sofern es sich bei Bildern um Visualisierungen handelt, können Abänderungen zur tatsächlichen Ausführung resultieren. Wir weisen ausdrücklich darauf hin, dass das auf Fotos oder Visualisierungen ersichtliche Mobiliar bzw. Inventar nicht Bestandteil des inserierten Preises ist.

 

 

Infrastruktur / Entfernungen

Gesundheit
Arzt <300m
Apotheke <375m
Klinik <550m
Krankenhaus <575m

Kinder & Schulen
Schule <300m
Kindergarten <150m
Universität <850m
Höhere Schule <925m

Nahversorgung
Supermarkt <200m
Bäckerei <525m
Einkaufszentrum <1.100m

Sonstige
Geldautomat <400m
Bank <400m
Post <725m
Polizei <875m

Verkehr
Bus <50m
Straßenbahn <375m
Autobahnanschluss <4.825m
Bahnhof <925m

Angaben Entfernung Luftlinie / Quelle: OpenStreetMap
Beschreibung weiterlesen

Lage und Verkehrsanbindung

In der Umgebung: Bezirk Eggenberg, FH Joanneum, Auster Sport- und Wellness Bad

FH Joanneum, Auster Sport- und Wellnessbad, Bezirk Eggenberg

Energieeffizienz

HWB:
38,16 kWh/(m²*a)
HWB Klasse:
B
fGEE:
1,09
fGEE Klasse:
B
Energieausweisart:
Energiebedarfs-ausweis

Grundriss

Lageplan

8020 Graz | Graz (Stadt)

Lade...
Peter Tawadrous

Peter Tawadrous

teamneunzehn-Gruppe

Lade...

Fotomix

Bild 1 Bild 2 Bild 3 Bild 4 Bild 5 Bild 6 Bild 7 Bild 8 Bild 9 Bild 10 Bild 11 Bild 12 Bild 13 Bild 14 Bild 15 Bild 16 Bild 17 Bild 18 Bild 19 Bild 20 Bild 21 Bild 22 Bild 23