NEU - vermietete Neubauwohnung als Anlage in zentraler Lage in 2130 Mistelbach

Wohnung zum Kauf in 2130 Mistelbach - Kaufpreis: 314.800 € / Objektnummer: 00010110010003
Ausstattung: Barrierefrei Fernwärme Balkon
Foto Außenansicht
Parkplätze Innenhof
Stiegenhaus
Muster-Bad
Muster-WC
Zufahrt zu Innenhof mit Eingang
Kellerabteile
Top 6

Preisinformationen

Kaufpreis:
314.800 €
Preisinfos:
Ein Parkplatz kann um EUR 15.000,00 bei Verfügbarkeit dazu erworben werden.
Vermittlungsprovision:
Ja
Provision:
3% des Kaufpreises plus 20% USt.

Fakten

Objektnummer:
00010110010003
Objekttyp:
Wohnung
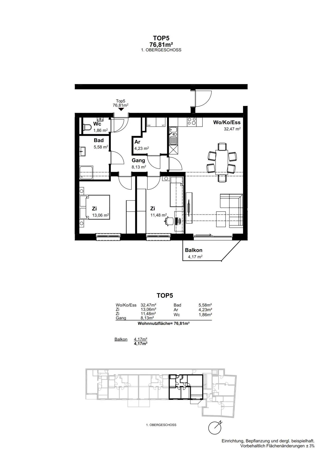
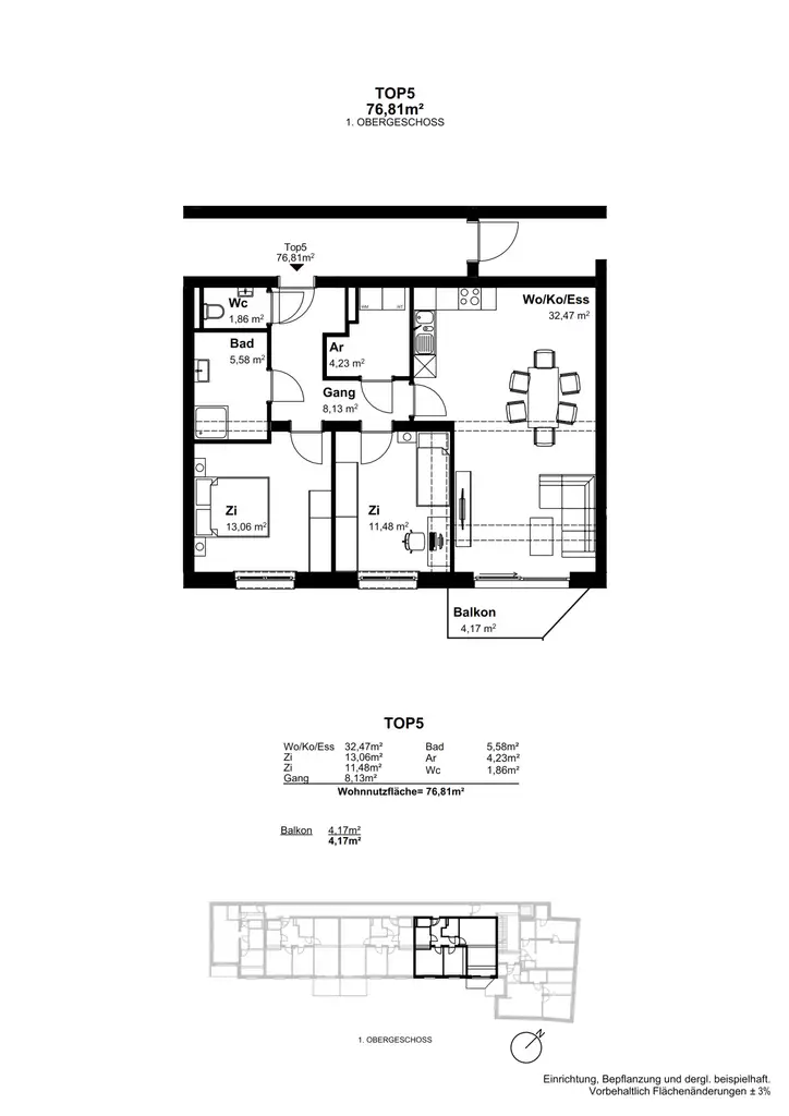
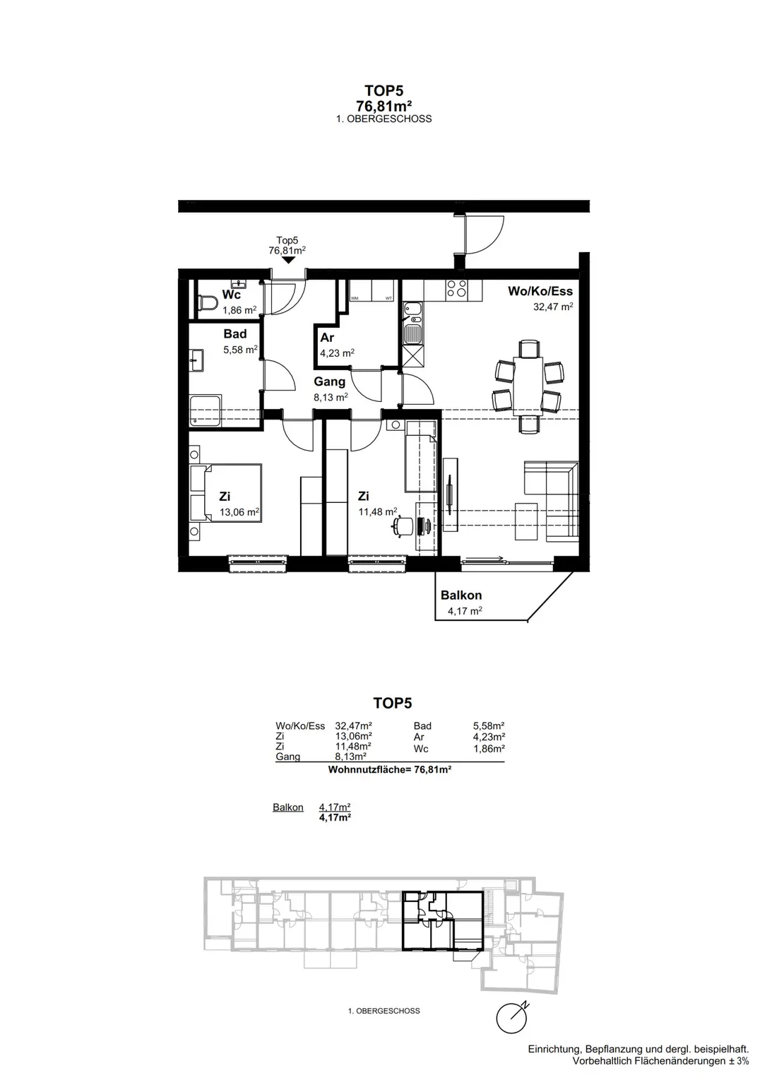
Balkon:
1
Balkonfläche:
4,17 m²
Wohnfläche:
76,81 m²
Zimmer:
3
Schlafzimmer:
2
Badezimmer:
1
Toilette:
1
Stockwerk:
1
Baujahr:
2023
Verfügbarkeit:
Verfügbar

Beschreibung

In der Mitschastraße 26 sind fünfzehn hochwertige, barrierefreie Wohnungen in moderner Massivbauweise entstanden. Auf einem ca. 1.376 m² großen Grundstück wurde ein Wohngebäude mit drei Geschossen (EG, 1. OG, DG) errichtet


Die Wohnungen bieten 18–76 m² Wohnnutzfläche und verfügen je nach Einheit über Balkon, Terrasse, Wohnterrasse oder Eigengarten. Jede Wohnung erhält ein eigenes Kellerabteil. Insgesamt stehen 24 PKW-Stellplätze sowie ein Kinderspielplatz im begrünten Außenbereich zur Verfügung.

Beschreibung weiterlesen

Lage und Verkehrsanbindung

LagebeschreibungDas Neubau-Wohnhausprojekt in der Mitschastraße 26, 2130 Mistelbach befindet sich in zentrumsnaher Stadtlage mit ausgezeichneter infrastruktureller Versorgung. Der Standort verbindet eine ruhige, angenehme Wohnumgebung mit der unmittelbaren Nähe zu allen wichtigen Einrichtungen des täglichen Bedarfs.Einkaufsmöglichkeiten, Supermärkte, Bäckereien, Apotheken sowie medizinische Versorgung befinden sich in fußläufiger Entfernung. Schulen, Kindergarten und weitere Betreuungseinrichtungen sind ebenfalls in wenigen Gehminuten erreichbar, was den Standort besonders attraktiv für Familien macht.Die Öffentliche Verkehrsanbindung ist sehr gut: Der Bahnhof Mistelbach bietet regelmäßige Verbindungen Richtung Wien, die A5-Nordautobahn ist in kurzer Fahrzeit erreichbar und ermöglicht eine rasche Anbindung an das Wiener Stadtgebiet. Busverbindungen befinden sich ebenfalls in unmittelbarer Nähe.Mistelbach überzeugt mit einem breiten Freizeit- und Kulturangebot, darunter Gastronomie, Naherholungsflächen sowie diverse Veranstaltungsorte. Die Kombination aus Stadtleben, guter Infrastruktur und naturnaher Umgebung schafft eine hohe Wohnqualität für unterschiedliche Zielgruppen.Die Mitschastraße selbst ist eine ruhige Seitenstraße, die dennoch durch die Nähe zum Zentrum sämtliche Vorteile einer sehr gut erschlossenen Lage bietet. Somit eignet sich das Projekt ideal für Eigennutzer wie auch für Anleger.

Energieeffizienz

HWB:
45,7 kWh/(m²*a)
HWB Klasse:
B
fGEE:
1,21
fGEE Klasse:
C
Energieausweis Ausstellungsdatum:
02.10.2023
Ausstellung:
ab dem 1.5.2014

Dokumente

Grundriss

Andreas Zach

Andreas Zach

Raiffeisen Immobilien Vermittlung Ges.m.b.H

Anrufen
Lade...

Fotomix

Foto Außenansicht Parkplätze Innenhof Stiegenhaus Muster-Bad Muster-WC Zufahrt zu Innenhof mit Eingang Kellerabteile