NEU - Viel Platz, viel Licht, viel Leben – Altbaujuwel nahe Rochusmarkt

Wohnung zur Miete in 1030 Wien - Gesamtmiete: 2.750,00 € / Objektnummer: 8209

Preisinformationen

Gesamtmiete:
2.750,00 € / Monat
Betriebskosten netto:
365,17 € / Monat
Kaution:
3 Bruttomonatsmieten
Provision:
Gemäß Erstauftraggeberprinzip bezahlt der Abgeber die Provision.

Fakten

Objektnummer:
8209
Objekttyp:
Wohnung
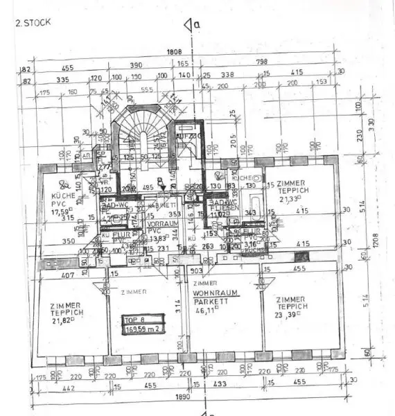
Wohnfläche:
170 m²
Zimmer:
4
Badezimmer:
2
Toilette:
2
Stockwerk:
2
Baujahr:
1895
Altbau:
Ja
Zustand:
Gepflegt
Verfügbarkeit:
Verfügbar

Beschreibung

Großzügigkeit, Licht und Wiener Altbaucharme auf einer ganzen Etage: Diese außergewöhnliche 170 m²-Wohnung im 2. Liftstock eines stilvollen Altbaus eröffnet Raum für unterschiedlichste Lebensentwürfe. Ob Familie, Wohngemeinschaft oder Arbeiten & Wohnen unter einem Dach, der flexible Grundriss bietet maximale Freiheit und Flexibilität. Hohe Decken, hochwertige Parkettböden und lichtdurchflutete Räume schaffen eine Atmosphäre, in der man nicht nur wohnt, sondern ankommt. Die zentrale Lage nahe Rochusmarkt verbindet ruhiges Wohnen mit urbaner Lebendigkeit.

 

Die wichtigsten Eckpunkte auf einen Blick:

* ca. 170 m² Wohnfläche
* Gesamte Etage im 2. Stock mit Lift
* Großzügig geschnitten und lichtdurchflutet
* Perfekt für Familien, WGs, Homeoffice oder kreative Köpfe
* Hauszentrale Gas Heizung

Raumaufteilung:

* Großer Vorraum mit ausreichend Platz für Garderobe & zusätzlichem Stauraum
* Großer beeindruckender Salon ca. 46 m², westseitig, viel Tageslicht & malerischer Blick auf die charmante Gasse
* Wohnküche ca. 18 m² mit Speisekammer, hofseitig mit Fenstern zum durchlüften
* 3 weitere großzügige Zimmer (ca. 21–23 m²) – flexibel nutzbar als Schlafzimmer, Homeoffice, Kinderzimmer oder Fitnesszimmer

* 2 Badezimmer

* kleines Bad mit Dusche, Handwaschbecken & WC
* großzügiges Tageslichtbad mit Wanne, Dusche, Doppelwaschbecken, WC & Waschmaschinen-Anschluss

 

Lage & Umgebung:

* 3. Bezirk, nähe Rochusmarkt
* U3 Kardinal-Nagl-Platz ca. 160 m
* Wien Mitte (U3/U4/S-Bahn/CAT) rasch erreichbar
* Prater, Belvedere, Stadtpark & Botanischer Garten einen kurzen Spaziergang entfernt
* Landstraßer Hauptstraße & „The Mall“ fußläufig

 

_Hinweis: Bei den ersten Abbildungen handelt es sich um KI-gestützte Visualisierungen, die eine mögliche Gestaltung darstellen und nicht den Ist-Zustand zeigen. _

 

Lassen Sie sich diese Gelegenheit nicht entgehen – vereinbaren Sie jetzt Ihren Besichtigungstermin und entdecken Sie Ihr neues Zuhause im Herzen des 3. Bezirks.

 

Beste Grüße,

_Diana Müller_

Tel.: +43 664 44 99 377

mueller@grabner-immobilien.at

www.grabner-immobilien.at [http://www.grabner-immobilien.at]

Der Immobilienmakler erklärt, dass er – entgegen dem in der Immobilienwirtschaft üblichen Geschäftsgebrauch des Doppelmaklers – einseitig nur für den Vermieter tätig ist.

Infrastruktur / Entfernungen

Gesundheit
Arzt <500m
Apotheke <500m
Klinik <500m
Krankenhaus <500m

Kinder & Schulen
Schule <500m
Kindergarten <500m
Universität <1.000m
Höhere Schule <500m

Nahversorgung
Supermarkt <500m
Bäckerei <500m
Einkaufszentrum <500m

Sonstige
Geldautomat <500m
Bank <500m
Post <500m
Polizei <500m

Verkehr
Bus <500m
U-Bahn <500m
Straßenbahn <1.000m
Bahnhof <500m
Autobahnanschluss <1.500m

Angaben Entfernung Luftlinie / Quelle: OpenStreetMap
Beschreibung weiterlesen

Energieeffizienz

HWB:
94,61 kWh/(m²*a)
HWB Klasse:
C
fGEE:
1,49
fGEE Klasse:
C
Energieausweisart:
Energiebedarfs-ausweis

Grundriss

Lageplan

1030 Wien | Wien 3., Landstraße

Lade...
Diana Müller

Diana Müller
Immobilientreuhand

Grabner Immobilien

Anrufen
Lade...

Fotomix

Bild 1 Bild 2 Bild 3 Bild 4 Bild 5 Bild 6 Bild 7 Bild 8 Bild 9 Bild 10 Bild 11 Bild 12 Bild 13 Bild 14 Bild 15 Bild 16 Bild 17