NEU - Vielseitiges Geschäftslokal mit Lagerfläche

Einzelhandel zur Miete in 9020 Klagenfurt am Wörthersee - Gesamtmiete: 2.699,50 € / Objektnummer: 2466
Ausstattung: Parkplatz Außenparkplatz
Aussenansicht
Verkaufsfläche
Ausstellungsfläche
Ausstellungsfläche
Büro 1_1
Büro
Ehemaliger Umkleideraum
Empfangsbereich
Männer WC
Oberer Bereich
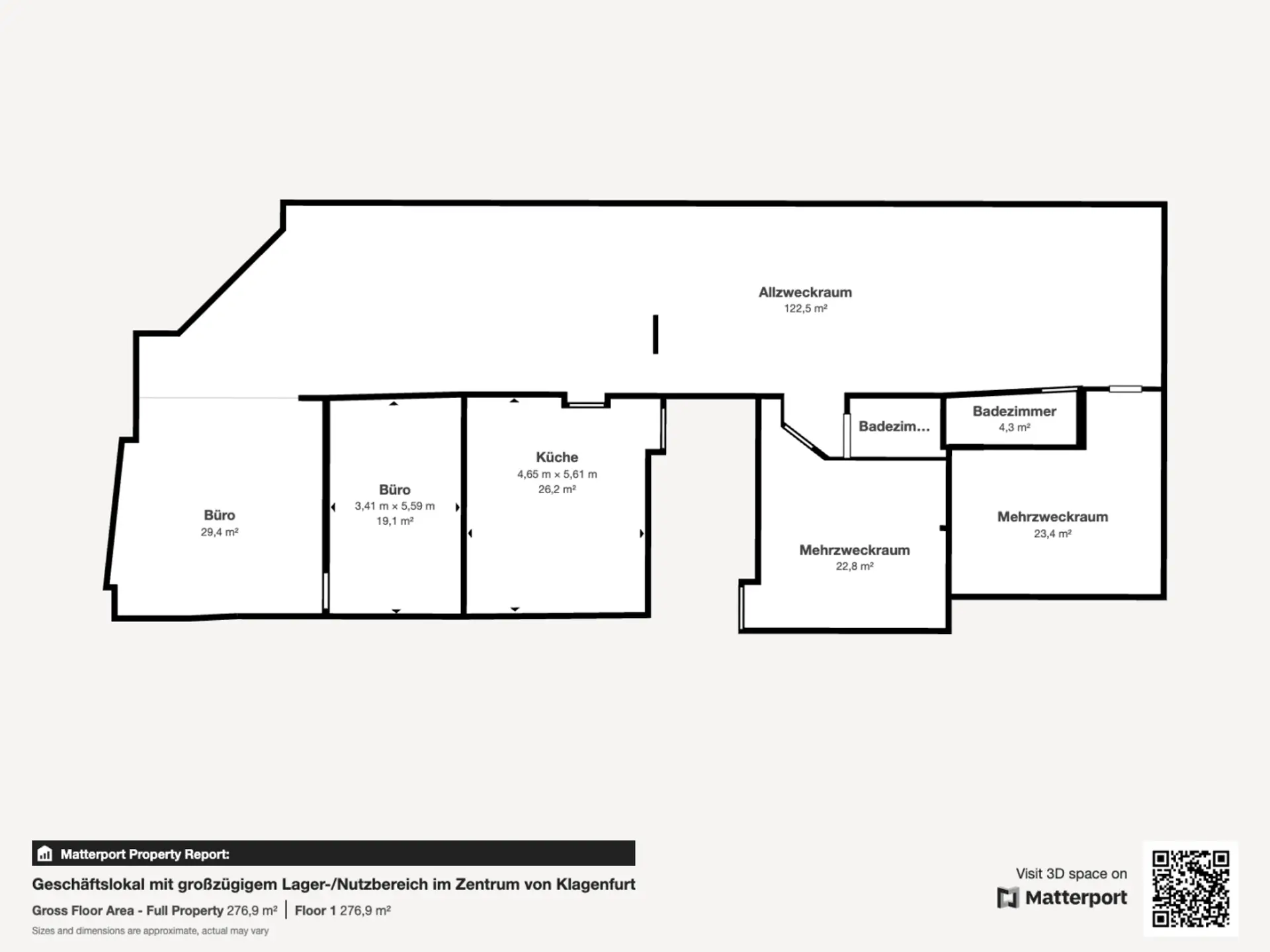
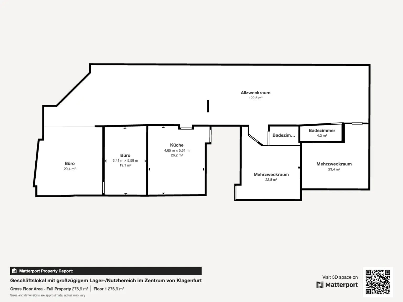
Skizze FMK Platz
Teeküche
Vorderer Bereich
Zweite Umkleide : Abstellraum

Preisinformationen

Gesamtmiete:
2.699,50 € / Monat
Gesamtmiete (exkl. USt.):
2.249,58 € / Monat
Betriebskosten netto:
663,39 € / Monat
Umsatzsteuer:
449,92 €

Fakten

Objektnummer:
2466
Objekttyp:
Einzelhandel
Nutzfläche:
330 m²
Toilette:
2
Verfügbarkeit:
Verfügbar

Beschreibung

Dieses vielseitige Gewerbeobjekt im Erdgeschoss am Feldmarschall-Conrad-Platz bietet mit einer Nutzfläche von circa 250 m² und zusätzlichen Lagerflächen von etwa 120 m² im Keller immense Möglichkeiten für eine Vielzahl von Geschäftskonzepten. Aktuell vermietet, stellt es zudem eine hervorragende Chance für neue Geschäftsstarts dar. Im Mietpreis ist ein Autoabstellplatz enthalten, was erheblich zum Komfort beiträgt.


Die Immobilie befindet sich in einer sehr zentralen und gut frequentierten Lage von Klagenfurt, ideal sowohl für Fußgänger als auch für Kunden, die mit dem Auto kommen. Die Nähe zu wichtigen Verkehrsadern sorgt für eine hohe Sichtbarkeit und eine kontinuierliche Kundenfrequenz, die den Standort besonders für Unternehmungen attraktiv macht, die auf Laufkundschaft setzen. Öffentliche Verkehrsmittel sind ebenfalls bequem erreichbar.


Das Gebäude präsentiert sich in einem ansprechenden Design, das sowohl funktional als auch einladend für Kunden ist. Die Erdgeschossflächen von etwa 250 m² sind lichtdurchflutet und vielseitig nutzbar, während die zusätzlichen Lagerflächen im Keller ausreichend Platz für Waren und Material bieten. Die flexible Raumgestaltung ermöglicht eine Anpassung an individuelle Geschäftsbedarfe und fördert effiziente Abläufe.


Die Räumlichkeiten bieten eine angenehme Arbeitsumgebung. Ein einladender Empfangsbereich kann Kunden und Geschäftspartner positiv empfangen. Die Integration von Lagerflächen im Keller stellt sicher, dass wertvoller Platz im Erdgeschoss optimal für Kunden und Präsentationsflächen genutzt werden kann. Der inkludierte Autostellplatz bietet zusätzlichen Komfort und sicheren Zugang zu den Geschäftsräumen.


Das Lokal ist derzeit vermietet, steht jedoch Interessenten offen, die hier einen neuen Geschäftsbetrieb etablieren möchten. Die zahlreichen Nutzungsmöglichkeiten sowie die zentrale Lage machen dieses Objekt zu einer wertvollen Grundlage für zukünftigen geschäftlichen Erfolg.


Der Makler ist als Doppelmakler tätig -es besteht ein wirtschaftliches Naheverhältnis
Provision: 2 -3 BMM, abhängig von der Dauer des Mietvertrages.
Angaben gemäß gesetzlichem Erfordernis:
Miete 1586,19 zzgl 20% USt.
Betriebskosten 663,39 zzgl 20% USt.
Umsatzsteuer 449,92
---------------------------------
Gesamtbetrag 2699,5
---------------------------------
Heizwärmebedarf: 76.0 kWh/(m²a)
Faktor Gesamtenergieeffizienz: 2.64
Beschreibung weiterlesen

Energieeffizienz

HWB:
76 kWh/(m²*a)
fGEE:
2,64
Energieausweisart:
Energiebedarfs-ausweis
Daniel Lobnik

Daniel Lobnik

RE/MAX Pro dl-ic GmbH

Anrufen
Lade...

Fotomix

Aussenansicht Verkaufsfläche Ausstellungsfläche Ausstellungsfläche Büro 1_1 Büro Ehemaliger Umkleideraum Empfangsbereich Männer WC Oberer Bereich Skizze FMK Platz Teeküche Vorderer Bereich Zweite Umkleide : Abstellraum