NEU - Villenetage mit 650 m² Eigengarten und Garage in Bestlage Wien-Mauer | ZELLMANN IMMOBILIEN

Wohnung zum Kauf in 1230 Wien - Kaufpreis: 850.000 € / Objektnummer: 25672
Ausstattung: Boden Bad Rollladen Kabel/Satelliten-TV Carport Parkplatz Außenparkplatz Abstellraum Etagenheizung Balkon Terrasse Garten

Preisinformationen

Kaufpreis:
850.000 €
Kaufpreis/m²
5.555,56 €
Betriebskosten netto:
82,42 € / Monat
Vermittlungsprovision:
Ja
Provision:
3% des Kaufpreises zzgl. 20% USt.

Fakten

Objektnummer:
25672
Objekttyp:
Wohnung
Balkon:
1
Terrasse:
3
Balkonfläche:
4 m²
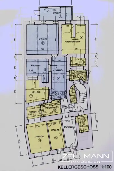
Keller Fläche:
62 m²
Wohnfläche:
134 m²
Nutzfläche:
340 m²
Grundstücksfläche:
689 m²
Gartenfläche:
649 m²
Zimmer:
5
Badezimmer:
1
Toilette:
1
Baujahr:
1911
Neubau:
Ja
Letzte Sanierung:
2022
Zustand:
Gepflegt
Verfügbarkeit:
Verfügbar

Beschreibung

DACHGESCHOSSRESIDENZ IN STILVOLLER ALTBAUVILLA MIT PARKÄHNLICHEM EIGENGARTEN IN BESTLAGE WIEN-MAUER

Eine Immobilie, die in dieser Form kaum zu finden ist: Inmitten einer prachtvollen Altbauvilla in einer der begehrtesten Wohnlagen Wiens präsentiert sich diese außergewöhnliche Dachgeschosswohnung als harmonische Verbindung aus klassischer Architektur, Großzügigkeit und naturnahem Lebensgefühl.

Bereits beim Betreten des Hauses entfaltet sich jene besondere Atmosphäre, die nur historische Villen mit gewachsener Substanz vermitteln können. Eleganz, Ruhe und ein gewisser Anspruch an das Wohnen prägen diesen ersten Eindruck – und setzen sich im gesamten Objekt konsequent fort.

-------------

QUICKREAD: ALLES AUF EINEN BLICK

* Dachgeschosswohnung in einer stilvollen Altbauvilla
* Wohnfläche ca. 133 m²
* Dachterrasse und Außenflächen mit rund 70 m²
* Eigengarten ca. 650 m² – parkähnlich angelegt
* Souterrain/Keller ca. 62 m²
* Garage im Haus sowie zusätzliche Stellfläche
* Gesamtnutzfläche über 340 m² zzgl. Garten
* Absolute Ruhelage in Wien-Mauer

-------------

WOHNEN MIT RAUM, LICHT UND CHARAKTER

Das Dachgeschoss überzeugt durch eine großzügige Raumstruktur und ein Wohngefühl, das Eleganz und Behaglichkeit vereint. Die Kombination aus klassischer Bauweise und wohnlicher Ausführung schafft eine Atmosphäre, die sowohl repräsentativ als auch angenehm zurückgezogen wirkt.

Besonders hervorzuheben ist die seltene Konstellation, dass sich das Dachgeschoss im ersten Stock befindet – ein Komfortmerkmal, das den Alltag deutlich erleichtert und die Immobilie zusätzlich aufwertet.

Die Räume präsentieren sich hell, offen und vielseitig nutzbar – ideal für anspruchsvolles Wohnen mit einem hohen Maß an Individualität.

-------------

AUSSENFLÄCHEN UND DACHTERRASSE – WOHNEN ÜBER DEN DÄCHERN WIENS

Die großzügige Dachterrasse erweitert den Wohnraum ins Freie und schafft einen besonderen Rückzugsort mit beeindruckendem Ausblick. Von hier eröffnet sich ein weiter Blick über die Dächer Wiens bis hin zu den grünen Ausläufern des Wienerwaldes.

Ob entspannte Stunden bei Sonnenuntergang oder stilvolle Abende mit Gästen – diese Außenfläche bietet einen Rahmen, der in dieser Form nur selten zu finden ist.

-------------

EIN GARTEN WIE EIN PRIVATER PARK

Der außergewöhnlich große Eigengarten ist zweifellos eines der prägendsten Highlights dieser Immobilie.

Mit rund 650 m² entfaltet sich hier eine grüne Oase, die eher an einen privaten Park als an einen klassischen Garten erinnert. Alte Bäume, gewachsene Strukturen und eine angenehme Abgeschiedenheit schaffen eine Atmosphäre, die Ruhe und Lebensqualität auf höchstem Niveau ermöglicht.

Zwei Gartenhäuser – darunter ein winterfest nutzbares Sommerhaus – eröffnen zusätzliche Möglichkeiten: ob als Gästebereich, Atelier oder persönlicher Rückzugsort.

Dieser Garten ist kein Zusatz, sondern ein eigenständiger Lebensraum – selten, wertvoll und in Wien nahezu einzigartig.

-------------

VOLLUNTERKELLERUNG MIT VIELSEITIGEM MEHRWERT

Das Souterrain erweitert die Nutzungsmöglichkeiten erheblich und bietet Raum für individuelle Konzepte – von Hobby- und Fitnessbereichen bis hin zu Lager- oder Wellnesslösungen.

In Kombination mit der integrierten Garage und den zusätzlichen Stellflächen entsteht ein rundum durchdachtes Gesamtpaket mit hohem Alltagskomfort.

-------------

LAGEQUALITÄT ZWISCHEN NATUR, TRADITION UND PERFEKTER ANBINDUNG

Wien-Mauer zählt zu den exklusivsten und gleichzeitig lebenswertesten Wohnlagen des 23. Bezirks. Geprägt von Villen, Weingärten und viel Grün bietet dieser Standort eine besondere Kombination aus Ruhe, Naturverbundenheit und urbaner Nähe.

Die unmittelbare Nähe zum Lainzer Tiergarten sowie zum Naherholungsgebiet rund um den Pappelteich eröffnet vielfältige Freizeitmöglichkeiten – von entspannten Spaziergängen bis hin zu sportlichen Aktivitäten.

Traditionelle Heurigenbetriebe, allen voran renommierte Adressen wie der Edlmoser, unterstreichen den charmanten und hochwertigen Charakter der Umgebung.

Nahversorger, Schulen und Einrichtungen des täglichen Bedarfs sind bequem erreichbar. Die öffentliche Anbindung erfolgt insbesondere über die Straßenbahnlinie 60 sowie Busverbindungen mit Anschluss an Schnellbahn und U-Bahn.

Diese Lage steht für nachhaltige Lebensqualität – ruhig, grün und dennoch hervorragend angebunden.

-------------

ZUSAMMENFASSUNG

Diese Immobilie vereint auf eindrucksvolle Weise die Vorzüge einer stilvollen Altbauvilla mit dem Komfort einer großzügigen Dachgeschosswohnung und der Seltenheit eines parkähnlichen Eigengartens.

Ein Wohnkonzept, das Raum, Ruhe und Exklusivität miteinander verbindet – in einer Lage, die zu den besten Adressen Wiens zählt.

Noch nichts gefunden? Wir informieren Sie über geeignete Immobilienangebote noch vor allen anderen.
Legen Sie jetzt Ihren individuellen Suchagenten unter folgendem Link an. Wir schicken Ihnen passende Immobilien exklusiv vorab zu. 

-> Suchagent anlegen [https://zellmann-immobilien.service.immo/registrieren/de]

Der Vermittler ist als Doppelmakler tätig.

-------------

UNSER SERVICE – VERTRAUEN. SERVICE. QUALITÄT.

Bei ZELLMANN IMMOBILIEN legen wir größten Wert auf persönliche Beratung, Transparenz und Service auf höchstem Niveau. Jede Besichtigung ist unverbindlich und findet in entspannter Atmosphäre statt. Nach Vertragsabschluss übernehmen wir selbstverständlich sämtliche Formalitäten – von der Übergabedokumentation bis zur Abstimmung mit Hausverwaltung und Energieversorgern. Ihr Anliegen ist bei uns in den besten Händen – auch nach Vertragsabschluss.

RECHTLICHE HINWEISE

Bitte überprüfen Sie nach Übermittlung Ihrer Anfrage auch Ihren SPAM- bzw. WERBE-Ordner, da automatisierte E-Mail-Zustellungen technisch bedingt fallweise dort eingeordnet werden können. Wir bearbeiten Anfragen üblicherweise innerhalb weniger Stunden, auch an Wochenenden. Die Bekanntgabe einer Telefonnummer erfolgt freiwillig; diese kann ausschließlich zur ergänzenden Verständigung (z. B. SMS-Benachrichtigung über die Exposé-Übermittlung) verwendet werden. Dieses Angebot ist unverbindlich und freibleibend. Alle Angaben erfolgen auf Basis von Informationen des Eigentümers und vorliegenden Unterlagen; eine Haftung für Richtigkeit, Vollständigkeit und Aktualität wird nicht übernommen. Änderungen, Irrtümer, Zwischenverkauf sowie Abweichungen bleiben vorbehalten. Flächenangaben sind ca.-Werte. Das Exposé stellt kein verbindliches Angebot dar. Im Erfolgsfall beträgt die Käuferprovision 3 % des Kaufpreises zzgl. 20 % USt gemäß §§ 6 ff MaklerG und Immobilienmaklerverordnung, BGBl. 262/1996 idgF. Bei Mietobjekten gilt das gesetzliche Bestellerprinzip (§ 17a MaklerG): Provision ist von jener Partei zu tragen, die den Makler zuerst beauftragt hat; für Wohnungssuchende fällt grundsätzlich keine Provision an.

Infrastruktur / Entfernungen

Gesundheit
Arzt <500m
Apotheke <1.000m
Klinik <1.500m
Krankenhaus <2.000m

Kinder & Schulen
Schule <1.000m
Kindergarten <1.000m
Universität <4.500m
Höhere Schule <6.500m

Nahversorgung
Supermarkt <500m
Bäckerei <1.000m
Einkaufszentrum <1.500m

Sonstige
Geldautomat <1.000m
Bank <1.000m
Post <1.000m
Polizei <1.500m

Verkehr
Bus <500m
U-Bahn <3.500m
Straßenbahn <500m
Bahnhof <2.000m
Autobahnanschluss <4.000m

Angaben Entfernung Luftlinie / Quelle: OpenStreetMap
Beschreibung weiterlesen

Energieeffizienz

HWB:
94 kWh/(m²*a)
HWB Klasse:
C
fGEE:
1,38
fGEE Klasse:
C
Energieausweisart:
Energiebedarfs-ausweis
Gültig bis:
03.10.2025

Grundrisse

Lageplan

1230 Wien | Wien 23., Liesing

Lade...
Christian Zellmann

Christian Zellmann
geschäftsführender Gesellschafter

ZELLMANN IMMOBILIEN GmbH | Vertrauen. Service. Qualität.

Lade...

Fotomix

Bild 1 Bild 2 Bild 3 Bild 4 Bild 5 Bild 6 Bild 7 Bild 8 Bild 9 Bild 10 Bild 11 Bild 12 Bild 13 Bild 14 Bild 15 Bild 16 Bild 17 Bild 18 Bild 19 Bild 20 Bild 21