NEU - Voll ausgestattetes 15 m² Büro nahe Hoher Markt – sofort starten im Herzen Wiens

Büro zur Miete in 1010 Wien - Gesamtmiete: 830,00 € / Objektnummer: 7W-010027
Ausstattung: Fahrstuhl Gäste-WC Klimaanlage Abstellraum Zentralheizung
Raum 1
Raum
Raum_
Küche
IMG_0565
Plan Raum 1 Vermietung

Preisinformationen

Gesamtmiete:
830,00 € / Monat
Nettomiete:
691,67 € / Monat
Umsatzsteuer:
138,33 €
Miete/m² netto:
47,70 €
Preisinfos:
830
Kaution:
3 Brutto Monatsmieten

Fakten

Objektnummer:
7W-010027
Objekttyp:
Büro
Bürofläche:
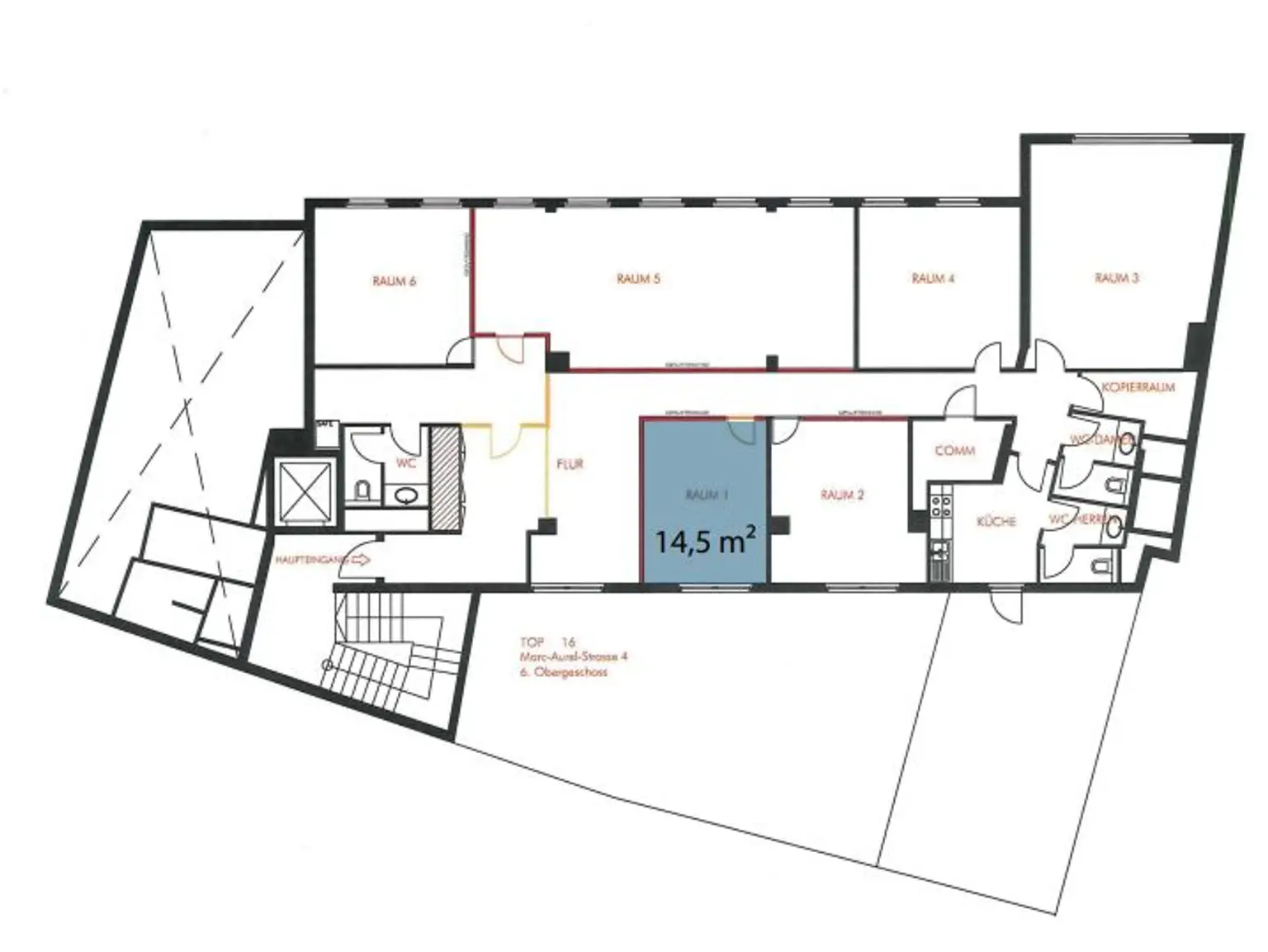
14,5 m²
Stockwerk:
6
Zustand:
Teilsaniert
Verfügbarkeit:
Verfügbar

Beschreibung

Dieses kompakte Büro im 6. Obergeschoss eines repräsentativen Bürohauses in der Marc-Aurel-Straße bietet ideale Voraussetzungen für Einzelunternehmer, Berater oder Start-ups, die einen professionellen Arbeitsplatz in Bestlage suchen. Auf rund 15 m² steht Ihnen ein vollständig ausgestatteter Arbeitsplatz zur Verfügung – inklusive Internet, Klimaanlage und Mitnutzung hochwertiger Gemeinschaftsflächen. Die zentrale Lage nahe Schwedenplatz garantiert exzellente Erreichbarkeit und ein urbanes Arbeitsumfeld. Unbefristeter Untermietvertrag mit kurzer Kündigungsfrist sorgt für maximale Flexibilität.
Beschreibung weiterlesen

Lage und Verkehrsanbindung

* Absolute Innenstadtlage in 1010 Wien, Marc-Aurel-Straße
* Nur ca. 300 m zum Schwedenplatz
* Hervorragende Anbindung an U-Bahn (U1, U4), Straßenbahn und Bus
* Zentrale Infrastruktur mit Gastronomie, Nahversorgung und Banken fußläufig erreichbar
* Repräsentatives Umfeld für Kundentermine im Herzen der Wiener Innenstadt

Grundriss

Lageplan

1010 Wien | Wien 1., Innere Stadt

Lade...
Vertrieb Wien

Vertrieb Wien

7D Bauträger GmbH

Lade...

Fotomix

Raum 1 Raum Raum_ Küche IMG_0565