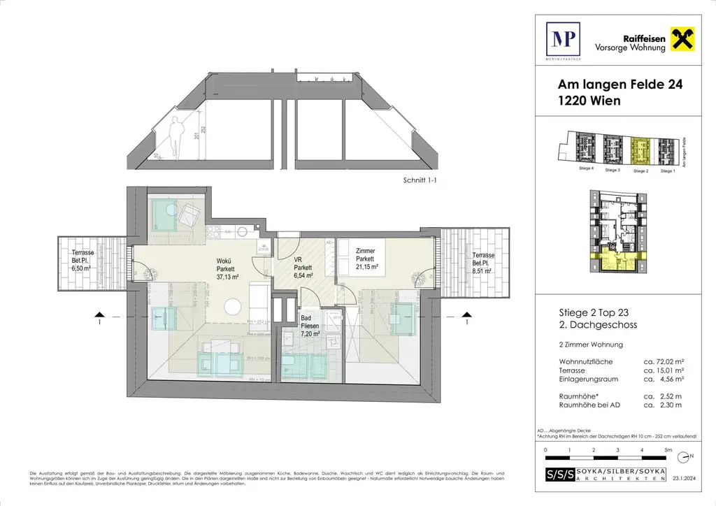
NEU - Vorsorgewohnung | Stadt. Land. Fluss. | 2 - Zimmer Anlagewohnung - Top 2/23

Wohnung zum Kauf in 1220 Wien - Kaufpreis: 457.900 € / Objektnummer: 00220000710135
Ausstattung: Fußbodenheizung
Wohnküche_Top_3.23
Schlafzimmer_Top_2.23
Badezimmer_Top_2.23
Balkon_2.23
IMG_2133
IMG_2135
IMG_2136
IMG_2134
IMG_2127
IMG_2128
IMG_2130
IMG_2131
IMG_2132
IMG_2137
IMG_2138
2.23_B A4_

Preisinformationen

Kaufpreis:
457.900 €
Kaufpreis/m²
5.688,00 €
Preisinfos:
zzgl. PKW-Stellplatz: 28.500€ netto

Fakten

Objektnummer:
00220000710135
Objekttyp:
Wohnung
Wohnfläche:
71,41 m²
Zimmer:
2
Stockwerk:
3
Verfügbarkeit:
Verfügbar

Beschreibung

Vorsorgewohnungen: Am Langen Felde 24, 1220 Wien



Entdecken Sie exklusive Vorsorgewohnungen im Herzen des 22. Wiener Gemeindebezirks, wo urbaner Flair auf idyllisches Grün trifft. Das Projekt "Am Langen Felde 24" bietet Anleger:innen eine einzigartige Gelegenheit, in hochwertigen Wohnraum zu investieren, der Stadtleben und Natur harmonisch vereint.



Perfekte Lage & Optimale Verkehrsanbindung:

Gelegen in einer Top Lage des 22. Wiener Gemeindebezirks, genießen die Bewohner die unmittelbare Nähe zur Alten Donau und die vielfältigen Freizeitmöglichkeiten der Lobau. Die ausgezeichnete öffentliche Verkehrsanbindung garantiert, mit der U-Bahn Linie U1, den Buslinien 22A und 24A sowie der Straßenbahnlinie 26, eine schnelle Erreichbarkeit des Stadtzentrums und des Donauzentrums innerhalb von nur 7 Minuten.



Nachhaltige Bauweise & Exzellente Ausstattung: Mit dem Ziel, ein ÖGNI Zertifikat in Gold oder höher zu erlangen, stehen Nachhaltigkeit und Energieeffizienz im Vordergrund. Die Wohnungen überzeugen durch eine hochwertige und langlebige Ausstattung, die moderne Anforderungen an komfortables Wohnen erfüllt.



Exklusive Vorsorgeinvestition:

Die Vorsorgewohnungen in dem Projekt Am Langen Felde 24, 1220 Wien sind eine ideale Investition in die Zukunft. Sie vereinen hohe Wohnqualität mit beständiger Wertsteigerung. Die Preise werden als Nettokaufpreise (zzgl. USt.) ausgewiesen, wobei zusätzliche Kosten wie 3,5% Grunderwerbsteuer, 1,1% Grundbucheintragungsgebühr und ein Treuhandentgelt inkl. Vertragserrichtungsentgelt von 1,5% vom Gesamtkaufpreis (zzgl. USt und Barauslagen) anfallen.



Vorzüge für Anleger:

Mit einer perfekten Balance aus Lage, Ausstattung und Nachhaltigkeit, bietet "Am Langen Felde 24" eine attraktive Investitionsmöglichkeit. Die Mischung aus Eigentums- und Vorsorgewohnungen zielt darauf ab, Wohnraum für ein breites Spektrum an Mietern zu schaffen.



Erleben Sie die Zukunft des Investierens in Wohnimmobilien mit "Am Langen Felde 24", wo Sicherheit, Qualität und Nachhaltigkeit an erster Stelle stehen. Sichern Sie sich jetzt Ihre Vorsorgewohnung in einem der aufstrebendsten Bezirke Wiens.


Beschreibung weiterlesen

Energieeffizienz

HWB:
25 kWh/(m²*a)
HWB Klasse:
A
fGEE:
0,71
fGEE Klasse:
A
Energieausweis Ausstellungsdatum:
31.03.2022
Ausstellung:
ab dem 1.5.2014

Grundriss

Raiffeisen Vorsorge Wohnung

Raiffeisen Vorsorge Wohnung

Raiffeisen Vorsorge Wohnung GmbH

Lade...

Fotomix

Wohnküche_Top_3.23 Schlafzimmer_Top_2.23 Badezimmer_Top_2.23 Balkon_2.23 IMG_2133 IMG_2135 IMG_2136 IMG_2134 IMG_2127 IMG_2128 IMG_2130 IMG_2131 IMG_2132 IMG_2137 IMG_2138