NEU - Vorsorgewohnung | Stadt. Land. Fluss. | 3 - Zimmer Anlagewohnung - Top 4/10

Wohnung zum Kauf in 1220 Wien - Kaufpreis: 481.800 € / Objektnummer: 00220000710102
Ausstattung: Fußbodenheizung Balkon Loggia
Wohnküche_3.11
Schlafzimmer_Top_3.11
Kinderzimmer_Top_3.11
Badezimmer_Top_3.11
Balkon_Top_3.11
IMG_2194
IMG_2195
IMG_2199
IMG_2200
IMG_2198
IMG_2192
IMG_2201
IMG_2202
IMG_2203
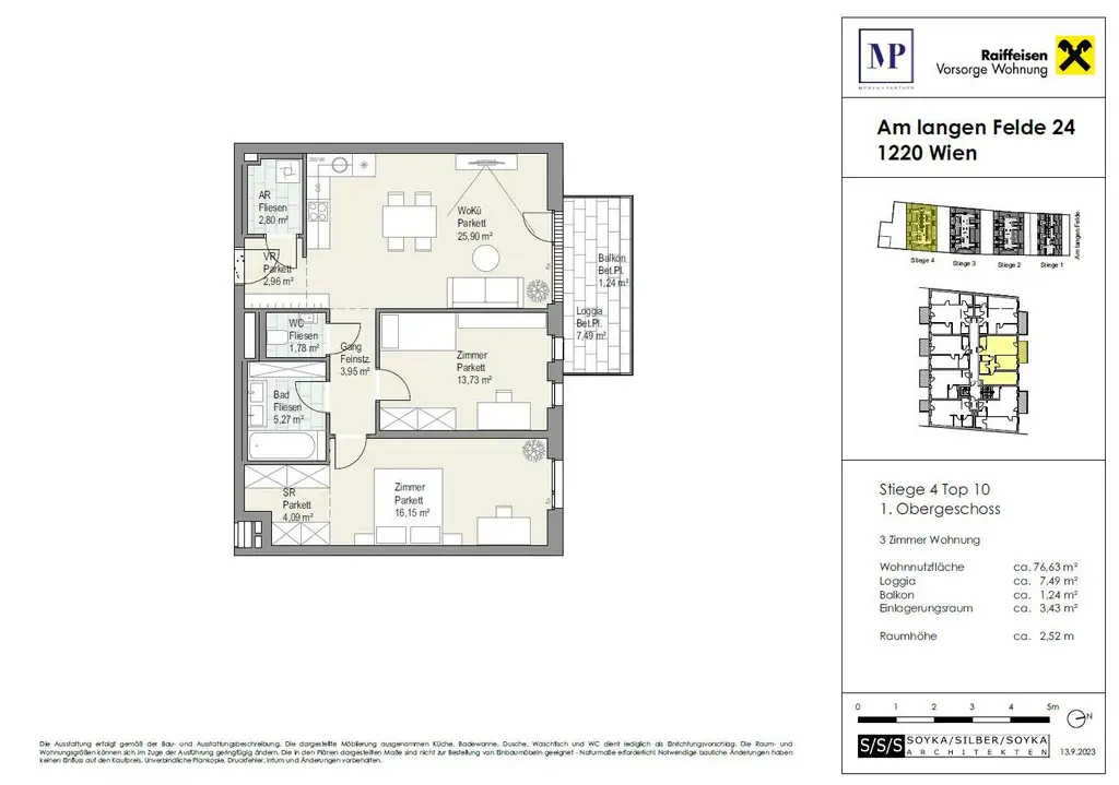
Top 10 Stiege 4

Preisinformationen

Kaufpreis:
481.800 €
Kaufpreis/m²
5.579,00 €
Preisinfos:
zzgl. PKW-Stellplatz: 28.500€ netto

Fakten

Objektnummer:
00220000710102
Objekttyp:
Wohnung
Balkon:
1
Loggia:
1
Balkonfläche:
1,24 m²
Wohnfläche:
76,63 m²
Loggia Fläche:
7,49 m²
Zimmer:
3
Stockwerk:
1
Verfügbarkeit:
Verfügbar

Beschreibung

Vorsorgewohnungen: Am Langen Felde 24, 1220 Wien



Entdecken Sie exklusive Vorsorgewohnungen im Herzen des 22. Wiener Gemeindebezirks, wo urbaner Flair auf idyllisches Grün trifft. Das Projekt "Am Langen Felde 24" bietet Anleger:innen eine einzigartige Gelegenheit, in hochwertigen Wohnraum zu investieren, der Stadtleben und Natur harmonisch vereint.



Perfekte Lage & Optimale Verkehrsanbindung:

Gelegen in einer Top Lage des 22. Wiener Gemeindebezirks, genießen die Bewohner die unmittelbare Nähe zur Alten Donau und die vielfältigen Freizeitmöglichkeiten der Lobau. Die ausgezeichnete öffentliche Verkehrsanbindung garantiert, mit der U-Bahn Linie U1, den Buslinien 22A und 24A sowie der Straßenbahnlinie 26, eine schnelle Erreichbarkeit des Stadtzentrums und des Donauzentrums innerhalb von nur 7 Minuten.



Nachhaltige Bauweise & Exzellente Ausstattung: Mit dem Ziel, ein ÖGNI Zertifikat in Gold oder höher zu erlangen, stehen Nachhaltigkeit und Energieeffizienz im Vordergrund. Die Wohnungen überzeugen durch eine hochwertige und langlebige Ausstattung, die moderne Anforderungen an komfortables Wohnen erfüllt.



Exklusive Vorsorgeinvestition:

Die Vorsorgewohnungen in dem Projekt Am Langen Felde 24, 1220 Wien sind eine ideale Investition in die Zukunft. Sie vereinen hohe Wohnqualität mit beständiger Wertsteigerung. Die Preise werden als Nettokaufpreise (zzgl. USt.) ausgewiesen, wobei zusätzliche Kosten wie 3,5% Grunderwerbsteuer, 1,1% Grundbucheintragungsgebühr und ein Treuhandentgelt inkl. Vertragserrichtungsentgelt von 1,5% vom Gesamtkaufpreis (zzgl. USt und Barauslagen) anfallen.



Vorzüge für Anleger:

Mit einer perfekten Balance aus Lage, Ausstattung und Nachhaltigkeit, bietet "Am Langen Felde 24" eine attraktive Investitionsmöglichkeit. Die Mischung aus Eigentums- und Vorsorgewohnungen zielt darauf ab, Wohnraum für ein breites Spektrum an Mietern zu schaffen.



Erleben Sie die Zukunft des Investierens in Wohnimmobilien mit "Am Langen Felde 24", wo Sicherheit, Qualität und Nachhaltigkeit an erster Stelle stehen. Sichern Sie sich jetzt Ihre Vorsorgewohnung in einem der aufstrebendsten Bezirke Wiens.


Beschreibung weiterlesen

Energieeffizienz

HWB:
25 kWh/(m²*a)
HWB Klasse:
A
fGEE:
0,71
fGEE Klasse:
A
Energieausweis Ausstellungsdatum:
31.03.2022
Ausstellung:
ab dem 1.5.2014

Grundriss

Raiffeisen Vorsorge Wohnung

Raiffeisen Vorsorge Wohnung

Raiffeisen Vorsorge Wohnung GmbH

Lade...

Fotomix

Wohnküche_3.11 Schlafzimmer_Top_3.11 Kinderzimmer_Top_3.11 Badezimmer_Top_3.11 Balkon_Top_3.11 IMG_2194 IMG_2195 IMG_2199 IMG_2200 IMG_2198 IMG_2192 IMG_2201 IMG_2202 IMG_2203