NEU - Was in Wien Preislich nur eine Wohnung ist, ist hier ein Haus – mit Garten, Terrasse und Grünblick!

Haus zum Kauf in 3021 Pressbaum - Kaufpreis: 550.000 € / Objektnummer: 28378

Preisinformationen

Kaufpreis:
550.000 €
Kaufpreis/m²
3.293,41 €

Fakten

Objektnummer:
28378
Objekttyp:
Haus
Balkon:
2
Terrasse:
2
Balkonfläche:
31 m²
Wohnfläche:
133,75 m²
Nutzfläche:
133,75 m²
Grundstücksfläche:
210 m²
Gartenfläche:
102,64 m²
Zimmer:
5
Badezimmer:
2
Toilette:
3
Baujahr:
2025
Neubau:
Ja
Zustand:
Erstbezug
Verfügbarkeit:
Verfügbar

Beschreibung

WAS IN WIEN PREISLICH NUR EINE WOHNUNG IST, IST HIER EIN HAUS – MIT GARTEN, TERRASSE, STELLPLÄTZEN UND GRÜNBLICK!

Haus statt Wohnung: ca. 130 m² Wohnfläche, großzügige private Freiflächen (Garten, Terrassen, Balkone), 2 KFZ‑Stellplätze (inkl. Carport) und freier Grün‑ und Waldblick – ab ca. € 540.000,- PROVISIONSFREI!

Fertig & planbar: Das Projekt umfasst vier Einfamilienhäuser, davon ist ein Haus bereits verkauft. Drei Häuser sind aktuell verfügbar. Fenster, Türen und alle Anschlüsse sind vorhanden – kein Rohbau, kein Baustellenrisiko.

Massiv & modern: Ziegelmassivbauweise im Neubaustandard, Luftwärmepumpe, Fußbodenheizung mit Kühlfunktion (Bodenkühlung), 3‑fach verglaste Fenster, 2 KFZ‑Stellplätze (inkl. Carport) sowie Vorbereitung für Photovoltaik, E‑Auto‑Ladestation und elektrische Außenbeschattung.

Familienfreundliche Grünlage: Gewachsene Kleingemeinde mit hoher Sicherheit, Schulen und Kindergärten in der Nähe sowie Wald‑ und Erholungsgebiete direkt vor der Haustür.

Preis‑Leistung: Gewichteter Durchschnittspreis von ca. 3.200–3.600 €/m² – deutlich günstiger als vergleichbarer Neubau in Wien, bei mehr Raum und Freifläche.

Öffentliche Anbindung: S‑Bahn in ca. 2 Minuten erreichbar, 15–20 Minuten bis Wien Westbahnhof – oft schneller im Zentrum als aus vielen Randbezirken.

Ausstattung: Belagsfertig mit zwei klaren Optionen – individuelle Umsetzung in Eigenregie oder schlüsselfertig über den Bauträger zum Fixpreis gemäß BAB.

Finanzierung: Auf Wunsch unverbindliche Unterstützung bei der Strukturierung der Finanzierung – transparent und entscheidungsorientiert.

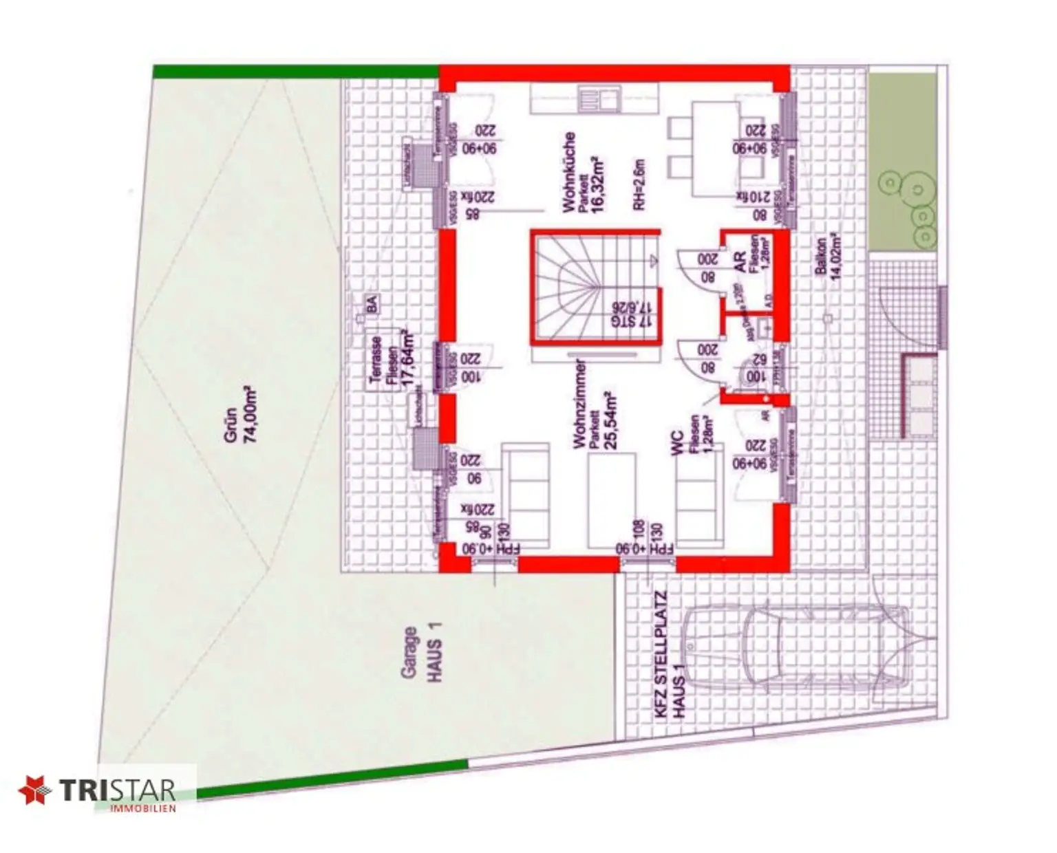
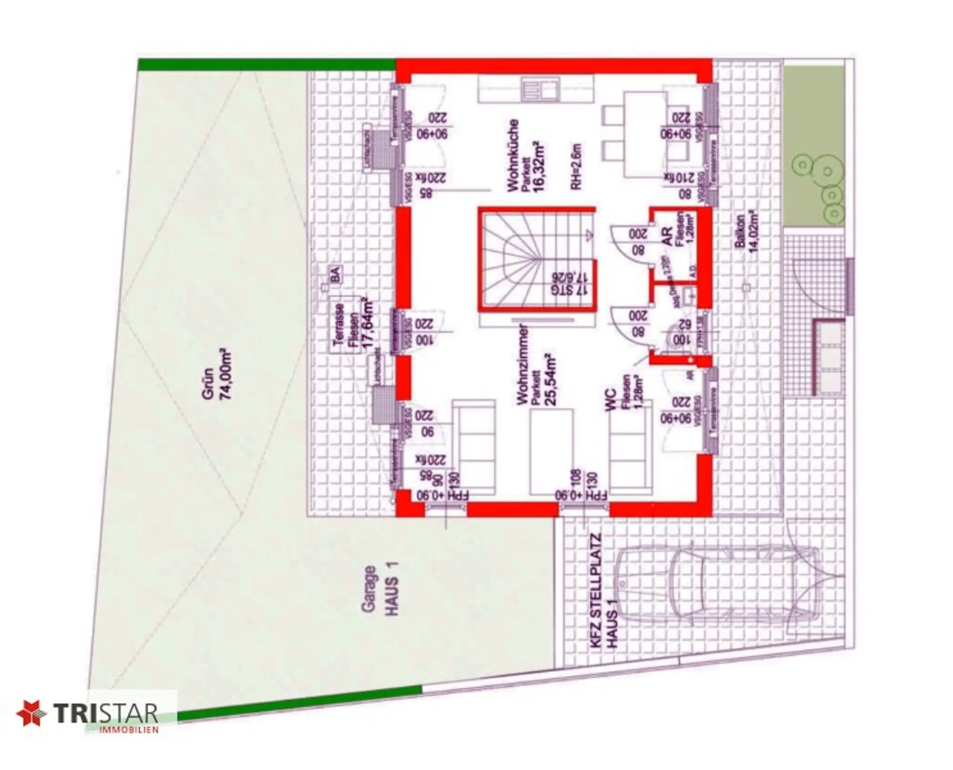
HAUS NR. 1 – SÜDLICH AUSGERICHTETES EINFAMILIENHAUS MIT GARTEN, TERRASSEN & CARPORT

Haus statt Wohnung: ca. 133,75 m² Wohnfläche, 5 Zimmer, großzügige private Freiflächen mit Garten, 2 Terrassen und 2 Balkonen sowie Südausrichtung für optimale Besonnung.

Freiflächen gesamt: ca. 157,8 m² (Garten ca. 102,6 m², Terrassen ca. 24,2 m², Balkone ca. 31,0 m²).

Parken: 2 KFZ-Stellplätze, davon 1 Carport und 1 Freistellplatz.

Raumaufteilung (3 Ebenen):

*
Eingangsebene: Vorraum, Badezimmer mit Dusche & WC, zwei Zimmer, Technik-/Waschraum, Abstellfläche, Zugang zu Vorgarten und Stellplätzen.

*
Wohnebene: Offene Wohnküche, Wohnzimmer, separates WC, Abstellraum, Balkon, Terrasse und Garten.

*
Obergeschoß: Zwei Zimmer, Badezimmer, separates WC, zwei Balkone.

Massiv & modern: Ziegelmassivbauweise im Neubaustandard, Luftwärmepumpe, Fußbodenheizung mit Kühlfunktion (Bodenkühlung), 3-fach verglaste Fenster, hochwertige Holz-Alu-Eingangstür.

Zukunftssicher: Vorbereitung für Photovoltaikanlage, E‑Auto‑Ladestation sowie elektrische Außenbeschattung.

Ausstattung: Übergabe belagsfertig mit zwei klaren Optionen – individuelle Umsetzung in Eigenregie oder schlüsselfertige Ausführung über den Bauträger zum Fixpreis gemäß BAB.

Kaufpreis Haus Nr. 1: € 550.000,- provisionsfrei (belagsfertig).

Energiekennzahlen: HWB 39,6 kWh/m²a, fGEE 0,70 (A+), gültig bis 13.06.2035.

Hinweis: Haus Nr. 1 ist Teil eines hochwertigen Neubauprojekts mit insgesamt vier Einfamilienhäusern in Pressbaum. Weitere Häuser werden als eigene Unterobjekte dargestellt.

Wir weisen darauf hin, dass zwischen dem Vermittler und dem zu vermittelnden Dritten ein familiäres oder wirtschaftliches Naheverhältnis besteht.
Beschreibung weiterlesen

Lage und Verkehrsanbindung

Zentrale Lage in Pressbaum mit schneller öffentlicher Anbindung nach Wien. Nahversorgung, Schulen und Alltagseinrichtungen fußläufig, Natur und Wienerwald direkt vor der Haustür. Eine ruhige Wohnlage mit hoher Lebensqualität im Wiener Umland.

Zentrum Pressbaum / S-Bahn Pressbaum fußläufig

Grundrisse

Lageplan

3021 Pressbaum | Sankt Pölten (Land)

Lade...
Nedeljko Bakic

Nedeljko Bakic

TRISTAR Immobilien

Lade...

Fotomix

Bild 1 Bild 2 Bild 3 Bild 4 Bild 5 Bild 6 Bild 7 Bild 8 Bild 9 Bild 10 Bild 11 Bild 12 Bild 13 Bild 14 Bild 15 Bild 16 Bild 17 Bild 18 Bild 19 Bild 20 Bild 21 Bild 22 Bild 23 Bild 24 Bild 25 Bild 26 Bild 27 Bild 28 Bild 29