NEU - WEINIDYLLE SÜDBURGENLAND: BUNGALOWS ZUM MIETKAUF PROVISIONSFREI MIT EINLAGERUNGSRÄUMEN

Haus zur Miete in 7512 Kohfidisch - Gesamtmiete: 865,70 € / Objektnummer: 5324/2386
Ausstattung: Barrierefrei Boden Bad Rollladen Kabel/Satelliten-TV Parkplatz Außenparkplatz Fußbodenheizung Terrasse

Preisinformationen

Gesamtmiete:
865,70 € / Monat
Provision:
Gemäß Erstauftraggeberprinzip bezahlt der Abgeber die Provision.

Fakten

Objektnummer:
5324/2386
Objekttyp:
Haus
Terrasse:
1
Wohnfläche:
91,58 m²
Grundstücksfläche:
380 m²
Lagerfläche:
9,5 m²
Zimmer:
3
Badezimmer:
1
Toilette:
1
Baujahr:
2023
Neubau:
Ja
Zustand:
Erstbezug
Verfügbarkeit:
Verfügbar

Beschreibung

BUNGALOW # ALLES AUF EINER EBENE # PHOTOVOLTAIK

ZUM HAUS

Leistbar und barrierefrei wohnen im stylischen Bungalow. Rundum sind Sie hier umgeben vom herrlich milden pannonischen Klima und den sanften Hügeln des idyllischen Weingebietes im sonnigen Südurgenland.

In Kirchfidisch nebst Kohfidisch sind trendige, barrierefreie Bungalows in Niedrigenergiebauweise mit Eigengärten in verschiedenen Grundstücksgrößen von 380 m2 bis 400 m2 und jeweils zwei PKW-Stellplätzen im Freien sowie besonders praktischen Einlagerungsräumen entstanden. Geheizt wird energieeffizient und kostensparend auf neuem technischen Stand mit einer Luftwärmepumpe und einer Photovoltaikanlage auf dem Dach. Die Regelung der Fußbodenheizung erfolgt über einen zentralen Raumthermostat.

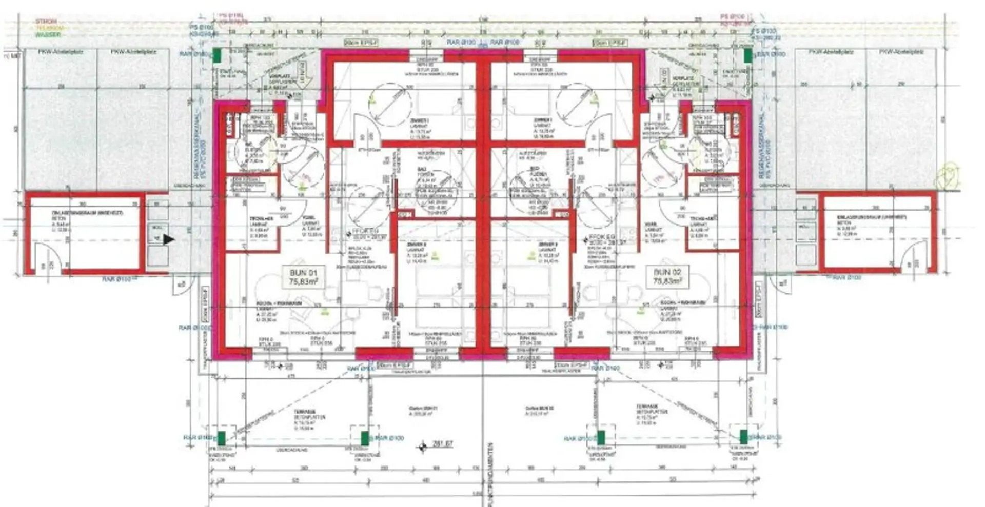
Die Wohnraumfläche von etwa 92 m2 teilt sich wie folgt auf: 

Den modernen Bungalow betreten Sie durch ein geräumiges Vorzimmer, in dem ausreichend Platz für Ihre Garderobe ist. Die getrennte Toilette mit Handwaschbecken befindet sich ebenso auf dieser Ebene. Zur Terrasse mit Blick in den Garten gelangen Sie durch das gut geschnittene Wohnzimmer mit der angeschlossenen Küche. Vom zweiten Schlafzimmer aus können Sie ebenso in den begrünten Garten blicken. Durch die zahlreichen Fenster und die Terrassentüre kommt ausreichend Licht in Ihr neues Zuhause. So kommt die Sonnenseite Österreichs auch in Ihre Zimmer!

Die beiden Schlafzimmer haben eine ähnliche Größe, und sind im Grundriss optimal, um alle Möbel gut unterzubringen und gemütliche Räume zu schaffen. Das geräumige Wohnzimmer führt zur Terrasse, wo Sie gemütliche Stunden mit Ihren Liebsten oder Freunden verbringen werden. Das Badezimmer ist mit einem bodenebenen Duschplatz ausgestattet, hier findet auch die Waschmaschine Platz. Ein sehr praktischer Abstellraum für Ihre Utensilien findet sich ebenfalls im Bungalow auf einer Ebene.

 

Es handelt sich hierbei um eine Mietkauf Option, ein Finanzierungsbeitrag in der Höhe von ca. € 68.000,- ist erforderlich abhängig vom Objekt. Vereinbaren Sie einen Besichtigungstermin und überzeugen Sie sich selbst! Kommen Sie und machen Sie Ihr Glück im Burgenland!

Wir informieren Sie sehr gerne persönlich über Details zur Ausstattung und zur Kostenaufstellung.

 

ZUR LAGE

Kirchfidisch (ungarisch Egyházasfüzes, Füzes; kroatisch Dolnji Fideš)[1] [https://de.wikipedia.org/wiki/Kirchfidisch#cite_note-1] ist ein Ortsteil und eine Katastralgemeinde der Gemeinde Kohfidisch im Bezirk Oberwart im Burgenland mit ca. 400 Einwohnern und erstreckt sich über ca. 8,5 km².

Der Name des Ortes leitet sich von seinem ungarischen _Egyházasfüzes_ ab, was übersetzt so viel bedeutet wie _Weidenkirchen_. Statt einer sinngemäßen Übersetzung wurde der Namensteil -_füzes_ als -_fidisch_ ins Deutsche übernommen.

Der Ort liegt auf einer Anhöhe südlich des Pinkatals.

Die ersten urkundlichen Erwähnungen der Ortschaft findet sich in einer ungarischen Chronik aus dem Jahre 1221 unter dem Namen _Fuzes_, in einer weiteren Chronik aus dem Jahre 1297 als _Fyuzes_, und 1496 schließlich als _Eghazasfyzes_.

Kirchfidisch gehörte im 14. und 15. Jahrhundert zur Herrschaft Rotenturm an der Pinka, die zuerst im Besitz eines böhmischen Adelsgeschlechts namens _Hinko_ stand, 1424 jedoch an die deutschen _Ellersbacher_ verpfändet wurde und 1499 schließlich an die Familie Erdődy gelangte. Im Zuge des Ersten Österreichischen Türkenkriegs wurde das Dorf 1529 und 1532 komplett verwüstet und anschließend anstelle der ursprünglich ungarischsprachigen Bevölkerung von Deutschsprachigen neu gegründet.

In Kirchfidisch befindet sich ein Kindergarten für die Kleinsten. In der Nachbargemeinde in Kohfidisch ebenso einen Kindergarten, eine Kinderkrippe sowie eine Volksschule und eine Mittelschule. In den Ortschaften wird der Sport groß geschrieben. Der Sportverein in Kirchfidisch ist Treffpunkt für Aktivitäten in der Freizeit. Sämtliche Nahversorger, Supermärkte, Gaststätten und Sehenswürdigkeiten wie etwa das Schloss sind im nahegelegenen Kohfidisch anzutreffen.

Genießen Sie die Weinidylle des Südburgenlandes: Kohfidisch ist eine von acht Naturparkgemeinden im Naturpark Weinidylle. Der allseits beliebte *Csaterberg* mit dem Klein Csater und dem Hoch Csater, dem idyllischen Weinberg und den urigen Kellerstöckln in Kohfidisch zählt zu einem der schönsten Plätze im Burgenland. Beliebt und bekannt sind auch die legendären Kellergassenfeste. Die Buschenschänke 'Beim Franz' ist beispielsweise mit der gediegenen Berghütte am Csaterberg ein kleiner Geheimtipp hier im Südburgenland.

Die Stadt Oberwart ist von Kirchfidisch etwa 23 km entfernt. Über die Bundesstraße gelangen Sie nach circa 26 Minuten Autofahrt nach Oberwart, wo unter anderem ein großes Einkaufszentrum, zahlreiche Bildungseinrichtungen, sämtliche Einrichtungen zur medizinischen Versorgung, Kultureinrichtungen und Gastronomie angesiedelt sind.

 

SONSTIGE INFO

Die Kalkulation und auch die Abwicklung des Bauvorhabens erfolgt im Miet-Kauf-Weg. Das bedeutet, dass das Reihenhaus/Doppelhaus/Bungalow jedenfalls in den ersten 5 Jahren auf der Grundlage eines genossenschaftlichen Nutzungsvertrages (Mietvertrag) bewohnt wird.  Danach haben Sie gemäß den gesetzlichen Bestimmungen das Recht, das Reihenhaus/Doppelhaus/Bungalow in das Eigentum zu übernehmen. Allerdings besteht auch die Möglichkeit, dass das Reihenhaus/Doppelhaus/Bungalow sofort in das Eigentum übernommen wird. Die entsprechenden Konditionen werden auf Wunsch berechnet und bekannt gegeben.

RECHTLICHE INFO

Als Immobilienmakler sind wir einerseits Ihnen als Interessent, als auch dem Abgeber als Verkäufer bzw. Vermieter verpflichtet. Wir sind einerseits gegenüber dem Abgeber, als auch gegenüber Behörden verpflichtet bei Ungereimtheiten Auskunft geben zu können, an welche Personen Immobilien angeboten wurden.

Auch die europäischen Verbraucherrechte [http://de.wikipedia.org/wiki/Richtlinie_2011/83/EU_(Verbraucherrechte-Richtlinie)] wurden vereinheitlicht, somit wird seit 13. Juni 2014 ebenso mit Ihnen als Interessent ein schriftlicher Maklervertrag abgeschlossen (früher geschah dies mündlich & es entfällt das Ausfüllen von "Besichtigungsscheinen"). Der Verband der Österreichischen Immobilienwirtschaft hat hierzu ebenso eine detaillierte Informationsseite [http://www.ovi.at/recht/verbraucherrechte-vrug/].

 

Wir benötigen daher, um Ihnen detaillierte Unterlagen zukommen zu lassen, Ihren Namen und Ihre Wohnadresse (Straße, Hausnummer - wenn vorhanden: Stiege & Tür - PLZ und Ort).

Der Makler steht mit dem zu vermittelnden Dritten in einem wirtschaftlichen Naheverhältnis.

 

Haben Sie eine Immobilie zu verkaufen oder zu vermieten?

Wir freuen uns, diese unseren vorgemerkten Kundinnen und Kunden präsentieren zu dürfen bzw. Sie bei der Vermarktung Ihrer Liegenschaft zu unterstützen!

 

Wir weisen darauf hin, dass zwischen dem Vermittler und dem zu vermittelnden Dritten ein familiäres oder wirtschaftliches Naheverhältnis besteht.

Der Immobilienmakler erklärt, dass er – entgegen dem in der Immobilienwirtschaft üblichen Geschäftsgebrauch des Doppelmaklers – einseitig nur für den Vermieter tätig ist.

Infrastruktur / Entfernungen

Gesundheit
Arzt <1.500m
Apotheke <8.000m

Kinder & Schulen
Schule <2.000m
Kindergarten <2.000m

Nahversorgung
Supermarkt <2.000m
Bäckerei <8.000m

Sonstige
Bank <2.000m
Post <2.000m
Polizei <2.000m
Geldautomat <7.000m

Verkehr
Bus <500m
Flughafen <3.000m
Bahnhof <8.000m

Angaben Entfernung Luftlinie / Quelle: OpenStreetMap
Beschreibung weiterlesen

Lage und Verkehrsanbindung

Lässig leben, Burgenland eben!
Willkommen auf der Sonnenseite Österreichs. Kirchfidisch ist ein Ortsteil und Katastralgemeinde von Kohfidisch im Bezirk Oberwart im schönen Burgenland. Die Lage besticht durch die idyllische Umgebung inmitten der vorwiegend unberührten Natur und der guten Infrastruktur in der Nähe.
Der allseits beliebte Csaterberg mit dem Klein Csater und dem Hoch Csater, dem idyllischen Weinberg und den urigen Kellerstöckln in Kohfidisch zählt zu einem der schönsten Plätze im Burgenland. Etwa die Buschenschänke 'Beim Franz' ist mit der gediegenen Berghütte am Csaterberg ein kleiner Geheimtipp hier im Südburgenland.

Energieeffizienz

HWB:
57,2 kWh/(m²*a)
HWB Klasse:
B
fGEE:
0,75
fGEE Klasse:
A+
Energieausweisart:
Energiebedarfs-ausweis
Gültig bis:
27.07.2032

Grundrisse

Lageplan

7512 Kohfidisch | Oberwart

Lade...
Natascha Haberkorn

Natascha Haberkorn

Haberkorn Immobilien

Lade...

Fotomix

Bild 1 Eingangsbereich Bungalows Kirchfidisch Sonniges Burgenland Kohfidisch Terrassen Reihenhäuser Kirchfidisch Rückseite Eingang Kirchfidisch RHA Kirchfidisch Terrasse Reihenhaus Kirchfidisch Frontseite Bungalows Kirchfidisch Einlagerungsräume Kirchfidisch Bild 10 Terrassen Reihenhäuser Kirchfidisch Frontansicht Bungalows Kirchfidisch Bild 13 Garten und Einlagerungsraum Kirchfidisch Rückseite Eingang Kirchfidisch Umgebung Kirchfidisch Bild 17 Bild 18