NEU - WÖRGL - Schmuck-Stück - Baugrund 439 m² (500 m² inkl. Weganteil)

Grundstück zum Kauf in 6300 Wörgl - Kaufpreis: 437.660 € / Objektnummer: 478
Ausstattung:

Preisinformationen

Kaufpreis:
437.660 €
Kaufpreis/m²
875,32 €
Preisinfos:
Befreiung von 1,1 % Eintragungsgebühr bei Begründung Hauptwohnsitz
Vermittlungsprovision:
Ja
Provision:
15.755,76 € inkl. 20% USt.

Fakten

Objektnummer:
478
Objekttyp:
Grundstück
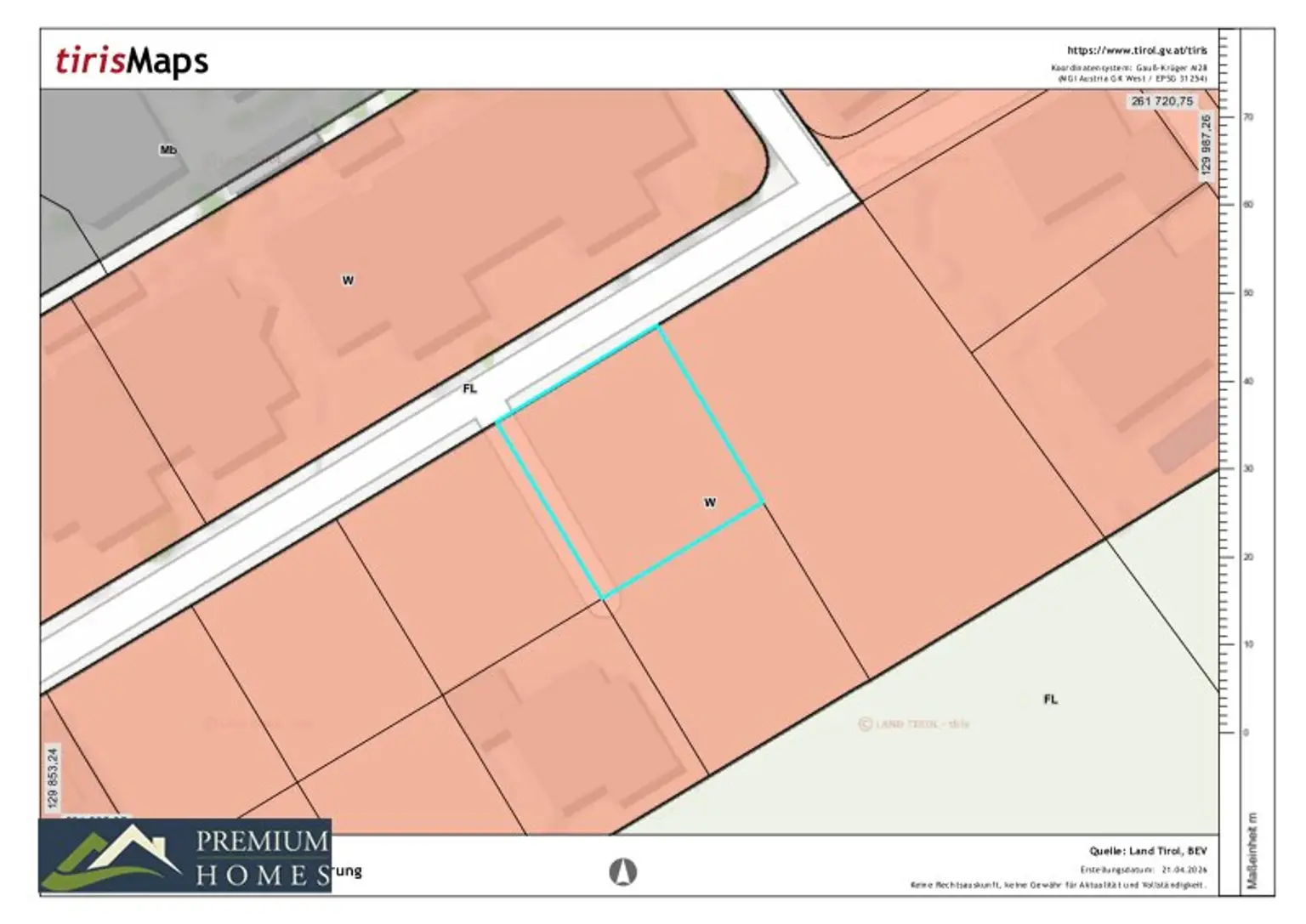
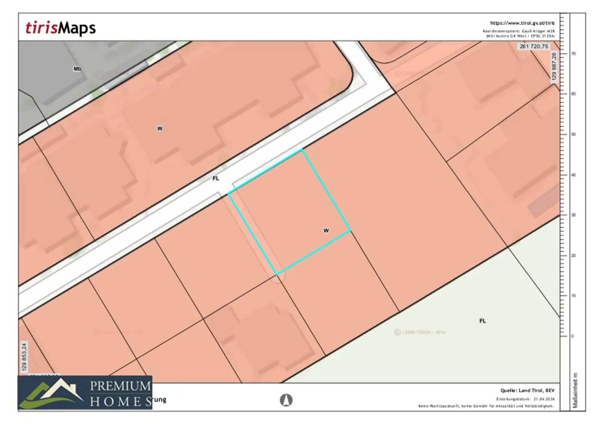
Grundstücksfläche:
439 m²
Gesamtfläche:
500 m²
Verfügbarkeit:
Verfügbar

Beschreibung

WÖRGL - SCHMUCK-STÜCK - BAUGRUND 439 M² (500 M² INKL. WEGANTEIL)

BESCHREIBUNG:

Bei diesem Grundstück profitieren Sie doppelt:

Einerseits von den Vorteilen der Zentrumsnähe, denn Wörgl ist geprägt von einer vielseitigen Infrastruktur. Andererseits ist die Schönheit der Tiroler Naturwelt zum Greifen nahe. In einer Luftlinie von ca. 500 m sind Wander-, Spazier- und Radwege zu erreichen. Genießen Sie das viele Grün und die Kraft der Sonne.

 

NATUR ERLEBEN UND WOHL FÜHLEN!

Das Grundstück im Ausmaß von 500 m², die reine Baufläche beträgt 439 m²,  hat eine leicht rechteckige Form, das Ausmaß beträgt ca. 23,5 m x 21,3 m und ist sowohl für eine traditionelle, als auch moderne Bauweise geeignet. Am südwestlichen Rand der Parzelle verläuft ein Servituts-Weg im Ausmaß von 61 m², daher die reine Baufläche von 439 m².

Aufgrund der Baumassendichte Höchst von 2,2 besteht die Möglichkeit der Errichtung eines Einfamilienwohnhauses mit Garcionerre oder z.B. einem Doppelhaus. Gerne senden wir Ihnen bei weiterem Interesse den Bebauungsplan zu, welchen die Stadtgemeinde Wörgl für die Sr. Bibiana Blaickner Straße erlassen hat.

LAGE:

Das nach Süd-West ausgerichtete Grundstück liegt im westlichen Bereich von Wörgl und befindet sich im Nahbereich vom Freiland (Landwirtschaftliche Nutzflächen).

Sie erreichen das Grundstück über die Innsbrucker-Straße. Von der Autobahnausfahrt Wörgl-West kommend nehmen Sie die Abzweigung zwischen Jet-Tankstelle und McDonalds. Folgt man der Straße bis zu ihrem Ende, erstrecken sich großflächig Wiesen und Felder, sowie das Baugrundstück.

FREIZEIT-MÖGLICHKEITEN 

* Shoppingwelt Wörgl
* Ausflugsziele: Wildschönau, Kufstein, Kiefersfelden

BEKANNTE SCHIGEBIETE PER PKW ERREICHBAR:

* http://www.skiwelt.at/de/ -> Schiwelt Wilder Kaiser Brixental
* http://www.wildschoenau.com/de/winter/bergbahnen/ -_> Schigebiet Wildschönau
* http://www.bergbahn-kitzbuehel.at/ -> Schigebiet Kitzbühel

 

Eckdaten zur Gemeinde Wörgl:

Seehöhe 511 m, Einwohner ca. 13.800 (Stand Jänner 2018)

Verkehrsanbindung:

* Zug: Hauptbahnhof Wörgl 
* Bus: Regionalbus-Taktverkehr, ein Erreichen der umliegenden Gemeinden ohne Schwierigkeiten möglich
* Skibus: Busverbindungen in das Schigebiet Großraum Wilder-Kaiser-Brixental und Wildschönau eingerichtet
* Autobahn: Anschluss Wörgl-West und Wörgl-Ost

Entfernungen:

* Ca. 18 km nach Kufstein (15 Min)
* Ca. 45 km nach Wattens ( 40 Min)
* Ca. 62 km nach Innsbruck (50 Min)
* Ca. 110 km nach München (1h 15 Min)
* Ca. 125 km nach Salzburg (1h 30 Min)


SONSTIGE ANGABEN:

* Preise-, Baujahr- & Größenangaben ohne Gewähr - Angaben basieren ausschließlich auf Informationen v. Auftraggeber/Dritten
* Wir übernehmen keine Gewähr für Vollständigkeit, Richtigkeit und Aktualität der Angaben
* Der Maklervertrag kommt durch die Inanspruchnahme unserer Maklertätigkeit zustande
* Vorbehaltlich zwischenzeitlichem Verkauf
* Weitere Details bei unverbindlicher Besichtigung
* Besichtigungstermine sind von Mo-Fr möglich
* Es gilt österreichisches Recht
* Gerichtsstand Kufstein
* Vermittlungsprovision siehe Nebenkostenübersicht

FÜR IMMOBILIEN-VERKÄUFER:

Die richtigen Dinge zum richtigen Zeitpunkt tun - auf uns können Sie vertrauen.

Sich von einer Immobilie zu lösen ist ein großer Schritt.

Bevor die Entscheidung für einen Verkauf getroffen wird ist es wichtig das Thema aus verschiedenen Perspektiven zu betrachten, begleitendes zu hinterfragen.

Informieren Sie sich über Tipps zum Immobilien-Verkau [http://www.premium-homes.at/de/fuer-verkaeufer/]f, sowie über unser Premium-Service [http://www.premium-homes.at/de/premium-service-2/] für Sie.

www.premium-homes.at/de/fuer-verkaeufer

HINWEISE: 

Sämtliche Fotos, Graphischen Darstellungen in diesem Exposé sind Eigentum unserer Firma Premium Homes GmbH und dürfen nicht durch Dritte verwendet bzw. an Dritte weitergegeben werden. 
Mit der Anfrage zu diesem Objekt erklärt der Interessent seine ausdrückliche Einwilligung für die Kontaktaufnahme per Telefon oder E-Mail durch einen unserer Mitarbeiter.
Die Immobilie wird im exklusiven Alleinauftrag angeboten.

Falls Sie einen vereinbarten Besichtigungstermin nicht wahrnehmen können, ersuchen wir um frühzeitige Absage (bis spätestens 6 h vor dem Termin), damit eine unnötige Anfahrt vermieden werden kann, ansonsten eine Aufwandsentschädigung in Höhe von € 180,- (inkl. 20 % USt.) zur Verrechnung gelangt.

Der Vermittler ist als Doppelmakler tätig.

Infrastruktur / Entfernungen

Gesundheit
Arzt <500m
Apotheke <1.000m
Klinik <1.000m

Kinder & Schulen
Schule <250m
Kindergarten <500m

Nahversorgung
Supermarkt <250m
Bäckerei <250m
Einkaufszentrum <1.000m

Sonstige
Bank <1.000m
Geldautomat <1.000m
Post <1.500m
Polizei <1.000m

Verkehr
Bus <250m
Autobahnanschluss <1.250m
Bahnhof <1.250m

Angaben Entfernung Luftlinie / Quelle: OpenStreetMap
Beschreibung weiterlesen

Lage und Verkehrsanbindung

Wörgl Zentrum, Bundesrealgymnasium Wörgl, HAK/HASCH Wörgl, Europa HAK, Sprungschanze Wörgl, Trainingsanlage SC Lattella Wörgl, Speedskatearena Wörgl

Grundrisse

Lageplan

6300 Wörgl | Kufstein

Lade...
Thomas Hager

Thomas Hager

Premium Homes GmbH

Lade...

Fotomix

WÖRGL - Schmuck-Stück - Baugrund 439 m² (mit Weganteil 500 m²) WÖRGL - Schmuck-Stück - Baugrund 439 m² (mit Weganteil 500 m²) WÖRGL - Baugrund 439 m² - Drohnenaufnahme - Umgebung WÖRGL - Schmuck-Stück - Baugrund 439 m² (mit Weganteil 500 m²) WÖRGL - Schmuck-Stück - Baugrund 439 m² (mit Weganteil 500 m²) - Drohnenaufnahme - Umgebung WÖRGL - Schmuck-Stück - Baugrund 439 m² (mit Weganteil 500 m²) WÖRGL - Baugrund 439 m² - Drohnenaufnahme - Umgebung WÖRGL - Baugrund 439 m² - Drohnenaufnahme - Umgebung