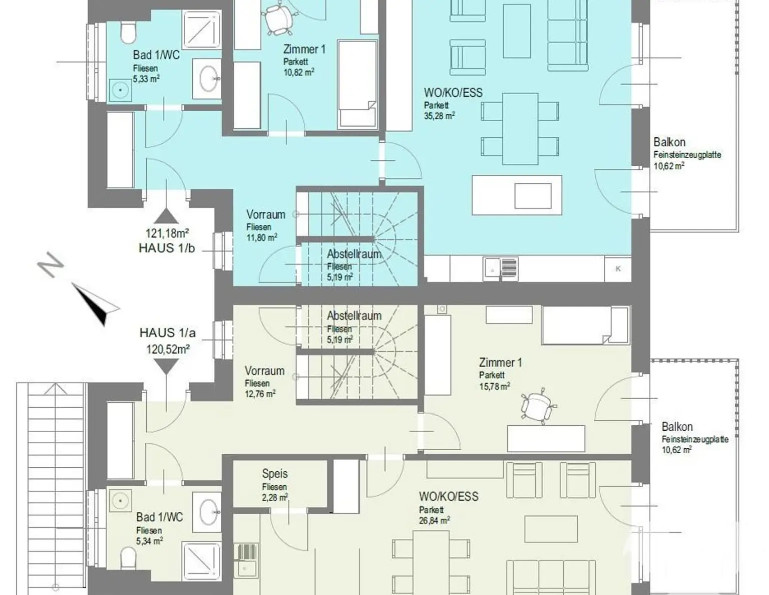
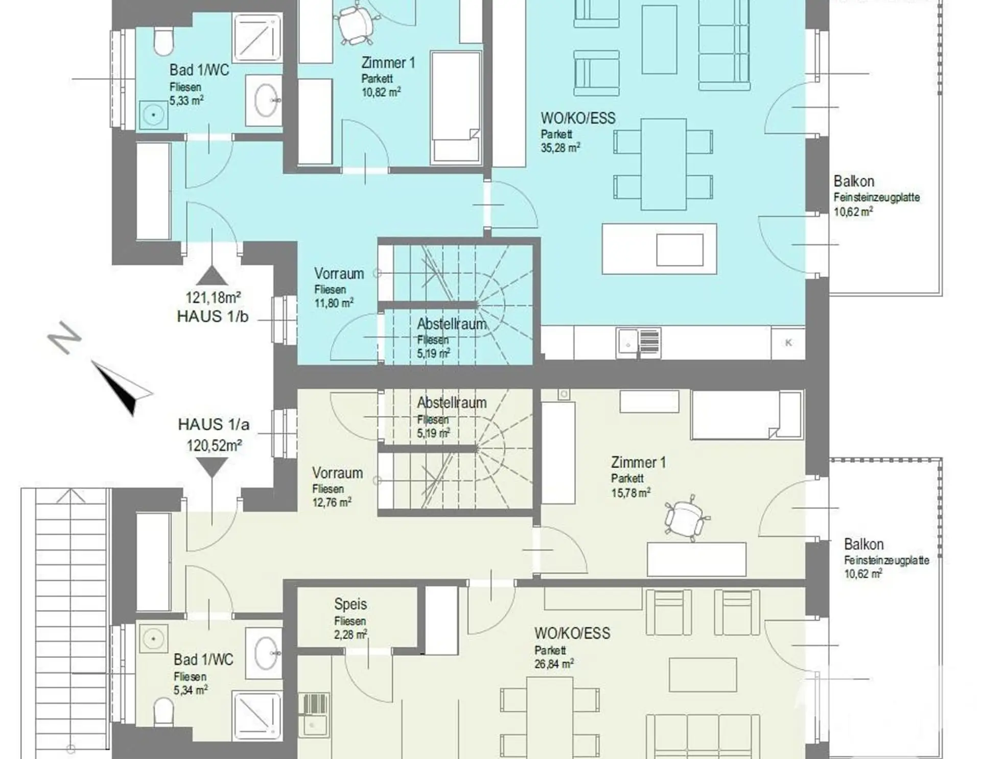
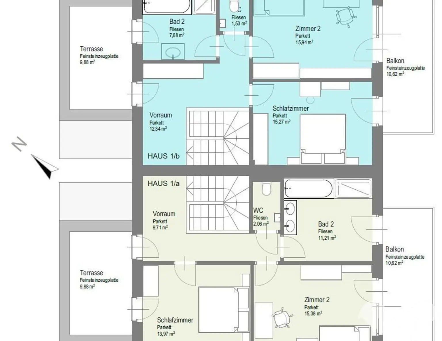
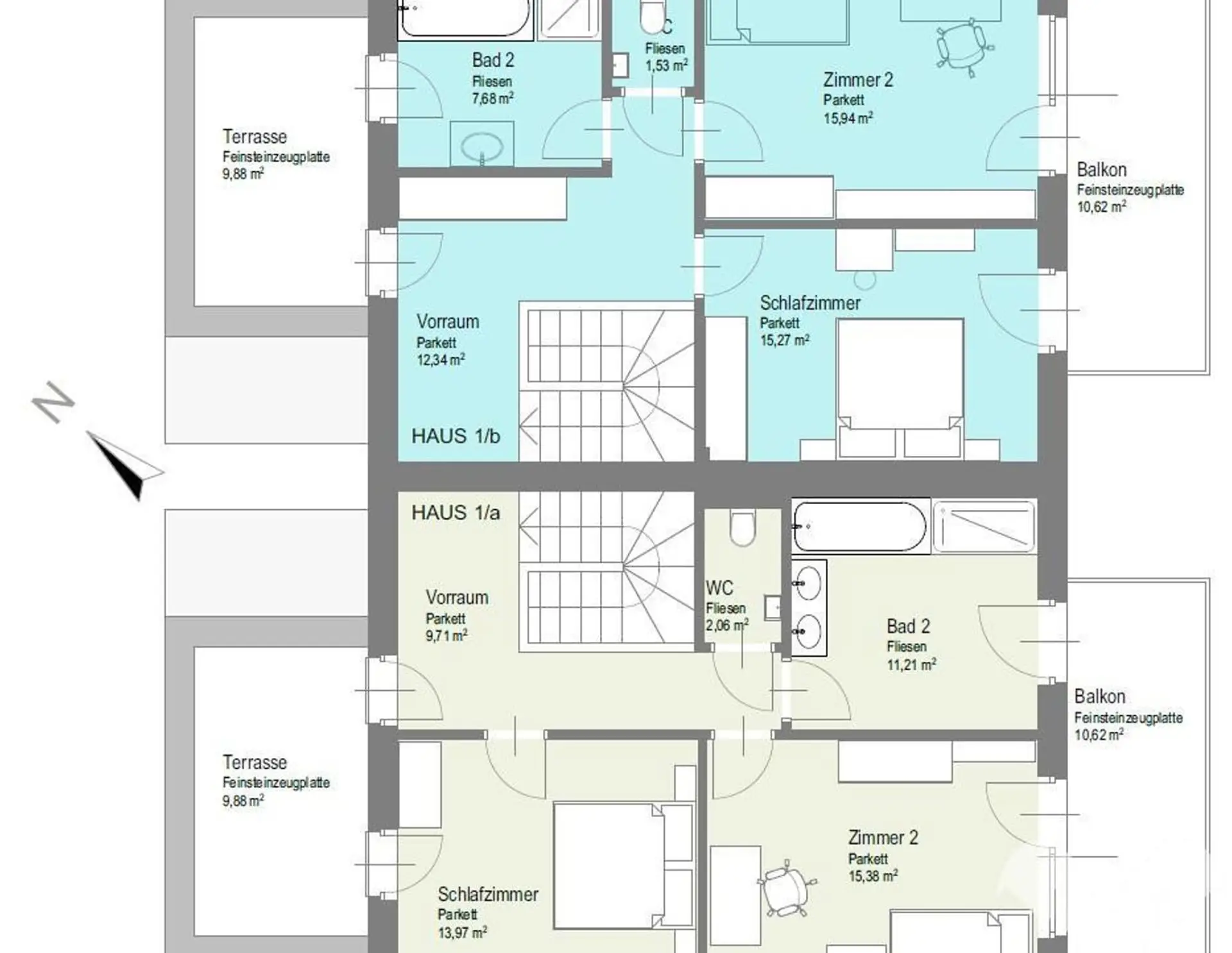
NEU - Wohnbauprojekt - Baugenehmigt! 2 Doppelhäuser in Lkh-Nähe

Grundstück zum Kauf in 8044 Graz-Mariatrost - Kaufpreis: 495.000 €
Ausstattung:

Preisinformationen

Kaufpreis:
495.000 €
Vermittlungsprovision:
Ja

Fakten

Objekttyp:
Grundstück
Grundstücksfläche:
1.500 m²
Neubau:
Ja
Verfügbarkeit:
Verfügbar

Beschreibung

Wohnbauprojekt - baugenehmigt! 2 Doppelhäuser in LKH-Nähe Zum Verkauf steht ein attraktives Grundstück in Schaftal. Zwei moderne Doppelhäuser mit Unterkellerung, Wärmepumpen inkl. Schmutzwasserkanalanlage und…

Raiffeisen Steiermark

Lade...

Fotomix

Bild 1 Bild 2 Bild 3 Bild 4 Bild 5 Bild 6