NEU - Wohnen im Grünen & doch stadtnah! 932 m² Baugrund OHNE BAUZWANG in ruhiger, grüner Lage!

Grundstück zum Kauf in 4441 Behamberg - Kaufpreis: 80.000 € / Objektnummer: 2273/3219
Titelbild
1
2
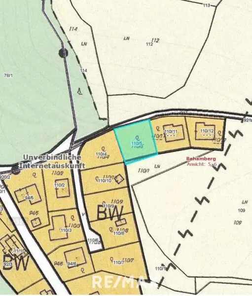
Lageplan
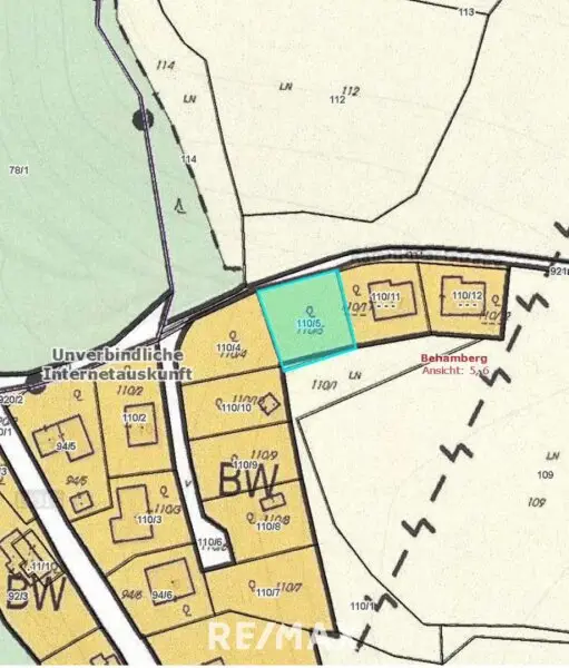
Flächenwidmungsplan
Leitungsplan

Preisinformationen

Kaufpreis:
80.000 €
Vermittlungsprovision:
Ja
Provision:
3% des Kaufpreises zzgl. 20% USt.

Fakten

Objektnummer:
2273/3219
Objekttyp:
Grundstück
Grundstücksfläche:
932 m²
Verfügbarkeit:
Verfügbar

Beschreibung

Sie möchten sich endlich Ihren Traum vom Eigenheim verwirklichen? Am liebsten im Grünen, umgeben von herrlicher Natur, aber dennoch mit absoluter Nähe zum Stadtkern von Steyr? Dann lassen Sie sich diese Chance nicht entgehen!

In sonniger Lage umgeben von einer herrlichen Landschaft und einem wunderschönen Blick in die Natur gelangt ein 932 m² Baugrundstück zum Verkauf.

Das Grundstück ist durch die praktische Größe und die Himmelsausrichtung ideal für eine Verbauung geeignet.

Auf diesem Grundstück haben Sie die Freiheit, Ihre Visionen ohne Bauzwang zu verwirklichen, in Ihrem ganz eigenen Tempo und ohne zeitliche Vorgaben.

Alle Geschäfte des täglichen Bedarfs, eine Reihe an Ärzten, Schulen, Supermärkten sowie Sport- und Unterhaltungsmöglichkeiten befinden sich in der Umgebung.

Abgerundet wird die tolle Wohnqualität durch die unmittelbare Nähe zur grünen Umgebung samt wunderschönen Spazier-/Wanderwegen sowie sehr schönen Lauf-/Fahrradstrecken.

Aufschließungsbeiträge, die gemäß der NÖ Bauordnung erhoben werden, sind im Falle einer Bebauung an die Gemeinde Behamberg zu zahlen.

Wollen Sie sich Ihren persönlichen Traum vom Eigenheim verwirklichen? Dann kontaktieren Sie uns gerne!

Infrastruktur / Entfernungen

Gesundheit
Arzt <1.500m
Apotheke <1.500m
Klinik <4.000m
Krankenhaus <6.000m

Kinder & Schulen
Schule <2.000m
Kindergarten <2.000m
Universität <4.500m
Höhere Schule <5.000m

Nahversorgung
Supermarkt <1.000m
Bäckerei <3.500m
Einkaufszentrum <3.500m

Sonstige
Bank <1.000m
Geldautomat <1.000m
Post <2.000m
Polizei <2.000m

Verkehr
Bus <500m
Bahnhof <1.000m

Angaben Entfernung Luftlinie / Quelle: OpenStreetMap
Beschreibung weiterlesen

Dokumente

Lageplan

4441 Behamberg | Amstetten

Lade...
Benjamin Kozlica

Benjamin Kozlica
Immobilienmakler

RE/MAX Alpha

Lade...

Fotomix

Titelbild 1 2 Lageplan Flächenwidmungsplan Leitungsplan