NEU - Wohnen im grünen mit Bergblick

Wohnung zum Kauf in 5152 Michaelbeuern - Kaufpreis: 298.000 € / Objektnummer: oO-2023-00195
Ausstattung: Wohnküche / offene Küche Bad Fußbodenheizung Balkon
Visu
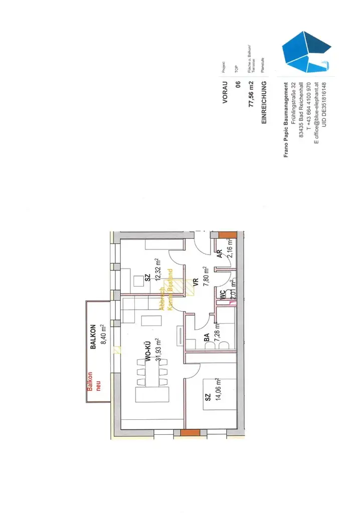
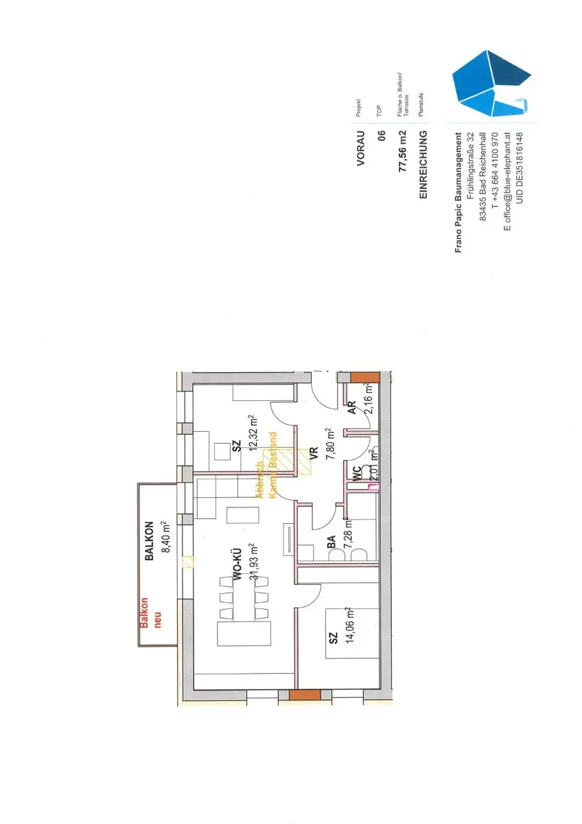
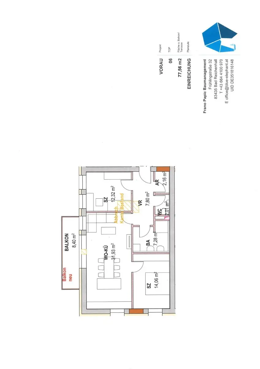
Top 6

Preisinformationen

Kaufpreis:
298.000 €
Kaufpreis/m²
3.842,19 €
Provision:
3,6%

Fakten

Objektnummer:
oO-2023-00195
Objekttyp:
Wohnung
Balkon:
1
Keller Fläche:
7 m²
Wohnfläche:
77,56 m²
Zimmer:
3
Schlafzimmer:
2
Badezimmer:
1
Toilette:
1
Stockwerk:
3
Zustand:
Entkernt>
Verfügbarkeit:
Verfügbar

Beschreibung

Die politische Gemeinde Dorfbeuern entstand am 1. Jänner 1850

Mit ihren knapp über 1.580 Einwohnern ist die Gemeinde Dorfbeuern ein Ort der Ruhe und der Beständigkeit. Am Fuße des Haunsberges erwartet diese Kleinod seinen Bewohnern mit idyllischem Dorfleben, und dem bedeutsamen Kloster und unberührter Natur.
Die umliegende Landschaft, die von den Landwirten mit viel Sorgfalt und Leidenschaft bewirtschaftet wird, lädt zum Entspannen, Flanieren und Energie tanken von zuhause ein,
Beschreibung weiterlesen

Lage und Verkehrsanbindung

Dorfbeuern ist eine Gemeinde im Norden des Bundeslandes Salzburg im Bezirk Salzburg-Umgebung. Weithin bekannt und bedeutend ist das in der Ortschaft Michaelbeuern liegende Benediktinerstift.
Wenige Minuten zum Grabensee - Obertrumer See und Mattsee
Salzburgstadt in ca.30 min.
ca. 20 min. zu unseren Bayrischen Nachbarn in Laufen

Energieeffizienz

HWB:
28,8 kWh/(m²*a)
HWB Klasse:
B
fGEE:
0,5
fGEE Klasse:
A++
Gebäudeart:
listing.status.epcBuildingType_wohn
Ausstellung:
ab dem 1.5.2014
Gültig bis:
30.08.2031

Grundriss

Rene Koder-Griesner

Rene Koder-Griesner

M&R Immobilien OG

Lade...

Lageplan