Wohnen im Süd-Spitz: wunderschöne 2-Zimmer-Wohnung mit Loggia

Wohnung zur Miete in 8020 Graz - Gesamtmiete: 730,00 € / Objektnummer: 88422
Ausstattung: Boden Fahrstuhl Wohnküche / offene Küche Bad Fußbodenheizung Loggia

Preisinformationen

Gesamtmiete:
730,00 € / Monat
Betriebskosten netto:
129,35 € / Monat
Umsatzsteuer:
66,37 €
Kaution:
2.190,00 €
Provision:
Gemäß Erstauftraggeberprinzip bezahlt der Abgeber die Provision.

Fakten

Objektnummer:
88422
Objekttyp:
Wohnung
Loggia:
1
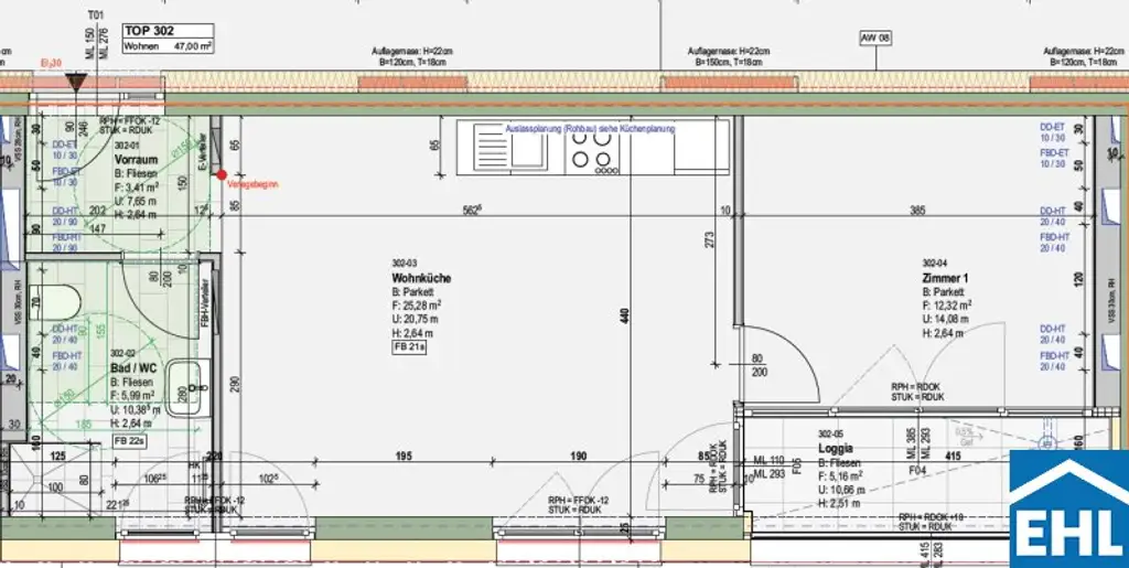
Wohnfläche:
47 m²
Loggia Fläche:
5,16 m²
Zimmer:
2
Badezimmer:
1
Toilette:
1
Stockwerk:
3
Zustand:
Gepflegt
Verfügbarkeit:
Verfügbar
Verfügbar ab:
sofort

Beschreibung

Süd-Spitz – Lebensqualität mit Spitzengefühl

Wenn Sie Natur lieben sich jedoch auch zur Stadt hingezogen fühlen, bietet Ihnen der Süd-Spitz die wunderbare Nähe zu den Wäldern, Felder und auch Gewässern, die sich für herrliche Spaziergänge oder Fahrradausflüge anbieten sowie auch die Nähe in die Innenstadt Graz durch die ausgezeichnete Infrastruktur vor Ort.

Durch die moderne und ausgeprägte Architektur mit dem Spitz Richtung Süden ist der Süd-Spitz ein Landmark.

Die hochwertig ausgestatteten Neubauwohnungen mit durchdachten Grundrissen verfügen über großzügige Freiflächen wie Balkone, Loggien oder Terrassen mit sensationellen Blick ins Grüne die sich hervorragend als persönlichen Rückzugsort anbieten um die Seele baumeln zu lassen. Durch die bodentiefen Fenster sind die Wohnungen lichtdurchflutet und geben das Gefühl, der Natur ganz nahe zu sein.

Der Süd-Spitz trägt auch zum Thema Nachhaltigkeit und Energieeffizienz bei, unter anderem durch die PV-Anlage am Objekt sowie auch durch den Fernwärmeanschluss in Kombination einer Sole-Wasser-Wärmepumpe.

Durch die spitzenmäßige Anbindung an die öffentlichen Verkehrsmittel sowie auch an das Radwegenetz, ist man in wenigen Minuten in der Grazer Innenstadt. Eine übertragbare Jahreskarte pro Wohnung steht allen Hauptgemeldeten Bewohnern zur Verfügung.

Wenn man lieber mit dem Fahrrad unterwegs ist, stehen über 300 Fahrradabstellplätze im Erdgeschoss zur Verfügung, weiters wird auch 2x im Jahr für alle Bewohner ein kostenloser Fahrradservice angeboten.

Ebenso gibt es eine Tiefgarage wo auch jeder Stellplatz für Elektromobilität adaptiert werden kann.

Um auch das Kennenlernen unter den Hausbewohnern zu fördern stehen 8 möblierte Terrassen bereit und laden ebenfalls zum Relaxen ein. Für Ihre Kinder wurde ein weitläufiger Kinderspielplatz errichtet der über eine Rutsche, Hügel und eine Sandkiste verfügt.

Einen detaillierten Überblick finden Sie im Grundrissnavigator [https://app.visionside.at/suedspitz/?a=2262655748570]!

Bei den Fotos handelt es sich um Musterfotos.

Ausstattung:

Details, auf die Sie sind im neuen Wohnraum freuen können:

* Parkettböden
* Hochwertige Fliesen in den Nassräumen
* Holz-Alu-Fenster mit 3-Scheibe-Isolierverglasung
* Sonnenschutz Raffstore mit Motorantrieb
* Markenküchen mit Induktionsherd
* Bodenebene Dusche
* Barrierefreier Zugang zu allen Wohnungen
* Fußbodenheizung
* Zusätzlichen Kühlung in den DG-Wohnungen
* Fernwärme
* Sole-Wasser-Wärmepumpe
* Aufzüge
* Kellerabteile
* Tiefgaragenstellplätze
* Fahrradabstellplätze
* Kinderspielplatz

Heizung und Warmwasser werden nach Verbrauch abgerechnet.

Lage:

Die Liegenschaft Reininghausstraße 84-86 befindet sich im schönen Bezirk Eggenberg - Zentral und doch naturnah.

Der Bezirk Eggenberg vereint die Annehmlichkeiten einer zentralen Lage mit den Vorteilen einer erholsamen Umgebung. Unzählige Parks wie z.B. der Schlosspark Eggenberg oder der Planetengarten bieten sich hervorragend für Spaziergänge oder Laufrunden an. In unmittelbarer Nähe befinden sich Supermärkte, Apotheken, Restaurants und Schulen. Die belebte Grazer Innenstadt ist in 10 Minuten mit dem Auto in 15 Minuten mit dem Fahrrad oder in 20 Minuten mit den öffentlichen Verkehrsmitteln erreichbar. Wer es sportlich mag, kann auch Aktivitäten wie Wandern, Golfen, Schwimmen oder Biken können in wenigen Minuten erreichen.
 

Parks - mit dem Fahrrad:   
• Schlosspark Eggenberg in 5 min.
• Planetengarten in 8 min.
• Reininghauspark in 5 min.
• Gemeindepark Eggenberg in 4 min.
    
Öffentliche Verkehrsanbindung:

Straßenbahn: 4, 7
Buslinie: 62, 66, 710, 711, 712, 713, N7

Gewässer

* Bründlteiche
* Thalersee

Einkaufszentren

* Citypark

Sportliche Aktivitäten

* Auster Sport- und Wellnessbad
* Städtisches Kinderbad für Familien mit Kleinkindern
* Open Water Schwimmen
* Grazer Golfclub Thalersee
* Knight Rider trail

Nebenkosten 
3 BMM Kaution, Vertragserrichtungsgebühr

Wir weisen darauf hin, dass zwischen dem Vermittler und dem zu vermittelnden Dritten ein familiäres oder wirtschaftliches Naheverhältnis besteht.

Der Immobilienmakler erklärt, dass er – entgegen dem in der Immobilienwirtschaft üblichen Geschäftsgebrauch des Doppelmaklers – einseitig nur für den Vermieter tätig ist.

Infrastruktur / Entfernungen

Gesundheit
Arzt <250m
Apotheke <500m
Klinik <1.000m
Krankenhaus <1.000m

Kinder & Schulen
Schule <750m
Kindergarten <250m
Universität <1.250m
Höhere Schule <1.250m

Nahversorgung
Supermarkt <250m
Bäckerei <250m
Einkaufszentrum <2.250m

Sonstige
Geldautomat <500m
Bank <500m
Post <500m
Polizei <1.500m

Verkehr
Bus <250m
Straßenbahn <500m
Autobahnanschluss <3.500m
Bahnhof <1.250m
Flughafen <9.000m

Angaben Entfernung Luftlinie / Quelle: OpenStreetMap
Beschreibung weiterlesen

Energieeffizienz

HWB:
29,24 kWh/(m²*a)
HWB Klasse:
B
fGEE:
0,61
fGEE Klasse:
A+
Energieausweisart:
Energiebedarfs-ausweis
Gültig bis:
03.08.2027

Dokumente

Grundriss

Lageplan

8020 Graz | Graz (Stadt)

Lade...
Johannes Brunner

Johannes Brunner

EHL Wohnen GmbH

Lade...

Fotomix

Bild 1 Bild 2 Bild 3 Bild 4 Bild 5 Bild 6 Bild 7 Bild 8 Bild 9 Bild 10 Bild 11 Bild 12 Bild 13 Bild 14 Bild 15 Bild 16 Bild 17 Bild 18 Bild 19 Bild 20