WOHNEN IN DER RESIDENZ AM HAMERLINGPARK!

Wohnung zur Miete in 1080 Wien - Gesamtmiete: 3.158,77 € / Objektnummer: 1939/132592
Ausstattung: Boden Fahrstuhl Wohnküche / offene Küche Bad Gäste-WC Fahrradraum Abstellraum Fernwärme Loggia
Hamerlingpark
Hamerling
IMG_4449
IMG_4072
IMG_4459
IMG_4450
IMG_4070
IMG_E4463
IMG_4451
IMG_4466
IMG_4453
IMG_4455
IMG_4448
IMG_E4447
Stiegenhaus
Foyer
Garten
plan

Preisinformationen

Gesamtmiete:
3.158,77 € / Monat
Betriebskosten netto:
421,61 € / Monat
Umsatzsteuer:
287,16 €
Provision:
Gemäß Erstauftraggeberprinzip bezahlt der Abgeber die Provision.

Fakten

Objektnummer:
1939/132592
Objekttyp:
Wohnung
Loggia:
1
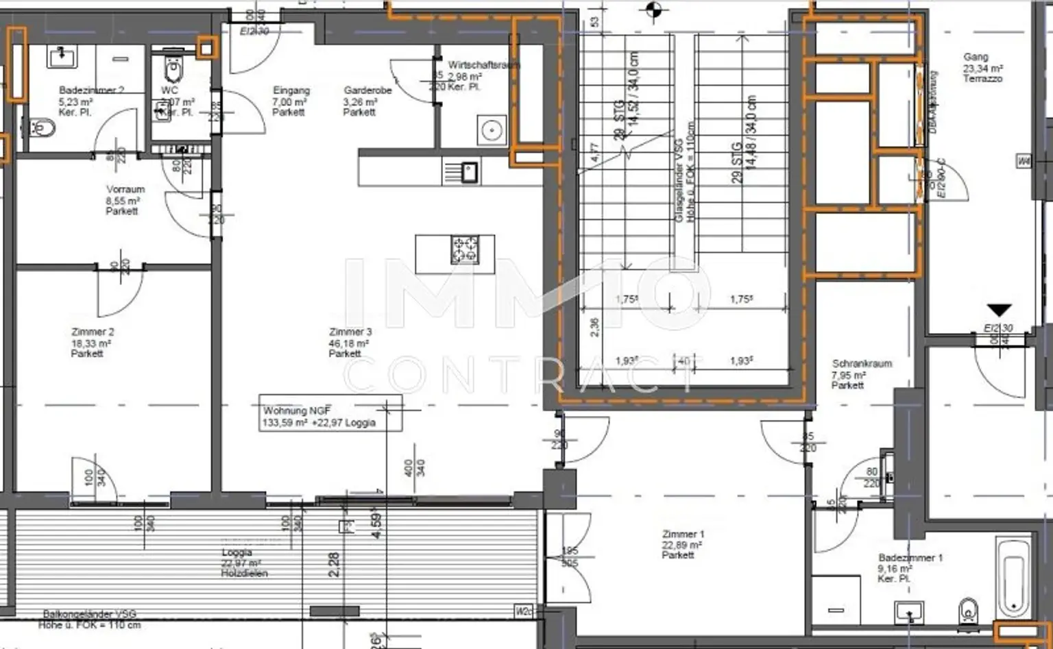
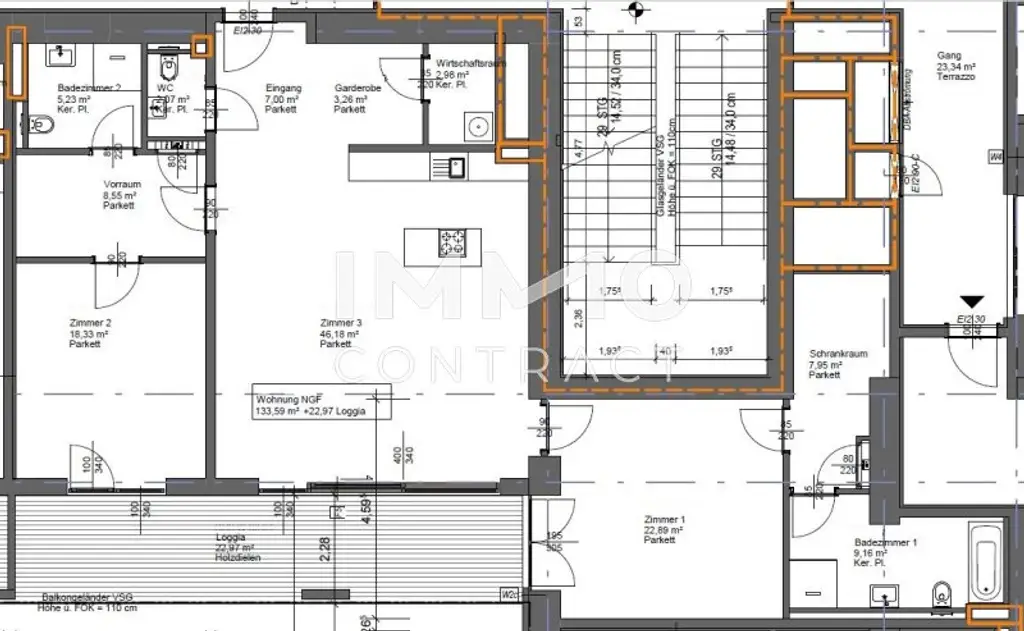
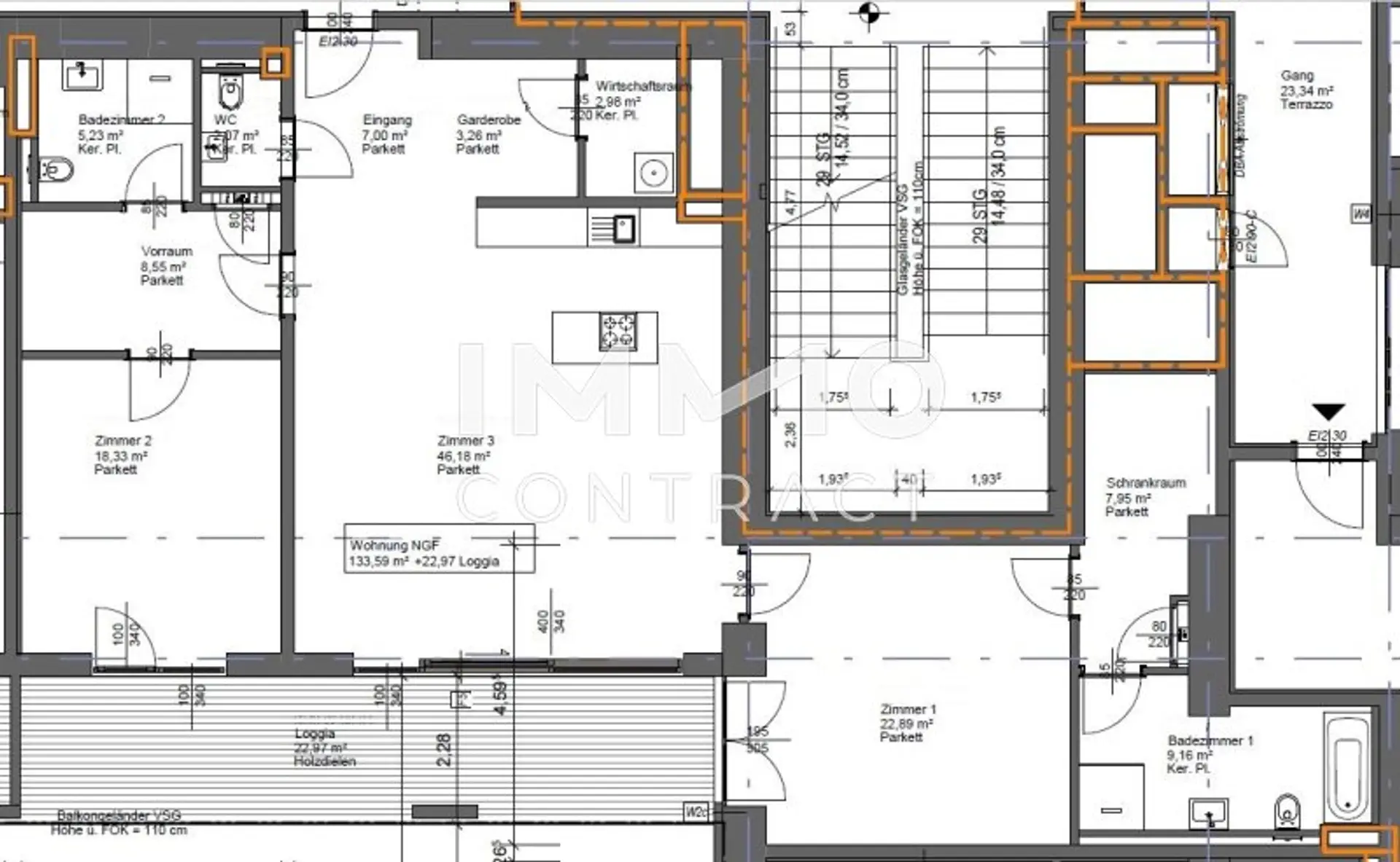
Wohnfläche:
133,59 m²
Loggia Fläche:
22,97 m²
Nutzfläche:
156,57 m²
Zimmer:
3
Badezimmer:
2
Toilette:
1
Letzte Sanierung:
2016
Verfügbarkeit:
Verfügbar

Beschreibung

„Das Hamerling“ – ein prachtvolles Juwel inmitten der Josefstadt

Wohnen im Herzen eines der begehrtesten Bezirke Wiens: In der charmanten Josefstadt erwartet Sie diese großzügige Wohnung mit Loggia, die 2016 stilvoll modernisiert wurde. Sie vereint exquisite Ausstattung mit dem historischen Flair der Umgebung – ein wahres Zuhause für Liebhaber urbaner Lebensqualität.

Beim Betreten empfängt Sie ein einladender Flur, der in den Wohnbereich führt. Zwei geräumige Schlafzimmer und zwei elegante Bäder bieten viel Privatsphäre und höchsten Komfort. Hochwertige Fliesen- und Parkettböden schaffen eine warme, wohnliche Atmosphäre. Die moderne Einbauküche und ein zusätzliches Gäste-WC sorgen für zusätzlichen Wohnkomfort.

RAUMAUFTEILUNG:

* Vorraum,
* Gäste WC,
* Bad mit Dusche und WC,
* Zwei Abstellräume,
* Wohnküche mit direktem Zugang zur Loggia mit herrlichem Blick auf den Hamerlingpark,
* Zimmer mit direktem Loggiazugang- ideal zum Entspannen,
* Zimmer en suite mit Schankraum und Loggiazugang.

Ein ideales Zuhause für alle, die stilvolles Wohnen mit urbanem Komfort kombinieren möchten. Lassen Sie sich diese einmalige Gelegenheit nicht entgehen und erleben Sie die Lebensqualität dieser einzigartigen Immobilie selbst.

Vereinbaren Sie einen Besichtigungstermin und überzeugen Sie sich selbst von der Qualität dieser Immobilie!

Wir weisen darauf hin, dass zwischen dem Vermittler und dem zu vermittelnden Dritten ein familiäres oder wirtschaftliches Naheverhältnis besteht.

Der Immobilienmakler erklärt, dass er – entgegen dem in der Immobilienwirtschaft üblichen Geschäftsgebrauch des Doppelmaklers – einseitig nur für den Vermieter tätig ist.

Infrastruktur / Entfernungen

Gesundheit
Arzt <500m
Apotheke <500m
Klinik <500m
Krankenhaus <500m

Kinder & Schulen
Schule <500m
Kindergarten <500m
Universität <1.000m
Höhere Schule <500m

Nahversorgung
Supermarkt <500m
Bäckerei <500m
Einkaufszentrum <1.500m

Sonstige
Geldautomat <500m
Bank <500m
Post <500m
Polizei <500m

Verkehr
Bus <500m
U-Bahn <500m
Straßenbahn <500m
Bahnhof <500m
Autobahnanschluss <3.500m

Angaben Entfernung Luftlinie / Quelle: OpenStreetMap
Beschreibung weiterlesen

Lage und Verkehrsanbindung

Diese begehrte Wohngegend zeichnet sich durch ihre historische Architektur und ihre Nähe zu zahlreichen kulturellen und gastronomischen Angeboten aus. Sie ist eine der lebenswertesten Gegenden der Stadt und besticht durch seine Mischung aus urbanem Flair und ruhiger Wohnatmosphäre.

Die zentrale Lage ermöglicht eine ausgezeichnete Verkehrsanbindung, wobei mehrere öffentliche Verkehrsmittel in unmittelbarer Nähe zur Verfügung stehen, um eine reibungslose Anbindung an das Stadtzentrum und andere Teile Wiens zu gewährleisten. Darüber hinaus befinden sich in der Umgebung zahlreiche Einkaufsmöglichkeiten, Cafés und Restaurants, die mit ihrer Vielfalt an kulinarischen Genüssen überzeugen.
Ein weiterer Pluspunkt dieser Lage ist die Nähe zu zahlreichen Bildungseinrichtungen sowie zu idyllischen Parks, die zu entspannten Spaziergängen einladen. Die Josefstadt verbindet auf harmonische Weise komfortables Stadterleben mit gemütlichem Wohnambiente, wodurch sie besonders bei Familien und jungen Berufstätigen beliebt ist.

Diese hervorragende Lage ist ideal für all jene, die das pulsierende Leben Wiens genießen möchten, ohne auf Ruhe und Komfort verzichten zu müssen.

Energieeffizienz

HWB:
21,9 kWh/(m²*a)
HWB Klasse:
B
fGEE:
0,87
fGEE Klasse:
B
Energieausweisart:
Energiebedarfs-ausweis
Gültig bis:
16.10.2033

Grundriss

Lageplan

1080 Wien | Wien 8., Josefstadt

Lade...
Celen Arca

Celen Arca
Immobilienfachberaterin

IMMOcontract Immobilien Vermittlung GmbH

Lade...

Fotomix

Hamerlingpark Hamerling IMG_4449 IMG_4072 IMG_4459 IMG_4450 IMG_4070 IMG_E4463 IMG_4451 IMG_4466 IMG_4453 IMG_4455 IMG_4448 IMG_E4447 Stiegenhaus Foyer Garten