NEU - Wohnen in exklusiver Innenstadtlage! 2-Zimmer Dachgeschosswohnung mit Terrasse! Erstbezug!

Wohnung zum Kauf in 1010 Wien - Kaufpreis: 699.000 € / Objektnummer: 2345
Ausstattung: Fahrstuhl Wohnküche / offene Küche Bad Klimaanlage Fahrradraum Abstellraum Fußbodenheizung Terrasse

Preisinformationen

Kaufpreis:
699.000 €
Vermittlungsprovision:
Ja
Provision:
3% des Kaufpreises zzgl. 20% USt.

Fakten

Objektnummer:
2345
Objekttyp:
Wohnung
Terrasse:
1
Wohnfläche:
38,63 m²
Zimmer:
2
Badezimmer:
1
Toilette:
1
Baujahr:
1938
Altbau:
Ja
Letzte Sanierung:
2026
Zustand:
Erstbezug
Verfügbarkeit:
Verfügbar

Beschreibung

Exklusive 2-Zimmer-Wohnung in Bestlage nahe Stephansplatz und Stadtpark

Nur rund 200 Meter vom Stephansplatz entfernt und unmittelbar vor den Toren des Stadtpark gelegen, befindet sich diese außergewöhnliche 2-Zimmer-Wohnung in einer ruhigen, repräsentativen Seitenstraße. Umgeben von prachtvollen Wiener Altbauten liegt das im Jahr 1938 errichtete Mehrfamilienhaus, das aktuell umfassend saniert wird. Ziel der Sanierungsarbeiten ist es, die Liegenschaft wie auch die Wohnung selbst sowohl optisch als auch technisch auf einen zeitgemäßen, hochwertigen Standard zu bringen.

Liegenschaft und Ausstattung 

Die Wohnung befindet sich im 1.Dachgeschoss der Liegenschaft und ist bequem über einen Lift erreichbar. Im Zuge der umfassenden Sanierung werden sämtliche Elektro- und Sanitärleitungen erneuert sowie eine moderne Fußbodenheizung installiert.
Darüber hinaus werden die bestehenden Fenster durch hochwertige Isolierglasfenster ersetzt und die Eingangstüre durch eine Sicherheitstüre ausgetauscht – ein klares Bekenntnis zu Komfort, Energieeffizienz und Sicherheit. 

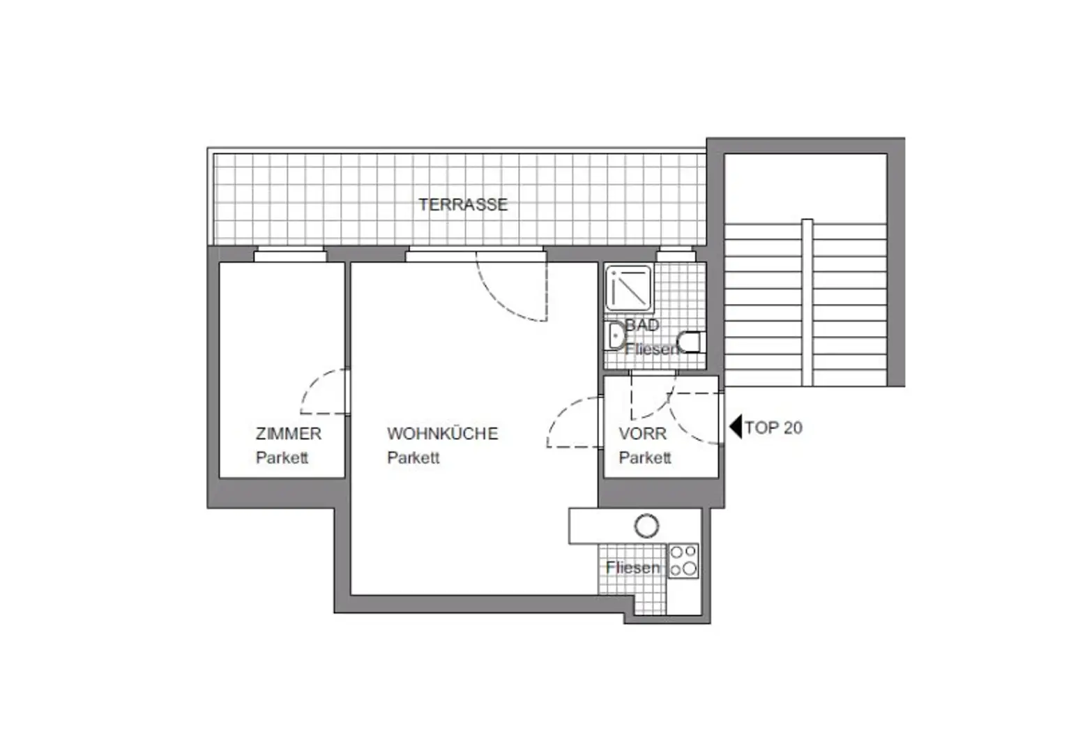
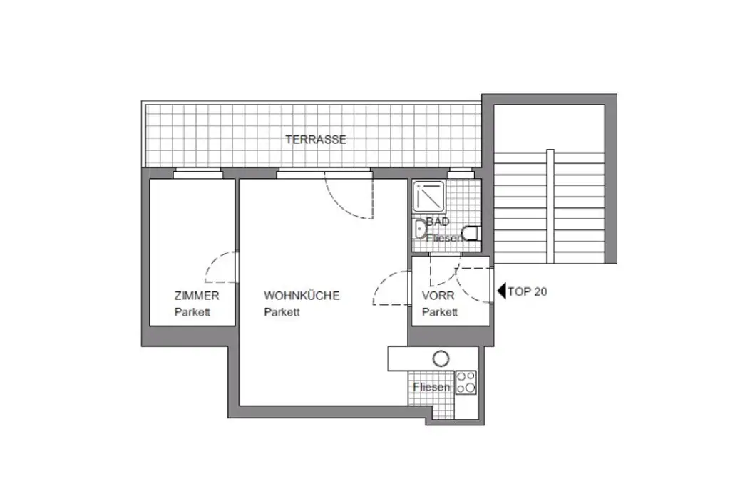
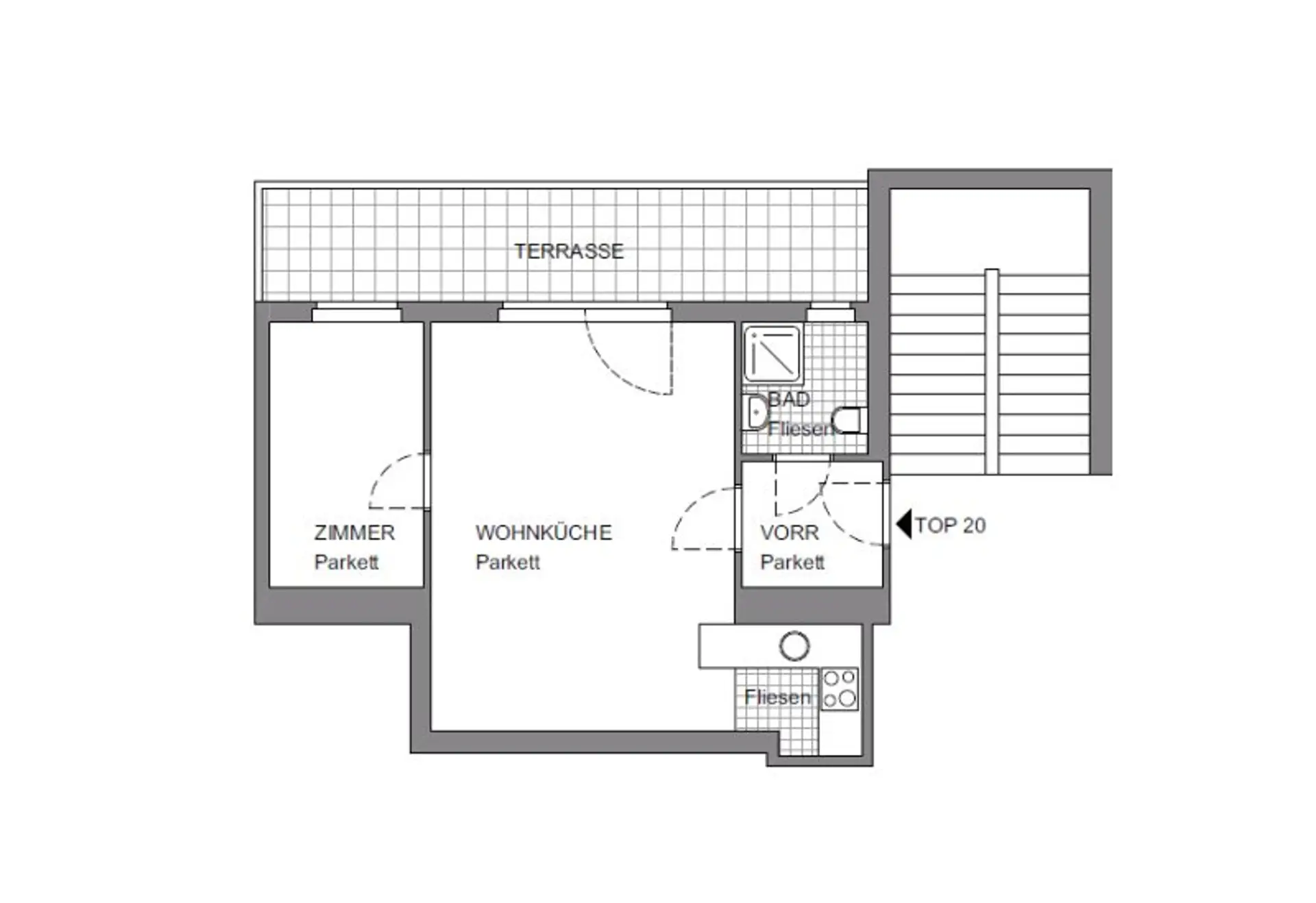
Raumaufteilung:

*
Vorraum

*
Badezimmer

*
Wohn- und Essbereich mit Küchennische

*
Schlafzimmer

*
Terrasse

Wohnkonzept & Details

Der Zugang zur Wohnung erfolgt über ein einladendes Vorzimmer, von dem aus Sie sowohl den großzügigen Wohn- und Essbereich mit integrierter Küchennische als auch das hochwertig sanierte Badezimmer erreichen.
Das Badezimmer wird – je nach Wunsch des Käufers – mit Dusche oder Badewanne ausgestattet und verfügt über ein elegantes Waschbecken sowie eine Toilette. Eine Auswahl an verschiedenen Design- und Ausstattungsvarianten ermöglicht eine individuelle Gestaltung nach persönlichem Geschmack.

Der Wohn- und Essbereich bietet auf rund 25 m² reichlich Platz für eine stilvolle Wohnraumgestaltung. Die offen integrierte Küchennische fügt sich harmonisch in das Raumkonzept ein. Von hier aus gelangen Sie direkt auf die Terrasse, die mit über 12 m² und ihrer nord-östlichen Ausrichtung ideale Voraussetzungen für entspannte Stunden im Freien bietet.

Angrenzend an den Wohnbereich befindet sich das separate Schlafzimmer, das durch seine klare Raumaufteilung eine ruhige und private Rückzugsmöglichkeit schafft.

Diese Wohnung vereint erstklassige Innenstadtlage, hochwertige Sanierung und ein durchdachtes Raumkonzept  – ideal für Eigennutzer wie auch für anspruchsvolle Anleger, die Wert auf Lage, Qualität und Stil legen.

Bitte beachten Sie, dass einige der gezeigten Fotos KI-generierte Visualisierungen darstellen.

Nebenkosten:

​​Grundbucheintragung: 1,1% d.KP. 

Grunderwerbssteuer: 3,5% d.KP.

Maklerprovision: 3% d.KP. + 20% USt. 

Kaufvertragshonorar: 1,2% zzgl. Barauslagen und USt. | Die Errichtung und Durchführung des Kaufvertrages erfolgt durch die Kanzlei Tiefenthaler Gnesda Rechtsanwälte GmbH.

Infrastruktur / Entfernungen

Gesundheit
Arzt <500m
Apotheke <500m
Klinik <500m
Krankenhaus <1.000m

Kinder & Schulen
Schule <500m
Kindergarten <500m
Universität <500m
Höhere Schule <500m

Nahversorgung
Supermarkt <500m
Bäckerei <500m
Einkaufszentrum <1.000m

Sonstige
Geldautomat <500m
Bank <500m
Post <500m
Polizei <500m

Verkehr
Bus <500m
U-Bahn <500m
Straßenbahn <500m
Bahnhof <500m
Autobahnanschluss <3.000m

Angaben Entfernung Luftlinie / Quelle: OpenStreetMap
Beschreibung weiterlesen

Lage und Verkehrsanbindung

In einer der begehrtesten Wohnlagen Wiens, Zwischen Stadtpark und Stephansplatz im Herzen des 1. Bezirks, befindet sich diese außergewöhnliche Eigentumswohnung. Die Adresse vereint historische Eleganz mit urbaner Lebensqualität – ruhig gelegen und dennoch mitten im pulsierenden Zentrum der Stadt. In drei Gehminuten befinden Sie sich am Stephansplatz, in fünf im Stadtpark. Morgens ein schneller Kaffee am Lugeck, mittags Besorgungen in der Wollzeile, abends ein Glas Wein ums Eck – alles funktioniert hier fußläufig und selbstverständlich. Diese Mikrolage lebt von ihrer perfekten Balance aus Urbanität, Diskretion und historischer Substanz. Die Verkehrsanbindung ist hervorragend: Die U-Bahn-Station Stephansplatz (U1, U3), Stadtpark (U4) und Wien Mitte (U3, U4, S-Bahn, CAT) sind rasch erreichbar. Zusätzlich sorgen mehrere Straßenbahnlinien (1, 2, D) und Busverbindungen für eine optimale Verkehrsanbindung.

Energieeffizienz

HWB:
72 kWh/(m²*a)
HWB Klasse:
C
fGEE:
2,4
fGEE Klasse:
D
Energieausweisart:
Energiebedarfs-ausweis
Gültig bis:
31.10.2033

Grundriss

Lageplan

1010 Wien | Wien 1., Innere Stadt

Lade...
Daniel Hartmann

Daniel Hartmann
Immobilienberater

Kuhn Immobilien GmbH

Lade...

Fotomix

Bild 1 Bild 2 Bild 3 Bild 4 Bild 5 Bild 6 Bild 7 Bild 8 Bild 9 Bild 10 Bild 11 Bild 12 Bild 13