NEU - Wohnen mit Garten: Ihr 2-Zimmer-Juwel wartet!

Wohnung zum Kauf in 1130 Wien - Kaufpreis: 388.000 € / Objektnummer: 1939/162405
Ausstattung: Rollstuhlgerecht Boden Fahrstuhl Bad Kabel/Satelliten-TV Fahrradraum Abstellraum Zentralheizung Fußbodenheizung Terrasse Garten
IMG_5895
Wohnküche
Wohnküche_2
Zimmer
Zimmer_2
Bad mit Dusche und WC
IMG_5901
Abstellraum
Gartenansicht
Visualisierung Top 1
Visualisierung Top 1
Eingangsbereich 1
Eingangsbereich 2
Gartengeschoss
Fahrradabstellplatz
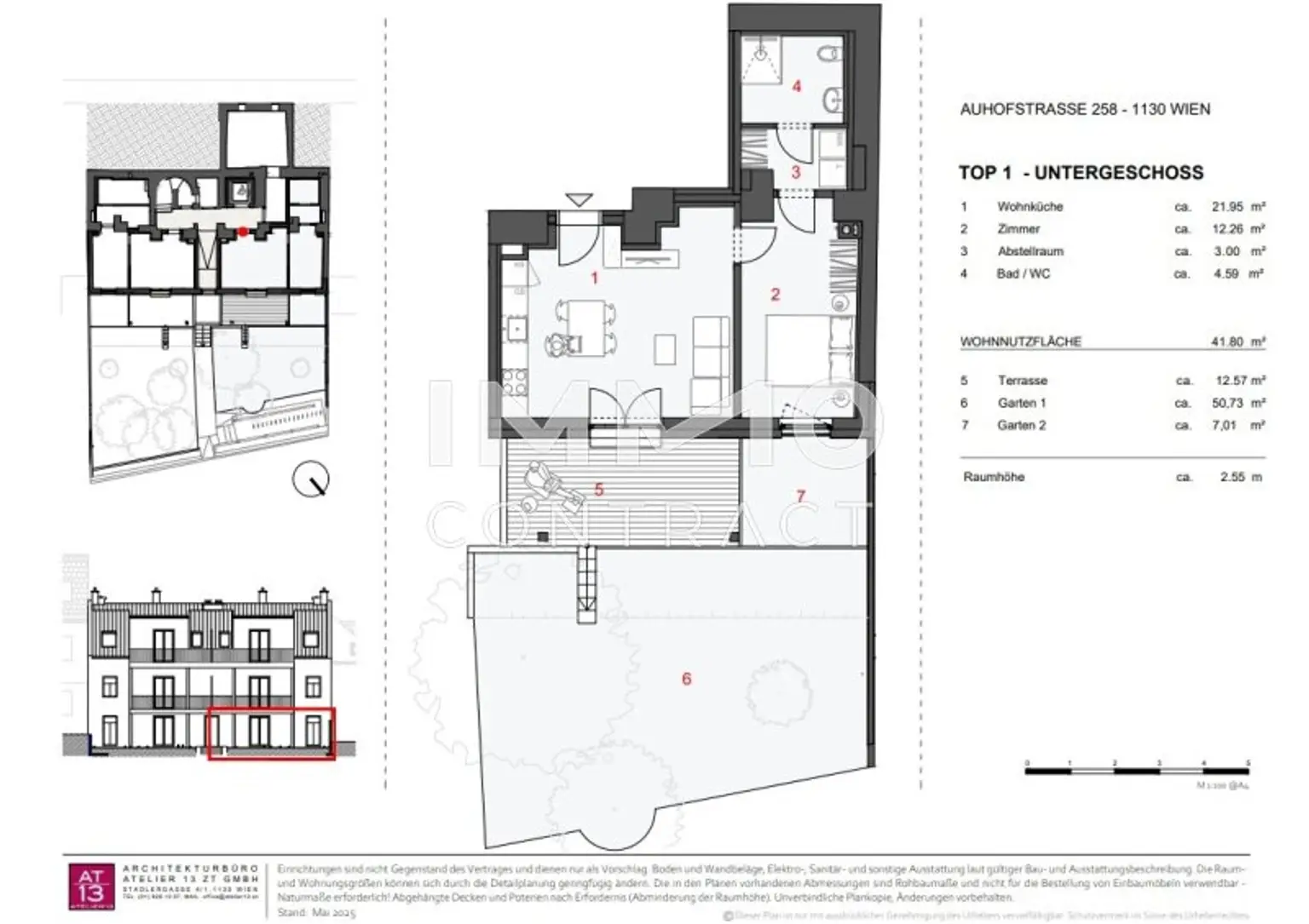
Grundriss Top 1

Preisinformationen

Kaufpreis:
388.000 €
Kaufpreis/m²
10.382,78 €
Vermittlungsprovision:
Ja
Provision:
13.968,00 € inkl. 20% USt.

Fakten

Objektnummer:
1939/162405
Objekttyp:
Wohnung
Terrasse:
1
Wohnfläche:
41,8 m²
Nutzfläche:
41,8 m²
Gesamtfläche:
105,1 m²
Gartenfläche:
50,73 m²
Zimmer:
2
Badezimmer:
1
Baujahr:
2025
Zustand:
Erstbezug
Verfügbarkeit:
Verfügbar

Beschreibung

Diese charmante Zwei-Zimmer-Gartenwohnung im Gartengeschoss des exklusiven Projekt "Nr. 258 Auhofstraße" bietet auf ca. 41,8 m² Wohnfläche eine gelungene Kombination aus historischem Ambiente und modernem Wohnkomfort.
Der offene Wohn- und Essbereich mit direktem Zugang zur großzügigen Terrasse schafft ein helles, einladendes Raumgefühl. Das Schlafzimmer ist ruhig gelegen und bietet direkten Blick ins Grüne. Ein praktischer Abstellraum sowie ein stilvolles Badezimmer mit hochwertiger Sanitärausstattung runden den Grundriss ab.
Ein besonderes Highlight sind der 50,73 m² große Gartenanteil sowie eine 12,57 m² große Terrasse – perfekt für entspannte Stunden im Freien und private Rückzugsmomente.

Der Vermittler ist als Doppelmakler tätig.

Infrastruktur / Entfernungen

Gesundheit
Arzt <500m
Apotheke <1.000m
Klinik <3.000m
Krankenhaus <1.000m

Kinder & Schulen
Schule <500m
Kindergarten <500m
Universität <2.000m
Höhere Schule <5.000m

Nahversorgung
Supermarkt <500m
Bäckerei <1.000m
Einkaufszentrum <3.000m

Sonstige
Geldautomat <500m
Bank <500m
Post <2.000m
Polizei <1.000m

Verkehr
Bus <500m
U-Bahn <500m
Straßenbahn <500m
Bahnhof <1.000m
Autobahnanschluss <3.000m

Angaben Entfernung Luftlinie / Quelle: OpenStreetMap
Beschreibung weiterlesen

Lage und Verkehrsanbindung

Die Auhofstraße 258 vereint exklusive Wohnqualität mit einer Lage, die ihresgleichen sucht. Eingebettet in die grüne Idylle des traditionsreichen Bezirks Hietzing, einer der prestigeträchtigsten Adressen Wiens, genießen Sie hier die perfekte Balance aus Ruhe, Natur und urbaner Nähe.

Nur wenige Schritte entfernt sorgen die U4-Station Hütteldorf, diverse S-Bahn- und Buslinien für eine schnelle, bequeme Anbindung ins Wiener Stadtzentrum. Zugleich eröffnet sich direkt vor der Haustür ein reichhaltiges Angebot an erstklassigen Einkaufsmöglichkeiten, feiner Gastronomie, renommierten Bildungseinrichtungen sowie umfassender medizinischer Versorgung.

Für aktive Erholung und entspannte Stunden im Freien bietet die Umgebung eine Vielzahl an Möglichkeiten – vom malerischen Wiental-Radweg über gepflegte Parks bis hin zu den weitläufigen Grünflächen des Wienerwalds. Hier wohnen Sie dort, wo andere Erholung suchen – inmitten von Natur und dennoch in bester Verbindung zur pulsierenden Metropole Wien.

Energieeffizienz

HWB:
40,2 kWh/(m²*a)
HWB Klasse:
B
fGEE:
0,82
fGEE Klasse:
A
Energieausweisart:
Energiebedarfs-ausweis
Gültig bis:
16.04.2035

Grundriss

Lageplan

1130 Wien | Wien 13., Hietzing

Lade...
Julian Pelzmann

Julian Pelzmann
Immobilienfachberater

IMMOcontract Immobilien Vermittlung GmbH

Lade...

Fotomix

IMG_5895 Wohnküche Wohnküche_2 Zimmer Zimmer_2 Bad mit Dusche und WC IMG_5901 Abstellraum Gartenansicht Visualisierung Top 1 Visualisierung Top 1 Eingangsbereich 1 Eingangsbereich 2 Gartengeschoss Fahrradabstellplatz