NEU - Wohnen mit Niveau in Hietzing

Wohnung zur Miete in 1130 Wien - Gesamtmiete: 1.410,91 € / Objektnummer: 19703
Ausstattung: Barrierefrei Boden Fahrstuhl Bad Gäste-WC Kabel/Satelliten-TV Tiefgarage Parkplatz Fahrradraum Abstellraum Zentralheizung Balkon
Loggia
Vorraum/Küche/Blick Zimmer 1
www.bieberundsohn.at
Zimmer 1/Blick Loggia
Zimmer 1/Blick Vorraum
Vorraum mit Pantry-Küche
Zimmer 2
Zimmer 2
Zimmer 2
Blick Zimm1+2 von Loggia
www.bieberundsohn.at
Eingangsbereich
WC
Duschbad
Eingang
Hausansicht
Lageplan
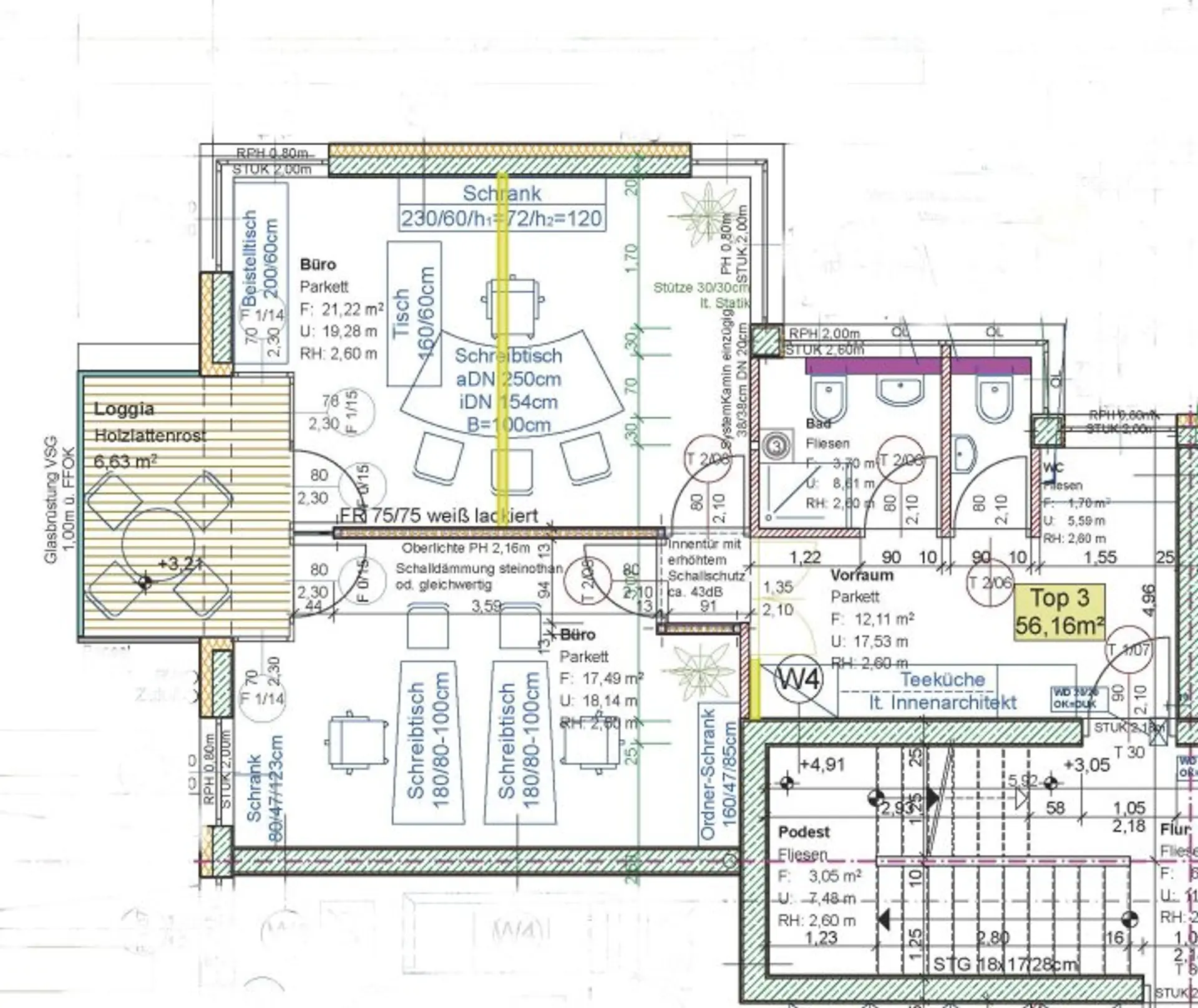
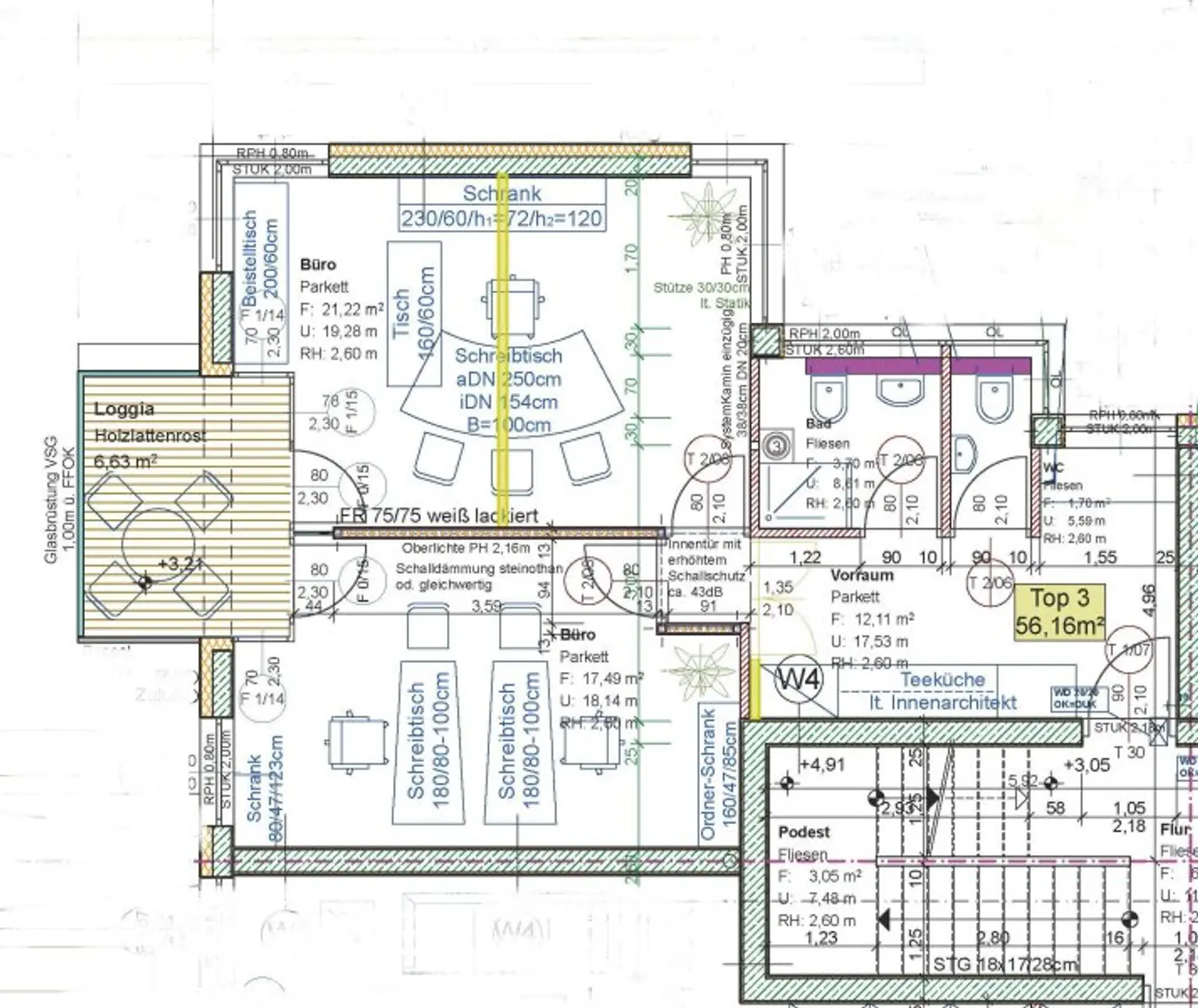
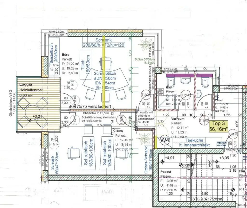
Grundriss

Preisinformationen

Gesamtmiete:
1.410,91 € / Monat
Betriebskosten netto:
99,62 € / Monat
Umsatzsteuer:
128,26 €
Kaution:
4.232,73 €
Provision:
Gemäß Erstauftraggeberprinzip bezahlt der Abgeber die Provision.

Fakten

Objektnummer:
19703
Objekttyp:
Wohnung
Balkon:
1
Balkonfläche:
6,63 m²
Keller Fläche:
6 m²
Wohnfläche:
56,16 m²
Nutzfläche:
62,79 m²
Zimmer:
2
Badezimmer:
1
Toilette:
1
Stockwerk:
1
Baujahr:
2009
Neubau:
Ja
Zustand:
Neuwertig
Verfügbarkeit:
Verfügbar

Beschreibung

Wohnen mit Niveau in Hietzing - in dieser exzellenten Wohnung mit Loggia kann man dies erleben! 

In einem Neubau, BJ 2009, im 1. Liftstock, befindet sich diese ca. 57m² große Wohnung mit einer nach Süd-Ost ausgerichteten, ca. 7m² großen Loggia, die durch das Glasgeländer einen großzügigen, luftigen Charakter vermittelt.

Über den Vorraum, in dem sich die eingebaute, Pantry-Küche befindet, gelangt man in den sonnigen Wohnraum mit Ausgang auf die Loggia, des Weiteren in ein Zimmer mit Ausgang auf die Loggia, in das Bad mit Dusche und Waschtisch und in das separate WC mit Handwaschbecken.

Die Ausstattung ist hochwertig, schöne Parkett-/Fliesenböden, großflächige Glasschiebetüre zur Loggia hin, eine Pantry-Küche mit Abwasch, Kühlschrank, Geschirrspüler und  Kochplatten, Kabel/Telefonanschluß, Gegensprechanlage. Die 2-fach-Isolierglasfenster sind mit elektrischen Rollos versehen.

Die Beheizung und Warmwasseraufbereitung erfolgt über eine Hauszentralheizung, die Räume werden mittels Fußbodenheizung erwärmt.

Zur monatlichen Miete wird ein Akonto für Heizung und Warmwasser mit 85,10 EUR hinzugerechnet, sowie ein Garagenplatz, der obligatorisch um 187,94 EUR /p.m. dazu zu mieten ist.

Die öffentliche Verkehrsanbindung ist ausgezeichnet, in wenigen Gehminuten ist die U4 Station Braunschweiggasse zu erreichen, die Strassenbahnlinie 10 vor der Türe. Die Geschäfte des täglichen Bedarfs sind ebenfalls fußläufig erreichbar.

Miete (netto): 1.183,03 EUR
Betriebskosten (netto): 99,62 EUR
Heizungs-Akonto (netto): 70,00 EUR
Warmwasser-Akonto (netto): 1,00 EUR
Garagenabstellplatz (netto): 156,62 EUR
Umsatzsteuer (gesamt): 173,68 EUR
Gesamtmiete: 1.683,95 EUR (inkl. Warmwasser-, Heizungsakonto und Garagenplatz)

Kaution: 5.051,85 EUR

Der Immobilienmakler erklärt, dass er – entgegen dem in der Immobilienwirtschaft üblichen Geschäftsgebrauch des Doppelmaklers – einseitig nur für den Vermieter tätig ist.
Beschreibung weiterlesen

Lage und Verkehrsanbindung

Hietzinger Hauptstrasse

Energieeffizienz

HWB:
41 kWh/(m²*a)
HWB Klasse:
B
fGEE:
0,79
fGEE Klasse:
A
Energieausweisart:
Energiebedarfs-ausweis
Gültig bis:
01.02.2036

Grundriss

Lageplan

1130 Wien | Wien 13., Hietzing

Lade...
Elisabeth Bieber

Elisabeth Bieber

Bieber Immobilien GmbH

Lade...

Fotomix

Loggia Vorraum/Küche/Blick Zimmer 1 Bild 3 www.bieberundsohn.at Zimmer 1/Blick Loggia Zimmer 1/Blick Vorraum Vorraum mit Pantry-Küche Zimmer 2 Zimmer 2 Zimmer 2 Blick Zimm1+2 von Loggia www.bieberundsohn.at Eingangsbereich WC Duschbad Eingang Hausansicht Lageplan