NEU - Wohnen nahe der Donau in 1200 Wien: Geräumige 2-Zimmer Wohnung inkl. Einbauküche!

Wohnung zur Miete in 1200 Wien - Gesamtmiete: 941,81 € / Objektnummer: 1764630
Ausstattung: Boden Fahrstuhl Wohnküche / offene Küche Bad Kabel/Satelliten-TV Fahrradraum Abstellraum Zentralheizung

Preisinformationen

Gesamtmiete:
941,81 € / Monat
Betriebskosten netto:
192,29 € / Monat
Umsatzsteuer:
85,62 €
Kaution:
3 Bruttomonatsmieten
Provision:
Gemäß Erstauftraggeberprinzip bezahlt der Abgeber die Provision.

Fakten

Objektnummer:
1764630
Objekttyp:
Wohnung
Wohnfläche:
67,47 m²
Nutzfläche:
67,47 m²
Gesamtfläche:
67,47 m²
Zimmer:
2
Badezimmer:
1
Toilette:
2
Stockwerk:
1
Baujahr:
2009
Neubau:
Ja
Zustand:
Neuwertig
Verfügbarkeit:
Verfügbar
Verfügbar ab:
01.07.2026

Beschreibung

Urban wohnen zwischen Donau, Augarten und Prater

In attraktiver Lage des 20. Wiener Gemeindebezirks gelangen mehrere gepflegte Mietwohnungen mit 1 bis 4 Zimmern zur Vermietung. Die Wohnflächen bewegen sich zwischen ca. 40 m² und 100 m² und bieten vielseitige Wohnlösungen für Singles, Paare und Familien.

Die Wohnungen überzeugen durch durchdachte Grundrisse, angenehme Helligkeit sowie eine praktische Ausstattung, die zeitgemäßes Wohnen mit hohem Komfort verbindet. Ein behagliches Wohngefühl steht dabei stets im Mittelpunkt.

 

Das bietet Ihnen die Liegenschaft:

 

Die Liegenschaft bietet eine Auswahl an gut geschnittenen Wohnungen mit funktionalen Raumkonzepten und zeitloser Ausstattung:

* Wohnungsgrößen von ca. 40 m² bis 100 m²
* 1 bis 4 Zimmer
* Einbauküche
* Gute Raumaufteilung und helle Wohnräume

Wohnung Top 1.09:

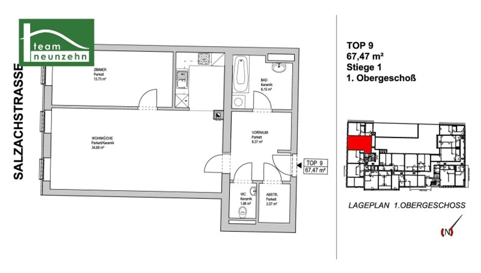
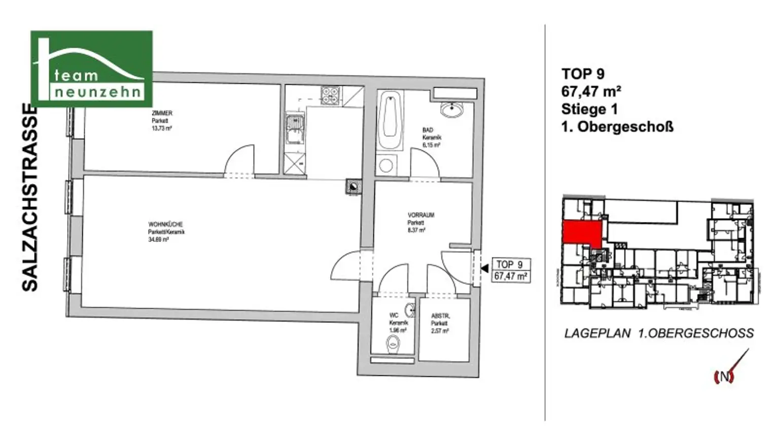
Die Wohnung mit ca. 67,47 m² Wohnfläche liegt im 1. Obergeschoss und gliedert sich in folgende tolle Raumaufteilung:

* Vorraum ca. 8,37 m²
* separates WC ca. 1,96 m²
* Wohn-/Essbereich mit separater Kochnische ca. 34,69 m²
* Zimmer ca. 13,73 m²
* Badezimmer mit WC, Badewanne, Waschbecken und Waschmaschinenanschluss ca. 6,15 m²
* Abstellraum ca. 2,57 m²
 

Wir weisen höflichst darauf hin, dass es sich bei den Fotos anbei um Musterfotos handelt. Die Wohnung wird gleich oder gleichwertig übergeben.

Einige Bilder des Inserats wurden zum Zweck der besseren Visualisierung digital mit KI möbliert. Die Wohnung wird unmöbliert übergeben.
 

Mietkosten:

monatliche Mietkosten: € 941,81 (inkl. Betriebskosten und USt.)

Bei dem angeführten Mietpreis handelt es sich um eine Kaltmiete, somit sind sämtliche Energiekosten wie Warmwasser-, Heiz- und Stromkosten nicht inkludiert.

 

Nebenkosten:

Kaution: 3 Bruttomonatsmieten

 

Infrastruktur

Die Umgebung zeichnet sich durch eine ausgezeichnete Infrastruktur und ein hohes Maß an Lebensqualität aus. Die Nähe zur Donau, zum Augarten sowie zum Prater bietet ideale Möglichkeiten für Erholung, Sport und Freizeit im Grünen.

Gleichzeitig profitieren Bewohner von einer sehr guten Nahversorgung sowie kurzen Wegen zu Geschäften, Gastronomie und Dienstleistern des täglichen Bedarfs.

Öffentliche Verkehrsanbindung:

* Buslinien: 11A, 11B, 5A, 37A
* Straßenbahnlinien: O, 2
* Bahnhöfe: Wien Traisengasse, Wien Handelskai

Sowohl die Wiener Innenstadt als auch die Donauinsel sind in wenigen Minuten erreichbar.

 

Energieausweis

Der Heizwärmebedarf beträgt 31,80 kWh/m²a und entspricht der Energieeffizienzklasse B.

 

Diese Wohnungen vereinen eine zentrale Lage mit hoher Wohnqualität und bieten durch die Nähe zur Donau, zum Augarten und zum Prater ein Wohnumfeld, das urbanes Leben und Erholung auf angenehme Weise miteinander verbindet.

Gerne steht Ihnen für Fragen und Besichtigungen Herr Darius Muntean unter Muntean@teamneunzehn.at sowie unter +43 676 5644 314 zur Verfügung.

Wir weisen darauf hin, dass zwischen dem Vermittler und dem zu vermittelnden Dritten ein familiäres oder wirtschaftliches Naheverhältnis besteht.

Der Immobilienmakler erklärt, dass er – entgegen dem in der Immobilienwirtschaft üblichen Geschäftsgebrauch des Doppelmaklers – einseitig nur für den Vermieter tätig ist.

"Leben braucht Raum" * T19-RE Real Estate GmbH & Co KG * www.teamneunzehn.at [https://www.teamneunzehn.at]

Doppelmakler

Wir werden als Immobilienmakler kraft bestehenden Geschäftsgebrauchs als Doppelmakler tätig und haben sohin beide Seiten des Vertrages (Verkäufer-Käufer, Vermieter-Mieter) zu unterstützen.

Wirtschaftliches Naheverhältnis

Es wird bekannt gegeben, dass folgendes wirtschaftliches Naheverhältnis zwischen der teamneunzehn-Gruppe und dem Verkäufer/der vermietenden Partei besteht: ständige und dauerhafte Beauftragung mit der Vermittlung des bestehenden Immobilienportfolios

Haftungserklärung zum Inserat

Irrtum und Änderungen vorbehalten! Sofern es sich bei Bildern um Visualisierungen handelt, können Abänderungen zur tatsächlichen Ausführung resultieren. Wir weisen ausdrücklich darauf hin, dass das auf Fotos oder Visualisierungen ersichtliche Mobiliar bzw. Inventar nicht Bestandteil des inserierten Preises ist.
Beschreibung weiterlesen

Lage und Verkehrsanbindung

Vorgartenstraße, Handelskai, Donau, Dresdner Straße, Augarten, Prater, Millennium City

Energieeffizienz

HWB:
42,3 kWh/(m²*a)
HWB Klasse:
B
fGEE:
1,06
fGEE Klasse:
C
Energieausweisart:
Energiebedarfs-ausweis

Grundriss

Lageplan

1200 Wien | Wien 20., Brigittenau

Lade...
Darius Muntean

Darius Muntean
Abwicklungsmanagement

teamneunzehn-Gruppe

Lade...

Fotomix

Bild 1 Bild 2 Bild 3 Bild 4 Bild 5 Bild 6 Bild 7 Bild 8 Bild 9 Bild 10 Bild 11 Bild 12 Bild 13 Bild 14 Bild 15 Bild 16 Bild 17 Bild 18