NEU - Wohnen nahe der Donau in 1200 Wien: Geräumige 4-Zimmer Wohnung mit Terrasse!

Wohnung zur Miete in 1200 Wien - Gesamtmiete: 1.897,96 € / Objektnummer: 1758867
Ausstattung: Boden Fahrstuhl Wohnküche / offene Küche Bad Gäste-WC Kabel/Satelliten-TV Fahrradraum Zentralheizung Loggia Terrasse

Preisinformationen

Gesamtmiete:
1.897,96 € / Monat
Betriebskosten netto:
290,42 € / Monat
Umsatzsteuer:
172,54 €
Kaution:
3 Bruttomonatsmieten
Provision:
Gemäß Erstauftraggeberprinzip bezahlt der Abgeber die Provision.

Fakten

Objektnummer:
1758867
Objekttyp:
Wohnung
Terrasse:
3
Loggia:
1
Wohnfläche:
100,29 m²
Loggia Fläche:
0,96 m²
Nutzfläche:
118,37 m²
Gesamtfläche:
118,37 m²
Zimmer:
4
Badezimmer:
1
Toilette:
2
Baujahr:
2009
Neubau:
Ja
Zustand:
Neuwertig
Verfügbarkeit:
Verfügbar

Beschreibung

Gepflegte Mietwohnungen nahe Donau, Augarten und Prater

In zentraler Lage des 20. Bezirks gelangen mehrere 1- bis 3-Zimmer-Wohnungen mit Wohnflächen zwischen 44 m² und 89 m² zur unbefristeten Vermietung.

Die Wohnungen punkten mit einem durchdachten Grundriss, hellen Räumen und einer praktischen Ausstattung, die ein angenehmes Wohngefühl vermittelt.

 

Das bietet Ihnen die Liegenschaft:

* Wohnungsgrößen: 44 m² bis 89 m²
* Zimmeranzahl: 1 bis 3 Zimmer
* Einbauküche
* Unbefristete Mietverträge
* Gute Raumaufteilung & angenehme Helligkeit

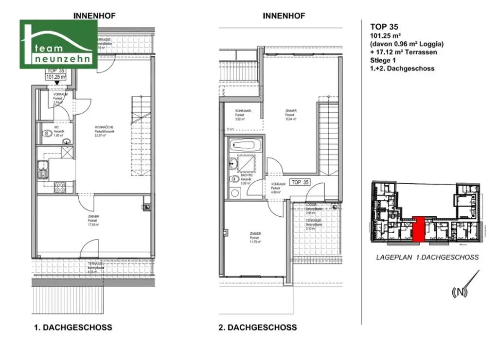
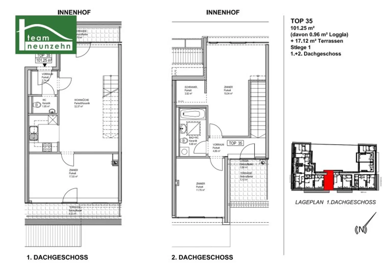
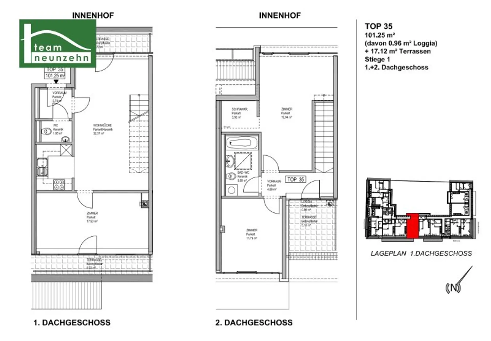
Wohnung Top 1.35:

Die Wohnung mit ca. 100,29 m² Wohnfläche und ca. 18,08 m² Terrasse liegt im 1. + 2. Dachgeschoss und gliedert sich in folgende tolle Raumaufteilung:

​​​​1. Dachgeschoss

* Vorraum ca. 2,74 m²
* separates WC ca. 1,95 m²
* Wohn-/Essbereich mit separater Kochnische ca. 32,37 m²
* 1. Zimmer ca. 17,93 m²
* Terrasse ca. 6,23 m²
* Terrasse ca. 5,79 m²

2. Dachgeschoss

* Vorraum ca. 4,86 m²
* Badezimmer mit WC, Badewanne, Waschbecken und Waschmaschinenanschluss ca. 5,69 m²
* 2. Zimmer ca. 11,79 m²
* 3. Zimmer ca. 19,04 m²
* Schrankraum ca. 3,92 m²
* Terrasse ca. 6,06 m²

 

Wir weisen höflichst darauf hin, dass es sich bei den Fotos anbei um Musterfotos handelt. Die Wohnung wird gleich oder gleichwertig übergeben.

 

Mietkosten:

monatliche Mietkosten: € 1.897,97 (inkl. Betriebskosten und USt.)

Bei dem angeführten Mietpreis handelt es sich um eine Kaltmiete, somit sind sämtliche Energiekosten wie Warmwasser-, Heiz- und Stromkosten nicht inkludiert.

 

Nebenkosten:

Kaution: 3 Bruttomonatsmieten

Mietvertragserrichtungsgebühr: € 155,00 inkl. 20% USt.

 

Infrastruktur: 

Die Wohnungen befinden sich in einer gut erschlossenen Wohngegend in der Nähe der Donau, des Augartens und des Praters – ideale Voraussetzungen für Erholung, Sport und Freizeit im Grünen. Gleichzeitig profitieren Sie von einer ausgezeichneten Nahversorgung sowie kurzen Wegen zu öffentlichen Verkehrsmitteln.

 

Sehr gute öffentliche Anbindung:

* Buslinien: 11A, 11B, 5A, 37A
* Straßenbahnlinien: O, 2
* Bahnhöfe: Wien Traisengasse, Wien Handelskai

Sowohl die Wiener Innenstadt als auch die Donauinsel sind in wenigen Minuten erreichbar.

 

 

Energieausweis:

Der Heizwärmebedarf beträgt 42,30 kWh/m²a, welcher der Klasse B entspricht.

 

 

Für Fragen bzw. Besichtigungen steht Ihnen Frau Marija Ivanov sehr gerne unter ivanov@teamneunzehn.at sowie unter +43 676 852 243 531 zur Verfügung.

Wir weisen darauf hin, dass zwischen dem Vermittler und dem zu vermittelnden Dritten ein familiäres oder wirtschaftliches Naheverhältnis besteht.

Der Immobilienmakler erklärt, dass er – entgegen dem in der Immobilienwirtschaft üblichen Geschäftsgebrauch des Doppelmaklers – einseitig nur für den Vermieter tätig ist.

"Leben braucht Raum" * T19-RE Real Estate GmbH & Co KG * www.teamneunzehn.at [https://www.teamneunzehn.at]

Doppelmakler

Wir werden als Immobilienmakler kraft bestehenden Geschäftsgebrauchs als Doppelmakler tätig und haben sohin beide Seiten des Vertrages (Verkäufer-Käufer, Vermieter-Mieter) zu unterstützen.

Wirtschaftliches Naheverhältnis

Es wird bekannt gegeben, dass folgendes wirtschaftliches Naheverhältnis zwischen der teamneunzehn-Gruppe und dem Verkäufer/der vermietenden Partei besteht: ständige und dauerhafte Beauftragung mit der Vermittlung des bestehenden Immobilienportfolios

Haftungserklärung zum Inserat

Irrtum und Änderungen vorbehalten! Sofern es sich bei Bildern um Visualisierungen handelt, können Abänderungen zur tatsächlichen Ausführung resultieren. Wir weisen ausdrücklich darauf hin, dass das auf Fotos oder Visualisierungen ersichtliche Mobiliar bzw. Inventar nicht Bestandteil des inserierten Preises ist.
Beschreibung weiterlesen

Lage und Verkehrsanbindung

Vorgartenstraße, Handelskai, Donau, Dresdner Straße, Augarten, Prater, Millennium City

Troststraße, Hardtmuthgasse, Inzersdorfer Straße, Raxstraße, Triester Straße, Laxenburger Straße, Wienerberg

Energieeffizienz

HWB:
42,3 kWh/(m²*a)
HWB Klasse:
B
fGEE:
1,06
fGEE Klasse:
C
Energieausweisart:
Energiebedarfs-ausweis

Grundriss

Lageplan

1200 Wien | Wien 20., Brigittenau

Lade...
Marija Ivanov

Marija Ivanov
Immobilienvermittlung

teamneunzehn-Gruppe

Lade...

Fotomix

Bild 1 Bild 2 Bild 3 Bild 4 Bild 5 Bild 6