NEU - Wohnhaus mit Panoramablick & Entwicklungspotenzial nahe Spittal an der Drau – sonnige Ruhelage

Haus zum Kauf in 9702 Ferndorf - Kaufpreis: 349.000 € / Objektnummer: 7137/2277
Ausstattung: Boden Bad Gäste-WC Kabel/Satelliten-TV Garage Carport Parkplatz Außenparkplatz Zentralheizung Fußbodenheizung Balkon Terrasse Garten
Ansicht Zufahrt
Ansicht von oben
Ansicht
Ansicht
Ansicht
Aussicht
Terrasse EG Aussicht
Balkon EG
Terrasse UG
Ansicht
Aussicht UG
Eingangsbereich
Eingangsbereich EG
13 Gangbereich EG
Eingangsbereich Gang
WC EG
Küche EG
Küche/Essbereich EG
EG Küche
Esszimmer EG
EG- Wohn/Essbereich EG
EG Wohnbereich Zugang zu den Terrassen
EG Wohnzimmer
EG Wohnzimmer
EG Stiegen Auf 1 OG /Abgang UG
1 OG Schlafzimmer mit Balkon
1 OG Schlafzimmer- Möglichkeit zur Raumtrennung 2 Zimmer
1 OG Schlafzimmer
1 OG Schlafzimmer Ausblick
1 OG Schlafzimmer oder Büro
1 OG Gangbereich Zugang zum Dachraum
Dachraum
1 OG Badezimmer
1 OG Badezimmer
UG Zugang Stiege
UG Zugang von Außen über die Terrasse
UG Großer Wohnraum
UG Badezimmer und WC und Waschraum
UG Bad
UG Wohnraum mit Kamin
UG Wohnraum
UG Stromzählerkasten
UG Technikraum (Erdwärmeheizung)
UG Zimmer Sanierungsbedürftig
UG WC
Eingangsbereich
Zufahrt Garagentor
EG-Grundriss ohne Zwischenwand (grün markiert)
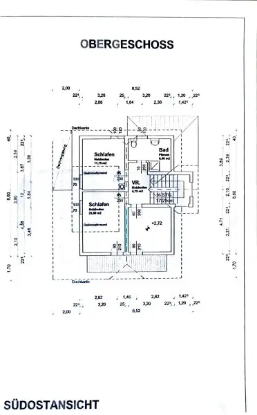
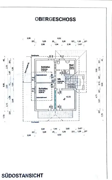
1 OG-Grundriss ohne Zwischenwand (grün markiert)
UG-Grundriss ohne Zwischenwände (grün markiert)

Preisinformationen

Kaufpreis:
349.000 €
Betriebskosten netto:
280,00 € / Monat
Vermittlungsprovision:
Ja
Provision:
3.0% plus 20.0% USt.

Fakten

Objektnummer:
7137/2277
Objekttyp:
Haus
Balkon:
1
Terrasse:
5
Balkonfläche:
10 m²
Wohnfläche:
173 m²
Nutzfläche:
7 m²
Grundstücksfläche:
699 m²
Gesamtfläche:
180 m²
Gartenfläche:
624 m²
Zimmer:
5
Badezimmer:
3
Toilette:
4
Baujahr:
2008
Altbau:
Ja
Letzte Sanierung:
2019
Zustand:
Sanierungsbedürftig
Verfügbarkeit:
Verfügbar

Beschreibung

Wohnhaus mit Panoramablick & Entwicklungspotenzial nahe Spittal an der Drau – sonnige Ruhelage
Ruhige Sonnenlage | Erdwärme | Zwei Wohneinheiten möglich

Kurzbeschreibung

Dieses im Jahr 2008 errichtete Wohnhaus befindet sich in ruhiger, sonniger Lage nahe Rothenthurn, nur ca. 10 km von der Stadt Spittal an der Drau sowie dem Autobahnzubringer entfernt. Es überzeugt durch einen beeindruckenden Fernblick auf die umliegende Natur- und Berglandschaft.

Dank der einfach teilbaren Struktur in zwei Wohneinheiten bietet die Immobilie vielseitige Nutzungsmöglichkeiten – ideal für Familien, Mehrgenerationenwohnen oder auch zur teilweisen Vermietung.

HIGHLIGHTS

*
Ruhige, sonnige Lage mit unverbaubarem Panoramablick

*
Zwei Wohneinheiten möglich

*
Untergeschoss in Massivbauweise, Erd- und Obergeschoss in Holzriegelbauweise

*
Energieeffiziente Erdwärmeheizung mit Fußbodenheizung und Heizkörpern im 1 Obergeschoss

*
Direktzugang zu großzügigen, teilweise überdachten Terrassen

*
Zwei zugeordnete KFZ-Stellplätze vor dem Haus, zwei Garagenstellplätze (Dacheindeckung fehlt noch) sowie die Möglichkeit zur Errichtung eines Carports auf eigenem Grundstück (Material vorhanden).

*
Anschlüsse für Photovoltaik-Paneele vorbereitet

RAUMAUFTEILUNG

Untergeschoss:

*
Zugang über Innenstiege oder direkt vom Außenbereich bzw. der Terrasse

*
Badezimmer mit WC, Waschraum und Trockenraum

*
Großzügiger Wohnraum mit Holzkaminofen (27,50 m², Raumteilung möglich)

*
Heiz- und Technikraum (Erdwärme)

*
Separate Dusche mit WC

*
Großes Zimmer (24 m²)

*
Direkter Zugang zu zwei teilweise überdachten Terrassen (ca. 75 m²) mit angrenzender Gartenfläche

Erdgeschoss:

*
Vorraum / Garderobe

*
WC mit Fenster

*
Stiegenaufgang ins 1.Obergeschoss / Stiegenabgang ins Untergeschoss

*
Großzügiger, offener Wohn-Ess-Küchenbereich (ca. 37 m²)

*
Zugang zu zwei rund um das Haus verlaufenden Sonnenterrassen (ca. 70 m²) mit Fernblick

Obergeschoss:

*
Vorraum 

*
Ein großes Schlafzimmer (25,00 m²), eine Teilung in zwei Zimmer ist problemlos möglich.

*
1 Schlafzimmer (11,75 m2)

*
Badezimmer mit WC, Waschtisch, Badewanne und Fenster

*
Großer Südbalkon mit Weitblick (ca. 10 m²)

ENERGIEDATEN

*
Energieausweis: liegt vor

*
HWB: 81,00 kWh/m²a | Klasse C

*
fGEE: 1,16 | Klasse C

LAGE

*
Ruhige, naturnahe Wohnlage mit viel Sonne

*
Nähe zum Millstätter See sowie zum Ski- und Wanderberg Goldeck

*
Schnelle Autobahnanbindung bei Spittal an der Drau – Richtung Salzburg, Wien und Italien

*
Ideal für Naturliebhaber, Familien oder Ruhesuchende

ZUSATZINFORMATIONEN

*
Sanierungs- und Fertigstellungsobjekt – ideal für Handwerker oder Investoren, die die Immobilie nach eigenen Vorstellungen gestalten möchten; auf Wunsch Unterstützung bei der Wahl geeigneter Firmen.

*
Betriebskosten inkl. Heizung: ca. 280 € pro Monat

*
Die für den Außenbereich erforderlichen Baumaterialien befinden sich bereits teilweise vor Ort.

FAZIT

Eine günstige Gelegenheit in außergewöhnlicher Lage mit großem Entwicklungspotenzial. Mit handwerklichem Geschick entsteht hier ein wertbeständiges Zuhause mit hohem Wohnkomfort, vielseitigen Nutzungsmöglichkeiten und traumhaftem Fernblick.

KONTAKT

Herbert Wurzer
Immobilienberater
📞 +43 676 51 67 960
✉️ h.wurzer@era.at

Der Vermittler ist als Doppelmakler tätig.

Infrastruktur / Entfernungen

Gesundheit
Arzt <2.000m
Apotheke <5.500m

Kinder & Schulen
Schule <4.500m
Kindergarten <6.500m

Nahversorgung
Supermarkt <2.000m
Bäckerei <4.000m
Einkaufszentrum <9.000m

Sonstige
Bank <5.500m
Geldautomat <5.500m
Post <2.000m
Polizei <4.500m

Verkehr
Bus <500m
Autobahnanschluss <2.500m
Bahnhof <2.500m

Angaben Entfernung Luftlinie / Quelle: OpenStreetMap
Beschreibung weiterlesen

Lage und Verkehrsanbindung

Spittal an der Drau

Energieeffizienz

HWB:
81 kWh/(m²*a)
HWB Klasse:
C
fGEE:
1,16
fGEE Klasse:
C
Energieausweisart:
Energiebedarfs-ausweis
Gültig bis:
23.03.2023

Lageplan

9702 Ferndorf | Villach Land

Lade...
Herbert Wurzer

Herbert Wurzer

ERA IMED Immobilien

Lade...

Fotomix

Ansicht Zufahrt Ansicht von oben Ansicht Ansicht Ansicht Aussicht Terrasse EG Aussicht Balkon EG Terrasse UG Ansicht Aussicht UG Eingangsbereich Eingangsbereich EG 13 Gangbereich EG Eingangsbereich Gang WC EG Küche EG Küche/Essbereich EG EG Küche Esszimmer EG EG- Wohn/Essbereich EG EG Wohnbereich Zugang zu den Terrassen EG Wohnzimmer EG Wohnzimmer EG Stiegen Auf 1 OG /Abgang UG 1 OG Schlafzimmer mit Balkon 1 OG Schlafzimmer- Möglichkeit zur Raumtrennung 2 Zimmer 1 OG Schlafzimmer 1 OG Schlafzimmer Ausblick 1 OG Schlafzimmer oder Büro 1 OG Gangbereich Zugang zum Dachraum Dachraum 1 OG Badezimmer 1 OG Badezimmer UG Zugang Stiege UG Zugang von Außen über die Terrasse UG Großer Wohnraum UG Badezimmer und WC und Waschraum UG Bad UG Wohnraum mit Kamin UG Wohnraum UG Stromzählerkasten UG Technikraum (Erdwärmeheizung) UG Zimmer Sanierungsbedürftig UG WC Eingangsbereich Zufahrt Garagentor Bild 48 EG-Grundriss ohne Zwischenwand (grün markiert) 1 OG-Grundriss ohne Zwischenwand (grün markiert) UG-Grundriss ohne Zwischenwände (grün markiert)