NEU - "Wohnoase Siebenbrunnengasse 44" - Nachhaltig gedacht, besonders gemacht.

Wohnung zum Kauf in 1050 Wien - Kaufpreis: 387.300 € / Objektnummer: 101/18171
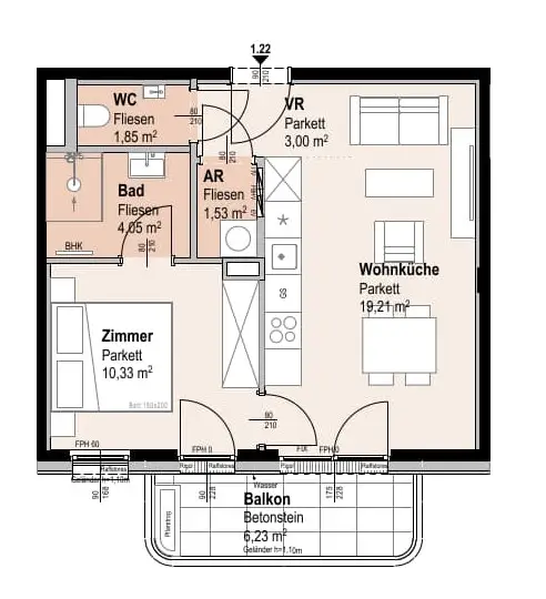
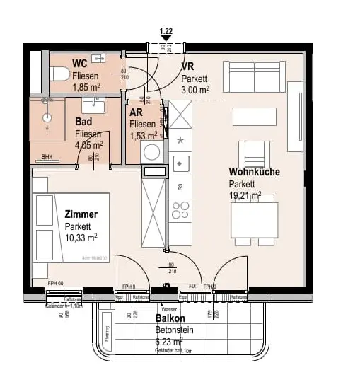
Ausstattung: Fahrstuhl Kabel/Satelliten-TV Fernwärme Zentralheizung Balkon
Top_2.30_vers06
Siebenbrunnen_T
V7_Cam07_Siebenbrun
Siebenbrunnengasse_T
Top_2.20_03_vers05
Top_2.16_cam03_vers0
Top_2.12_vers03 (1)
SG44_1
SG44
Top_1.23_c
V2_Cam15_Siebenbrunn
V3_Cam09_terrace_Sie
Cam05_evening_Sieben
Top 1.22

Preisinformationen

Kaufpreis:
387.300 €
Kaufpreis/m²
9.689,77 €
Vermittlungsprovision:
Ja
Provision:
3%

Fakten

Objektnummer:
101/18171
Objekttyp:
Wohnung
Balkon:
1
Wohnfläche:
39,97 m²
Zimmer:
2
Badezimmer:
1
Toilette:
1
Stockwerk:
4
Baujahr:
2026
Neubau:
Ja
Verfügbarkeit:
Verfügbar

Beschreibung

Siebenbrunnengasse 44 – Wo Geschichte auf modernes Wohnen trifft AUS GESCHICHTEN WERDEN ZUHAUSE An einem geschichtsträchtigen Ort im Herzen des 5. Bezirks entsteht ein Wohnprojekt, das Vergangenheit und Zukunft verbindet. Die Siebenbrunnengasse 44 vereint urbanes Lebensgefühl mit hochwertigem Wohnkomfort – für Menschen, die mehr als nur eine Adresse suchen. Benannt nach den 7 Brunnen, die Kaiser Ferdinand I. errichten ließ, um Wasser aus den Quellen Oberreinprechtsdorfs in die Stadt zu leiten. 67 exklusive Eigentumswohnungen mit durchdachten Grundrissen, edler Ausstattung und großzügigen Freiflächen wie Balkonen, Terrassen oder Gärten machen dieses Projekt zu einem echten Rückzugsort mitten in der Stadt. ______________________________________________________ Ihr neues Zuhause im Überblick: ✓ Wohnflächen von ca. 30m² – 214m² ✓ 2- bis 4-Zimmer-Wohnungen ✓ Gärten, Balkone, Loggien & Dachterrassen ✓ 26 Tiefgaragenplätze & E-Mobilität ✓ Photovoltaikanlage & Fernwärme ✓ Ruhiger, begrünter Innenhof & Gemeinschaftsflächen ✓ Nahversorger direkt im Haus ✓ Innenhof Pavillon ✓ Paketboxanlage ✓ U2 Station vor der Haustür (im Bau) ✓ Geplante Fertigstellung: Ende 2027 ______________________________________________________ Ausstattung mit Stil & Funktion: ✓ Eichenparkett & Fußbodenheizung ✓ Fliesen in Feinsteinzeug 60x60cm + Akzent Wandfliese ✓ Bodentiefe Fenster (3-Scheiben Isolierverglasung) mit elektrischem Sonnenschutz ✓ Klimaanlage in den Dachgeschoßen ✓ Smarte Gegensprechanlage per Handy-App ✓ Hochwertige Marken-Armaturen ✓ Nachhaltige Bauweise & moderne Technik ______________________________________________________ LAGE MIT LEBENSQUALITÄT Nur wenige Schritte vom pulsierenden Leben entfernt – und trotzdem ganz privat. In der Nähe des Naschmarkts, umgeben von Parks, Cafés und urbaner Infrastruktur, erleben Sie den idealen Mix aus Kultur, Natur und City-Flair. Öffentliche Anbindung? Perfekt gelöst: Buslinien 12A, 14A und 59A, U4 Pilgramgasse, U2 Station (im Bau) ______________________________________________________ Die Siebenbrunnengasse 44 – für alle, die stilvoll wohnen und dabei urban leben wollen. Jetzt informieren & Ihre Wunschwohnung sichern! ANSPRECHPARTNER Herr Vladimir Adamovic || +43 699 17 55 66 41 || va@jpi.at Frau Daniela Schachinger, Dipl.-IM || +43 676 39 29 019 || ds@jpi.at Wir weisen darauf hin, dass wir mit dem Abgeber in ständiger Geschäftsbeziehung stehen und schon aus diesem Grund ein wirtschaftliches Naheverhältnis vorliegt.
Beschreibung weiterlesen

Lage und Verkehrsanbindung

Bachlerplatz

Energieeffizienz

HWB:
21,76 kWh/(m²*a)
HWB Klasse:
A
fGEE:
0,67
fGEE Klasse:
A+

Dokumente

Grundriss

Vladimir Adamovic

Vladimir Adamovic

JP Immobilien

Anrufen
Lade...

Fotomix

Top_2.30_vers06 Siebenbrunnen_T V7_Cam07_Siebenbrun Siebenbrunnengasse_T Top_2.20_03_vers05 Top_2.16_cam03_vers0 Top_2.12_vers03 (1) SG44_1 SG44 Top_1.23_c V2_Cam15_Siebenbrunn V3_Cam09_terrace_Sie Cam05_evening_Sieben