NEU - Wohnpark Aurach - Nähe Attersee - Zweitwohnsitz möglich. TG & Stellplatz inklusive. Top 1.05 Baustart bereits erfolgt.

Wohnung zum Kauf in 4861 Schörfling - Kaufpreis: 327.845 € / Objektnummer: I-1207_1.05
Ausstattung: Boden Kabel/Satelliten-TV Fahrradraum Fußbodenheizung
Haus 1 und 2
Haus 1
Haus 1
Blick auf das Haus
OG 2 Visualisierung
Blick von oben
Blick von der Straße
Energieskala
2025-11-18 Einzelpläne Haus 1 _04

Preisinformationen

Kaufpreis:
327.845 €
Preisinfos:
Anlegerpreis € 281.782,- zzgl. 20 % MwSt.
Provision:
3 % zzgl. 20% USt.

Fakten

Objektnummer:
I-1207_1.05
Objekttyp:
Wohnung
Keller Fläche:
4,76 m²
Wohnfläche:
69,96 m²
Zimmer:
3
Schlafzimmer:
2
Badezimmer:
1
Zustand:
Erstbezug
Verfügbarkeit:
Verfügbar

Beschreibung

WOHNPARK AURACH – Modernes Wohnen zwischen Hongar und Attersee. Eine Vision von modernem und naturnahem Wohnen. Zweitwohnsitz möglich. Inklusive je 1 TG- und Freistellplatz.

Der „Wohnpark Aurach“ ist mehr als ein Neubauprojekt – es ist eine exklusive Gelegenheit, in eine wertstabile Immobilie mit herausragender Lebensqualität zu investieren. In einer der begehrtesten Lagen des Salzkammerguts entstehen zwei moderne Gebäude mit insgesamt 16 Eigentumswohnungen, die sich durch ihre Genehmigung als Zweitwohnsitz von vielen anderen Angeboten abheben. Dieses Projekt bietet anspruchsvollen Käufern eine sichere Kapitalanlage, die modernen Wohnkomfort mit direktem Zugang zur Natur verbindet. Die geplante Fertigstellung im Jahr 2027, die solide Massivbauweise und die durchdachten Grundrisse machen den Wohnpark Aurach zu einer zukunftssicheren Entscheidung.

Der Wohnpark Aurach bietet eine Auswahl an durchdachten Grundrissen, die sich flexibel an verschiedene Lebensphasen und individuelle Bedürfnisse anpassen. Mit Wohnungsgrößen von 2 bis 4 Zimmern finden hier sowohl Singles und Paare als auch Familien ihr perfektes Zuhause. Jede Einheit besticht durch eine optimale Raumnutzung und großzügige private Außenbereiche, wobei die OG 2 -Wohnungen im Dachgeschoss mit einer exklusiven Raumhöhe von über 2,95 m ein besonderes Gefühl von Weite und Luxus vermitteln.

Die wesentlichen Projektdaten auf einen Blick:
- Projektname: Wohnpark Aurach
- Standort: Aurach am Hongar 67, 4861 Aurach am Hongar
- Objekttyp: Neubau-Eigentumswohnungen (Erstbezug) in zwei Gebäuden
- Anzahl der Einheiten: 16 Wohnungen (8 pro Haus)
- Baustart mit Haus 1
- je Wohneinheit 1 TG-Platz und 1 Stellplatz inklusive
- Wohnungsgrößen: ca. 60 m², 70 m² und 100 m²
- Wohnungsgrößen können vor Baustart noch geändert werden - z.B: EG 2 Wohnungen mit je 90 m²
- Hohe Energieeffizienz: HWB 32,6 kWh/m²a, Klasse B; fGEE 0,73, Klasse A
- Großzügige Freiflächen: Neben privaten Terrassen oder Balkonen steht eine allgemeine Grünfläche von ca. 200 m² pro Einheit zur Verfügung.
- Kinderspielplatz
- Fahrrad- und Kinderwagen Abstellraum
- Zweitwohnsitz möglich: Genießen Sie die Freizeitmöglichkeiten am Attersee, ohne die Einschränkung des Hauptwohnsitzes.
- Bauträger: GWP Attersee-Nord GmbH
- Sicherheit für den Käufer: Abwicklung über BTVG (Bauträgervertragsgesetz).

Haus 1 bzw. Haus 2 inkl. TG-Platz und Freiplatz
TopGeschossZimmerWohnfläche (ca.)Außenbereich Preis
1.01EG 259,87 m²104,38 m² Garten, 26,49 m² Terrasse € 300.542,-
1.02EG 359,69 m²53,57 m² Garten, 18,48 m² Terrasse € 292.929,-
1.03EG 259,87 m²182,15 m² Garten, 26,49 m² Terrasse € 312.417,-
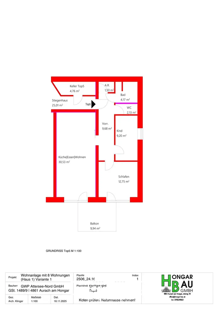
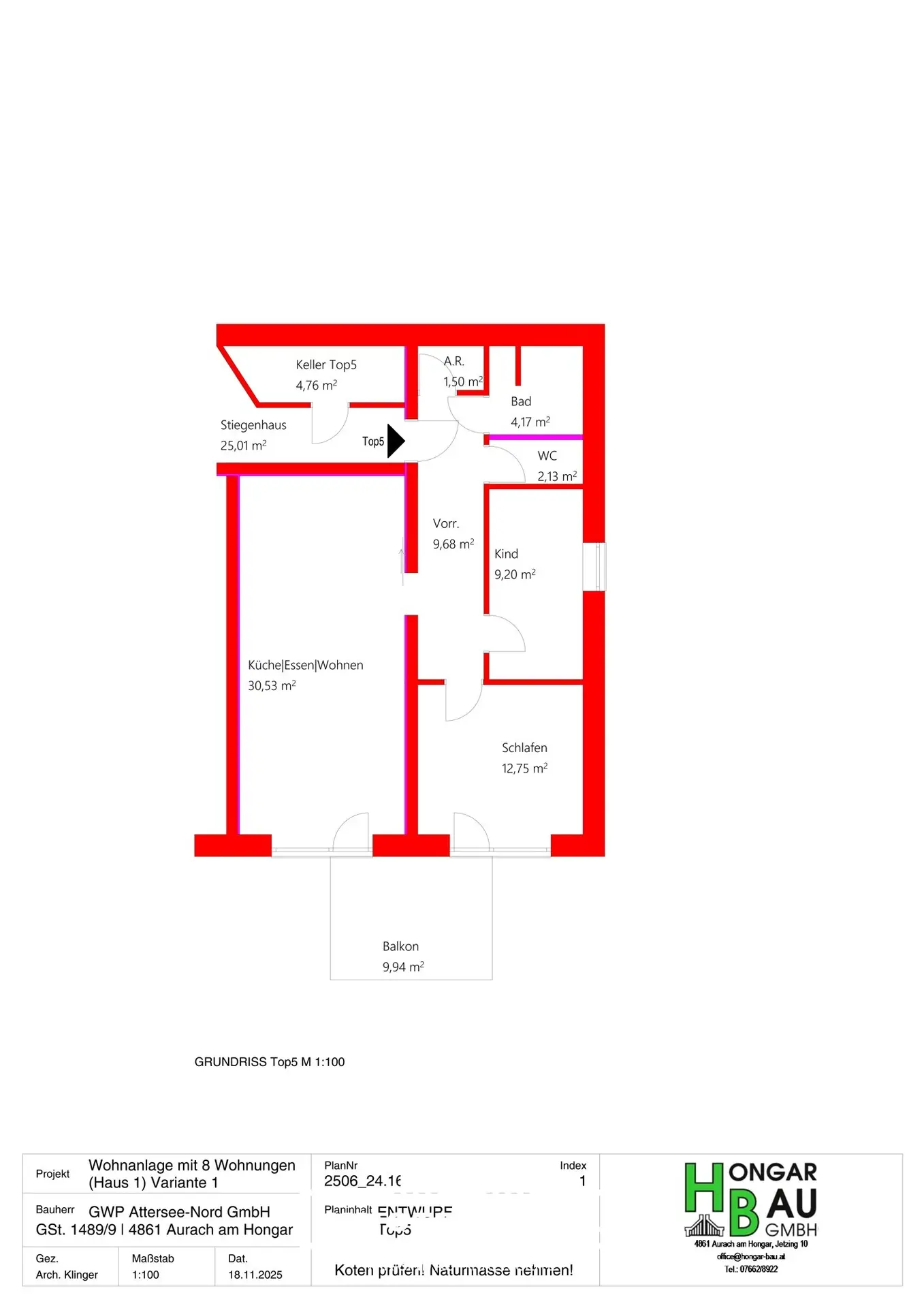
1.04OG 1369,96 m²9,94 m² Balkon 2,15 m² € 327.845,-
1.05OG 1359,69 m²9,94 m² Balkon 2,26 m² € 284.708,-
1.06OG 1369,96 m²9,94 m² Balkon 4,76 m² € 327.845,-
1.07OG 24100,40 m²15,52 m² Balkon 4,76 m² € 427.061,-
1.08OG 24100,40 m²15,52 m² Balkon 4,76 m² € 427.061,-

Die außergewöhnliche Lage des Projekts bildet das Fundament für eine einzigartige Wohn- und Lebensqualität.
Für weiterführende Informationen, die detaillierten Pläne oder ein persönliches Beratungsgespräch stehen wir Ihnen jederzeit gerne zur Verfügung. Zögern Sie nicht, uns zu kontaktieren, um Ihre Fragen zu klären und die Möglichkeiten dieses einzigartigen Projekts zu besprechen.

Ihre Kontaktperson für dieses Projekt:
- Ansprechpartner: Herr Hermann Purkart
- IMMOTEAM4YOU Immobilien GmbH, Adresse: Vorstadt 4, 4840 Vöcklabruck
- Mobil: +43 664 1002092
- E-Mail: h.purkart@immoteam4you.at
Beschreibung weiterlesen

Lage und Verkehrsanbindung

Perfekte Balance in Aurach am Hongar
Die Wahl des Standorts ist entscheidend für die langfristige Wertstabilität einer Immobilie und die tägliche Lebensqualität ihrer Bewohner. Der Wohnpark Aurach profitiert von einer strategisch erstklassigen Positionierung in der „Wohngemeinde“ Aurach, eingebettet zwischen dem bewaldeten Höhenrücken des Hongars und der malerischen Seenlandschaft des Salzkammerguts. Diese Lage schafft eine perfekte Balance aus naturnaher Erholung und exzellenter Anbindung.

Natur und Freizeit: Die unmittelbare Umgebung ist ein Paradies für Natur- und Sportliebhaber. Der Hausberg Hongar, nur wenige Minuten entfernt, bietet ein weitläufiges Netz an Wander- und Mountainbikestrecken. Der nahegelegene Attersee eröffnet zudem vielfältige Möglichkeiten für Wassersport, Badespaß und Erholung. Ergänzt wird das Freizeitangebot durch das solarbeheizte Erlebnisschwimmbad der Gemeinde und zahlreiche Rad- und Spazierwege, die eine besonders familienfreundliche Atmosphäre schaffen.

Infrastruktur und Nahversorgung: Aurach bietet eine solide Grundversorgung für den täglichen Bedarf. Wichtige Einrichtungen sind schnell und bequem erreichbar, was den Alltag für Familien und Pendler gleichermaßen erleichtert.
- Kindergarten & Krabbelstube: 4,68 km
- Volksschule: 4,46 km
- Einkaufsmöglichkeiten: 4,82 km
- Gymnasium (Vöcklabruck): 9,26 km
- Bus: 3,19 km
Umfassendere Einkaufsmöglichkeiten und Gastronomieangebote finden sich in den angrenzenden Ortschaften sowie in der Bezirkshauptstadt Vöcklabruck.

Verkehrsanbindung: Die verkehrstechnische Anbindung ist ideal für Pendler und alle, die eine schnelle Erreichbarkeit schätzen.
- Autobahn A1 (Auffahrt Regau): ca. 3 km
- Bahnhof (Vöcklabruck): ca. 12 km
- Internet: Glasfaser-Anschluss bis zum Haus
Diese hervorragende Anbindung an überregionale Verkehrs- und Datennetze macht den Standort sowohl für das private Leben als auch für das Home-Office äußerst attraktiv.

Energieeffizienz

HWB:
32,6 kWh/(m²*a)
HWB Klasse:
B
fGEE:
0,73
fGEE Klasse:
A
Gebäudeart:
Wohnen

Dokumente

Grundriss

Lageplan

4861 Schörfling | Vöcklabruck

Lade...
Hermann Purkart

Hermann Purkart

IMMOTEAM4YOU Immobilien GmbH

Lade...

Fotomix

Haus 1 und 2 Haus 1 Haus 1 Blick auf das Haus OG 2 Visualisierung Blick von oben Blick von der Straße Energieskala