NEU - Wohnung für Pärchen und Single in Ansfelden/Freindorf mit perfekter Raumaufteilung und sehr guter Verkehrsanbindung

Wohnung zur Miete in 4052 Ansfelden - Gesamtmiete: 499,90 € / Objektnummer: 193
Ausstattung: Boden Wohnküche / offene Küche Bad Parkplatz Außenparkplatz Zentralheizung
Kochnische

Preisinformationen

Gesamtmiete:
499,90 € / Monat
Betriebskosten netto:
101,75 € / Monat
Heizkosten netto:
53,15 €
Umsatzsteuer:
10,00 €
Preisinfos:
Ablöse: KEINE
Kaution:
1.700,00 €
Provision:
Gemäß Erstauftraggeberprinzip bezahlt der Abgeber die Provision.

Fakten

Objektnummer:
193
Objekttyp:
Wohnung
Wohnfläche:
31 m²
Zimmer:
2
Badezimmer:
1
Toilette:
1
Verfügbarkeit:
Verfügbar

Beschreibung

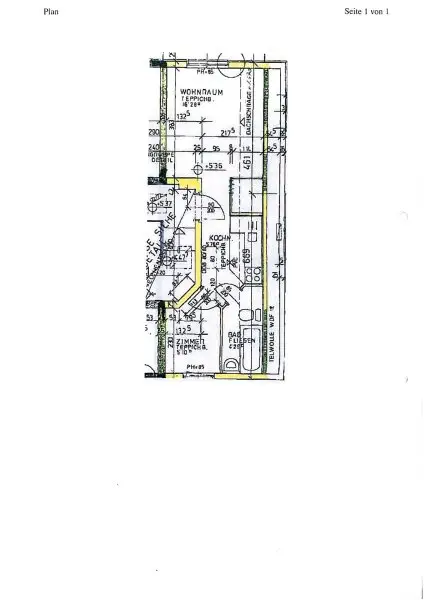
Die Wohnung befindet sich in einer Reihenhausanlage von Freindorf und liegt im 2 Stock (DG).

In jedem Haus befinden sich nur 6 Wohneinheiten.

Die Wohnung verfügt über einen perfekten Grundriss und eignet sich sehr gut als Starterwohnung, für Single oder Pärchen.

Die Raumaufteilung: 

Wohnraum: ca.  16,28 m²

Zimmer: ca. 5,10 m² 

Kochnische: ca. 5,76 m²

Bad/WC:  ca. 4,29 m²

Kellerabteil: ca. 2,5 m²

 

Zusätzlich stehen ausreichend Parkplätze vor dem Haus zur Verfügung.

 

 

 

Der Immobilienmakler erklärt, dass er – entgegen dem in der Immobilienwirtschaft üblichen Geschäftsgebrauch des Doppelmaklers – einseitig nur für den Vermieter tätig ist.
Beschreibung weiterlesen

Lage und Verkehrsanbindung

Zentrale Lage in Freindorf (Gemeinde Ansfelden). Die meisten Infrastruktureinrichtungen sind in unmittelbarer Nähe.
Die nächste Bushaltestelle ist in wenigen Gehminuten und die A1 in ca. 1 Autominute erreichbar.

Energieeffizienz

HWB:
75 kWh/(m²*a)
HWB Klasse:
C
Energieausweisart:
Energiebedarfs-ausweis
Gültig bis:
01.08.2029

Grundriss

Lageplan

4052 Ansfelden | Linz (Stadt)

Lade...
Bernhard Wolfsegger

Bernhard Wolfsegger
Immobilientreuhänder und Finanzierungsberater

marktwert Immobilien GmbH

Lade...

Fotomix

Bild 1 Bild 2 Bild 3 Bild 4 Bild 5 Kochnische Bild 7