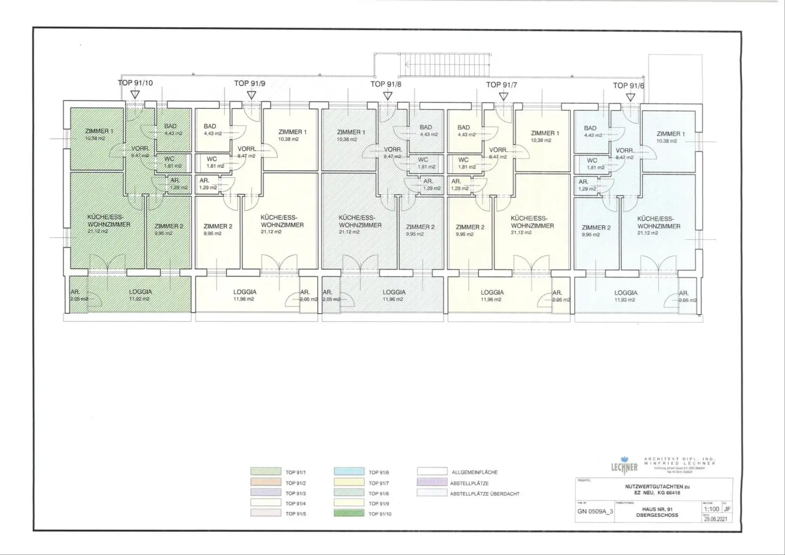
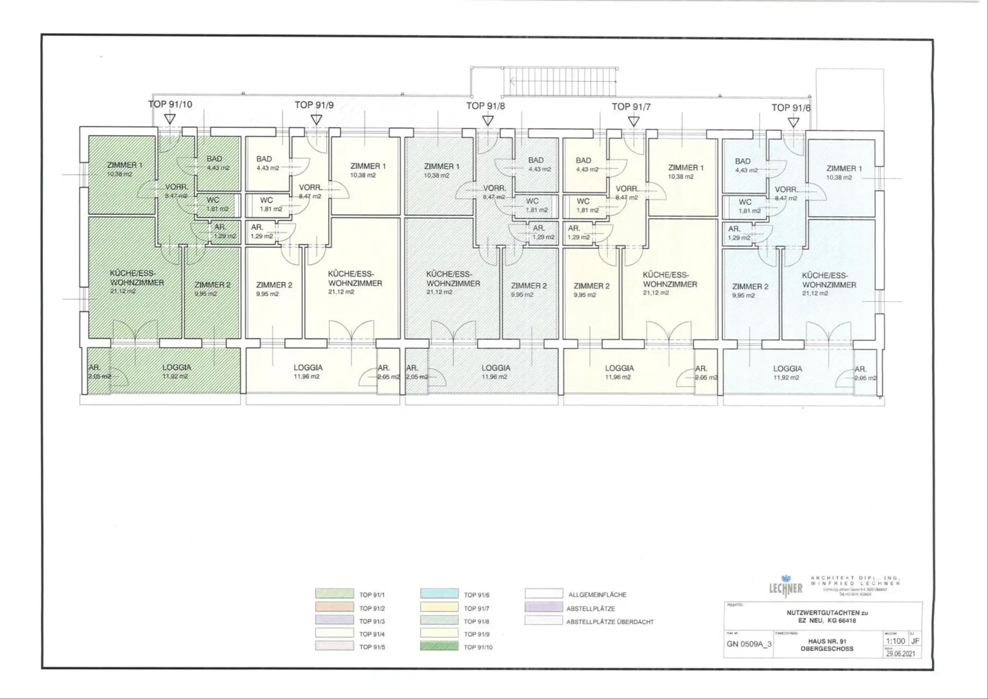
NEU - Wohnung im 1. OG

Wohnung zum Kauf in 8403 Lebring - Kaufpreis: 186.528 € / Objektnummer: 5385
Ausstattung: Möbliert Kabel/Satelliten-TV Garage Parkplatz Außenparkplatz Zentralheizung Balkon Garten

Preisinformationen

Kaufpreis:
186.528 €
Provision:
3.00 %

Fakten

Objektnummer:
5385
Objekttyp:
Wohnung
Balkon:
1
Wohnfläche:
58,29 m²
Gartenfläche:
46,25 m²
Zimmer:
2
Badezimmer:
1
Toilette:
1
Baujahr:
ca. 2020
Zustand:
Gepflegt
Verfügbarkeit:
Verfügbar

Beschreibung

Moderne 3-Zimmer-Wohnung mit großem Balkon, Carport und Parkplatz in Lebring!
Diese Wohnung vereint zeitgemäße Architektur, funktionale Grundrisse und hohe Wohnqualität – ideal für alle, die ruhiges Wohnen mit bester Infrastruktur oder eine attraktive Anlageimmobilie suchen.

Der helle, offene Wohn-Ess-Bereich mit moderner Einbauküche überzeugt durch seine effiziente Raumaufteilung und schafft ein großzügiges Wohngefühl. Große Fensterflächen bringen viel Tageslicht in die Räume und sorgen für eine freundliche, einladende Atmosphäre.

Hochwertige Materialien und moderne Haustechnik garantieren Komfort und Langlebigkeit. Vom Wohnraum aus gelangen Sie direkt auf den großen Balkon – perfekt zum Entspannen oder für gesellige Stunden im Freien.

Highlights:
Offene Wohn-Ess-Küche mit Ausgang auf den Balkon
Eigener KFZ-Carportabstellplatz und zusätzlicher Freiplatz
Hohe Wertbeständigkeit & attraktive Investitionsmöglichkeit
Gefragter Wohnstandort in der Südsteiermark
Kompakte, effiziente Wohnungsgröße

Ausstattung:
Einbauküche inklusive Geräte
Bodenbeläge: Parkett und Fliesen
Heizung: Fernwärme
Abstellraum vorhanden
Zimmeranzahl: 3
Baujahr: 2020
Stellplätze: 1x Carport, 1x Freiplatz

Lage:
Lebring zählt zu den beliebtesten Wohnorten der Südsteiermark. Einkaufsmöglichkeiten, Schulen, Kinderbetreuung, medizinische Versorgung sowie der Bahnhof befinden sich in unmittelbarer Nähe. Die hervorragende Verkehrsanbindung ermöglicht kurze Wege nach Graz und Leibnitz, während die naturnahe Umgebung Erholung und Freizeit gleichermaßen bietet.

Entdecken Sie auch weitere Wohnungen, z.B. im EG mit schönem Garten. - Preise starten bei € 189.443,- für Eigennutzer oder € 168.643,-für Investoren!
Angaben gemäß gesetzlichem Erfordernis:
Heizwärmebedarf: 40.0 kWh/(m²a)
Klasse Heizwärmebedarf: B
Faktor Gesamtenergieeffizienz: 0.85
Klasse Faktor Gesamtenergieeffizienz: A

Alle Immobilien sowie Objektvideos und 360°-Bilder finden Sie auf www.remax.at
Beschreibung weiterlesen

Energieeffizienz

HWB:
40 kWh/(m²*a)
HWB Klasse:
B
fGEE:
0,85
fGEE Klasse:
A
Energieausweisart:
Energiebedarfs-ausweis

Lageplan

8403 Lebring | Leibnitz

Lade...
Herbert Zelzer

Herbert Zelzer

RE/MAX Leibnitz

Lade...

Fotomix

Wohnzimmer Ostansicht Küche Westansicht Carports Parkplätze Grundriss Top 6 - 10 Eingang