NEU - Wohnunikat nach Ihren Wünschen - von der Idee bis zum Einzug

Wohnung zum Kauf in 1180 Wien - Kaufpreis: 499.000 € / Objektnummer: 21963
Ausstattung: Boden Fahrstuhl Bad Kabel/Satelliten-TV Etagenheizung Balkon WG geeignet

Preisinformationen

Kaufpreis:
499.000 €
Betriebskosten netto:
164,66 € / Monat
Vermittlungsprovision:
Ja
Provision:
17.964,00 € inkl. 20% USt.

Fakten

Objektnummer:
21963
Objekttyp:
Wohnung
Balkon:
1
Balkonfläche:
5 m²
Wohnfläche:
61,4 m²
Zimmer:
2
Badezimmer:
1
Toilette:
1
Stockwerk:
1
Baujahr:
1900
Altbau:
Ja
Letzte Sanierung:
2025
Zustand:
Erstbezug
Verfügbarkeit:
Verfügbar

Beschreibung

In der begehrten Sternwartestraße steht ein wunderschönes Altbauhaus zum Verkauf.

Die Fassade des Hauses wurde neu gestaltet und verleiht dem Gebäude einen frischen, zeitgemäßen Look, der perfekt zu seiner klassischen Altbau-Ästhetik passt. Das Stiegenhaus wurde ebenfalls neu verfliest und erstrahlt in frischen Farben, die den Altbaucharme auf moderne Weise unterstreichen. Viele Bereiche des Hauses wurden mit großer Sorgfalt renoviert, um eine gelungene Mischung aus historischem Flair und zeitgemäßem Komfort zu schaffen.

Im Angebot befinden sich fünf hochwertige Wohnungen, von denen drei nach einer umfangreichen Sanierung in Top-Zustand präsentiert werden. Die Wohnflächen variieren zwischen 51 m² und 109 m² und bieten für unterschiedliche Bedürfnisse und Lebensstile das passende Raumangebot. 

Drei dieser Einheiten wurden aufwendig generalsaniert und bieten als Erstbezüge höchsten Wohnkomfort in stilvollem Ambiente.

Die Liegenschaft befindet sich in einer der gefragtesten Wohngegenden der Stadt, nur einen Katzensprung vom Kutschkermarkt und dem Sternwartepark entfernt. 

Für zusätzlichen Komfort können auf Wunsch Stapelparkplätze im Haus erworben werden. Der Preis für den oberen Stapelparker beträgt € 45.000, während der Preis für den unteren Stapelparker bei € 37.500 liegt.

SIE DENKEN ÜBER DEN VERKAUF IHRER IMMOBILIE NACH?
WIR ERZIELEN FÜR SIE DEN BESTMÖGLICHEN PREIS – PROFESSIONELL, DISKRET UND EFFIZIENT.
AUF WUNSCH KÜMMERN WIR UNS AUCH UM FINANZIERUNG, VERSICHERUNG UND ALLE WEITEREN SCHRITTE.
JETZT UNVERBINDLICH ANFRAGEN!

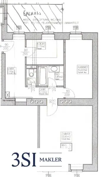
TOP 3 IM 1. OG

Die Wohnung befindet sich derzeit noch im Ist-Zustand. Bei den gezeigten Bildern handelt es sich um Symbolfotos einer bereits fertig sanierten Einheit. Auf Wunsch kann die Wohnung vollständig modernisiert und nach Ihren Wünschen als Erstbezug übergeben werden.

Auf Wunsch besteht die Option, einen Balkon zu errichten. Die damit verbundenen Kosten sind vom Käufer zu tragen und sind im angebotenen Kaufpreis nicht enthalten. So haben Sie die Gelegenheit, Ihr neues Zuhause mit einem privaten Außenbereich individuell aufzuwerten und zusätzlichen Lebensraum im Freien zu schaffen. 

Der angegebene Kaufpreis versteht sich ohne den optionalen Balkonzubau.
Gerne berücksichtigen wir Ihre persönlichen Vorstellungen – je nach gewünschter Ausstattung (Fliesen, Parkett etc.) und Ausführung kann sich der Kaufpreis entsprechend verändern.

DAS BESONDERE:

Die Wohnung wird nicht vorab saniert, sondern in enger Abstimmung mit dem Käufer. So entsteht Ihr ganz persönlicher Wohntraum – maßgeschneidert, hochwertig und stilvoll umgesetzt durch den Bauträger.

 

DIE WOHNUNG TEILT SICH AKTUELL WIE FOLGT AUF: 

- separate Küche

- großzügiges Wohnzimmer

- 3 Schlafzimmer

- Badezimmer 

- separates WC

 

INDIVIDUELL.

Jede Wohnung wird erst nach dem Kauf nach Ihren persönlichen Vorstellungen saniert – Sie bestimmen Stil, Farben, Materialien und die Aufteilung.

SICHER.

Dank Fixpreis-Garantie und klar definiertem Zeitplan haben Sie volle Kosten- und Planungssicherheit, sowie die Gewährleistung nach den gesetzlichen Bestimmungen.

EXKLUSIV.

Wählen Sie aus einer Auswahl an hochwertigen Materialien, edlen Oberflächen und stilvollen Ausstattungen.

KOMFORTABEL.

Von der ersten Besichtigung bis zur Schlüsselübergabe – wir begleiten Sie durch alle Schritte und koordinieren Planung, Ausführung und Fertigstellung für Sie. Auf Wunsch begleiten wir Sie gerne bei der Einrichtung und Küchengestaltung.

VORTEILE

* Gestaltungsfreiheit
* Kostentransparenz
* Planungssicherheit
* klare Bauzeiten
* Komfort
* Wertsteigerung
* Exklusivität

ABLAUF & SERVICE

1. Besichtigung – Sie sehen den Rohzustand.
2. Beratung & Bemusterung – Sie wählen Materialien im Showroom.
3. Sanierung nach Wunsch – wir setzen um.
4. Schlüsselübergabe – Einzug in Ihr maßgeschneidertes Zuhause.

Ihre Wohnung. Ihr Stil. Unsere Umsetzung.

 

NEBENKOSTEN

Der guten Ordnung halber halten wir fest, dass, sofern im Angebot nicht anders vermerkt, bei erfolgreichem Abschlussfall eine Provision anfällt, die den in der Immobilienmaklerverordnung BGBI. 262 und 297/1996 festgelegten Sätzen entspricht – das sind 3 % des Kaufpreises zzgl. 20 % USt. Diese Provisionspflicht besteht auch dann, wenn Sie die Ihnen überlassenen Informationen an Dritte weitergeben. Es besteht ein wirtschaftliches Naheverhältnis zum Verkäufer.

Die Vertragserrichtung und Treuhandabwicklung ist gebunden an die Kanzlei Mag. Schreiber A-1010 Wien, Schottenring 16. Die Kosten betragen 1,5 % des Kaufpreises zzgl. 20 % USt. sowie Barauslagen und Beglaubigung. Bei Fremdfinanzierung erhöht sich das Honorar auf 1,8 % vom Kaufpreis zzgl. 20 % USt., Barauslagen und Beglaubigung.

Hinweis gemäß Energieausweisvorlagegesetz: Ein Energieausweis wurde vom Eigentümer bzw. Verkäufer, nach unserer Aufklärung über die generell geltende Vorlagepflicht, sowie Aufforderung zu seiner Erstellung noch nicht vorgelegt. Daher gilt zumindest eine dem Alter und der Art des Gebäudes entsprechende Gesamtenergieeffizienz als vereinbart. Wir übernehmen keinerlei Gewähr oder Haftung für die tatsächliche Energieeffizienz der angebotenen Immobilie.

Wir weisen darauf hin, dass zwischen dem Vermittler und dem zu vermittelnden Dritten ein familiäres oder wirtschaftliches Naheverhältnis besteht.

Der Vermittler ist als Doppelmakler tätig.

Infrastruktur / Entfernungen

Gesundheit
Arzt <50m
Apotheke <175m
Klinik <350m
Krankenhaus <650m

Kinder & Schulen
Schule <150m
Kindergarten <200m
Universität <425m
Höhere Schule <250m

Nahversorgung
Supermarkt <175m
Bäckerei <175m
Einkaufszentrum <1.650m

Sonstige
Geldautomat <225m
Bank <225m
Post <225m
Polizei <950m

Verkehr
Bus <100m
U-Bahn <350m
Straßenbahn <225m
Bahnhof <450m
Autobahnanschluss <1.625m

Angaben Entfernung Luftlinie / Quelle: OpenStreetMap
Beschreibung weiterlesen

Lage und Verkehrsanbindung

Gersthofer Platzl / Sternwartepark / Währinger Straße / Türkenschanzpark / Kutschkermarkt

Grundrisse

Lageplan

1180 Wien | Wien 18., Währing

Lade...
Mario Häring

Mario Häring
Immobilienvermittlung

3SI Makler GmbH

Lade...

Fotomix

Wohnbereich Bild 2 Bild 3 Bild 4 Bild 5 Bild 6