NEU - WORK SMART. PAY SMART. Stylische Büroräumlichkeiten mit Fixkosten-Garantie! Flexibel • Modern • Ab sofort verfügbar!

Immobilie zur Miete in 1230 Wien / Objektnummer: 5630/455
Ausstattung: Boden Fahrstuhl Kabel/Satelliten-TV Fernwärme
Gemeinschaftsbereich
Entree mit Gemeinschaftsbereich
Außenansicht
Büro 2
Büro 2
Küche
Büro 1
Büro 2
Eingangsbereich mit WC
Gemeinschaftsbereich
Küche mit Blick ins Büro 1
Essbereich
Eingang mit Essbereich

Preisinformationen

Gesamtmiete (exkl. USt.):
1.000,00 € / Monat
Preisinfos:
Die ALL-IN Pauschal-/Nettomiete beträgt €1000,- zzgl. 20% Ust.
Kaution:
3 Bruttomonatsmieten
Vermittlungsprovision:
Ja
Provision:
3 Bruttomonatsmieten zzgl. 20% USt.

Fakten

Objektnummer:
5630/455
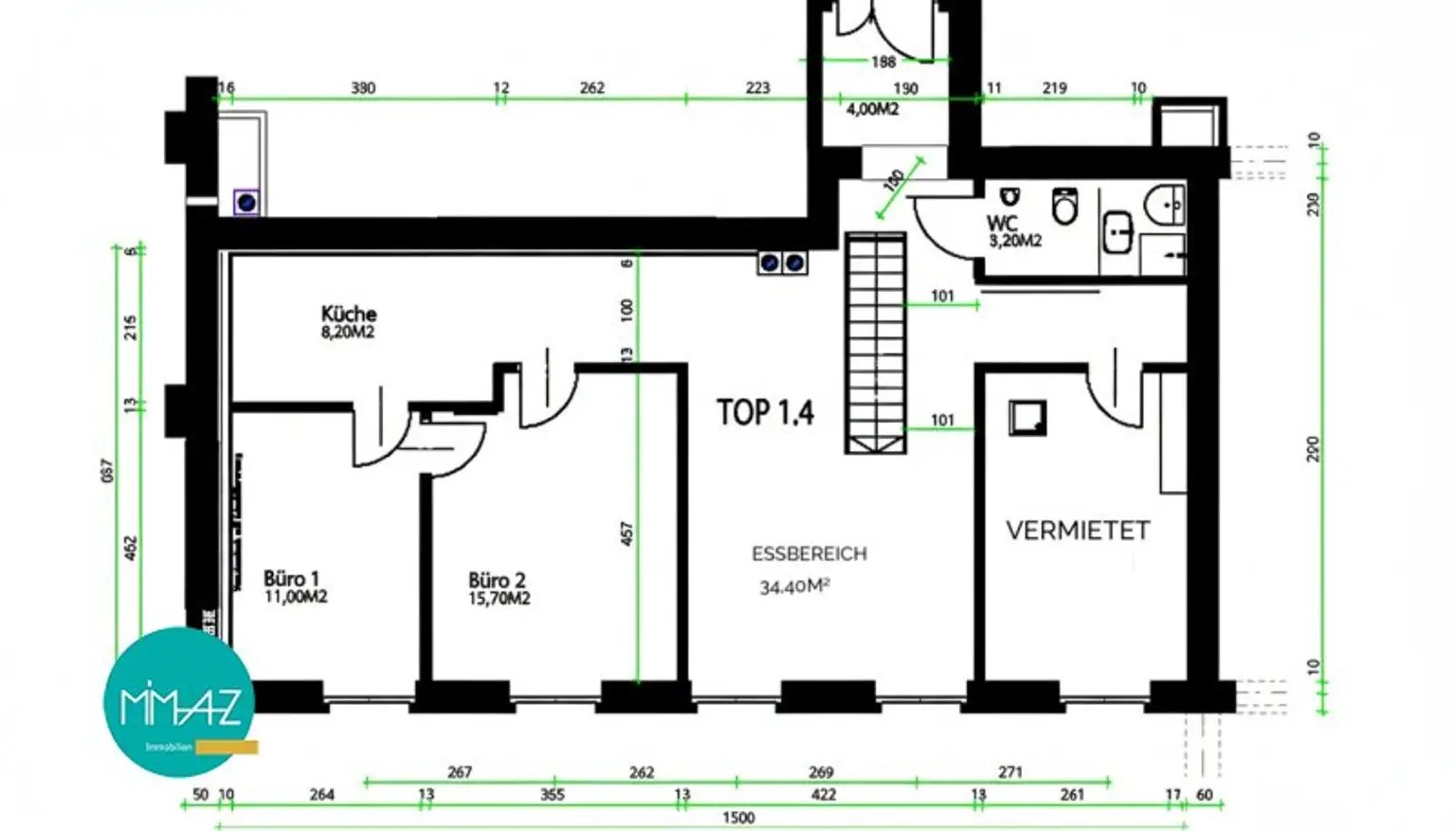
Wohnfläche:
26,7 m²
Bürofläche:
26,7 m²
Zimmer:
2
Toilette:
1
Stockwerk:
1
Baujahr:
2015
Neubau:
Ja
Zustand:
Neuwertig
Verfügbarkeit:
Verfügbar

Beschreibung

DIENSTLEISTER • UNTERNEHMER • START-UPS

2 Büroräume | Gemeinschaftsküche & Essbereich | ALL-IN Pauschalmiete

Zur Vermietung gelangen zwei helle, modern ausgestattete Büroräume, die nebeneinanderliegen, separat begehbar sowie intern miteinander verbunden sind.

• Büro 1: ca. 11 m²
• Büro 2: ca. 16 m²

Die Räumlichkeiten überzeugen durch ihr stilvolles Design, klare Linien und eine angenehme Arbeitsatmosphäre - ideal für konzentriertes und professionelles Arbeiten in einem gemütlichen Umfeld.

Gemeinschaftsbereiche

Die moderne Gemeinschaftsküche sowie der großzügige Ess- und Aufenthaltsbereich werden mit dem darunter liegenden Büro (Steuerberatungskanzlei) geteilt und bieten Raum für Austausch und Pausen. Eine separate Toilette befindet sich auf derselben Etage.

ALL-IN Pauschalmiete

Die Pauschalmiete beträgt €1000,- zzgl. Ust. und bietet nötige Transparenz & Planbarkeit. Inkludiert sind:

* Betriebskosten
* Strom
* Heizung (Fußbodenheizung, Fernwärme)
* Internet
* Klimaanlage
* Möbelmiete (Küche, Essbereich, Schreibtische) 

Somit genießen Sie volle Kostentransparenz – ohne versteckte Zusatzkosten!

Fazit:
Ein modernes Büro in stylischem Ambiente mit durchdachtem All-IN-Konzept – perfekt für alle, die Wert auf Design, Komfort und planbare Kosten legen.

Ideal für Dienstleister mit geringer Kundenfrequenz, IT-Unternehmen, Start-Ups, Kreative Berufe oder beratende Tätigkeiten.

Habe ich Ihr Interesse geweckt? Ich freue mich auf Ihre Anfragen!

Die Angaben beruhen auf Informationen der Eigentümer und/oder Dritter und sind ohne Gewähr. Änderungen vorbehalten! 

Aufgrund der Nachweispflicht gegenüber dem Abgeber und um die rasche Übermittlung weiterer Informationen und Unterlagen zu gewährleisten, übermitteln Sie bitte Ihre vollständigen Kontaktdaten:

* Vor- und Nachname
* Aktuelle Wohnadresse
* Telefonnummer
* E-Mail Adresse

DATEN IM ÜBERBLICK:

* 2 Zimmer
* Bürofläche ca. 27 m²
* 1. Liftstock
* Fußbodenheizung
* Fernwärme
* Klimaanlage
* sep. Toilette 
* Ab sofort beziehbar
* Befristung 1-Jahr mit Option auf Verlängerung
* All-in Miete €1000,- + Ust.

 

Wir weisen darauf hin, dass zwischen dem Vermittler und dem zu vermittelnden Dritten ein familiäres oder wirtschaftliches Naheverhältnis besteht.

Der Vermittler ist als Doppelmakler tätig.

Infrastruktur / Entfernungen

Gesundheit
Arzt <1.000m
Apotheke <500m
Klinik <1.500m
Krankenhaus <1.500m

Kinder & Schulen
Schule <1.000m
Kindergarten <500m
Universität <4.000m
Höhere Schule <4.500m

Nahversorgung
Supermarkt <500m
Bäckerei <500m
Einkaufszentrum <2.000m

Sonstige
Geldautomat <1.000m
Bank <1.000m
Post <2.000m
Polizei <2.000m

Verkehr
Bus <500m
U-Bahn <2.000m
Straßenbahn <1.500m
Bahnhof <1.000m
Autobahnanschluss <2.500m

Angaben Entfernung Luftlinie / Quelle: OpenStreetMap
Beschreibung weiterlesen

Lage und Verkehrsanbindung

In sehr guter Lage um die Ecke eines kleinen Einkaufscenters mit hervorragender Verkehrsanbindung und Infrastruktur gelegen.
Die Straßenbahnlinie 60, die S-Bahn Station Atzgersdorf sowie die U6-Station Erlaaer Strasse sind in nur ca. 10 Minuten fußläufig erreichbar und ermöglichen eine direkte Verbindung zum Stadtzentrum in kurzer Zeit.
Auch für Pendler ist die Lage sehr vorteilhaft. Die A21 ist schnell erreichbar und bietet eine rasche Anbindung zu den südlichen Umlandgemeinden.

Für den täglichen Bedarf befinden sich Supermärkte, Apotheken und Bäckereien in unmittelbarer Nähe.
Das Shoppingcenter "Shopping City Süd" ist ebenfalls nur eine kurze Fahrt entfernt und bietet eine Vielzahl von Einkaufsmöglichkeiten, Restaurants und Freizeitangeboten.
In der näheren Umgebung finden sich zahlreiche Parks und Freizeitmöglichkeiten.

S-Bahn Speising

Energieeffizienz

HWB:
57 kWh/(m²*a)
HWB Klasse:
C
fGEE:
0,87
fGEE Klasse:
B
Energieausweisart:
Energiebedarfs-ausweis
Gültig bis:
20.12.2032

Grundriss

Lageplan

1230 Wien | Wien 23., Liesing

Lade...
Mag. Michaela Mazakarini

Mag. Michaela Mazakarini
Unternehmensinhaberin

MIMAZ Immobilien e.U.

Lade...

Fotomix

Gemeinschaftsbereich Entree mit Gemeinschaftsbereich Außenansicht Büro 2 Büro 2 Küche Büro 1 Büro 2 Eingangsbereich mit WC Gemeinschaftsbereich Küche mit Blick ins Büro 1 Essbereich Eingang mit Essbereich