NEU - Wunderschöne 5-Zimmer Wohnung, Nähe Schillerplatz

Wohnung zur Miete in 1010 Wien - Gesamtmiete: 3.974,79 € / Objektnummer: 5119
Ausstattung: Boden Fahrstuhl Bad Gäste-WC Abstellraum Etagenheizung

Preisinformationen

Gesamtmiete:
3.974,79 € / Monat
Betriebskosten netto:
457,38 € / Monat
Umsatzsteuer:
361,35 €
Kaution:
3 Bruttomonatsmieten
Provision:
Gemäß Erstauftraggeberprinzip bezahlt der Abgeber die Provision.

Fakten

Objektnummer:
5119
Objekttyp:
Wohnung
Wohnfläche:
214,26 m²
Zimmer:
5
Badezimmer:
1
Toilette:
2
Stockwerk:
3
Baujahr:
1871
Altbau:
Ja
Zustand:
Gepflegt
Verfügbarkeit:
Verfügbar

Beschreibung

Zur Vermietung gelangt eine wunderschöne 5-Zimmer Wohnung im 1. Wiener Gemeindebezirk.

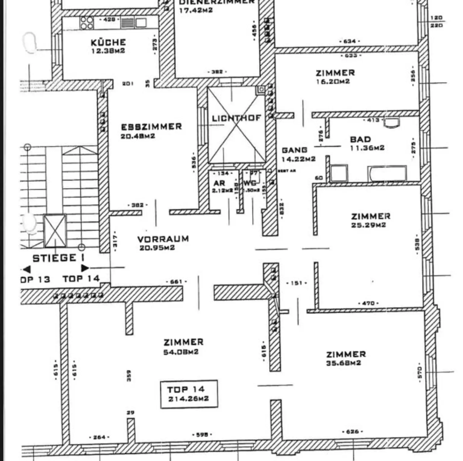
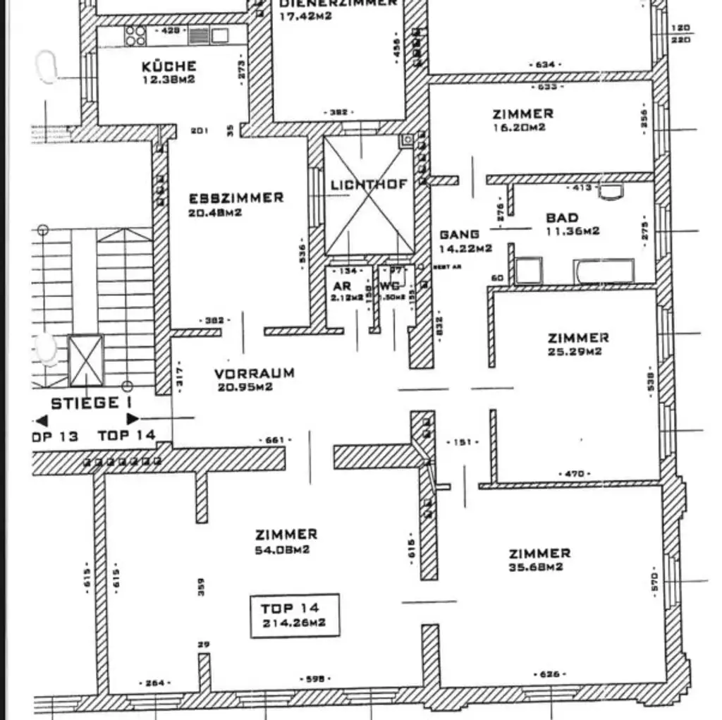
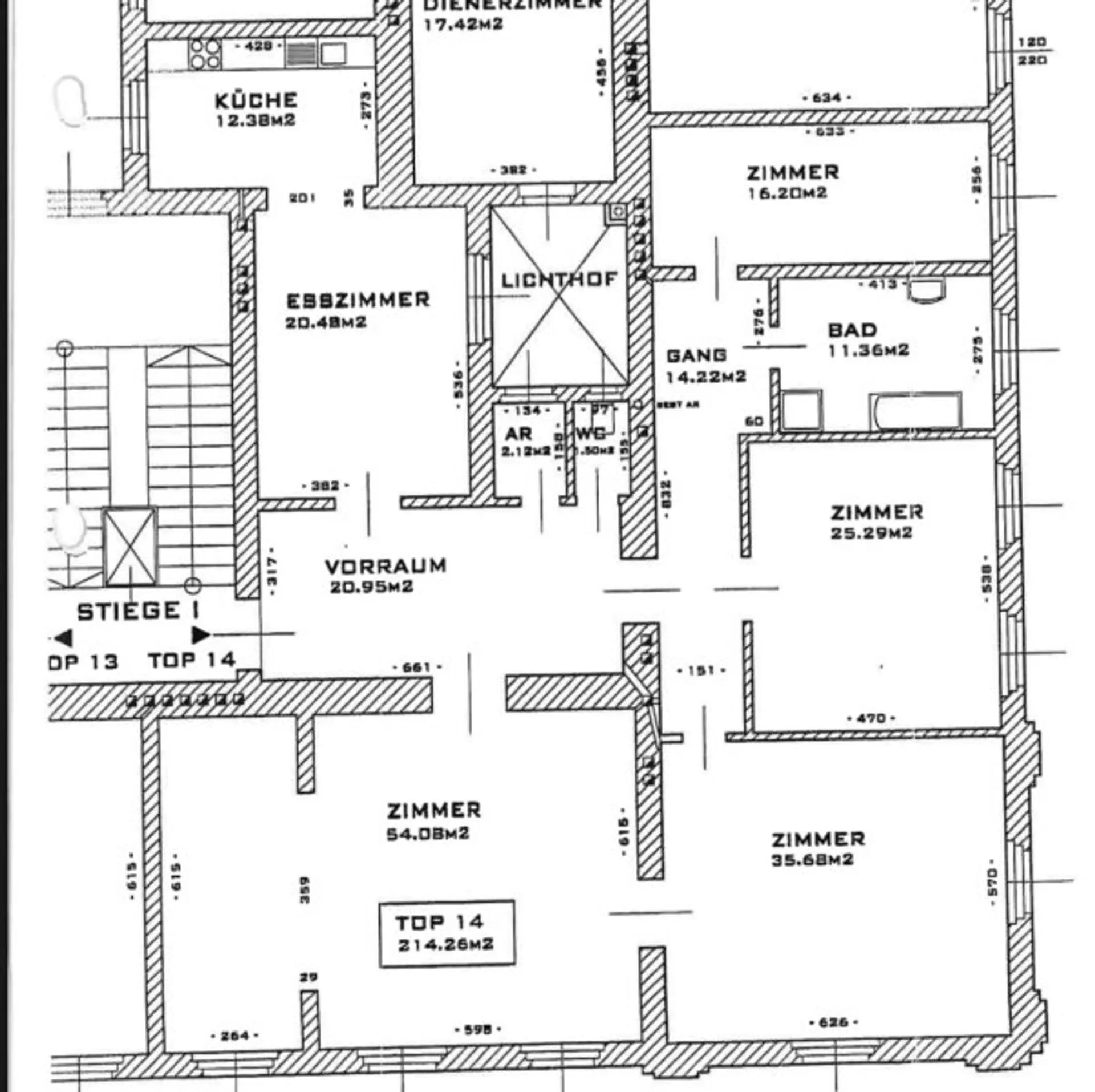
Sie befindet sich im 3. Stock eines schönen Altbaus aus dem Jahr 1871, ist bequem mit dem Lift erreichbar und gliedert sich in ein Entrée, 5 separat begehbare Zimmer, eine Küche, ein Bad, einen Abstellraum und ein separates WC. Insgesamt verfügt die Wohnung über eine großzügige Wohnfläche von ca. 214 m².  Die Wohnung wird mit einer Gasetagenheizung beheizt. Traumhafter Parkettboden befindet sich in den Wohnräumen, die Nebenräume sind verfliest. 

Sie betreten die Wohnung und befinden sich in dem rund 21 m² großen Entrée. Von diesem gelangen Sie linkerhand in das Esszimmer mit angegrenzender Küche. Ebenfalls links vom Vorraum finden Sie einen geräumigen Abstellraum und das separate Gäste WC. Rechts vom Vorraum befindet sich der großzügige Salon. Über einen Gang, welcher eine zentrale Verbindung schafft, erreichen Sie die weiteren 3 Zimmer und auch das Badezimmer, welches mit einer Dusche und einer Badewanne ausgestattet ist. Das separate WC befindet sich im Vorraum. Die Wohnung strahlt dank der vielen großen Fenster nur so vor natürlichem Tageslicht. 

Die traumhafte Wohnung befindet sich in einer absoluten Toplage inmitten der Inneren Stadt. In unmittelbarer Nähe befinden sich diverse Geschäfte des täglichen Bedarfs: Supermärkte, Banken, Apotheken und Restaurants. Die Anbindung an den öffentlichen Verkehr ist über die Straßenbahnlinie 1, 2, 71, D und U1, U2, U4 sowie die Buslinie 57A gewährleistet. Die Haltestellen sind in nur wenigen Metern erreichbar. Mehrere Parks wie beispielsweise der Schillerpark sowie der Burggarten befinden sich zudem in der unmittelbaren Umgebung. Für nähere Informationen zur Infrastruktur, fordern Sie bitte unser Exposé an.

Überzeugen Sie sich selbst von dieser traumhaften Wohnung.

Für Besichtigungen und nähere Informationen stehen wir Ihnen gerne zur Verfügung!

Frau Marie-Louise Eisenburger
national - Tel: 0676 605 9800 [tel:+436766059800]
international - Tel: +43 676 605 9800 [tel:+436766059800]
e-mail: eisenburger@lifestyle-properties.at

Wir weisen darauf hin, dass zwischen dem Vermittler und dem zu vermittelnden Dritten ein wirtschaftliches Naheverhältnis mit gesellschaftlicher Verflechtung besteht.

Der Immobilienmakler erklärt, dass er – entgegen dem in der Immobilienwirtschaft üblichen Geschäftsgebrauch des Doppelmaklers – einseitig nur für den Vermieter tätig ist.

 

 

Infrastruktur / Entfernungen

Gesundheit
Arzt 500m
Apotheke 500m
Klinik 500m
Krankenhaus 1.500m

Kinder & Schulen
Schule 500m
Kindergarten 500m
Universität 500m
Höhere Schule 1.000m

Nahversorgung
Supermarkt 500m
Bäckerei 500m
Einkaufszentrum 500m

Sonstige
Geldautomat 500m
Bank 500m
Post 500m
Polizei 500m

Verkehr
Bus 500m
U-Bahn 500m
Straßenbahn 500m
Bahnhof 500m
Autobahnanschluss 3.500m

Angaben Entfernung Luftlinie / Quelle: OpenStreetMap
Beschreibung weiterlesen

Lage und Verkehrsanbindung

Burggarten

Energieeffizienz

HWB:
147,3 kWh/(m²*a)
HWB Klasse:
D
fGEE:
2,76
fGEE Klasse:
E
Energieausweisart:
Energiebedarfs-ausweis
Gültig bis:
06.06.2033

Grundriss

Lageplan

1010 Wien | Wien 1., Innere Stadt

Lade...
Marie-Louise Eisenburger

Marie-Louise Eisenburger
Real Estate Agent

IM Lifestyle Properties GmbH

Anrufen
Lade...

Fotomix

Bild 1 Bild 2 Bild 3 Bild 4 Bild 5 Bild 6 Bild 7 Bild 8 Bild 9 Bild 10 Bild 11 Bild 12 Bild 13 Bild 14 Bild 15 Bild 16 Bild 17 Bild 18 Bild 19 Bild 20 Bild 21 Bild 22 Bild 23