NEU - Wunderschönes Neubau-Projekt in bester und zentralster Lage von Scharnitz!

Projekt / Wohnung zum Kauf in 6108 Scharnitz / Objektnummer: 8071/257
Ausstattung: Rollstuhlgerecht Fahrstuhl Fahrradraum Abstellraum Zentralheizung Fußbodenheizung

Preisinformationen

Preis von:
410.000,00 €
Preis bis:
2.115.000,00 €

Fakten

Objektnummer:
8071/257
Objekttyp:
Wohnung
Fläche von:
61,82 m²
Fläche bis:
372 m²
Neubau:
Ja
Zustand:
Erstbezug
Verfügbarkeit:
Verfügbar

Beschreibung

Die Wohnanlage bietet Platz für 10 großzügig Wohnungen mit ausreichend Platz für Familien.

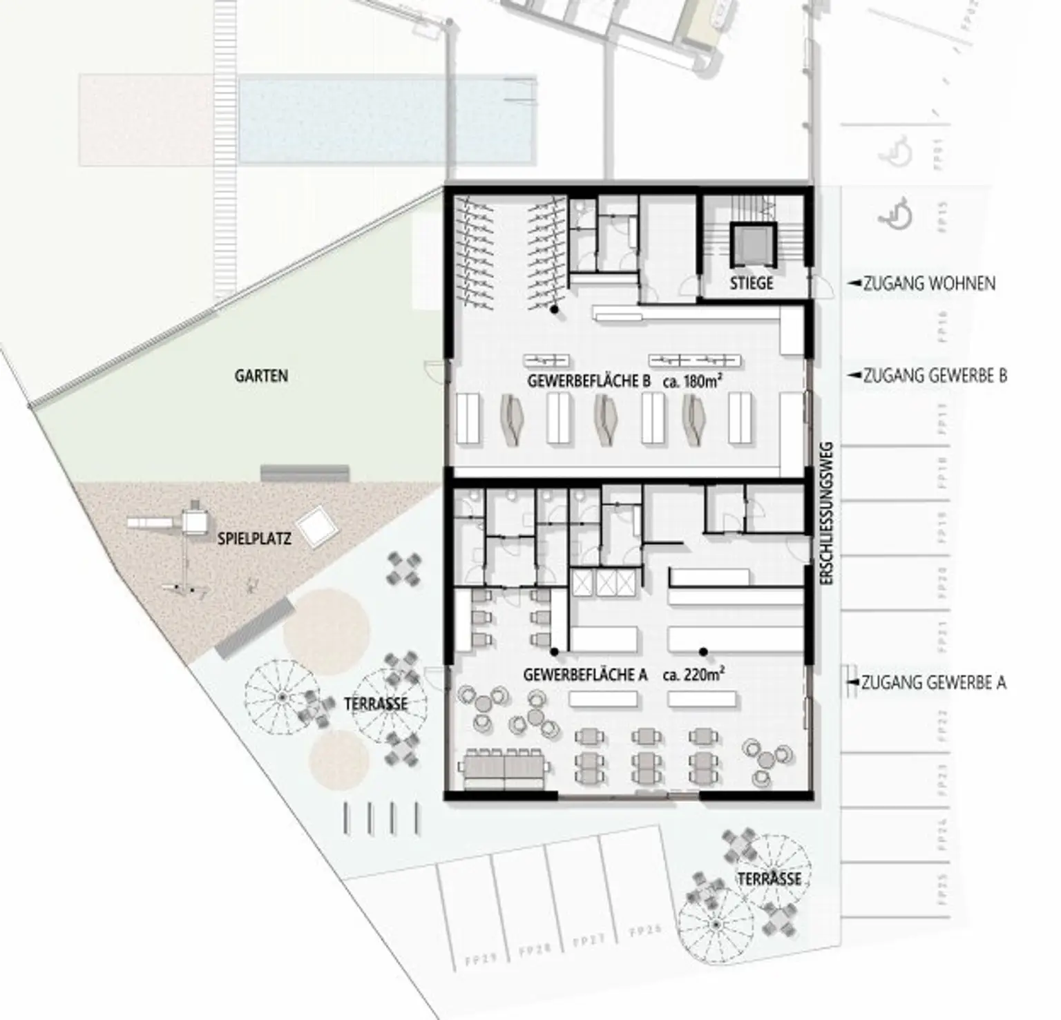
Im Erdgeschoss sind 2 Geschäftslokale situiert die durch die Laubengangsituation optimal Richtung Dorfplatz geöffnet sind.

Der Garten ist parkähnlich angelegt und beinhaltet einen modernen Kinderspielplatz.

In der Grundausstattung inbegriffen sind hochwertige Parkettböden, großflächige Fliesen sowie eine Sanitär- und Elektroausstattung von namhaften Herstellern.  
 
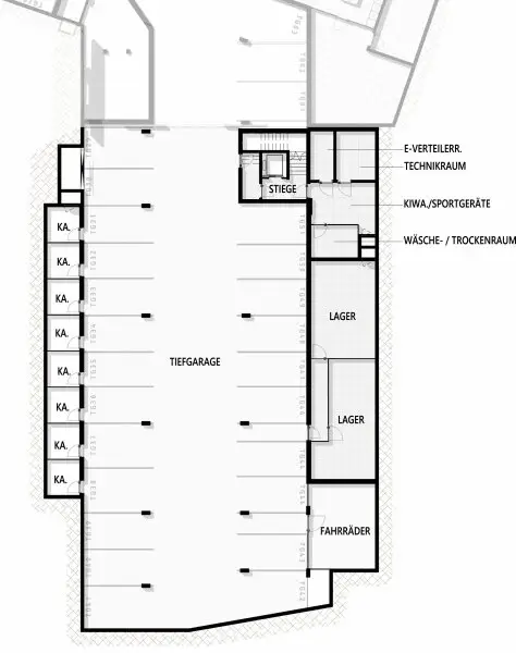
Das Gebäude umfasst ein Untergeschoss sowie drei oberirdische Geschosse.

Im Untergeschoss befindet sich eine Tiefgarage mit Technik- und Lagerräumen sowie Allgemeinflächen für Sportgeräte, usw.

Die 2 im Erdgeschoss situierten Geschäftslokale bieten sich aufgrund des zentralen Standorts ideal für eine Bäckerei oder ein Kaffeehaus mit kleinen Snacks an. Ein Sportgeschäft könnte das Angebot im Ortszentrum abrunden.

In den oberen Etagen (1. und 2. OG) liegen die geräumigen Wohnungen mit 2-3 Zimmern. Das Heiz- und Kühlsystem des Gebäudes basiert auf dem effizienten Einsatz moderner Wärmepumpentechnologie welche optional über eine Photovoltaik Anlage auf dem Flachdach unterstütz werden kann.

Optimaler Mix: 
• 2 Gewerbeeinheiten: 183m² und 226m² 
• 2 Wohnungen mit 2 Zimmern: 62m² 
• 8 Wohnungen mit 3 Zimmern: 69m² – 88 m²

Infrastruktur / Entfernungen

Gesundheit
Arzt 500m
Apotheke 500m

Kinder & Schulen
Schule 500m
Kindergarten 500m
Höhere Schule 6.000m

Nahversorgung
Bäckerei 500m
Supermarkt 1.000m

Sonstige
Bank 500m
Geldautomat 500m
Post 500m
Polizei 6.500m

Verkehr
Bus 500m
Bahnhof 500m

Angaben Entfernung Luftlinie / Quelle: OpenStreetMap
Beschreibung weiterlesen

Lage und Verkehrsanbindung

Das Neubauprojekt an der Innsbrucker Straße 26 befindet sich in zentraler und dennoch ruhiger Lage im Herzen von Scharnitz, einer charmanten Tiroler Gemeinde am Tor zum Naturpark Karwendel.

Scharnitz liegt nur wenige Minuten nördlich von Seefeld und direkt an der bayerischen Grenze – eine Region, die für ihre beeindruckende Bergkulisse, ihre vielfältigen Freizeitmöglichkeiten und ihre hohe Lebensqualität bekannt ist. Die Lage bietet somit die perfekte Kombination aus Naturverbundenheit, Erreichbarkeit und Wohnkomfort.

Einkaufsmöglichkeiten, Gastronomie, Schule, Kindergarten sowie der Bahnhof Scharnitz sind bequem zu Fuß erreichbar. Durch die gute Verkehrsanbindung über die B177 (Seefelder Straße) erreicht man Innsbruck in rund 25 Minuten und Garmisch-Partenkirchen in etwa 30 Minuten.

Die unmittelbare Nähe zum Naturpark Karwendel macht den Standort zudem zu einem Paradies für Wanderer, Radfahrer und Wintersportfreunde. Ob Skilanglauf auf der Olympiaregion-Seefeld-Loipe, Mountainbiken durch das Karwendeltal oder einfach Entspannen in der alpinen Natur – hier beginnt Erholung direkt vor der Haustür.

Lagevorteile auf einen Blick

Zentrale und sonnige Lage in Scharnitz

Nur wenige Minuten zur Olympiaregion Seefeld

Ideale Verkehrsanbindung nach Innsbruck und Bayern

Naturpark Karwendel direkt vor der Haustür

Vielfältige Freizeit- und Sportmöglichkeiten ganzjährig

Sehr gute Nahversorgung im Ort

Fazit:
Die Adresse Innsbrucker Straße 26 verbindet alpines Lebensgefühl mit moderner Infrastruktur – ein Standort, der sowohl als Hauptwohnsitz als auch als wertbeständige Anlage überzeugt.

Verfügbare Wohneinheiten im Bauprojekt

Grundrisse

Johannes Kurz | Infina Partner

Johannes Kurz | Infina Partner
Immobilienmakler

Infina Immobilien

Lade...

Fotomix

Bild 1 Bild 2 Bild 3

Lageplan