NEU - Zentral gelegenes Büro im pulsierenden Mariahilf

Immobilie zur Miete in 1060 Wien / Objektnummer: 42004
Ausstattung: Boden Fahrstuhl Teeküche Abstellraum

Preisinformationen

Gesamtmiete (exkl. USt.):
2.549,67 € / Monat
Betriebskosten netto:
344,47 € / Monat
Umsatzsteuer:
509,93 €
Kaution:
13.000,00 €
Vermittlungsprovision:
Ja
Provision:
3 Bruttomonatsmieten zzgl. 20% USt.

Fakten

Objektnummer:
42004
Nutzfläche:
109,59 m²
Bürofläche:
109,59 m²
Zimmer:
5
Toilette:
2
Baujahr:
1900
Altbau:
Ja
Zustand:
Gepflegt
Verfügbarkeit:
Verfügbar

Beschreibung

Entdecken Sie Ihre neue Arbeitsumgebung in der Mariahilfer Straße!

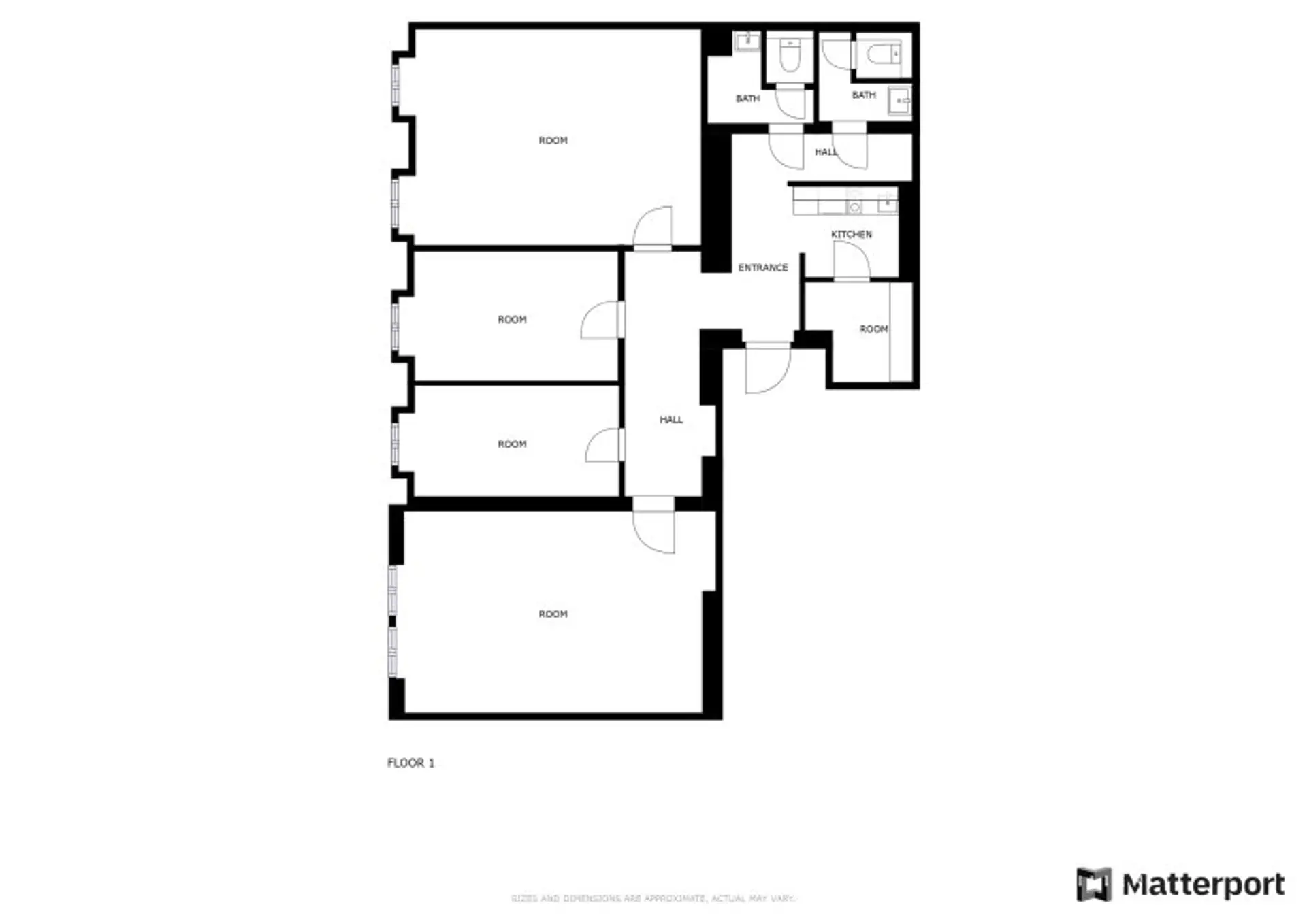
Die zur Verfügung stehende Bürofläche im 3. Liftstock erstreckt sich über ca. 110m² und bietet 4 frei begehbare Zimmer sowie ein repräsentatives Entree.

Das Gebäude aus 1900 Jahundert ist in ausgezeichnetem Zustand und befindet sich inmitten exklusiver Boutiquen, klassischer Kaffeehäuser und moderner Lokale sowie diverser Banken und Firmen.

Die ideale Lage verbindet Business und Lebensart zu einer verführerischen Melange und steht für eine entspannte Arbeitskultur. Das Büro selbst bietet Platz für eine angenehme Arbeitsatmosphäre. Kommen Sie vorbei und überzeugen Sie sich selbst von diesem einzigartigen Angebot!

Es stehen Ihnen ein Vorzimmer, 4 weitere Räume, ein Serverraum / Abstellraum, eine Kaffeeküche und 2 Toiletten zur Verfügung.

Für einen virtuellen Rundgang besuchen Sie bitte die Immobilie auf: https://my.matterport.com/show/?m=N7Btiqqo9NU

„Auf Grund der EU-Richtlinien zum Fernabsatz- und Auswärtsgeschäfte-Gesetz bitten wir um Ihr Verständnis, dass wir Ihnen seit 13. Juni 2014 die Objekt-Unterlagen erst nach Ihrer Bestätigung, dass Sie unser Tätigwerden wünschen und über Ihre Rücktrittsrechte aufgeklärt wurden, zusenden können. Bevor Sie die Unterlagen zugesendet bekommen, erhalten Sie eine Mail in der Sie diese beiden Punkte bestätigen müssen. Vielen Dank für Ihr Vertrauen!“

Für eine noch größere Auswahl an Immobilien besuchen Sie www.akkadia.at [http://www.akkadia.at]

Infrastruktur / Entfernungen

Gesundheit
Arzt <500m
Apotheke <500m
Klinik <500m
Krankenhaus <1.000m

Kinder & Schulen
Schule <500m
Kindergarten <500m
Universität <1.000m
Höhere Schule <1.000m

Nahversorgung
Supermarkt <500m
Bäckerei <500m
Einkaufszentrum <500m

Sonstige
Geldautomat <500m
Bank <500m
Post <500m
Polizei <500m

Verkehr
Bus <500m
U-Bahn <500m
Straßenbahn <1.000m
Bahnhof <500m
Autobahnanschluss <4.500m

Angaben Entfernung Luftlinie / Quelle: OpenStreetMap
Beschreibung weiterlesen

Lage und Verkehrsanbindung

Die exzellente Bürofläche in der Mariahilfer Straße in Wien bietet nicht nur eine erstklassige Arbeitsumgebung, sondern auch eine hervorragende Anbindung an den öffentlichen Verkehr. Die U-Bahnstationen Zieglergasse (U3) und Neubaugasse (U3) sind in unmittelbarer Nähe und auch Bus- und Straßenbahnhaltestellen sind schnell erreichbar. So können Sie problemlos und bequem in alle Richtungen der Stadt gelangen.

Energieeffizienz

HWB:
40,7 kWh/(m²*a)
HWB Klasse:
E
fGEE:
1,21
fGEE Klasse:
C
Energieausweisart:
Energiebedarfs-ausweis
Gültig bis:
08.07.2024

Grundriss

Lageplan

1060 Wien | Wien 6., Mariahilf

Lade...
Gregor Seher

Gregor Seher
Berater | Consultant

AKKADIA Immobilienvermittlung GmbH

Virtuelle Tour

Lade...

Fotomix

Bild 1 Bild 2 Bild 3 Bild 4 Bild 5 Bild 6 Bild 7 Bild 8 Bild 9 Bild 10 Bild 11 Bild 12 Bild 13