NEU - Zentrale Terrassenwohnung mit Altstadtblick

Wohnung zur Miete in 3500 Krems an der Donau - Gesamtmiete: 831,52 € / Objektnummer: 8164/2750
Ausstattung: Boden Fahrstuhl Bad Kabel/Satelliten-TV Abstellraum Fernwärme Terrasse

Preisinformationen

Gesamtmiete:
831,52 € / Monat
Kaution:
3 Bruttomonatsmieten
Provision:
Gemäß Erstauftraggeberprinzip bezahlt der Abgeber die Provision.

Fakten

Objektnummer:
8164/2750
Objekttyp:
Wohnung
Terrasse:
1
Wohnfläche:
64,14 m²
Zimmer:
3
Badezimmer:
1
Toilette:
1
Stockwerk:
1
Neubau:
Ja
Verfügbarkeit:
Verfügbar

Beschreibung

Attraktive Terrassenwohnung mit Altstadtblick

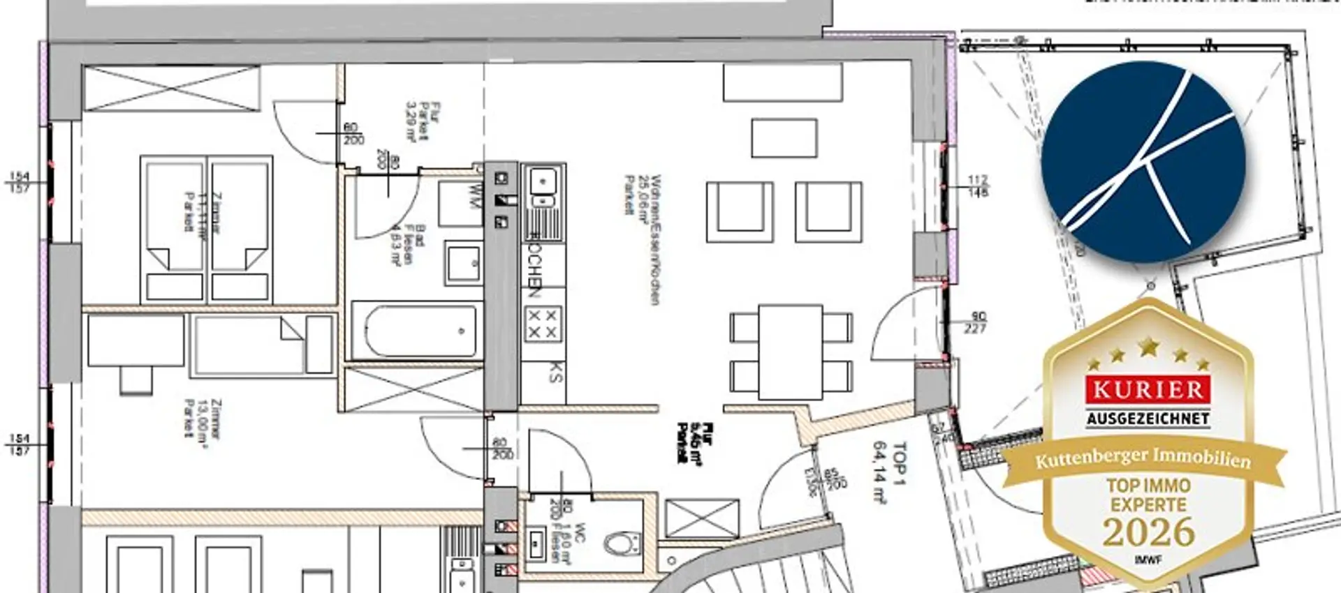
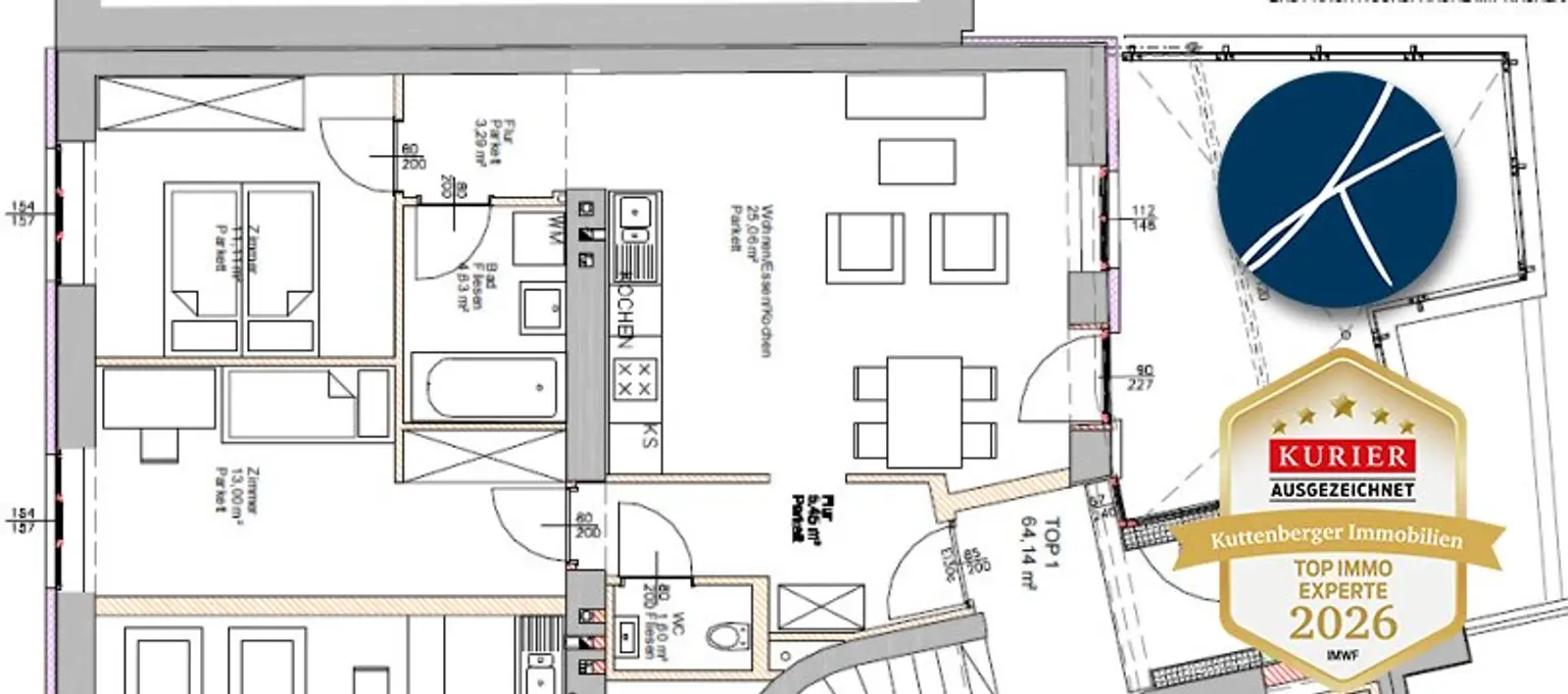
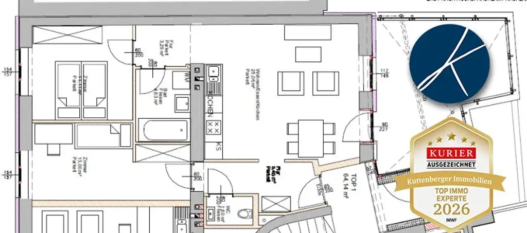
Die Wohnung gliedert sich in einen Flur, einen hellen Wohn-/Essbereich mit Einbauküche und direktem Zugang zur Terrasse, zwei Schlafzimmer, ein Badezimmer mit Badewanne sowie ein separates WC. Die Raffrollos sind bereits montiert.
Ein besonderes Highlight ist die großzügige Terrasse, die ausreichend Platz für Sitzgelegenheiten und individuelle Gestaltung bietet. Von hier aus genießen Sie einen Ausblick auf die Kremser Altstadt.

Die Wohnung befindet sich in einer gepflegten Wohnanlage, die über einen Aufzug verfügt und somit einen komfortablen Zugang zu allen Etagen gewährleistet. Zusätzlich stehen ein eigenes Kellerabteil sowie ein gemeinschaftlicher Fahrradraum zur Verfügung.

Lage
Die Immobilie befindet sich in zentraler Lage von Krems an der Donau und bietet eine ausgezeichnete Infrastruktur. Besonders hervorzuheben ist die unmittelbare Nähe zum Bahnhof Krems, der in wenigen Minuten erreichbar ist und eine optimale Anbindung an den öffentlichen Verkehr gewährleistet.

Einkaufsmöglichkeiten, Cafés, Restaurants sowie Schulen und Kindergärten befinden sich fußläufig. Auch diverse Freizeit- und Erholungsmöglichkeiten liegen in unmittelbarer Nähe.

Besichtigungen können nach Absprache ab sofort vereinbart werden.

Kontakt: Sonja Pirker +43 660 6008002

Wir sind immer auf der Suche nach neuen Objekten. Wenn auch Sie eine Immobilie zu verkaufen oder vermieten haben, berate ich Sie gerne über den besten Weg zum Vermittlungserfolg. Ich freue mich auf Ihren Anruf!

* * * * * * * * * * * * * * * * * *

KUTTENBERGER IMMO - _Vier Jahre in Folge_ ausgezeichnet* mit den Qualitätssiegeln IMMO CHAMPION 2023, TOP IMMO EXPERTE 2024, TOP IMMO EXPERTE 2025 und TOP IMMO EXPERTE 2026! _(*von Kurier und dem IMWF - Institut für Management und Wirtschaftsforschung)_ 

Weitere Online-Services auf www.kuttenberger-immo.at:

* Vormerkkunde werden und Angebote erhalten?   - - - Suchagent anlegen - - - [https://kuttenberger-makler.service.immo/registrieren/de]
* Sie möchten eine Immobilie verkaufen?  - - - Beratung anfragen - - - [https://kuttenberger-immo.at/#rueckruf-anker]
* Die passende Finanzierung finden?  - - - Online Kreditrechner - - - [https://kuttenberger-immo.at/kreditrechner/]
* Wieviel ist meine Immobilie wert?  - - - Immobilie online bewerten - - - [https://kuttenberger-immo.at/schnellbewertung/?utm_source=JustNschtxt]
* Künftig keine Immo-News verpassen?   - - - Email-Newsletter anmelden - - - [https://kuttenberger-immo.at/newsletter-brevo/]

 

* * * * * * * * * * * * * * * * * *

 

Wir weisen darauf hin, dass zwischen dem Vermittler und dem zu vermittelnden Dritten ein familiäres oder wirtschaftliches Naheverhältnis besteht.

Der Immobilienmakler erklärt, dass er – entgegen dem in der Immobilienwirtschaft üblichen Geschäftsgebrauch des Doppelmaklers – einseitig nur für den Vermieter tätig ist.

Infrastruktur / Entfernungen

Gesundheit
Arzt <500m
Apotheke <500m
Klinik <500m
Krankenhaus <1.000m

Kinder & Schulen
Schule <500m
Kindergarten <500m
Universität <500m
Höhere Schule <1.500m

Nahversorgung
Supermarkt <500m
Bäckerei <500m
Einkaufszentrum <1.500m

Sonstige
Geldautomat <500m
Bank <500m
Post <500m
Polizei <500m

Verkehr
Bus <500m
Autobahnanschluss <2.000m
Bahnhof <500m
Flughafen <5.000m

Angaben Entfernung Luftlinie / Quelle: OpenStreetMap
Beschreibung weiterlesen

Grundriss

Lageplan

3500 Krems an der Donau | Krems an der Donau (Stadt)

Lade...
Sonja Pirker

Sonja Pirker

Kuttenberger Makler GmbH

Lade...

Fotomix

Bild 1 Bild 2 Bild 3 Bild 4 Bild 5 Bild 6 Bild 7 Bild 8