NEU - Zur VERKAUF! 2 Zimmer Neubauwohnung mit Balkon-Loggia nähe Helmut -Zilk-Park!

Wohnung zum Kauf in 1100 Wien - Kaufpreis: 305.000 € / Objektnummer: 7669/193
Ausstattung: Barrierefrei Rollstuhlgerecht Boden Fahrstuhl Bad Möbliert Kabel/Satelliten-TV Fahrradraum Abstellraum Fernwärme Zentralheizung Loggia

Preisinformationen

Kaufpreis:
305.000 €
Betriebskosten netto:
168,86 € / Monat
Vermittlungsprovision:
Ja
Provision:
3% des Kaufpreises zzgl. 20% USt.

Fakten

Objektnummer:
7669/193
Objekttyp:
Wohnung
Loggia:
1
Keller Fläche:
2,75 m²
Wohnfläche:
55,05 m²
Loggia Fläche:
6,85 m²
Nutzfläche:
58,47 m²
Gesamtfläche:
58,47 m²
Zimmer:
2
Badezimmer:
1
Toilette:
1
Baujahr:
2019
Neubau:
Ja
Letzte Sanierung:
2025
Zustand:
Gepflegt
Verfügbarkeit:
Verfügbar

Beschreibung

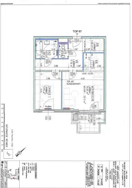
Diese helle  2-Zimmer  Neubauwohnung im  4 Liftstock mit Balkon-Loggia steht zur Verkauf in einem sehr gepflegten Grünanlage 10 Gemeindebezirk Wien.

 Raumaufteilung:

- Große Wohnzimmer  mit Einbauküche.

- ca.6,85 m2 Balkon-Loggia

- mit ausreichend Platz für Doppelbett, Schrank und Nachtkästchen.

- Vorraum 

- Bad mit Wanne und Waschmaschinenanschluss

- Toilette mit Handwaschbecken

Es wurden hochwertiger Laminat und Fliesen verlegt. Am Balkon sind die Wasser  und Stromanschlüssen, und Licht vorhanden. 

Die vielen Grünflächen rund um das Wohnhaus runden ein entspanntes Wohnerlebnis ab. 

Den Bewohnern der Anlage steht ein großer Kinderwagen- und Fahrradabstellraum zur Verfügung, und ein Kellerabteil zugeordnet . 

Energieklasse: A (Fenster und Wärmetechnik am neuesten Stand) 

Rund um das Wohnhaus gibt es viele Parkmöglichkeiten. Wenn eine Garage gewünscht ist, gibt es die auch Option einen Parkplatz in Schrittnähe anzumieten.

Die Wohnung  für Singles und auch Pärchen  oder kleiner Familie Ideal ist.

 

Kaufpreis : -305.000,- VB!

 

Diese Immobilie ist gleichermaßen für Selbstnutzer als auch für Anleger von Interesse, da sie sowohl Wohnkomfort als auch Investitionspotenzial bietet.

Besuchen Sie unsere  http://www.optimuss-premium.com  für weitere attraktive Immobilienangebote!

 

Alle hier veröffentlichen Informationen basieren auf den uns von dem Abgeber/ der Abgeberin zur Verfügung gestellten Informationen und wurden nicht selbst erhoben.

 

 

Wir weisen darauf hin, dass zwischen dem Vermittler und dem zu vermittelnden Dritten ein familiäres oder wirtschaftliches Naheverhältnis besteht.

Infrastruktur / Entfernungen

Gesundheit
Arzt <500m
Apotheke <500m
Klinik <1.500m
Krankenhaus <2.000m

Kinder & Schulen
Schule <500m
Kindergarten <500m
Universität <500m
Höhere Schule <2.000m

Nahversorgung
Supermarkt <500m
Bäckerei <500m
Einkaufszentrum <1.500m

Sonstige
Geldautomat <500m
Bank <500m
Post <500m
Polizei <1.000m

Verkehr
Bus <500m
U-Bahn <1.000m
Straßenbahn <500m
Bahnhof <500m
Autobahnanschluss <1.000m

Angaben Entfernung Luftlinie / Quelle: OpenStreetMap
Beschreibung weiterlesen

Lage und Verkehrsanbindung

Die ruhige Gegend beim Park bietet viele Freizeit- und Sportmöglichkeiten, sowie eine gute Anbindung in die Innenstadt, oder zum Hauptbahnhof.

Die U1 Station Keplerplatz oder Hauptbahnhof ist in wenigen Gehminuten erreichbar.

Auch die Straßenbahnlinie D führt nahe der Wohnhausanlage in der  Innenstadt.

Helmut-Zilk Park und Hauptbahnhof

Energieeffizienz

HWB:
29,67 kWh/(m²*a)
HWB Klasse:
A+
fGEE:
0,83
fGEE Klasse:
A
Energieausweisart:
Energiebedarfs-ausweis
Gültig bis:
15.08.2026

Grundriss

Lageplan

1100 Wien | Wien 10., Favoriten

Lade...
Alexander Tolmacev

Alexander Tolmacev
Immobilienmaklerassistent

Optimuss Premium Immobilien GmbH

Lade...

Fotomix

Bild 1 Bild 2 Bild 3 Bild 4 Bild 5 Bild 6 Bild 7 Bild 8 Bild 9 Bild 10 Bild 11 Bild 12 Bild 13 Bild 14 Bild 15 Bild 16 Bild 17 Bild 18 Bild 19 Bild 20 Bild 21 Bild 22 Bild 23