NEU - Zwei Balkone: 4-Zimmer-Neubau AB APRIL

Wohnung zur Miete in 1220 Wien - Gesamtmiete: 1.481,51 € / Objektnummer: 3946
Ausstattung: Boden Fahrstuhl Wohnküche / offene Küche Bad Kabel/Satelliten-TV Klimaanlage Tiefgarage Parkplatz Fahrradraum Fernwärme Fußbodenheizung Balkon

Preisinformationen

Gesamtmiete:
1.481,51 € / Monat
Betriebskosten netto:
146,83 € / Monat
Umsatzsteuer:
134,68 €
Kaution:
4.500,00 €
Provision:
Gemäß Erstauftraggeberprinzip bezahlt der Abgeber die Provision.

Fakten

Objektnummer:
3946
Objekttyp:
Wohnung
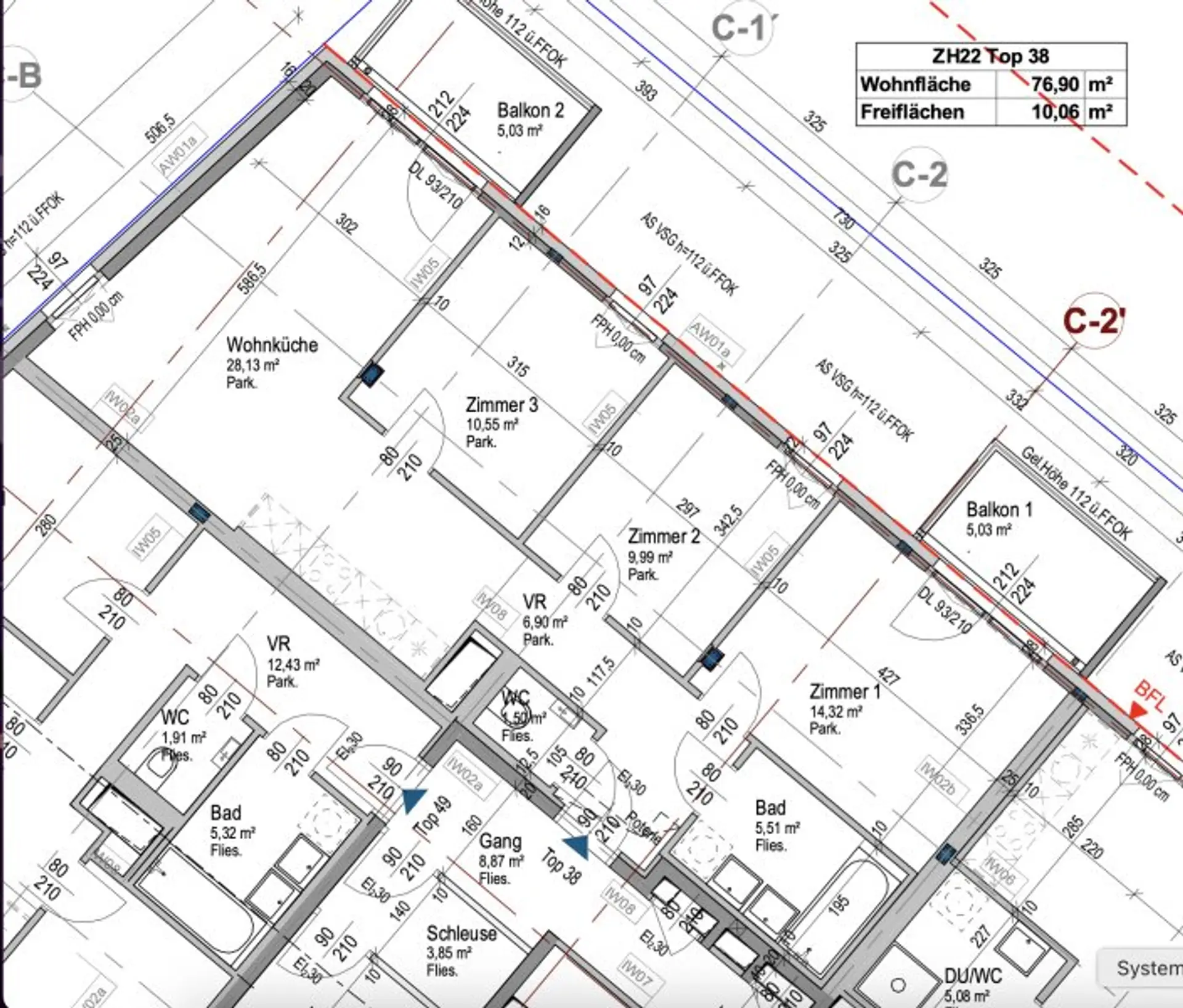
Balkon:
2
Balkonfläche:
10,06 m²
Wohnfläche:
76,9 m²
Zimmer:
4
Badezimmer:
1
Toilette:
1
Stockwerk:
4
Baujahr:
2022
Neubau:
Ja
Zustand:
Neuwertig
Verfügbarkeit:
Verfügbar

Beschreibung

4-ZIMMER-WOHNUNG MIT ZWEI BALKONE AUF 10 JAHRE MIT OPTION AUF VERLÄNGERUNG!

 

BESCHREIBUNG

Die Wohnhausanlage befindet sich im 22. Wiener Bezirk, nahe dem Hirschstettner Badeteich und den Blumengärten Hirschstetten.

Die ca. 77 m² große 4-Zimmer-Wohnung mit insgesamt zwei Balkone zu je 5 m² sucht einen neuen Nachmieter ab 01.04.2026! 

 

Beim Betreten der Wohnung empfängt Sie ein einladenden Flur. Gleich links befindet sich das separate WC inkl. Handwaschbecken und auf der rechten Seite das Badezimmer, welches mit einer Badewanne, einem Waschbecken und einem Waschmaschinenanschluss ausgestattet ist. Den Gang entlang kommen Sie an allen drei separaten Zimmern vorbei welche sich perfekt als Schlaf-, Gäste- oder Arbeitszimmer eignen. Einer der Räume hat zusätzlich einen eigenen Balkon! Das Schlusslicht des Ganges bildet der großzügige Wohnbereich, welcher eine offene Wohnküche inkl. allen Geräten des täglichen Bedarfs umfasst. Von hier aus gelangen Sie außerdem zum zweiten Balkon hinaus.

Des Weiteren ist die Wohnung mit einer Deckenkühlung ausgestattet, welche bereits in den Betriebskosten inkludiert ist. Geheizt wird in der Anlage mittels Fußbodenheizung (Fernwärme)

Ein geräumiges Kellerabteil wir dem Mieter für die Mietdauer zur Verfügung gestellt. Ein Aufzug ist natürlich auch vorhanden. Die Hausanlage verfügt außerdem über einen Kinderwagen- und einen Fahrradabstellraum, sowie einem Party- bzw. Kinderspielraum und eine Waschküche.

Ein Autostellplatz in der Garage kann bei Bedarf und Verfügbarkeit separat angemietet werden.

 

 

AUSSTATTUNG:

Parkettböden in den Wohnräumen, Fußbodenheizung, elektrische Außenjalousien, Internet- und Kabel-Anschlüsse, Gegensprechanlage; Sicherheitstür; Deckenkühlung

 

HINWEIS:

Die abgebildeten Fotos sind Aufnahmen einer ähnlichen Wohnung in der Anlage! Dementsprechend sind diese gut als Vergleich heranzuziehen! 

Aufbau gemäß dem Grundrissplan.

 

LAGE:

Diese Wohnung befindet sich in einer erstklassigen Lage, die sowohl Ruhe als auch eine gute Anbindung an die umliegenden Annehmlichkeiten bietet.

Gelegen in den idyllischen Blumengärten Hirschstetten, sind Sie nur einen kurzen Spaziergang vom beliebten Hirschstettner Badeteich entfernt. Der Bahnhof Hausfeldstraße ist ebenfalls in unmittelbarer Nähe, und die S-Bahnlinie S2 Hirschstetten ermöglicht eine schnelle und bequeme Anbindung an das Zentrum von Wien sowie andere wichtige Ziele.

Ebenfalls bietet der Bus beinahe direkt vor der Haustür eine bequeme Verbindung, während die Straßenbahn nur wenige Minuten entfernt ist und eine weitere Transportoption darstellt.

Die Umgebung ist auch mit einer Vielzahl von Einkaufsmöglichkeiten gesegnet, darunter Hofer, Lidl, DM und mehr, die alle bequem zu Fuß erreichbar sind. Mit dieser idealen Lage genießen Sie die perfekte Balance zwischen urbanem Komfort und Naturbelassenheit.

 

 

KONDITIONEN:

Vermietet wird auf 10 Jahre ab sofort mit Option auf eine Verlängerung;

Kündigungsverzicht: 1 Jahr; Kündigungsfrist: 3 Monate;

Gesamtmiete (KALT; inkl. BK und Steuern): € 1.481,51

Kaution: € 4.500,- // Vertragserrichtung: € 360, - // provisionsfrei für den Mieter!

 

Strom wird auf den Mieter umgemeldet.

Heizung (Fernwärme und Wasser) wird direkt über Wien Energie verrechnet und auf den Mieter umgeschrieben.

TV und Internet sind nach Bedarf selbst an- und wieder abzumelden.

Ein Abschluss einer Haushaltsversicherung wird vor dem Einzug empfohlen.

 

 

 

KONTAKT

Bitte beachten Sie, dass wir aufgrund der Nachweispflicht gegenüber dem Eigentümer nur Anfragen mit vollständiger Angabe der Anschrift bearbeiten können. 

Wir senden Ihnen gerne weitere und detaillierte Beschreibungen, sowie Besichtigungstermine zu, sobald wir Ihre Anfrage erhalten haben.

Wir bitten Sie daher um eine Email Anfrage an: stifter@pr-immobilien.at

Noch nichts gefunden? Wir informieren Sie über geeignete Immobilienangebote noch vor allen anderen.
Legen Sie jetzt Ihren individuellen Suchagenten unter folgendem Link an. Wir schicken Ihnen passende Immobilien exklusiv vorab zu.
Suchagent anlegen [https://pr-immobilien-real-estate.service.immo/registrieren/de] - https://pr-immobilien-real-estate.service.immo/registrieren/de

Der Immobilienmakler erklärt, dass er – entgegen dem in der Immobilienwirtschaft üblichen Geschäftsgebrauch des Doppelmaklers – einseitig nur für den Vermieter tätig ist.

Infrastruktur / Entfernungen

Gesundheit
Arzt <250m
Apotheke <500m
Klinik <1.500m
Krankenhaus <2.250m

Kinder & Schulen
Schule <500m
Kindergarten <500m
Universität <3.000m
Höhere Schule <3.000m

Nahversorgung
Supermarkt <250m
Bäckerei <750m
Einkaufszentrum <1.500m

Sonstige
Geldautomat <250m
Bank <250m
Post <750m
Polizei <250m

Verkehr
Bus <250m
U-Bahn <1.000m
Straßenbahn <500m
Bahnhof <1.000m
Autobahnanschluss <1.250m

Angaben Entfernung Luftlinie / Quelle: OpenStreetMap
Beschreibung weiterlesen

Lage und Verkehrsanbindung

1220 Wien / Blumengärten Hirschstetten / Hirschstettner Badeteich

Blumengärten Hirschstetten / Hirschstettner Badeteich / Hausfeldstraße Bahnhof / Wien Aspern Nord / S2 Hirschstetten / Gewerbepark Stadlau

Energieeffizienz

HWB:
22,28 kWh/(m²*a)
HWB Klasse:
A
fGEE:
0,76
fGEE Klasse:
A
Energieausweisart:
Energiebedarfs-ausweis
Gültig bis:
21.02.2032

Grundriss

Lageplan

1220 Wien | Wien 22., Donaustadt

Lade...
Marissa Stifter

Marissa Stifter
Immobilienmaklerassistentin

PR-IMMOBILIEN / REAL ESTATE

Lade...

Fotomix

Bild 1 Bild 2 Bild 3 Bild 4 Bild 5 Bild 6 Bild 7 Bild 8 Bild 9 Bild 10 Bild 11 Bild 12 Bild 13 Bild 14 Bild 15