NEU - Zwei Seiten, ein Stil – Die besondere Doppelhaushälfte

Haus zum Kauf in 6781 Bartholomäberg / Objektnummer: 6445
Visualisierung Doppelhaus
Lageskizze
Visualisierung
Visualisierung
Visualisierung
Visualisierung
Visualisierung
Visualisierung
Visualisierung
Visualisierung
Visualisierung
Visualisierung
Ansicht
Ansicht
Ansicht
Ansicht
Ansicht
Ansicht
Ansicht
Ansicht
Lageplan
Adressplan
Flächenwidmungsplan
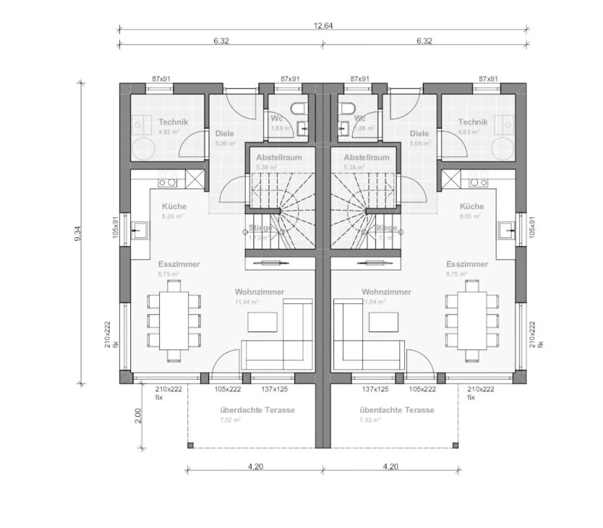
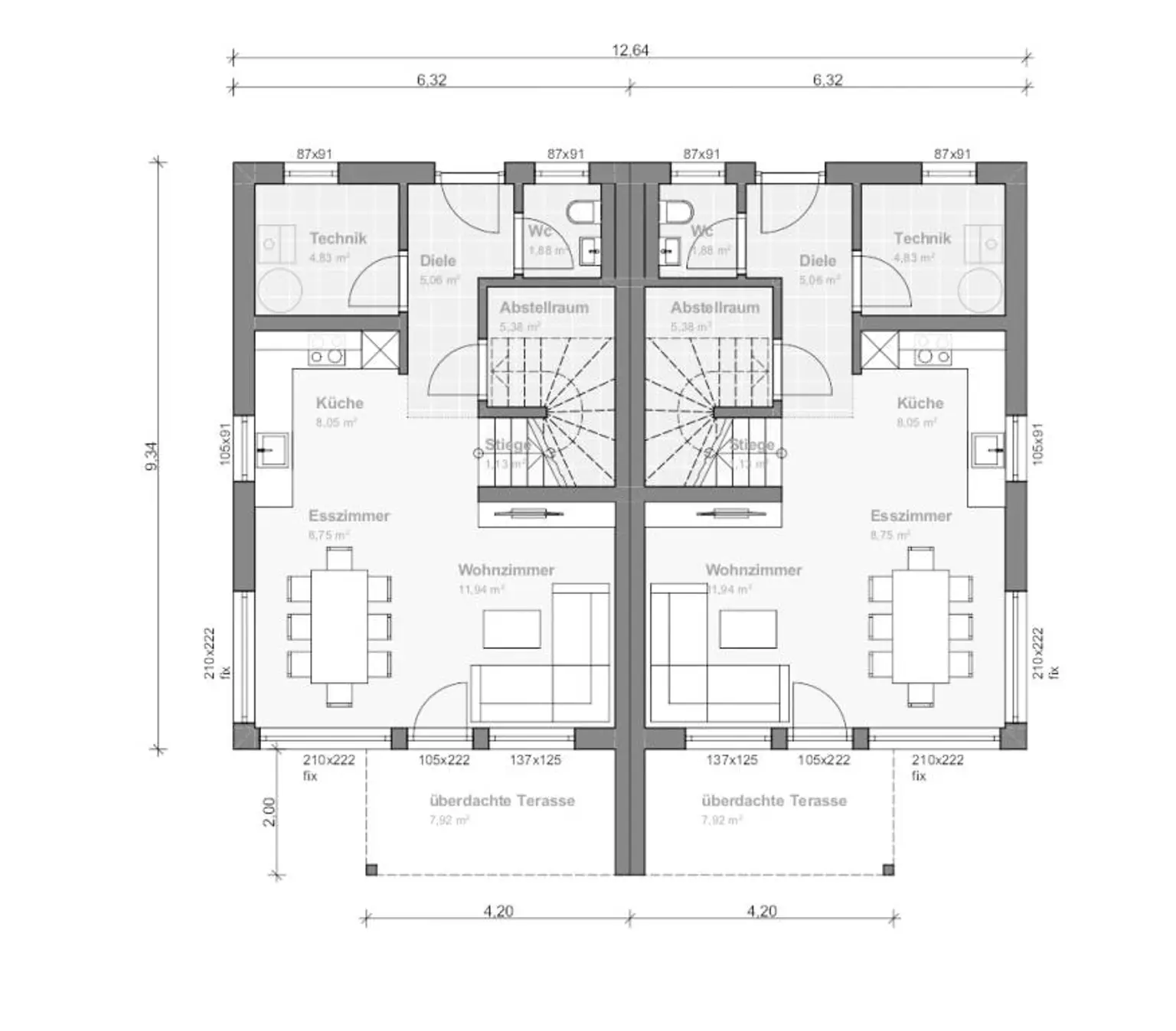
Erdgeschoss
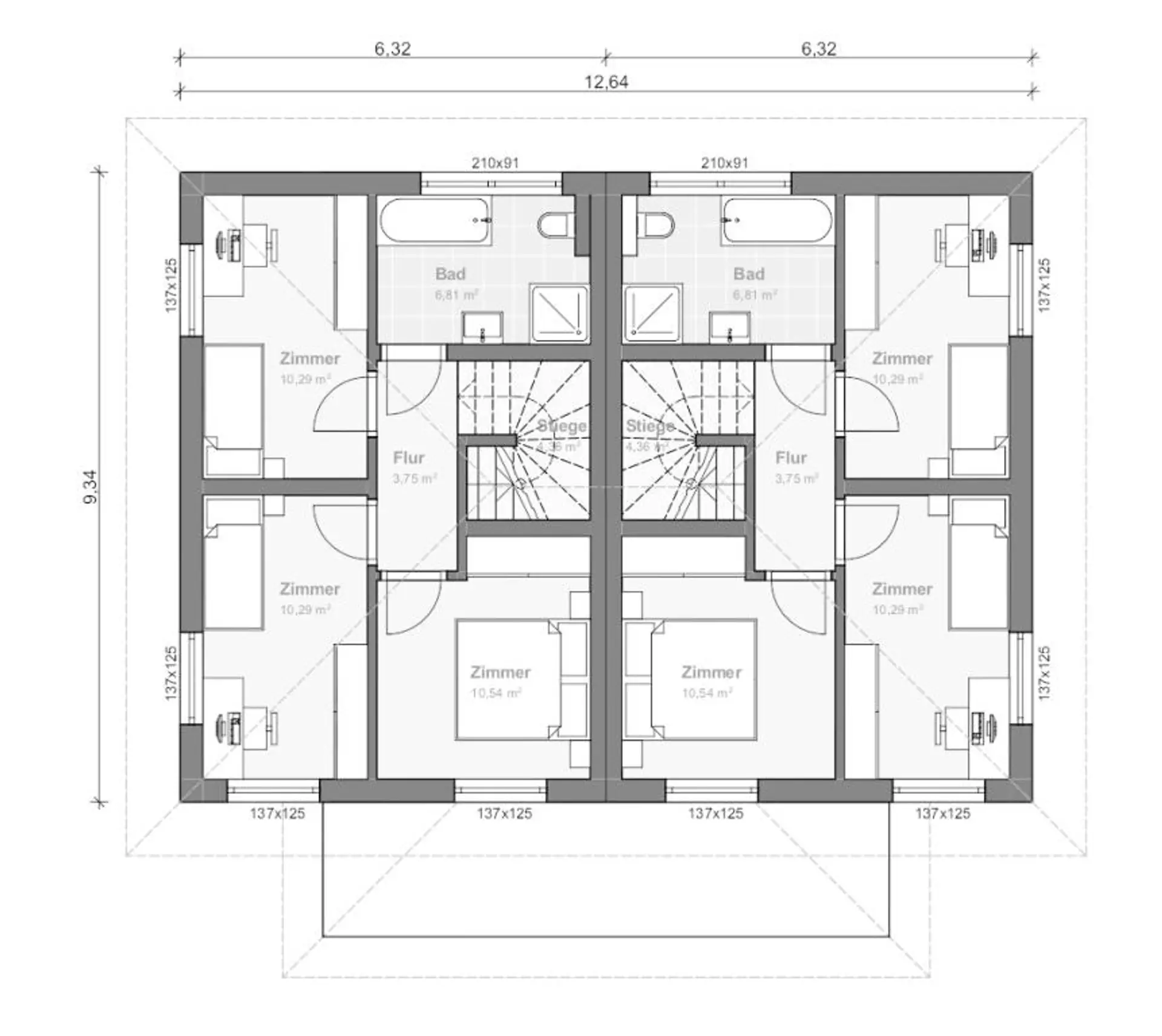
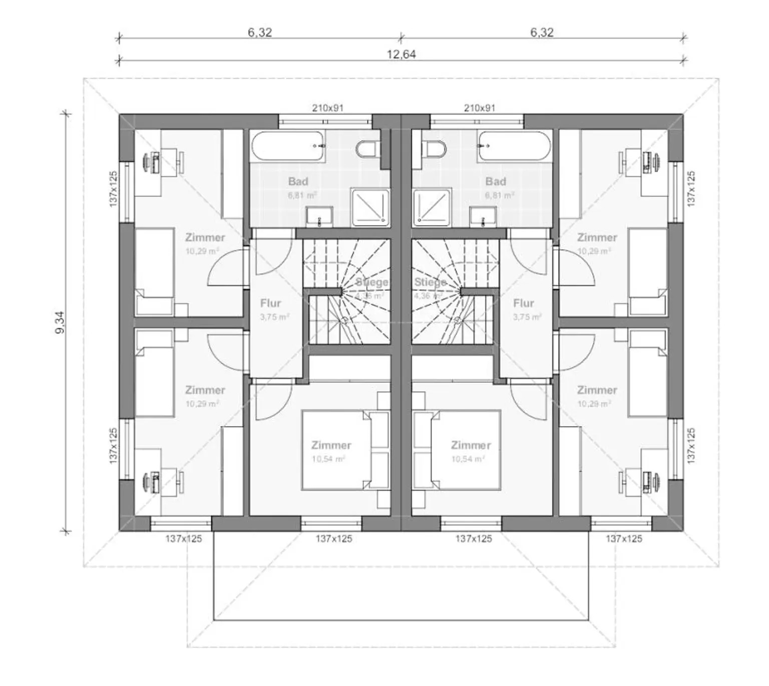
Obergeschoss

Preisinformationen

Provision:
3.00 %

Fakten

Objektnummer:
6445
Objekttyp:
Haus
Wohnfläche:
93 m²
Grundstücksfläche:
268 m²
Zimmer:
4
Baujahr:
2026
Verfügbarkeit:
Verfügbar

Beschreibung

+ Doppelhaushälfte Smart Life 93 mit 93 m² Nettogrundrissfläche, Schlüsselfertig
+ 20° Walmdach, fertig eingedeckt inkl. Dachvorsprung
+ Ziehtreppe in Dachboden
+ Fertige Sanitär- und umfangreiche Elektroinstallationen
+ Luft-Wasser-Wärmepumpe mit Fußbodenheizung inkl. Kühlfunktion
+ 3-fach verglaste Kunststoff-Alu-Fenster
+ Alu-Rollläden inkl. E-Antrieb mit Fernbedienung
+ 5 kWp Photovoltaikanlage
+ Fugenloser Fassadenputz auf der Baustelle aufgebracht
+ Anschlussgebühren (Strom, Wasser und Kanal)
+ Schigebiet Golm und viele Wanderwege, sowie Tennisplatz und Schwimmbad
+ Gute Verkehrsanbindung

Diese moderne Doppelhaushälfte Smart Life 93 am sonnigen Bartholomäberg kombiniert zeitgemäße Architektur und hochwertiger Ausstattung. Auf 93 m² erwartet Sie ein durchdachtes Wohnkonzept, das Komfort, Effizienz und Ästhetik harmonisch verbindet.

Das Haus wird schlüsselfertig übergeben und verfügt über ein 20° Walmdach, das bereits vollständig eingedeckt ist – inklusive Dachvorsprung und praktischer Ziehtreppe zum Dachboden. Hochwertige Sanitär- sowie umfangreiche Elektroinstallationen sind ebenso im Preis enthalten wie eine Luft-Wasser-Wärmepumpe mit Fußbodenheizung, die ein angenehmes und energieeffizientes Raumklima schafft.

Moderne 3-fach verglaste Kunststoff-Alu-Fenster sorgen für optimale Dämmwerte, ergänzt durch Alu-Rollläden mit elektrischem Antrieb und Fernbedienung.

Auch im Außenbereich ist alles vorbereitet: Der fugenlose Fassadenputz wird direkt auf der Baustelle aufgebracht. Anschlussgebühren für Strom, Wasser und Kanal gemäß Leistungsbeschreibung 08/2025 sind bereits inkludiert.

Die Lage überzeugt durch ihre Nähe zum Skigebiet Golm, zu zahlreichen Wanderwegen, einem Tennisplatz und Schwimmbad sowie durch eine sehr gute Verkehrsanbindung. Das sonnige Grundstück bietet zudem vielfältiges Potenzial für Ihre persönlichen Wohnideen.

Ein Zuhause, das Qualität, Komfort und Natur ideal vereint.
- 3,5% Grunderwerbsteuer
- 1,1% Grundbuchseintragung (entfällt bis € 500.000,00)*
- 3,0% Vermittlungsprovision zzgl. 20% MwSt.
- Vertragserrichtungskosten
- Beglaubigungskosten + Barauslagen

*Für Detailinformationen stehen wir Ihnen gerne zur Verfügung.
Beschreibung weiterlesen

Lageplan

6781 Bartholomäberg | Bludenz

Lade...
Alfred Geisinger

Alfred Geisinger

RE/MAX Immowest

Anrufen
Lade...

Fotomix

Visualisierung Doppelhaus Lageskizze Visualisierung Visualisierung Visualisierung Visualisierung Visualisierung Visualisierung Visualisierung Visualisierung Visualisierung Visualisierung Ansicht Ansicht Ansicht Ansicht Ansicht Ansicht Ansicht Ansicht Lageplan Adressplan Flächenwidmungsplan Erdgeschoss Obergeschoss