NEU - Zwei- Zimmer Neubauwohnung mit 9,63 m2 Loggia, in der Boerhaavegasse in unmittelbar Nähe zur Klinik Landstraße!

Wohnung zur Miete in 1030 Wien - Gesamtmiete: 1.100,00 € / Objektnummer: 5541
Ausstattung: Barrierefrei Rollstuhlgerecht Boden Fahrstuhl Wohnküche / offene Küche Bad Kabel/Satelliten-TV Fahrradraum Abstellraum Fernwärme Loggia

Preisinformationen

Gesamtmiete:
1.100,00 € / Monat
Betriebskosten netto:
104,45 € / Monat
Umsatzsteuer:
10,45 €
Kaution:
3.500,00 €
Provision:
Gemäß Erstauftraggeberprinzip bezahlt der Abgeber die Provision.

Fakten

Objektnummer:
5541
Objekttyp:
Wohnung
Loggia:
1
Keller Fläche:
2 m²
Wohnfläche:
53,57 m²
Loggia Fläche:
9,63 m²
Nutzfläche:
63,2 m²
Zimmer:
2
Badezimmer:
1
Toilette:
1
Stockwerk:
4
Baujahr:
2000
Neubau:
Ja
Zustand:
Gepflegt
Verfügbarkeit:
Verfügbar

Beschreibung

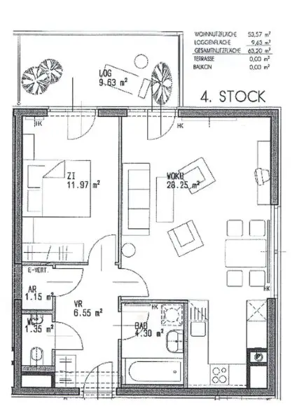
Zur Vermietung gelangt eine 53,57 m² große 2-Zimmer-Wohnung im barrierefreien 4. Liftstock mit einer 9,63 m² großen Loggia.
Die Mietwohnung befindet sich in einem Neubauwohnhaus Baujahr 2000 in der Boerhaavegasse im 3. Wiener Gemeindebezirk, in unmittelbarer Nähe zur Klinik Landstraße (ehem. Rudolfstiftung).

Die Wohnung ist derzeit noch bewohnt und kann spätestens ab 1. April 2026 bezogen werden. Besichtigungen sind ausschließlich nach Terminvereinbarung mit dem derzeitigen Mieter möglich.

Die Wohnung ist wie folgt aufgeteilt:

- ein Vorraum von dem alle Räume separat begehbar sind
- eine großzügige 28,25 m2 große Wohnküche mit Zugang zur 9 m2 großen Loggia
- ein 11,97 m2 großes Schlafzimmer ebenfalls mit Zugang zur Loggia
- ein Badezimmer mit Badewanne und Waschmaschinenanschluss
- ein separates WC
- ein Abstellraum

Beheizt wird das Objekt mittels Fernwärme. In den Wohnräumen sind Parkettböden verlegt, das Badezimmer ist verfließt. Ein zirka 2 m2 großes Kellerabteil ist der Wohnung zugeteilt. Ein Garagenplatz kann im Haus angemietet werden. 

Hauptmietvertrag befristet auf 5 Jahre 
Miete inkl. BK und Ust: 1.100,- Euro
Kaution: 3.500 Euro 
Beziehbar spätestens ab 01.04.2026

Für Besichtigungstermine bzw. weitere Informationen kontaktieren Sie bitte Herrn Bigus unter 0699 / 12 47 15 92 oder per Email bigus@immobilienquartier.at.

 

Für einen Besichtigungstermin bitten wir ausdrücklich um Voranmeldung per E-Mail/Anfrage. Wir bitten Sie Ihren Namen und Anschrift anzuführen.

Bitte lassen Sie mir gerne vorab ausreichend Detailinformationen über Ihre Person zukommen oder/und  schalten Sie Ihr vollständiges Mietprofil für mich frei.

Der Immobilienmakler erklärt, dass er – entgegen dem in der Immobilienwirtschaft üblichen Geschäftsgebrauch des Doppelmaklers – einseitig nur für den Vermieter tätig ist.

Infrastruktur / Entfernungen

Gesundheit
Arzt <500m
Apotheke <500m
Klinik <1.000m
Krankenhaus <500m

Kinder & Schulen
Schule <500m
Kindergarten <500m
Universität <1.000m
Höhere Schule <500m

Nahversorgung
Supermarkt <500m
Bäckerei <500m
Einkaufszentrum <1.000m

Sonstige
Geldautomat <500m
Bank <500m
Post <500m
Polizei <500m

Verkehr
Bus <500m
U-Bahn <1.000m
Straßenbahn <500m
Bahnhof <500m
Autobahnanschluss <2.000m

Angaben Entfernung Luftlinie / Quelle: OpenStreetMap
Beschreibung weiterlesen

Lage und Verkehrsanbindung

Boerhaavegasse 8A, Krankenanstalt Rudolfstiftung

Energieeffizienz

HWB:
48,59 kWh/(m²*a)
HWB Klasse:
C
fGEE:
1,25
fGEE Klasse:
C
Energieausweisart:
Energiebedarfs-ausweis

Grundriss

Lageplan

1030 Wien | Wien 3., Landstraße

Lade...
Peter Bigus

Peter Bigus
Geschäftsführung

Immobilienquartier

Lade...

Fotomix

Bild 1 Bild 2 Bild 3 Bild 4 Bild 5 Bild 6 Bild 7 Bild 8 Bild 9 Bild 10 Bild 11