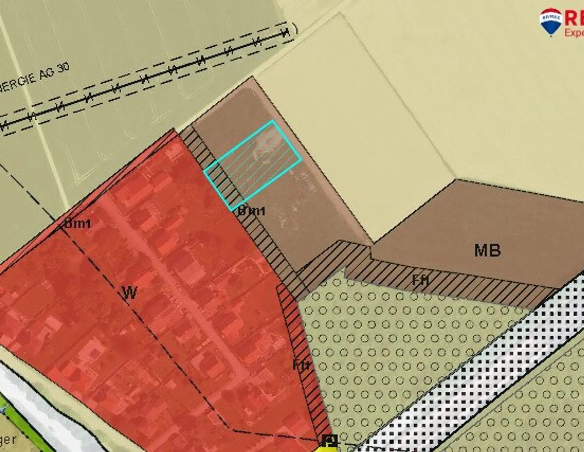
NEU - 1.600 m² Großes Betriebsgrundstück in Oftering - Mischbaugebiet Widmung

Grundstück zum Kauf in 4064 Oftering - Kaufpreis: 479.000 €
Ausstattung:

Preisinformationen

Kaufpreis:
479.000 €
Vermittlungsprovision:
Ja

Fakten

Objekttyp:
Grundstück
Grundstücksfläche:
1.600 m²
Neubau:
Ja
Verfügbarkeit:
Verfügbar

Beschreibung

***1.600 m² großes Betriebsgrundstück in Oftering - Mischbaugebiet Widmung*** Zum Verkauf steht ein großzügiges Betriebsgrundstück mit einer Gesamtfläche von rund 1.600 m² in einem aufstrebenden Mischbaugebiet von Oft…
Lade...

Fotomix

Bild 1 Bild 2 Bild 3 Bild 4