NEU - 2-Zimmer-Neubauwohnung nahe U1 Troststraße

Wohnung zur Miete in 1100 Wien - Gesamtmiete: 899,96 € / Objektnummer: 1784
Ausstattung: Boden Fahrstuhl Wohnküche / offene Küche Bad Zentralheizung

Preisinformationen

Gesamtmiete:
899,96 € / Monat
Betriebskosten netto:
228,79 € / Monat
Umsatzsteuer:
81,82 €
Kaution:
2.700,00 €
Provision:
Gemäß Erstauftraggeberprinzip bezahlt der Abgeber die Provision.

Fakten

Objektnummer:
1784
Objekttyp:
Wohnung
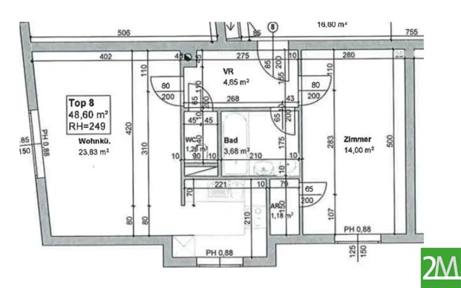
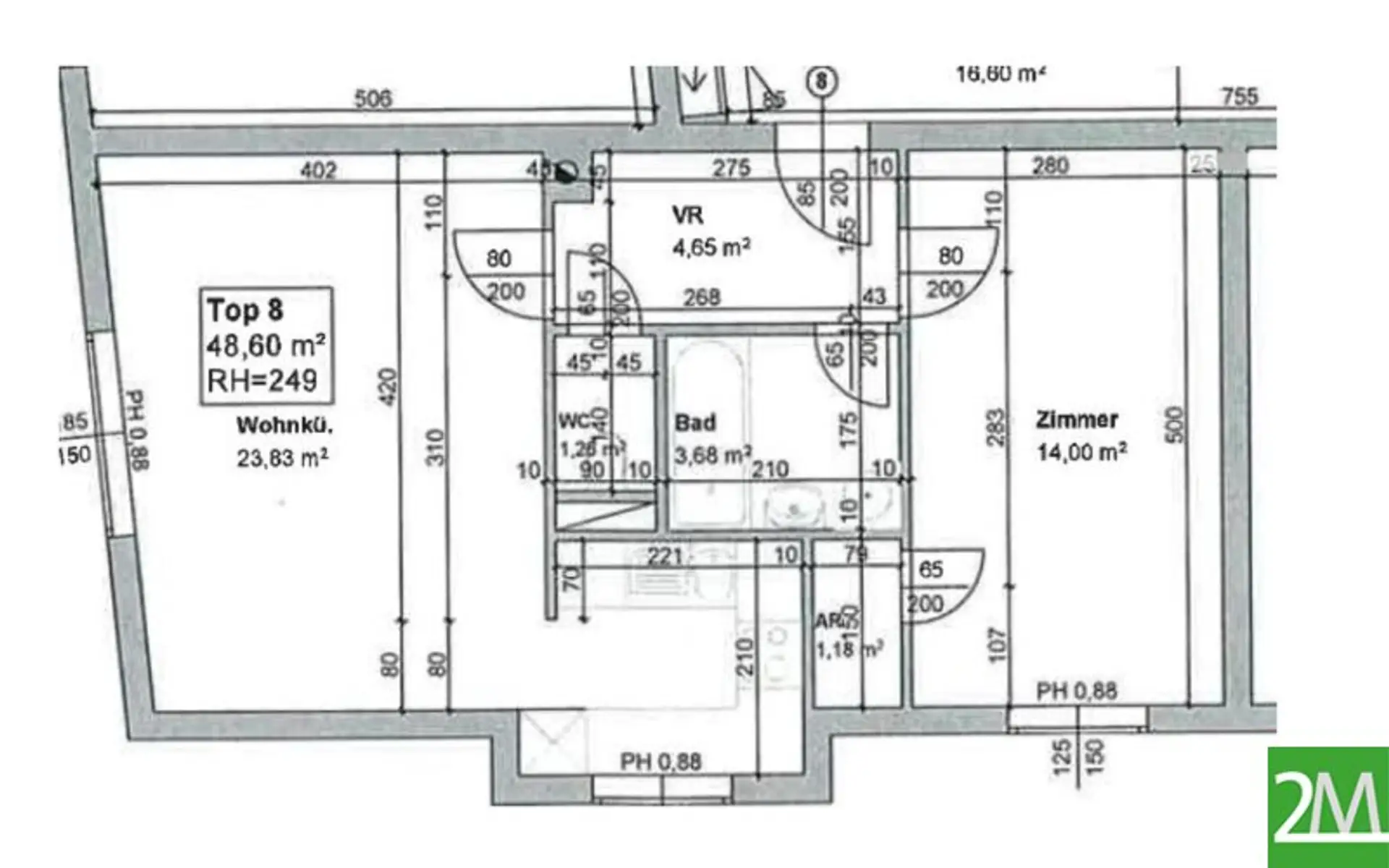
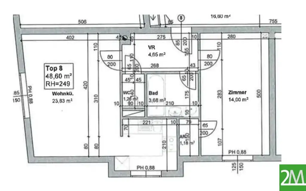
Wohnfläche:
48,6 m²
Zimmer:
2
Badezimmer:
1
Toilette:
1
Stockwerk:
2
Baujahr:
1992
Neubau:
Ja
Zustand:
Gepflegt
Verfügbarkeit:
Verfügbar
Verfügbar ab:
ab sofort

Beschreibung

Zur Vermietung gelangt eine 2-Zimmer-Wohnung mit einer Wohnfläche von rd. 49m². Die Wohnung befindet sich im 2. Liftstock eines älteren Neubaus in der Ettenreichgasse und wird auf 5 Jahre befristet vermietet. Eine Videotour durch die Wohnung steht auf der Plattform zur Verfügung und kann bei Bedarf auch gerne zugeschickt werden. 

WICHTIG: Bitte beachten Sie die Bonitätsvorgaben des Eigentümers, bevor Sie eine Anfrage stellen.

Die wichtigsten Infos zur Wohnung auf einen Blick

* Geräumige Wohnküche mit moderner Einbauküche
* Geräumiges Schlafzimmer mit kleinem Abstellraum
* Badezimmer mit Badewanne und separates WC
* Zustand: Wohnung ausgemalt, Küche neu eingebaut
* Kellerabteil vorhanden
* Bonität: Haushaltseinkommen mind. 2.250€ netto/Monat (über die Gehaltszettel der letzten drei Monate nachzuweisen), Bürgschaft möglich

Die Anbindung an den öffentlichen Nahverkehr ist durch die Nähe zur U1-Station Troststraße sowie zahlreichen Bus- und Straßenbahnverbindungen in der Umgebung sehr gut gegeben. Auch mit dem Auto sind Sie gut angebunden.

Für weitere Auskünfte sowie eine Besichtigung stehe ich Ihnen jederzeit gerne zur Verfügung.

Mathias Mesaric, MA
2M Immobilien e.U.
Mobil: 0650 80 22 435
Mail: mm@2m-immobilien.at

www.2m-immobilien.at [http://www.2m-immobilien.at]

Hinweis:

Es wird festgehalten, dass die Firma 2M Immobilien e.U. nicht als Doppelmakler, sondern nur einseitig für den Vermieter tätig ist. Nähere Informationen entnehmen Sie bitte dem beiliegenden Informationsblatt.

Wir weisen darauf hin, dass zwischen dem Vermittler und dem zu vermittelnden Dritten ein familiäres oder wirtschaftliches Naheverhältnis besteht.

Der Immobilienmakler erklärt, dass er – entgegen dem in der Immobilienwirtschaft üblichen Geschäftsgebrauch des Doppelmaklers – einseitig nur für den Vermieter tätig ist.

Infrastruktur / Entfernungen

Gesundheit
Arzt <250m
Apotheke <500m
Klinik <750m
Krankenhaus <2.000m

Kinder & Schulen
Schule <250m
Kindergarten <250m
Universität <500m
Höhere Schule <2.750m

Nahversorgung
Supermarkt <250m
Bäckerei <250m
Einkaufszentrum <1.500m

Sonstige
Geldautomat <500m
Bank <500m
Post <500m
Polizei <1.000m

Verkehr
Bus <250m
U-Bahn <500m
Straßenbahn <500m
Bahnhof <500m
Autobahnanschluss <1.250m

Angaben Entfernung Luftlinie / Quelle: OpenStreetMap
Beschreibung weiterlesen

Lage und Verkehrsanbindung

U1 Troststraße

Energieeffizienz

HWB:
103 kWh/(m²*a)
HWB Klasse:
D
fGEE:
2,05
fGEE Klasse:
D
Energieausweisart:
Energiebedarfs-ausweis
Gültig bis:
18.12.2029

Dokumente

Grundriss

Lageplan

1100 Wien | Wien 10., Favoriten

Lade...
Mathias Mesaric, MA

Mathias Mesaric, MA
Inhaber

2M Immobilien e.U.

Lade...

Fotomix

Bild 1 Bild 2 Bild 3 Bild 4 Bild 5 Bild 6 Bild 7