NEU - 2 Zimmer-Wohnung in Top-Lage, in einem sehr schönen gepflegten Altbau!

Wohnung zum Kauf in 1030 Wien - Kaufpreis: 374.000 € / Objektnummer: 1334
Ausstattung: Wohnküche / offene Küche Fernwärme

Preisinformationen

Kaufpreis:
374.000 €
Betriebskosten netto:
117,06 € / Monat
Vermittlungsprovision:
Ja
Provision:
13.464,00 € inkl. 20% USt.

Fakten

Objektnummer:
1334
Objekttyp:
Wohnung
Wohnfläche:
57,1 m²
Zimmer:
2
Badezimmer:
1
Toilette:
1
Stockwerk:
3
Baujahr:
1911
Altbau:
Ja
Zustand:
Gepflegt
Verfügbarkeit:
Verfügbar

Beschreibung

Dieser Altbau ist ein Meisterwerk in der beliebtesten Gegend im 3ten Bezirk. Wir können Ihnen in der Liegenschaft mehrere Einheiten anbieten.

TOP 5 im Hochparterre befindliche Gartenwohnung verfügt über zwei Zimmer mit ca. 43 qm und einer Gartenfläche von 30,6qm. Sie kostet € 318.000,-,

*  der Vorraum (ca. 7,3 qm)
* Einbauküche und mit Blick in den grünen Innenhof und Garten
* das ruhige, ebenfalls in einen Innenhof ausgerichtete Schlafzimmer (ca. 9,1 qm)
* das Badezimmer mit Wanne, WC und Waschmaschinenanschluss (ca. 4,8 qm)
* Der begrünte Garten (ca. 30 qm)

TOP 6 im Hochparterre verfügt über ein Zimmer und eine Wohnfläche im Ausmaß von ca. 33 qm und einer Gartenfläche von 27,9qm zum Kaufpreis von € 249.000,- 

*  der Vorraum 
*  die Wohnküche/Schlafraum mit voll ausgestatteter Einbauküche
* das Badezimmer mit Wanne und Waschmaschinenanschluss 
* WC
* Der Garten

Top 10 im ersten Liftstock mit 3 Zimmer und einer Wohnfläche von ca. 71m2, sie Wohnung kostet 448.000,-, 

*  der Vorraum (ca. 8,11 qm)
*  die Wohnküche (ca. 27,87 qm) mit voll ausgestatteter Einbauküche
* zwei Zimmer, eines in den Innenhof ausgerichtete Schlafzimmer (ca. 13,72 qm), das Zweite 13,4qm
* das Badezimmer mit und Wanne und Waschmaschinenanschluss (ca. 6,09 qm)
* WC mit Handwaschbecken

TOP 11 im ersten Liftstock mit zwei Zimmer und einer Wohnfläche von ca. 55 qm. Frisch ausgemalt und grundgereinigt, kostet € 346.000,-  

*  der Vorraum (ca. 5,5 qm)
*  die hofseitige Wohnküche (ca. 27,4 qm) mit voll ausgestatteter Einbauküche und mit Blick in den grünen Innenhof
* das ruhige, in den Innenhof ausgerichtete Schlafzimmer (ca. 14,8 qm)
* das Badezimmer mit und Wanne und Waschmaschinenanschluss (ca. 5,3 qm)
* WC mit Handwaschbecken

TOP 13 im zweiten Liftstock verfügt über zwei Zimmer und eine Wohnfläche im Ausmaß von ca. 70 qm (Süd-Ausrichtung) und kostet € 453.000,- 

* der Vorraum (ca. 4,5 qm)
* die südseitige Wohnküche (ca. 41 qm) mit voll ausgestatteter Einbauküche 
* das ruhige, im Innenhof ausgerichtete Schlafzimmer (ca. 17,5 qm)
* das Badezimmer mit und Wanne und Waschmaschinenanschluss (ca. 5,3 qm)
* WC mit Handwaschbecken

Top 14 im zweiten Liftstock mit 3 Zimmer und einer Wohnfläche von ca. 71,52m2, sie Wohnung kostet 465.000,-,

*  der Vorraum (ca. 8,14 qm)
*  die Wohnküche (ca. 27,94 qm) mit voll ausgestatteter Einbauküche
* zwei Zimmer, eines in den Innenhof ausgerichtete Schlafzimmer (ca. 13,88 qm), das Zweite 13,51qm
* das Badezimmer mit und Wanne und Waschmaschinenanschluss (ca. 5,95 qm)
* WC mit Handwaschbecken

TOP 15 im zweiten Liftstock verfügt über zwei Zimmer und einer Wohnfläche von ca. 57 qm und kostet € 370.000,- 

* der Vorraum (ca. 5,6 qm
* die hofseitige Wohnküche (ca. 28,4 qm) mit voll ausgestatteter Einbauküche
* das ruhige, im Innenhof ausgerichtete Schlafzimmer (ca. 15,8 qm)
* das Badezimmer mit und Wanne und Waschmaschinenanschluss (ca. 5,3 qm)
* WC mit Handwaschbecken

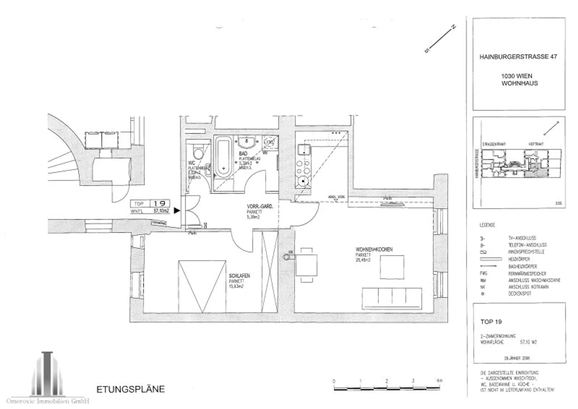
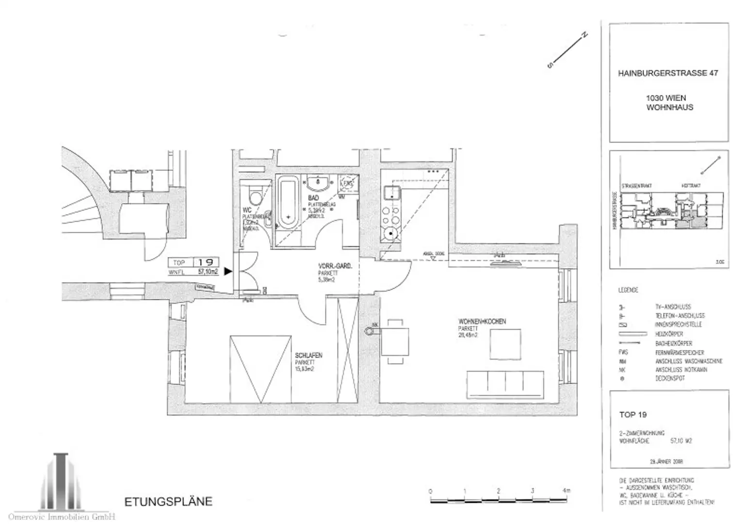
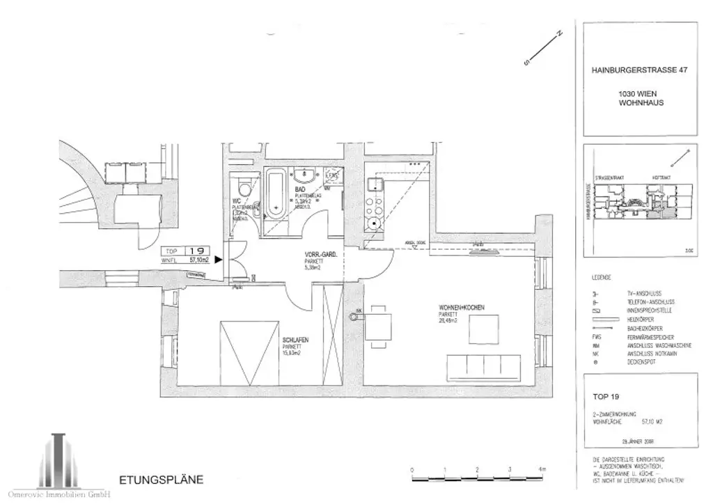
Top 19 im dritten Liftstock verfügt über zwei Zimmer mit einer Wohnfläche von ca. 57,10m2

* der Vorraum (ca. 5,38 qm)
* die hofseitige Wohnküche (ca. 28,48 qm) mit voll ausgestatteter Einbauküche
* das Schlafzimmer (ca. 15,93 qm)
* das Badezimmer mit und Wanne und Waschmaschinenanschluss (ca. 5,3 qm)
* WC mit Handwaschbecken

Die Wohneinheiten werden mit Fernwärme beheizt und sind mit Holzkastenfenstern und Parkettböden ausgestattet. Insgesamt befinden sich die Objekte einem guten, sofort bezugsfertigem Gesamtzustand!

Die Hainburger Straße verläuft parallel zur beliebten Einkaufsstraße Landstraßer Hauptstraße und ist nur wenige Schritte von der U3-Station Kardinal-Nagl-Platz entfernt. Der trendige Rochusmarkt mit seinen Restaurants und Marktständen und das Galleria Einkaufszentrum liegen in unmittelbarer Nähe. Die Wiener Innenstadt, den Wiener Prater oder die Donauinsel erreichen Sie in wenigen Minuten mit den öffentlichen Verkehrsmitteln.

Die Kaufabwicklung erfolgt ausschließlich über Rechtsanwalt Dr. Rumpf, 1010 Wien, Freyung 6.

 

Für weitere Fragen oder Besichtigungen steht Ihnen Hr. Denis Omerovic unter der Tel. 0664 24 024 96 [tel:06642402496] jederzeit gerne zur Verfügung.

Dieses Objekt wird Ihnen unverbindlich und freibleibend zum Kauf angeboten. Oben angeführte Angaben basieren auf Informationen und Unterlagen des Eigentümers und sind unsererseits ohne Gewähr.Als Vermittlungshonorar gelten die allgemeinen Geschäftsbedingungen und die Verordnung für Immobilienmakler des BM für Handel, Gewerbe und Industrie, BGBL. 297/1996. Für den Fall, dass es diesbezüglich zu einem entsprechenden Rechtsgeschäft kommt, verrechnen wir Ihnen eine Vermittlungsprovision von 3 Prozent der Kaufsumme zuzüglich der gesetzlichen Mehrwertsteuer.Wir möchten noch darauf hinweisen, dass wir in einem Naheverhältnis zur Verkäuferin stehen.

Infrastruktur / Entfernungen

Gesundheit
Arzt <500m
Apotheke <500m
Klinik <500m
Krankenhaus <500m

Kinder & Schulen
Schule <500m
Kindergarten <500m
Universität <1.000m
Höhere Schule <500m

Nahversorgung
Supermarkt <500m
Bäckerei <500m
Einkaufszentrum <500m

Sonstige
Geldautomat <500m
Bank <500m
Post <500m
Polizei <500m

Verkehr
Bus <500m
U-Bahn <500m
Straßenbahn <1.000m
Bahnhof <500m
Autobahnanschluss <1.000m

Angaben Entfernung Luftlinie / Quelle: OpenStreetMap
Beschreibung weiterlesen

Energieeffizienz

HWB Klasse:
D

Grundriss

Lageplan

1030 Wien | Wien 3., Landstraße

Lade...
Denis Omerovic

Denis Omerovic

Omerovic Immobilien GmbH

Lade...

Fotomix

Bild 1 Bild 2 Bild 3 Bild 4 Bild 5 Bild 6 Bild 7 Bild 8 Bild 9